Maison à construire à Senouillac (81600)
Images
Description
Bastide L'élégance et l'authenticité d'une maison du Sud
Maisons France Confort Albi, spécialiste de la construction traditionnelle et à ossature bois, vous présente le modèle Bastide : une maison au charme intemporel, inspirée de l'architecture du sud de la France. Elle conjugue tradition, authenticité et confort moderne pour offrir un cadre de vie harmonieux et lumineux.
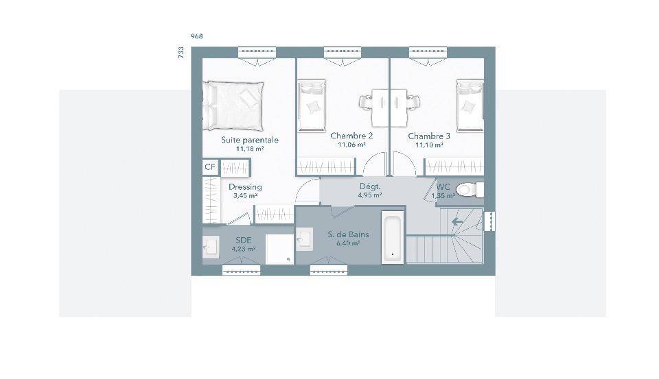
Avec une surface habitable de 110 m² et un garage accolé de 20 m², la Bastide séduit par ses volumes généreux et son aménagement fonctionnel.
Espace jour :
Un vaste séjour-cuisine de près de 50 m², baigné de lumière naturelle,
Un cellier pratique et des WC indépendants,
Une suite parentale de 20 m², comprenant chambre, dressing et salle d'eau avec WC séparé,
Un garage accolé de 19 m² accessible depuis la maison.
À l'étage :
Une salle de bains familiale de plus de 6 m²,
Trois chambres spacieuses de plus de 11 m², dont une suite parentale avec dressing et salle d'eau privative.
Cette maison, typique du sud, allie élégance, confort et convivialité, pour accueillir votre famille dans une ambiance chaleureuse et raffinée.
📞 Contactez dès aujourd'hui Maisons France Confort Albi au (Numéro supprimé) pour en savoir plus sur ce modèle et découvrir nos offres personnalisées.
PRIX 294921€
ℹ️ Frais de notaire et annexes non inclus dans le prix indiqué.
Annonce proposée par un Agent Commercial Partenaire.
Logement susceptibles de vous intéresser
Nous vous proposons de découvrir aussi cette sélection de logements situés à moins de 10km de Senouillac et qui seraient susceptibles de vous intéresser.
Sainte-Croix
TERRAIN ET MAISONDécouvrez le modèle Infini, une élégante maison conçue avec une architecture moderne, aux lignes sobres et épurées. Déclinez sa toiture à votre guise et en fonction de vos envies. Son aménagement intérieur saura répondre à votre mode de vie. Sa belle pièce à vivre traversante de 44 m² donnera sur votre extérieur par sa grande baie vitrée. A l’étage, le coté nuit s’articule autour de 3 grandes chambres avec placard et une belle salle de bains de 8 m² tout équipée. Le modèle Infini est une maison familiale et coquette qui plaira par son agencement pensé pour votre confort de vie, par Oc résidences, votre constructeur sur mesure en Occitanie.
Sainte-Croix
TERRAINPour donner vie à votre projet de construction, OC-RESIDENCES, constructeur de maison sur mesure depuis 1983, vous propose de venir découvrir cette parcelle de 700 m2, viabilisée sur l’agréable commune de SAINTE CROIX 81150, au prix de 53 000 €. Si vous souhaitez avoir plus d’informations, contactez notre agence d’ ALBI au (Numéro supprimé). »Terrain en accord avec notre partenaire foncier, sous réserve de disponibilité. Prix et visuels non contractuels. Projet conforme à la RE 2020
Sainte-Croix
TERRAIN ET MAISONOc Résidences, constructeur de maisons Individuelles, vous propose une maison neuve et moderne à construire en Midi Pyrénées et en Languedoc. Ce pavillon dispose d’un espace jour de 49 m² et d’un coin nuit indépendant avec quatre chambres, un WC indépendant et une salle de bains familiale. De grandes baies vitrées vous assurent la luminosité indispensable au confort de toute votre famille. Le garage agrémente votre confort et votre quotidien. Ce modèle Horizon a un design à couper le souffle !
Sainte-Croix
TERRAIN ET MAISONLe Parfum d’été a le raffinement de la Provence avec sa forme en V. Son décroché de toiture, ses tuiles vieillies, ses encadrements de fenêtres donneront à votre maison tout son charme. Son hall d’entrée avec placards et WC s’ouvrira sur un lumineux Salon/Séjour de plus de 50 m2. Sa cuisine ouverte donnera sur un Auvent de 20 m² et un cellier communiquant avec un garage de 16 m². Le coté nuit s’articule autour de trois chambres avec placard et d’une salle de bain familiale. Un bureau viendra agrémenter votre quotidien. Cette maison est à construire dans le département du Tarn, l’Aude, l’Hérault, la Haute-Garonne ainsi que les Pyrénées Orientales par Oc résidences, votre constructeur sur mesure en Occitanie.
Sainte-Croix
TERRAIN ET MAISONLa SOLAIRE vous assure des volumes généreux et permet de profiter pleinement de la lumière grâce à ses nombreuses ouvertures. Moderne, cette villa vous donne de nombreuses possibilités en termes de disposition des pièces.Sa pièce de vie centrale de 53 m² vous donne accès sur une aile de la maison composée de trois chambres et une salle de bain et sur l’autre, une belle suite parentale indépendante. Sa forme de U vous permet aussi un aménagement extérieur design, avec une grande terrasse ou une piscine au milieu. Sa toiture pourra être décliné de plusieurs manières, afin d’harmoniser son architecture à votre goût.La SOLAIRE est à construire par OC Résidences, votre constructeur sur mesure du Tarn, l’Aude, l’Hérault, la Haute-Garonne ainsi que les Pyrénées Orientales.
Sainte-Croix
TERRAIN ET MAISONConçue autour d’un volume à étage, cette belle maison familiale de 100 m² habitable saura vous séduire par son architecture contemporaine et son aménagement évolutif. Cette villa est composée au rez-de-chaussée d’un grand espace de vie d’environ 46 m², avec de grandes ouvertures et d’une arrière cuisine communiquant sur un garage. Son étage pourra se décliner soit avec 4 chambres et une salle de bains, ou en 3 chambres dont une suite parentale. Libre à vous de choisir quel aménagement saura le mieux convenir à votre mode de vie. Cette maison est à construire dans le département du Tarn, l’Aude, l’Hérault, la Haute-Garonne ainsi que les Pyrénées Orientales par Oc résidences, votre constructeur sur mesure en Midi Pyrénées et en Languedoc.
Senouillac
TERRAIN🌳 Terrain à vendre à Senouillac – Secteur TessonnièresSitué à proximité immédiate de Senouillac et Gaillac, Maisons France Confort Albi, constructeur de maisons traditionnelles et à ossature bois, vous propose à la vente ce superbe terrain individuel de 1 292 m².🔹 Caractéristiques du terrain :Superficie : 1 292 m² – terrain platNon viabilisé, avec le tout-à-l’égout à proximitéExposition plein sudVue dégagée sur un bel espace boiséEnvironnement calme et verdoyantCe terrain bénéficie d’un cadre de vie paisible, idéal pour un projet de construction sur mesure alliant nature, confort et proximité des commodités.🏫 À moins de 10 minutes en voiture :Écoles de la maternelle au lycéeCrèche et structure d’accueil pour la petite enfanceCommerces de proximité : boulangeries, épiceries, boucheries-charcuteries, bureau de poste, centre commercialÉquipements sportifs et bassin de natation🚆 Accès et mobilité :Gare Gaillac Tessonnières à moins d’un kilomètre du terrainAutoroute A68 à proximité, offrant un accès rapide vers Albi et Toulouse💶 Prix de vente : 65 000 €📞 Pour tout renseignement ou pour organiser une visite, contactez Maisons France Confort Albi au (Numéro supprimé).Nos conseillers vous accompagnent à chaque étape de votre projet, du choix du terrain jusqu’à la construction complète de votre maison.Annonce proposée par un Agent Commercial Partenaire.
Senouillac
TERRAIN ET MAISONModèle Optima 90 – Maison de plain-pied moderne et fonctionnelleMaisons France Confort Albi, constructeur de maisons traditionnelles et à ossature bois, vous présente le modèle Optima 90 : une maison de plain-pied qui conjugue confort, optimisation des espaces et design contemporain.Avec ses 90 m² intelligemment agencés, cette maison offre :une spacieuse pièce de vie de 41 m², lumineuse et conviviale, parfaite pour accueillir famille et amis,un cellier pratique,deux chambres confortables,une salle de bains familiale,et une suite parentale avec dressing et salle d’eau privative, pour un espace intime et fonctionnel.Un garage intégré complète l’ensemble, dans une architecture épurée et moderne qui séduira les amateurs de lignes sobres et actuelles.👉 Un véritable coup de coeur !N’attendez plus pour découvrir le modèle Optima 90 et contactez dès aujourd’hui Maisons France Confort Albi au (Numéro supprimé) pour plus d’informations.PRIX : 215483€ℹ️ À noter : les frais de notaire et frais annexes ne sont pas inclus dans le prix indiqué.Annonce proposée par un Agent Commercial Partenaire.
Senouillac
TERRAIN ET MAISONModèle Actua Plain-pied 105 m²Design moderne Agencement optimisé Idéal familleMaisons France Confort Albi, constructeur de maisons traditionnelles et à ossature bois, vous présente le modèle Actua, un plain-pied moderne de 105 m² conçu pour allier esthétique contemporaine, confort et fonctionnalité.Un intérieur pensé pour la vie quotidienneEntrée fonctionnelle : placard intégré dès l’entrée, pour un rangement pratique et un accueil ordonné.Pièce de vie généreuse : espace ouvert de plus de 40 m² réunissant cuisine, salle à manger et salon. La disposition favorise la circulation et la luminosité traversante, créant un lieu de vie chaleureux et convivial.Espace nuit optimisé : trois chambres équipées de placards et une suite parentale avec rangements et salle d’eau privative une configuration confortable pour toute la famille.Fonctions annexes utiles : cellier attenant à la cuisine et garage, pour un quotidien facilité (rangement, courses, stationnement).Les + du modèle ActuaAgencement réfléchi : séparation claire des espaces jour / nuit pour le calme et l’intimité.Luminosité naturelle : grandes ouvertures favorisant une ambiance claire et agréable tout au long de l’année.Confort modulable : possibilités d’adapter les finitions, les équipements et certaines options (aménagements de rangements supplémentaires, choix de menuiseries, pergola, etc.).Accessibilité et plain-pied : usage simple au quotidien, adapté à toutes les étapes de la vie.Performance et personnalisationLe modèle Actua peut être conçu avec des solutions techniques modernes (isolation renforcée, système de chauffage performant, options à faible empreinte énergétique) et des finitions personnalisées pour répondre à vos priorités performance, budget, design ou confort.📞 Pour en savoir plus et étudier votre projet : Maisons France Confort Albi (Numéro supprimé)📝 Nous vous accompagnons de la recherche du terrain jusqu’à la livraison (conseils techniques, perso
L’actualité immobilière à Senouillac
27/11/2023
02/11/2023
30/10/2023
20/10/2023
16/10/2023
16/10/2023