Maison à construire à Saint-Gauzens (81390)
Images
Description
🏡 Bastide moderne 130 m² - Élégance, confort & luminosité ✨
Maisons France Confort Albi, spécialiste de la construction de maisons traditionnelles et à ossature bois, vous invite à découvrir cette superbe bastide contemporaine de 130 m², pensée pour allier charme intemporel, confort moderne et espaces lumineux.
🔹 Rez-de-chaussée spacieux et fonctionnel
Suite parentale de 20 m², véritable cocon avec :
Dressing intégré
Salle d'eau privative
WC séparé
Espace de vie de 56 m², lumineux grâce à de larges baies vitrées en aluminium RAL 716
Cuisine ouverte moderne, attenante à un cellier pratique et à un garage de 19 m²
Vestiaire et WC séparé pour plus de confort
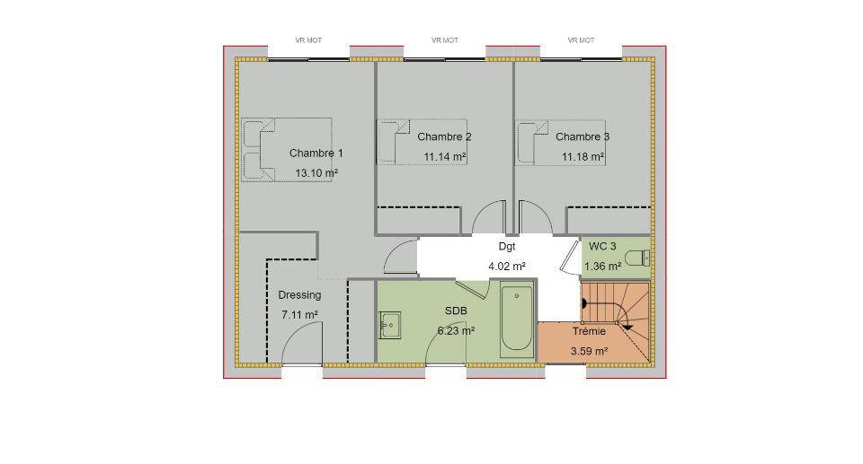
🔹 Étage dédié à la famille
3 chambres lumineuses, dont une seconde suite parentale avec grand dressing
1 salle de bains élégante
1 WC indépendant
🔹 Prestations haut de gamme incluses
✔️ Pompe à chaleur air/air pour un confort thermique optimal
✔️ Enduit bi-ton finition grattée pour une façade raffinée
✔️ Porte de garage sectionnelle motorisée
✔️ Garde-corps vitrés pour une touche contemporaine
✅ Votre projet entre de bonnes mains
Avec Maisons France Confort, vous bénéficiez de :
Plus de 105 ans d'expertise dans la construction de maisons individuelles
Un accompagnement clé en main :
Recherche de terrain
Conception sur-mesure de vos plans
Gestion des démarches administratives
Solutions de financement grâce à nos partenaires de confiance
📞 Contactez l'agence Maisons France Confort Albi au (Numéro supprimé) et transformez votre rêve en réalité.
🌿 Avec Maisons France Confort, bien construire votre futur.
Annonce proposée par un Agent Commercial Partenaire.
Logement susceptibles de vous intéresser
Nous vous proposons de découvrir aussi cette sélection de logements situés à moins de 10km de Saint-Gauzens et qui seraient susceptibles de vous intéresser.
Saint-Jean-de-Rives
TERRAIN? Terrain Constructible de plus de 1 000 m² au Coeur de Saint-Jean de Rives – Emplacement Idéal pour Votre Projet de Vie ! ? Vous rêvez de construire votre maison dans un cadre paisible et accessible ? Découvrez ce magnifique terrain plat de 1 000 m², niché au centre du charmant village de Saint-Jean de Rives – un cadre de vie privilégié entre nature et commodités. ? Points Forts : ? Emplacement central : à deux pas des écoles, commerces et services du village. ? Situation stratégique : à seulement 7 min de l’autoroute et de la gare SNCF – parfait pour les actifs ! ? Environnement préservé : calme, verdoyant et sans vis-à-vis. ? Terrain à viabiliser : facilement aménageable, idéal pour une construction personnalisée. ?? Libre choix du constructeur : donnez libre cours à vos envies, sans contrainte d’entreprise. Ce terrain est une opportunité rare sur le secteur – parfaite pour une résidence principale ou un projet patrimonial. ? Contactez-moi dès aujourd’hui pour organiser une visite et imaginer votre futur chez-vous à Saint-Jean de Rives !Honoraires à la charge du vendeurVotre agent commercial 3G IMMO sur place EI – Alexandre MIGINIAC inscrit au RSAC d’ALBI n° 528 155 880 Selon l’article L.561.5 du Code Monétaire et Financier, pour l’organisation de la visite, la présentation d’une pièce d’identité vous sera demandée.Les informations sur les risques auxquels ce bien est exposé sont disponibles sur le site Géorisques : www.georisques.gouv.frLes informations sur les risques auxquels ce bien est exposé sont disponibles sur le site Géorisques : www.georisques.gouv.fr
Lavaur
TERRAIN ET MAISONMaison de plain-pied de plus de 121m2, notre modèle Léa saura vous séduire par sa forme en U et son agencement permettant de proposer une pièce de vie de plus de 64m2. Ses grands espaces et son allure moderne nous dévoile une belle maison fonctionnelle qui comporte 2 chambres dont 1 suite parentale avec dressing et salle d’eau, 1 bureau et 1 salle de bain. Une arrière cuisine attenante à un grand garage apportera beaucoup de praticité.Enfin, ses grandes baies vitrées dans la pièce à vivre mais également dans les chambres, offrira une belle clarté et des ouvertures sur une future terrasse et sur son auvent !Tous nos modèles de maison peuvent être personnalisés en fonction de vos besoins et envies !Nous vous proposons, à 5 minutes de l’A68, ce joli terrain viabilisé de 704 m2. Il est issu d’une division parcellaire de deux terrains seulement.L’environnement est calme et verdoyant et est proche de certains commerces.
Viterbe
TERRAINNous vous proposons, dans la commune de Viterbe, ce charmant terrain viabilisé de 660m² issu d’un lotissement de quelques lots seulement et situé à 10 minutes de Lavaur seulement. Vous y découvrirez un environnement calme et proche de toutes les commodités.N’hésitez plus, contactez notre agence et programmez votre visite !
Graulhet
TERRAIN ET MAISONLa SOLAIRE vous assure des volumes généreux et permet de profiter pleinement de la lumière grâce à ses nombreuses ouvertures. Moderne, cette villa vous donne de nombreuses possibilités en termes de disposition des pièces.Sa pièce de vie centrale de 53 m² vous donne accès sur une aile de la maison composée de trois chambres et une salle de bain et sur l’autre, une belle suite parentale indépendante. Sa forme de U vous permet aussi un aménagement extérieur design, avec une grande terrasse ou une piscine au milieu. Sa toiture pourra être décliné de plusieurs manières, afin d’harmoniser son architecture à votre goût.La SOLAIRE est à construire par OC Résidences, votre constructeur sur mesure du Tarn, l’Aude, l’Hérault, la Haute-Garonne ainsi que les Pyrénées Orientales.
Graulhet
TERRAIN ET MAISONDécouvrez le modèle Infini, une élégante maison conçue avec une architecture moderne, aux lignes sobres et épurées. Déclinez sa toiture à votre guise et en fonction de vos envies. Son aménagement intérieur saura répondre à votre mode de vie. Sa belle pièce à vivre traversante de 44 m² donnera sur votre extérieur par sa grande baie vitrée. A l’étage, le coté nuit s’articule autour de 3 grandes chambres avec placard et une belle salle de bains de 8 m² tout équipée. Le modèle Infini est une maison familiale et coquette qui plaira par son agencement pensé pour votre confort de vie, par Oc résidences, votre constructeur sur mesure en Occitanie.
Busque
TERRAIN ET MAISONLe modèle ZEPHYR 87 m² est une maison aux lignes sobres et authentiques qui saura vous séduire par son aménagement intérieur conçu pour optimiser votre confort. Ce pavillon vous offre trois chambres, une salle de bains, un bel espace vie de plus de 41 m² et un garage de 14 m², facilement transformable en une quatrième chambre. Cette maison sera répondre aux normes accessibilité. Votre projet de vie est à construire dans le département du Tarn, l’Aude, l’Hérault, la Haute-Garonne ainsi que les Pyrénées Orientales par Oc résidences, votre constructeur sur mesure en Occitanie.
Graulhet
TERRAIN ET MAISONOc Résidences, constructeur de maisons Individuelles, vous propose une maison neuve et moderne à construire en Midi Pyrénées et en Languedoc. Ce pavillon dispose d’un espace jour de 49 m² et d’un coin nuit indépendant avec quatre chambres, un WC indépendant et une salle de bains familiale. De grandes baies vitrées vous assurent la luminosité indispensable au confort de toute votre famille. Le garage agrémente votre confort et votre quotidien. Ce modèle Horizon a un design à couper le souffle !
Graulhet
TERRAIN ET MAISONDécouvrez le modèle Croix du sud, une maison au design unique. Son architecture et son aménagement intérieur enchanteront votre quotidien. Son porche d’entrée couvert vous donnera accès à un hall d’entrée avec WC et placard. Son Salon/Séjour de 56 m², ouvert sur le jardin par de nombreuses baies vitrées, vous procurera un sentiment de liberté et d’espace. Sa terrasse couverte agrémentera vos soirées et son garage de 17 m² en liaison avec un cellier amélioreront vos espaces de rangements. Le coin nuit vous offre trois belles chambres, dont une suite parentale de plus de 20 m² et une salle de bains conviviale. N’attendez plus et contactez nous pour construire votre projet de vie dans le Tarn, l’Aude, L’Hérault, la Haute-Garonne ainsi que les Pyrénées Orientales.
Graulhet
TERRAIN ET MAISONOc Résidences, constructeur de maisons Individuelles, vous propose une maison neuve et moderne à construire en Midi Pyrénées et en Languedoc. Ce pavillon dispose d’un espace jour de 49 m² et d’un coin nuit indépendant avec quatre chambres, un WC indépendant et une salle de bains familiale. De grandes baies vitrées vous assurent la luminosité indispensable au confort de toute votre famille. Le garage agrémente votre confort et votre quotidien. Ce modèle Horizon a un design à couper le souffle !
L’actualité immobilière à Saint-Gauzens
27/11/2023
02/11/2023
30/10/2023
20/10/2023
16/10/2023
16/10/2023