Maison à construire à Tauriac (81630)
Images
Description
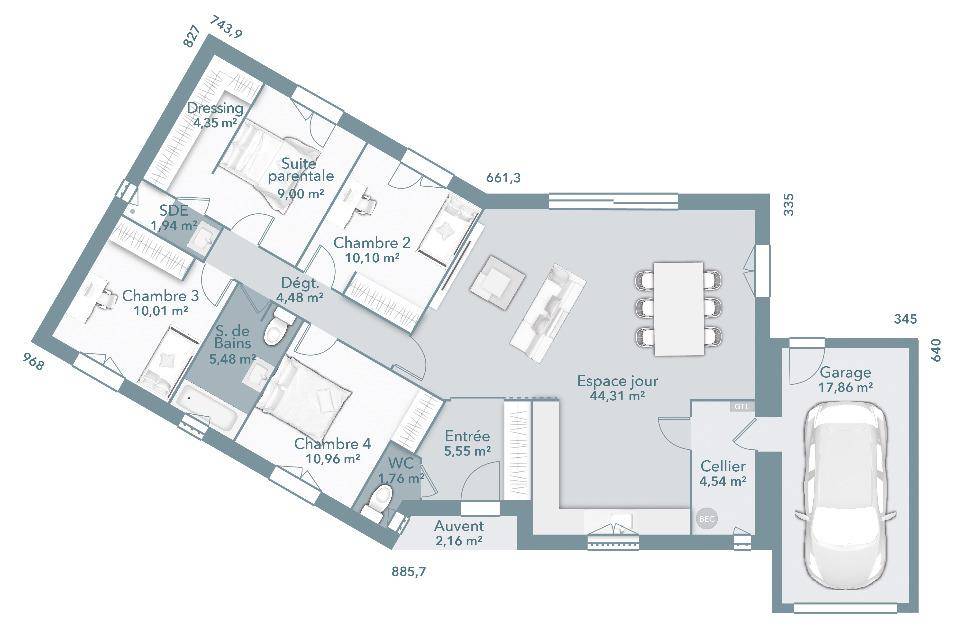
🏡 Modèle Performa 112 Maison familiale de plain-pied
Vous rêvez d'une maison lumineuse, fonctionnelle et parfaitement adaptée à la vie de famille ?
Maisons France Confort Albi, constructeur de maisons traditionnelles et à ossature bois, vous présente le Modèle Performa 112 : 112 m² pensés pour le confort au quotidien.
✨ Présentation
Le Performa 112 se compose de deux ailes distinctes qui séparent clairement les espaces jour et nuit pour davantage d'intimité et de tranquillité. Son plan favorise la circulation, la lumière naturelle et le rangement.
🛋️ Espace jour convivial et lumineux
Entrée accueillante donnant sur une vaste pièce de vie ouverte (salon / salle à manger / cuisine) un lieu central, convivial et baigné de lumière.
Accès direct au cellier depuis le garage, pratique pour les courses et le rangement.
Plusieurs emplacements possibles pour baies vitrées afin d'ouvrir le séjour sur le jardin.
🌙 Espace nuit intime et confortable
Suite parentale avec dressing et salle d'eau privative pour plus d'intimité.
Trois chambres supplémentaires, chacune avec emplacement de rangement.
Salle de bains familiale fonctionnelle, proche des chambres.
🚗 Praticité & rangements
Garage attenant avec accès intérieur au cellier / cuisine.
Nombreux rangements intégrés prévus dans les pièces (placards, cellier, etc.), pour un quotidien ordonné et facile.
✅ Les points forts du Performa 112
Plan optimisé pour la vie familiale
Plain-pied facile à vivre, accessible et évolutif
Suite parentale indépendante
Garage attenant + cellier communicant
Luminosité et connexion au jardin fortement travaillées
Personnalisable selon vos envies et votre terrain
📞 Intéressé(e) ?
Contactez Maisons France Confort Albi au (Numéro supprimé) pour recevoir le plan détaillé, les options de personnalisation et une étude adaptée à votre projet.
ℹ️ Frais de notaire et autres frais annexes non compris dans le prix indi
Logement susceptibles de vous intéresser
Nous vous proposons de découvrir aussi cette sélection de logements situés à moins de 10km de Tauriac et qui seraient susceptibles de vous intéresser.
Beauvais-sur-Tescou
TERRAIN🏡 Terrain constructible de 1 970 m² – à 6 min de Beauvais-sur-Tescou (81630)Maisons France Confort Albi vous propose ce magnifique terrain constructible de 1 970 m², idéal pour concrétiser votre projet de maison sur mesure, qu’elle soit traditionnelle ou à ossature bois.Situé à seulement 6 minutes de Beauvais-sur-Tescou, à 28 minutes de Montauban, 30 minutes de Gaillac et 45 minutes de Toulouse, ce terrain bénéficie d’un environnement calme et verdoyant, tout en restant proche des grands axes et commodités.🌿 Caractéristiques principalesSurface : 1 970 m²Exposition : plein sud ensoleillement optimal tout au long de la journéeViabilisation : non viabilisé (devis de viabilisation déjà réalisé)Assainissement : individuel, à prévoirPrix de vente : 65 000 € (frais de notaire et annexes non inclus)🏞️ Environnement & cadre de vieCe terrain offre un cadre idéal pour ceux qui recherchent la tranquillité de la campagne sans renoncer au confort des services à proximité.Les commerces, écoles et services essentiels se trouvent à environ 10 km, et les environs proposent de nombreuses activités sportives, culturelles et de loisirs : marchés locaux, installations sportives, espaces naturels…💡 Les atouts du terrainOrientation plein sud, parfaite pour une maison lumineuse et économe en énergieBelle superficie, permettant la création d’un jardin, d’une piscine ou d’annexesCadre paisible avec un accès rapide aux villes voisinesAccompagnement complet possible de la part de Maisons France Confort Albi🏗️ Nos services d’accompagnementÉtude de viabilisation et réalisation des raccordementsConception de plans personnalisés (maison traditionnelle ou ossature bois)Aide au montage du dossier de financement et suivi administratifMise en relation avec nos partenaires locaux : géomètre, bureau d’études, notaire📞 Contact & renseignementsMaisons France Confort Albi – (Numéro supprimé)Notre
Beauvais-sur-Tescou
TERRAIN ET MAISONProjet de maison de plain-pied – 71 m² – proposé par Maisons France Confort AlbiMaisons France Confort Albi, constructeur reconnu pour son savoir-faire en maisons traditionnelles et à ossature bois, vous présente ce projet de maison de plain-pied de 71 m², alliant confort moderne, fonctionnalité et qualité de vie.Pensée pour répondre aux besoins du quotidien, cette maison séduit par son plan optimisé et ses espaces baignés de lumière.🏡 Espace jour : convivialité et luminositéLe coeur de la maison s’articule autour d’une grande pièce de vie de 37 m², intégrant un salon spacieux, une salle à manger conviviale et une cuisine ouverte favorisant les échanges et la clarté naturelle.Un cellier de 4,5 m², directement accessible depuis la cuisine, permet un accès pratique au garage de 15 m² idéal pour stationner un véhicule ou aménager un espace de rangement supplémentaire.🌙 Espace nuit : calme et intimitéLa partie nuit, parfaitement isolée du séjour, comprend :Deux chambres confortables de 11,35 m² et 10,50 m²,Une salle de bains fonctionnelle de 4,5 m²,Un dégagement optimisé, limitant toute perte de surface et facilitant la circulation.Ce modèle de plain-pied offre un cadre de vie harmonieux et facile à vivre, adapté aux jeunes couples, primo-accédants, seniors ou à toute personne recherchant un habitat pratique, durable et évolutif.📞 N’attendez plus ! Contactez Maisons France Confort Albi au (Numéro supprimé) pour découvrir toutes les possibilités de personnalisation et concrétiser votre projet immobilier en toute sérénité.ℹ️ À noter : Les frais de notaire et autres frais annexes ne sont pas inclus dans le prix indiqué.Annonce proposée par un Agent Commercial Partenaire.
Beauvais-sur-Tescou
TERRAIN ET MAISONMaison de plain-pied – Plan fonctionnel et évolutif signé Maisons France Confort AlbiMaisons France Confort Albi vous propose ce modèle de maison de plain-pied à l’agencement optimisé, alliant modernité, fonctionnalité et confort au quotidien.L’habitation s’organise autour d’un espace de vie central de 23,91 m², comprenant un séjour lumineux et une cuisine ouverte. Les ouvertures ont été judicieusement positionnées pour profiter pleinement de la lumière naturelle tout au long de la journée.Le coin nuit accueille deux chambres confortables, de 10,04 m² et 10,12 m², situées côte à côte pour offrir un cadre intime et reposant. Une salle d’eau de 4,56 m², équipée d’une douche, complète cet espace, desservi par un dégagement compact de 0,75 m², conçu pour minimiser les pertes d’espace.Un garage accolé de 18,09 m², accessible directement depuis la cuisine, idéal pour stationner un véhicule ou créer un espace de rangement supplémentaire.Un plan pensé pour évoluer avec vousGrâce à sa conception intelligente, ce modèle est entièrement évolutif. Il est possible d’envisager des extensions sur les côtés ou à l’arrière, pour ajouter une chambre supplémentaire, un bureau, ou encore une pièce de détente, selon l’évolution de vos besoins.Ce plan modulable en fait une maison durable, qui s’adaptera facilement à tous vos projets de vie.📞 Contactez dès maintenant Maisons France Confort Albi au (Numéro supprimé) pour plus d’informations et concrétisez votre projet de vie.À noter : Les frais de notaire et frais annexes ne sont pas inclus dans le prix indiqué.Annonce proposée par un Agent Commercial Partenaire.
Beauvais-sur-Tescou
TERRAIN ET MAISONModèle Plain-Pied Design – 85 m² – 3 chambres avec garage intégréMaisons France Confort Albi, constructeur reconnu pour son expertise en maisons traditionnelles et à ossature bois, vous présente ce modèle Plain-Pied Design, un incontournable de la gamme Open, réputé pour son plan ingénieux, sa luminosité et son confort au quotidien.Avec ses 85 m² parfaitement agencés, cette maison offre un espace de vie moderne et fonctionnel, idéal pour une famille, un couple ou des primo-accédants.Son architecture sobre et élégante met en valeur les volumes, la clarté et la convivialité.🏡 Un espace de vie spacieux et lumineuxLa pièce de vie de près de 40 m² s’ouvre largement sur le jardin grâce à de grandes baies vitrées, inondant l’intérieur de lumière naturelle et créant une belle continuité entre l’intérieur et l’extérieur.L’espace est pensé pour accueillir salon, salle à manger et cuisine ouverte, dans une atmosphère chaleureuse et moderne.Un garage intégré apporte un atout supplémentaire, combinant espace de stationnement et rangement.🌙 Un espace nuit confortable et bien penséLa partie nuit comprend trois chambres, toutes supérieures à 9 m² et dotées de dressings intégrés, offrant confort et praticité au quotidien.Une salle de bains équipée d’une baignoire, un WC indépendant et un cellier fonctionnel complètent ce plan parfaitement équilibré.💡 Les atouts du modèleDistribution fluide et espaces optimisésGrandes ouvertures pour une luminosité naturelle maximaleNombreux rangements et confort de plain-piedStyle architectural sobre et ambiance contemporaineCe modèle séduit par sa simplicité élégante et sa praticité au quotidien, offrant un cadre de vie harmonieux, agréable et facile à entretenir.📞 Contactez dès maintenant Maisons France Confort Albi au (Numéro supprimé) pour en savoir plus sur ce projet et personnaliser votre future maison selon vos envies.ℹ️ Frais de notaire et frais annexes non inclus dan
Beauvais-sur-Tescou
TERRAIN ET MAISONOffrez-vous une maison familiale moderne, confortable et élégante !Vous rêvez d’un plain-pied contemporain offrant espace, luminosité et fonctionnalité ?Maisons France Confort Albi, spécialiste reconnu de la construction traditionnelle et à ossature bois, vous invite à découvrir sa nouvelle gamme Open et notamment le modèle Plain-pied Design avec garage accolé, pensé pour répondre aux attentes des familles d’aujourd’hui.Ce modèle séduit par son agencement optimisé et son style résolument moderne :Entrée fonctionnelle avec placard intégré et WC indépendant,Grande pièce de vie lumineuse de plus de 42 m², parfaite pour partager des moments conviviaux,Cellier attenant avec accès direct au garage accolé de 18 m²,4 chambres spacieuses, toutes équipées de rangements intégrés (de 9,28 m² à 12,91 m²),Salle de bains familiale de 7,30 m², élégamment équipée d’une baignoire, d’une douche et d’un meuble double vasque.Alliant confort, esthétisme et praticité, cette maison offre un cadre de vie idéal pour accueillir toute votre famille dans les meilleures conditions.📞 Contactez dès aujourd’hui Maisons France Confort Albi au (Numéro supprimé) pour obtenir plus d’informations ou planifier une étude personnalisée de votre projet.ℹ️ À noter : les frais de notaire et annexes ne sont pas inclus dans le prix indiqué.Annonce proposée par un Agent Commercial Partenaire.
Beauvais-sur-Tescou
TERRAIN ET MAISONBastide L’élégance et l’authenticité d’une maison du SudMaisons France Confort Albi, spécialiste de la construction traditionnelle et à ossature bois, vous présente le modèle Bastide : une maison au charme intemporel, inspirée de l’architecture du sud de la France. Elle conjugue tradition, authenticité et confort moderne pour offrir un cadre de vie harmonieux et lumineux.Avec une surface habitable de 110 m² et un garage accolé de 20 m², la Bastide séduit par ses volumes généreux et son aménagement fonctionnel.Espace jour :Un vaste séjour-cuisine de près de 50 m², baigné de lumière naturelle,Un cellier pratique et des WC indépendants,Une suite parentale de 20 m², comprenant chambre, dressing et salle d’eau avec WC séparé,Un garage accolé de 19 m² accessible depuis la maison.À l’étage :Une salle de bains familiale de plus de 6 m²,Trois chambres spacieuses de plus de 11 m², dont une suite parentale avec dressing et salle d’eau privative.Cette maison, typique du sud, allie élégance, confort et convivialité, pour accueillir votre famille dans une ambiance chaleureuse et raffinée.📞 Contactez dès aujourd’hui Maisons France Confort Albi au (Numéro supprimé) pour en savoir plus sur ce modèle et découvrir nos offres personnalisées.ℹ️ Frais de notaire et annexes non inclus dans le prix indiqué.Annonce proposée par un Agent Commercial Partenaire.
Tauriac
TERRAIN🏡 Terrain constructible de 1 970 m² – à 6 min de Tauriac (81630)Maisons France Confort Albi vous propose ce magnifique terrain constructible de 1 970 m², idéal pour concrétiser votre projet de maison sur mesure, qu’elle soit traditionnelle ou à ossature bois.Situé à seulement 6 minutes de Tauriac, à 28 minutes de Montauban, 30 minutes de Gaillac et 45 minutes de Toulouse, ce terrain bénéficie d’un environnement calme et verdoyant, tout en restant proche des grands axes et commodités.🌿 Caractéristiques principalesSurface : 1 970 m²Exposition : plein sud ensoleillement optimal tout au long de la journéeViabilisation : non viabilisé (devis de viabilisation déjà réalisé)Assainissement : individuel, à prévoirPrix de vente : 65 000 € (frais de notaire et annexes non inclus)🏞️ Environnement & cadre de vieCe terrain offre un cadre idéal pour ceux qui recherchent la tranquillité de la campagne sans renoncer au confort des services à proximité.Les commerces, écoles et services essentiels se trouvent à environ 10 km, et les environs proposent de nombreuses activités sportives, culturelles et de loisirs : marchés locaux, installations sportives, espaces naturels…💡 Les atouts du terrainOrientation plein sud, parfaite pour une maison lumineuse et économe en énergieBelle superficie, permettant la création d’un jardin, d’une piscine ou d’annexesCadre paisible avec un accès rapide aux villes voisinesAccompagnement complet possible de la part de Maisons France Confort Albi🏗️ Nos services d’accompagnementÉtude de viabilisation et réalisation des raccordementsConception de plans personnalisés (maison traditionnelle ou ossature bois)Aide au montage du dossier de financement et suivi administratifMise en relation avec nos partenaires locaux : géomètre, bureau d’études, notaire📞 Contact & renseignementsMaisons France Confort Albi – (Numéro supprimé)Notre équipe se tient à votre
Tauriac
TERRAIN ET MAISON🏡 Modèle Optima 84 – Maison contemporaine de plain-pied signée Maisons France Confort AlbiMaisons France Confort Albi, constructeur de maisons traditionnelles et à ossature bois, vous présente le modèle Optima 84 : une maison de plain-pied au design contemporain, pensée pour offrir confort, fonctionnalité et luminosité au quotidien.✨ Un agencement optimisé et convivialDès l’entrée, vous découvrez une spacieuse pièce de vie de 38 m², baignée de lumière naturelle grâce à de larges ouvertures sur l’extérieur idéale pour recevoir, partager et profiter d’un espace de vie chaleureux.Un cellier attenant à la cuisine facilite le rangement et la vie de tous les jours.Côté nuit, le modèle Optima 84 propose deux chambres confortables, une salle de bains familiale, ainsi qu’une suite parentale avec salle d’eau privative, véritable havre d’intimité.L’ensemble s’inscrit dans un style résolument contemporain, aux lignes sobres et élégantes, et dispose d’un garage intégré, garantissant praticité et confort au quotidien.💡 Les atouts du modèle Optima 84Plan compact et intelligent, idéal pour optimiser chaque mètre carréArchitecture moderne et lumineuseSuite parentale indépendanteGarage intégréPossibilité de personnalisation selon vos envies et votre terrain❤️ Une maison pensée pour vousLe modèle Optima 84 séduit par son équilibre parfait entre modernité et confort de vie. Fonctionnelle, élégante et personnalisable, elle s’adapte aussi bien aux terrains en lotissement qu’aux environnements plus ruraux.Un véritable coup de coeur pour celles et ceux qui rêvent d’un plain-pied contemporain à vivre pleinement !📞 Pour plus d’informations ou une étude personnalisée de votre projet, contactez Maisons France Confort Albi au (Numéro supprimé).ℹ️ Les frais de notaire et autres frais annexes ne sont pas inclus dans le prix indiqué.Annonce proposée par un Agent Commercial Partenaire.
Tauriac
TERRAIN ET MAISON🏡 Modèle Actua 95 – Élégance, confort et modernité au quotidienMaisons France Confort Albi, constructeur de maisons traditionnelles et à ossature bois, vous présente le modèle Actua 95 : une maison moderne et raffinée, pensée pour offrir bien-être, luminosité et praticité à toute la famille.Son plan astucieusement agencé optimise chaque mètre carré afin de concilier confort et fonctionnalité dans un style résolument contemporain.✨ Un espace jour convivial et lumineuxAu coeur de la maison, l’espace de vie de 43 m² séduit par sa cuisine ouverte sur un salon-séjour spacieux, baigné de lumière naturelle grâce à de larges ouvertures.Un cellier fonctionnel et des WC indépendants viennent compléter ce rez-de-chaussée, pensé pour simplifier le quotidien.🌙 Un espace nuit intime et bien organiséL’espace nuit se compose d’une suite parentale avec dressing et salle d’eau privative, ainsi que de deux chambres équipées de placards, idéales pour enfants, amis ou bureau.Une salle de bains moderne avec WC vient parfaire cet espace à la fois confortable et harmonieux.🏗️ Un design sobre et contemporainLe garage accolé en façade avant souligne le caractère architectural de la maison tout en apportant praticité et rangements supplémentaires.Ses lignes épurées et ses volumes équilibrés confèrent à l’Actua 95 une allure à la fois moderne et intemporelle, parfaitement adaptée à tout type d’environnement.💬 Les atouts du modèle Actua 95Maison lumineuse et agréable à vivreAgencement fonctionnel et bien penséSuite parentale avec dressing et salle d’eau privativeGarage accolé et architecture contemporainePersonnalisable selon vos goûts et votre mode de vie📞 Donnez vie à votre projet dès aujourd’hui !Contactez Maisons France Confort Albi au (Numéro supprimé) pour plus d’informations ou pour une étude personnalisée de votre maison.ℹ️ Les frais de notaire et autres frais annexes ne sont pas inclus da
L’actualité immobilière à Tauriac
27/11/2023
02/11/2023
30/10/2023
20/10/2023
16/10/2023
16/10/2023