Maison à construire à Aucamville (82600)
Images
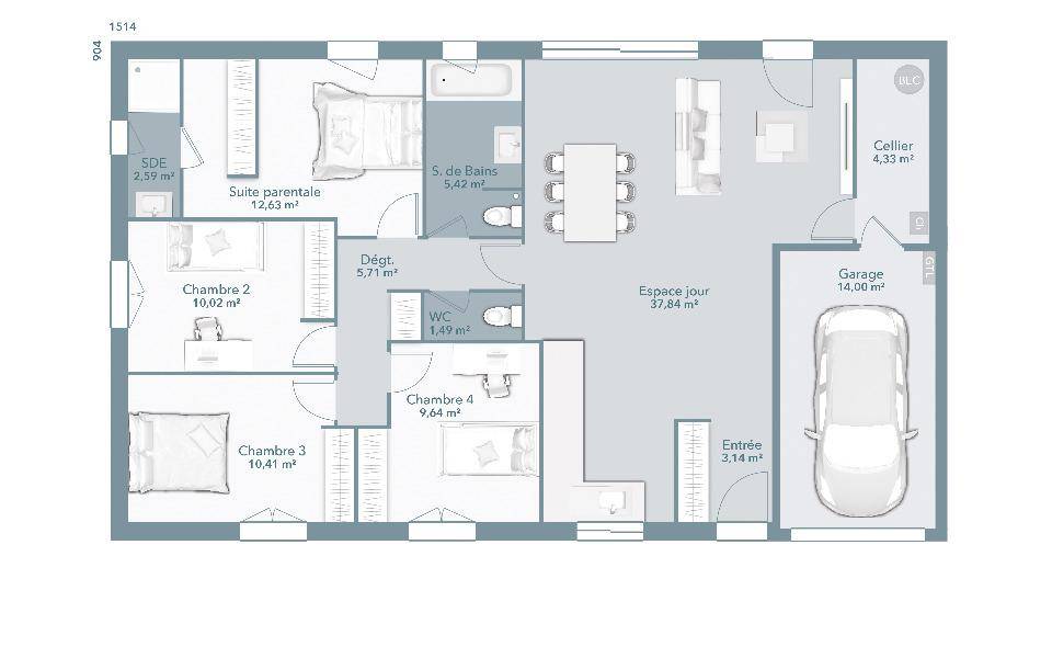
Description
"Votre agence Maisons France Confort d'Aucamville vous propose ce beau projet maison + terrain situé la commune d'AUCAMVILLE.
Venez découvrir ce plain-pied d'une architecture sobre et élégante, cette maison est conçue de manière ingénieuse, fonctionnelle et adaptable. Les volumes sont optimisés pour que chaque membre de la famille puisse avoir son propre cocon. Les plus de ce modèle Optima de 103 m² : Zones jour et nuit séparées. Suite parentale avec salle d'eau privative en option. Salle de bains en plus de la salle d'eau. WC séparés. Cellier prévu au niveau de l'arrière cuisine avec accès direct au garage. Nombreux espaces de rangements prévus.
prix : 233000€hf
Pour toutes informations, contactez l'agence MAISONS FRANCE CONFORT d'Aucamville au (Numéro supprimé)."
Annonce proposée par un Agent Commercial Partenaire.
Logement susceptibles de vous intéresser
Nous vous proposons de découvrir aussi cette sélection de logements situés à moins de 10km de Aucamville et qui seraient susceptibles de vous intéresser.
Larra
TERRAINLarra : terrain de 766 m² à vendrePROCHE DE TOULOUSEÀ deux pas de Toulouse à Larra (31330), grand terrain. Réalisez-y votre résidence principale ou secondaire. Il y a des écoles maternelles et élémentaires à moins de 10 minutes.Quatre autoroutes et la nationale N124 sont accessibles à moins de 19 km. On trouve un tennis, deux boulangeries et une épicerie à quelques minutes à peine.Son prix de vente est de 96 000 €. Contactez nous pour obtenir de plus amples informations sur le terrain, sur les modalités de vente ou sur les démarches à suivre. Maisons France Confort Tournefeuille (Numéro supprimé) est là pour vous accompagner dans tous vos projets immobiliers.Annonce proposée par un Agent Commercial Partenaire.
Larra
TERRAIN ET MAISONVENTE : maison de 5 pièces (120 m²) à LarraPROCHE DE TOULOUSE – MAISON 5 PIÈCES NEUVEÀ vendre : située à deux pas de Toulouse, à Larra (31330), notre agence Maisons France Confort Tournefeuille est heureuse de vous proposer cette maison de 5 pièces de 120 m² et de 766 m² de terrain. Elle se divise en quatre chambres, une cuisine et deux salles de bains.Cette maison compte 2 niveaux. Elle est neuve.Elle est proposée à l’achat pour 364 858 €.N’hésitez pas à prendre contact avec nous pour tout renseignement sur la maison, sur les modalités de vente ou sur les démarches à suivre.Faites de vos projets immobiliers une réalité avec Maisons France Confort Tournefeuille (Numéro supprimé).Hors frais annexes.Annonce proposée par un Agent Commercial Partenaire.
Larra
TERRAIN ET MAISONVENTE d’une maison T4 (120 m²) à LarraPROCHE DE TOULOUSE – MAISON 4 PIÈCES NEUVEÀ vendre : à deux pas de Toulouse, nous vous proposons cette maison de 4 pièces de plain-pied de 120 m² à Larra (31330). Elle se divise en trois chambres, une cuisine et deux salles de bains.Le terrain de la propriété s’étend sur 766 m².Cette maison est neuve.Son prix de vente est de 356 895 €.Prenez contact avec nous pour toute question sur cette maison, sur les modalités de vente ou sur les démarches à suivre. Faites de vos projets immobiliers une réalité avec Maisons France Confort Tournefeuille (Numéro supprimé).Hors frais annexes.Annonce proposée par un Agent Commercial Partenaire.
Larra
TERRAIN ET MAISONVENTE d’une maison T4 (95 m²) à LarraPROCHE DE TOULOUSE – MAISON 4 PIÈCES NEUVEÀ vendre à deux pas de Toulouse, à Larra (31330), Maisons France Confort Tournefeuille vous présente cette maison de 4 pièces de plain-pied de 95 m² et de 766 m² de terrain.Conçue de plain-pied, elle comporte trois chambres, une cuisine et une salle de bains. Cette maison est neuve.Elle est à vendre pour la somme de 274 256 €.Contactez notre agence pour tout renseignement sur la maison, sur les modalités de vente ou sur les démarches à suivre. Maisons France Confort Tournefeuille (Numéro supprimé) vous accompagne dans tous vos projets immobiliers et dans toutes vos démarches.Hors frais annexes.Annonce proposée par un Agent Commercial Partenaire.
Larra
TERRAIN ET MAISONVENTE d’une maison de 3 pièces (50 m²) à LarraMAISON 3 PIÈCES NEUVE – PROCHE DE TOULOUSEEn vente à 22 km de Toulouse, à Larra (31330), notre agence Maisons France Confort Tournefeuille est heureuse de vous présenter cette maison de 3 pièces de plain-pied de 50 m² et de 766 m² de terrain.Conçue de plain-pied, elle dispose de deux chambres, d’une cuisine et d’une salle de bains. La maison est neuve.Elle est à vendre pour la somme de 225 682 €.N’hésitez pas à prendre contact avec notre constructeur pour tout renseignement sur la maison ou sur les démarches à suivre. Concrétisez vos projets immobiliers avec Maisons France Confort Tournefeuille (Numéro supprimé).Hors frais annexes.Annonce proposée par un Agent Commercial Partenaire.
Verdun-sur-Garonne
TERRAINTerrain de 600 m² à vendre à Verdun-sur-Garonne avec l’agence Maisons France Confort de Tournefeuille au (Numéro supprimé).Idéalement situé, proche de Montauban, ce grand terrain est prêt à accueillir votre résidence principale ou secondaire pour toute la famille. Pour les tout-petits, une crèche se trouve à moins de 10 minutes à pied. Côté transports, les gares de Dieupentale, Grisolles et Montbartier sont accessibles en moins de 10 minutes en voiture. Les autoroutes A20 et A62 se trouvent à moins de 11 km. La commune dispose de deux terrains de tennis, d’une bibliothèque, de deux boulangeries, de quatre commerces, d’un supermarché, d’une boucherie-charcuterie et d’un bureau de poste à proximité. Enfin, le marché de la Place de l’Éperon se tient tous les vendredis matin.Ce terrain est proposé à la vente pour la somme de 79 000 €. Contactez notre agence Maisons France Confort de Tournefeuille au (Numéro supprimé) pour obtenir de plus amples renseignements sur ce terrain, sur les modalités de vente et sur les démarches à suivre. Maisons France Confort Tournefeuille vous accompagne à toutes les étapes de l’achat.Annonce proposée par un Agent Commercial Partenaire.
Verdun-sur-Garonne
TERRAIN ET MAISONVENTE : maison T5 (101 m²) à Verdun-sur-Garonne avec l’agence Maisons France Confort de Tournefeuille au (Numéro supprimé)Idéalement située, maison 5 pièces neuveÀ vendre à deux pas de Montauban, Maisons France Confort Tournefeuille vous propose, idéalement située dans Verdun-sur-Garonne (82600), cette maison de 5 pièces de plain-pied de 101 m² sur un terrain de 600 m². Conçue de plain-pied, elle dispose de quatre chambres, d’une cuisine et d’une salle de bains. Cette maison est neuve.La maison se trouve dans un quartier convoité. L’École Maternelle Jules Verne et l’École Élémentaire Dareysse sont implantées à moins de 10 minutes à pied, tout comme une structure d’accueil pour les enfants en bas âge. Côté transports, les gares de Dieupentale, Grisolles et Montbartier sont accessibles en moins de 10 minutes en voiture. Les autoroutes A20 et A62 se trouvent à moins de 11 km. La commune dispose de deux terrains de tennis, d’une bibliothèque, de deux boulangeries, de quatre commerces, d’un supermarché, d’un bureau de poste et d’une boucherie-charcuterie à proximité. Enfin, le marché de la Place de l’Éperon se tient chaque vendredi matin.Cette maison est proposée à la vente pour la somme de 256 874 €.Prenez contact avec l’agence Maisons France Confort de Tournefeuille au (Numéro supprimé) pour toute question sur la maison, sur les modalités de vente ou sur les démarches à suivre.Annonce proposée par un Agent Commercial Partenaire.
Verdun-sur-Garonne
TERRAIN ET MAISONMaison F3 (50 m²) en vente à Verdun-sur-Garonne avec l’agence Maisons France Confort de Tournefeuille au (Numéro supprimé)Idéalement située, maison 3 pièces neuveÀ vendre à 23 km de Montauban, nous vous présentons cette maison de 3 pièces de plain-pied de 50 m² sur un terrain de 600 m², idéalement située à Verdun-sur-Garonne (82600). Son intérieur comprend deux chambres, une cuisine et une salle de bains. Cette maison est neuve.La maison se trouve dans un secteur prisé. L’École Maternelle Jules Verne et l’École Élémentaire Dareysse sont implantées à moins de 10 minutes à pied, ainsi qu’une structure d’accueil pour les enfants en bas âge. Côté transports, les gares de Dieupentale, Grisolles et Montbartier sont accessibles en moins de 10 minutes en voiture. Les autoroutes A20 et A62 se trouvent à moins de 11 km. La commune dispose de deux terrains de tennis, d’une bibliothèque, de deux boulangeries, de quatre commerces, d’un supermarché, d’une boucherie-charcuterie et d’un bureau de poste à proximité. Le marché de la Place de l’Éperon se tient chaque vendredi matin.Cette maison est proposée à la vente pour la somme de 199 874 €.Contactez l’agence Maisons France Confort de Tournefeuille au (Numéro supprimé) pour plus de renseignements sur la maison, sur les modalités de vente ou sur les démarches à suivre. Maisons France Confort Tournefeuille vous accompagne à toutes les étapes de votre projet.Annonce proposée par un Agent Commercial Partenaire.
Verdun-sur-Garonne
TERRAIN ET MAISONVENTE d’une maison de 5 pièces (113 m²) à Verdun-sur-Garonne avec l’agence Maisons France Confort de Tournefeuille au (Numéro supprimé)Idéalement située, maison 5 pièces neuveÀ quelques kilomètres de Montauban, à vendre, idéalement située à Verdun-sur-Garonne (82600), notre agence Maisons France Confort Tournefeuille est heureuse de vous présenter cette maison de 5 pièces de plain-pied de 113 m² sur un terrain de 600 m².Conçue de plain-pied, elle propose quatre chambres, une cuisine et deux salles de bains. Cette maison est neuve.La maison se situe dans un secteur recherché. L’École Maternelle Jules Verne et l’École Élémentaire Dareysse se trouvent à moins de 10 minutes à pied, tout comme une crèche. Côté transports, les gares de Dieupentale, Grisolles et Montbartier sont accessibles à moins de 10 minutes en voiture. Les autoroutes A20 et A62 sont accessibles à moins de 11 km. La commune dispose de deux terrains de tennis, d’une bibliothèque, de deux boulangeries, de quatre commerces, d’un supermarché, d’un bureau de poste et d’une boucherie-charcuterie à proximité. Le marché de la Place de l’Éperon se tient tous les vendredis matin.Le prix de vente est de 405 178 €.N’hésitez pas à prendre contact avec l’agence Maisons France Confort de Tournefeuille au (Numéro supprimé) pour obtenir de plus amples renseignements sur la maison ou sur les démarches à suivre.Annonce proposée par un Agent Commercial Partenaire.
L’actualité immobilière à Aucamville
27/11/2023
02/11/2023
30/10/2023
20/10/2023
16/10/2023
16/10/2023