Maison à construire à Dieupentale (82170)
Images
Description
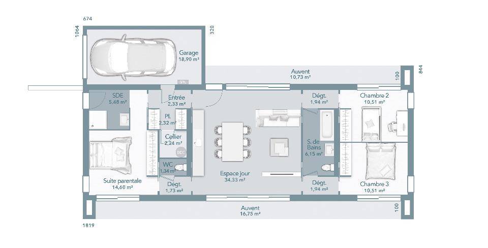
Terrain Viabilisé de 570 m² + Maison California 95 à Construire vers la commune de DIEUPENTALE à 7 min - L'Excellence à portée de main avec Maisons France Confort !
Sur ce terrain viabilisé et idéalement situé, optez pour la California 95, un modèle moderne et fonctionnel de 95 m². Avec 3 chambres, un grand espace de vie ouvert et un garage intégré, cette maison est parfaite pour une vie familiale épanouie et un confort quotidien.
Pourquoi choisir Maisons France Confort ?
Le leader de la construction de maisons individuelles en France
California 95 : design épuré, optimisation de l'espace, performance énergétique
Accompagnement complet : de la recherche du terrain à la remise des clés
Qualité et fiabilité : une maison pensée pour durer, avec un suivi personnalisé à chaque étape
Ne laissez pas passer cette opportunité !
Prix terrain+ maison: 312 516€ HF
Contactez-nous dès aujourd'hui pour une étude gratuite et découvrez comment réaliser votre projet immobilier avec le leader de la construction en France. Agence MAISONS FRANCE CONFORT d'Aucamville au (Numéro supprimé).
Annonce proposée par un Agent Commercial Partenaire.
Logement susceptibles de vous intéresser
Nous vous proposons de découvrir aussi cette sélection de logements situés à moins de 10km de Dieupentale et qui seraient susceptibles de vous intéresser.
Ondes
TERRAINOc Résidences, constructeur de maisons depuis 1983 vous propose :🏡 Nouveau lotissement sur la commune d’Ondes !Terrains à partir de 79 000 €, avec des superficies allant de 400 m² à 736 m², livrés viabilisés. Lotissement en cours de commercialisation, travaux non encore démarrés, idéal pour anticiper votre projet de construction dès maintenant.🌳 Un environnement calme et agréable, dans une commune recherchée du nord toulousain, parfaite pour une vie de famille à la fois paisible et proche de Toulouse.🚗 Une situation pratique : Ondes se situe à proximité de Grenade-sur-Garonne avec un accès rapide aux grands axes. Écoles, commerces et services sont facilement accessibles pour un quotidien simplifié.📞 Anticipez dès aujourd’hui votre projet de construction !Contactez Oc Résidences au (Numéro supprimé).Constructeur de maisons individuelles depuis plus de 40 ans, nous travaillons avec des partenaires fonciers pour vous proposer les meilleurs terrains et des projets personnalisés adaptés à vos besoins.
Ondes
TERRAIN ET MAISONSur la commune de Ondes, CONSTRUCTION HORIZONTALE, Constructeur de maisons individuelles, propose aux familles souhaitant accéder à la propriété ce beau projet de construction :- LE TERRAIN : 400 m² viabilisé dans un petit lotissement situé dans un chemin très au calme (. Terrain sélectionné et vu pour vous sous réserve de disponibilité et au prix indiqué par notre partenaire foncier). A 25 minutes de Blagnac.- LA MAISON : un T4 de 83 m² + garage accolé de 24 m². Très fonctionnel avec coin jour et coin nuit séparés. Plus de 40 m² de séjour cuisine ouverte, salle de bain équipée, WC séparés, 3 belles chambres avec placards. Système de chauffage air/air réversible. Toutes nos maisons sont conformes à la RE 2020 et sont livrées avec une box domotique + gestion crépusculaire…. Cette version offre un très haut niveau de prestations en termes d’équipements et de personnalisations : différents matériaux et coloris pour les menuiseries extérieures, plusieurs couleurs et combinaisons pour les enduits extérieurs…- LE FINANCEMENT : si besoin un accompagnement auprès de nos partenaires financiers avec des taux préférentiels. Bénéficiez également du PTZ qui revient !Garanties et assurances obligatoires incluses (voir détails en agence). Prix indicatif hors peintures, cuisine, sols des chambres et taxes diverses. Pour tous renseignements complémentaires et étude de projet, n’hésitez pas à contacter : Mme Imren SAHIN au (Numéro supprimé).
Ondes
TERRAIN ET MAISONConstruction Horizontale, constructeur de Maisons individuelles vous propose ce projet de construction d’une maison T4 de 95 m² avec garage accolé de 24 m² situé à Ondes à 25 minutes de Blagnac sur un terrain viabilisé de 438 m².Maison fonctionnelle pensée par un architecte pour valoriser tous les m². Le coin jour est séparé du coin nuit :- Dans le coin nuit : 3 chambres avec emplacements placards, WC séparé et salle de bain équipée d’une baignoire et d’un meuble vasque.- Dans le coin jour : salon-séjour-cuisine ouverte de plus de 50 m². Idéal pour des soirées en famille ou entre amis en toute convivialité !Maison possédant un large choix de personnalisation au niveau des menuiseries et des coloris. Prestations de qualité notamment par son système de chauffage avec la PAC Air/Air. Modèle de maison qui peut se décliner en plusieurs superficies.Toutes nos maisons sont conformes à la RE 2020 et sont livrées avec une box domotique + gestion crépusculaire… Garanties et assurances obligatoires incluses (voir détails en agence). Prix indicatif hors peintures, cuisine, sols des chambres et taxes. Terrain sélectionné et vu pour vous sous réserve de disponibilité et au prix indiqué par notre partenaire foncier. Pour tous renseignements complémentaires et étude de projet, n’hésitez pas à contacter : Mme SAHIN Imren (Numéro supprimé)Sur la commune de Gragnague, Construction Horizontale, constructeur de maison individuelle, vous propose cette jolie maison, de 100m² avec son garage de 24m², offrant 3 chambres spacieuses avec placards, une salle de bain équipée, un séjour/cuisine lumineux et traversant, et un système de chauffage par Clim réversible pour un confort en toutes saisons, sur un terrain de 556m² très bien situé proche de toutes les commodités,Différents projets peuvent être étudier sur ce terrain en fonction de vos souhaits, Pour de plus d’informations, contactez Céline Depré au (Numéro supprimé) ou rendez-vous directement en agence au (Numéro supprimé) pour une étude approfondie de votre projet de construction.
Ondes
TERRAIN ET MAISONLa millenium 4 chambres est le plain-pied idéal pour toute la famille. La villa se compose d’un vaste et lumineux Salon/Séjour doté d’une grande baie vitrée attenant à un garage. Le coté nuit s’articule autour de 4 chambres avec placard, un WC indépendant et une grande salle de bains. Cette maison, d’architecture sobre et élégante, est à construire dans le département du Tarn, l’Aude, l’Hérault, la Haute-Garonne ainsi que les Pyrénées Orientales par Oc résidences, votre constructeur sur mesure en Occitanie.
Ondes
TERRAIN ET MAISONLe modèle AUSTRAL 93 est une maison à étage aux lignes sobres et épurées. Son Salon/Séjour de plus de 39 m² m² offre un bel espace de vie à toute la famille. Un garage attenant à l’espace cuisine augmentera vos espaces de rangements. A l’étage, vous trouverez quatre chambres avec placard et une salle de bains. Le modèle AUSTRAL 93 est une maison familiale et coquette qui plaira par son agencement pensé pour votre confort de vie, par Oc résidences, votre constructeur sur mesure en Occitanie.
Ondes
TERRAIN ET MAISONLa SOLAIRE vous assure des volumes généreux et permet de profiter pleinement de la lumière grâce à ses nombreuses ouvertures. Moderne, cette villa vous donne de nombreuses possibilités en termes de disposition des pièces.Sa pièce de vie centrale de 53 m² vous donne accès sur une aile de la maison composée de trois chambres et une salle de bain et sur l’autre, une belle suite parentale indépendante. Sa forme de U vous permet aussi un aménagement extérieur design, avec une grande terrasse ou une piscine au milieu. Sa toiture pourra être décliné de plusieurs manières, afin d’harmoniser son architecture à votre goût.La SOLAIRE est à construire par OC Résidences, votre constructeur sur mesure du Tarn, l’Aude, l’Hérault, la Haute-Garonne ainsi que les Pyrénées Orientales.
Ondes
TERRAIN ET MAISONCONSTRUCTION HORIZONTALE, Constructeur de maisons individuelles, propose aux familles souhaitant accéder à la propriété ce beau projet de construction :- LE TERRAIN : 528 m² viabilisé à Ondes à 25 minutes de Blagnac. (Terrain sélectionné et vu pour vous sous réserve de disponibilité et au prix indiqué par notre partenaire foncier)- LA MAISON : un T5 de 112 m² et 25 m² de garage accolé. Très fonctionnelle avec coin jour et coin nuit séparés. 50 m² de séjour cuisine ouverte, salle de bain équipée, wc séparés, 4 belles chambres avec placards. Système de chauffage air/air réversible. Toutes nos maisons sont conformes à la RE 2020 et sont livrées avec une box domotique + gestion crépusculaire…. Cette version offre un très haut niveau de prestations en termes d’équipements et de personnalisations : différents matériaux et coloris pour les menuiseries extérieures, plusieurs couleurs et combinaisons pour les enduits extérieurs…- LE FINANCEMENT : si besoin, un accompagnement auprès de nos partenaires financiers pour profiter de taux préférentiels (sans engagement et gratuit) + Bénéficiez du PTZ qui revient !Garanties et assurances obligatoires incluses (voir détails en agence). Prix indicatif hors peintures, cuisine, sols des chambres et taxes diverses. Pour tous renseignements complémentaires et étude de projet, n’hésitez pas à contacter : Mme Imren SAHIN au (Numéro supprimé).
Ondes
TERRAIN ET MAISONLe modèle ZEPHYR 87 m² est une maison aux lignes sobres et authentiques qui saura vous séduire par son aménagement intérieur conçu pour optimiser votre confort. Ce pavillon vous offre trois chambres, une salle de bains, un bel espace vie de plus de 41 m² et un garage de 14 m², facilement transformable en une quatrième chambre. Cette maison sera répondre aux normes accessibilité. Votre projet de vie est à construire dans le département du Tarn, l’Aude, l’Hérault, la Haute-Garonne ainsi que les Pyrénées Orientales par Oc résidences, votre constructeur sur mesure en Occitanie.
Ondes
TERRAINLot numéro 6 – Surface 400m² – SDP m² – À environ 25 km au nord-ouest de Toulouse, Ondes bénéficie d’un emplacement stratégique à proximité de Castelnau-d’Estrétefonds, Grenade, du pôle aéronautique de Blagnac et des bassins d’emploi du nord toulousain.Ce village paisible, bordé par la Garonne, séduit par son authenticité et son cadre naturel. Les habitants y trouvent une école, des commerces essentiels, et une vie associative discrète mais présente, qui participe à l’équilibre et à la convivialité du quotidien.À seulement 450 mètres du c?ur du village, Le Square des Grives propose 15 terrains à bâtir dans un environnement paysager particulièrement soigné. L’opération s’intègre dans un décor arboré et harmonieux, pensé pour offrir un cadre de vie durable et agréable à ses futurs habitants.Vivre à Ondes, c’est faire le choix d’une vie tranquille, proche de la nature? et de ToulousePA 03140324W0002 du 09/07/2025 consultable en mairie d’ONDES
L’actualité immobilière à Dieupentale
27/11/2023
02/11/2023
30/10/2023
20/10/2023
16/10/2023
16/10/2023