Maison à construire à Fabas (82170)
Images
Description
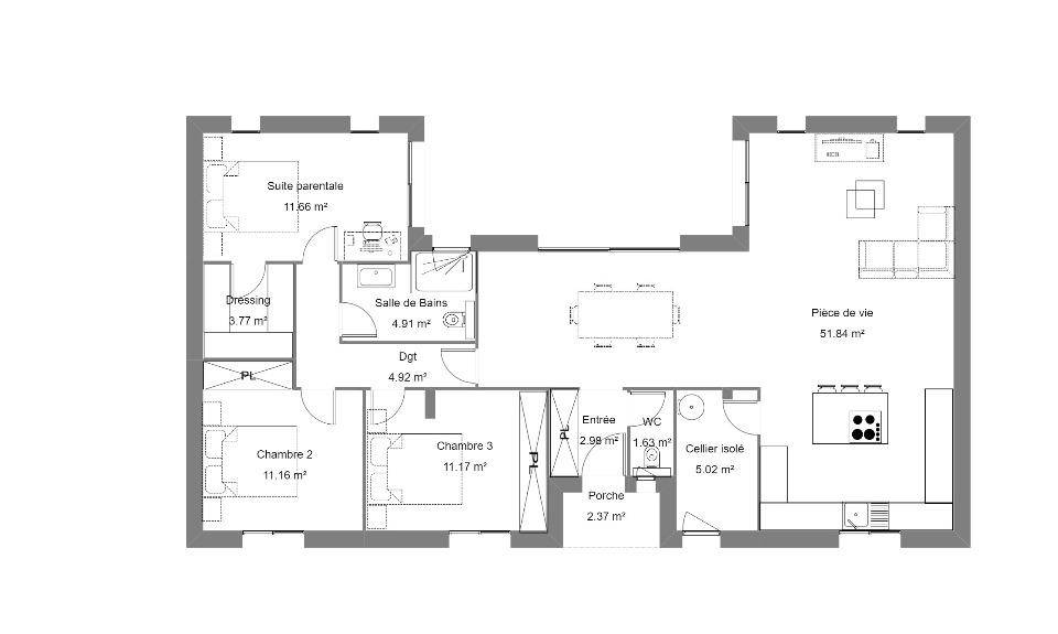
Bienvenue dans cette charmante résidence en U, une véritable oasis de confort et de sophistication. Cette maison exceptionnelle de 110 m² offre un cadre de vie raffiné et fonctionnel, alliant élégance moderne et design intemporel à 5 min de FRONTON.
Dès l'entrée, vous serez accueilli par un espace lumineux et aéré qui s'étend harmonieusement sur trois côtés de la maison, créant ainsi une atmosphère chaleureuse et conviviale. Les grandes baies vitrées et les portes-fenêtres laissent généreusement pénétrer la lumière naturelle, créant une sensation d'espace et mettant en valeur les finitions de qualité.
La cuisine, véritable joyau de cette demeure, allie esthétisme et fonctionnalité. Équipée de matériaux haut de gamme et d'appareils modernes, elle est le lieu idéal pour exprimer vos talents culinaires. L'îlot central crée un point focal élégant et favorise la convivialité, invitant à partager de délicieux repas en famille et entre amis.
Les trois chambres à coucher, spacieuses et lumineuses, offrent des retraites privées où le confort et le bien-être sont prioritaires. Les matériaux de qualité et la palette de couleurs apaisantes créent une ambiance propice à la détente, tandis que les placards intégrés assurent un rangement optimal, combinant ainsi style et fonctionnalité.
Le jardin intérieur, véritable coeur de la maison en U, constitue un espace extérieur privilégié. Intimiste et bien aménagé, il vous offre un refuge tranquille pour profiter des journées ensoleillées ou des soirées étoilées, créant ainsi une connexion harmonieuse entre l'intérieur et l'extérieur.
Investissement terrain + maison: 376 055€ (hors frais annexes)
Contactez-nous pour une étude gratuite et découvrez comment passer du rêve à la réalité avec le leader de la construction en France: Agence MAISONS FRANCE CONFORT d'Aucamville au (Numéro supprimé).
Annonce proposée par un Agent Commercial Partenaire.
Logement susceptibles de vous intéresser
Nous vous proposons de découvrir aussi cette sélection de logements situés à moins de 10km de Fabas et qui seraient susceptibles de vous intéresser.
Verdun-sur-Garonne
TERRAINTerrain de 600 m² à vendre à Verdun-sur-Garonne avec l’agence Maisons France Confort de Tournefeuille au (Numéro supprimé).Idéalement situé, proche de Montauban, ce grand terrain est prêt à accueillir votre résidence principale ou secondaire pour toute la famille. Pour les tout-petits, une crèche se trouve à moins de 10 minutes à pied. Côté transports, les gares de Dieupentale, Grisolles et Montbartier sont accessibles en moins de 10 minutes en voiture. Les autoroutes A20 et A62 se trouvent à moins de 11 km. La commune dispose de deux terrains de tennis, d’une bibliothèque, de deux boulangeries, de quatre commerces, d’un supermarché, d’une boucherie-charcuterie et d’un bureau de poste à proximité. Enfin, le marché de la Place de l’Éperon se tient tous les vendredis matin.Ce terrain est proposé à la vente pour la somme de 79 000 €. Contactez notre agence Maisons France Confort de Tournefeuille au (Numéro supprimé) pour obtenir de plus amples renseignements sur ce terrain, sur les modalités de vente et sur les démarches à suivre. Maisons France Confort Tournefeuille vous accompagne à toutes les étapes de l’achat.Annonce proposée par un Agent Commercial Partenaire.
Verdun-sur-Garonne
TERRAIN ET MAISONVENTE : maison T5 (101 m²) à Verdun-sur-Garonne avec l’agence Maisons France Confort de Tournefeuille au (Numéro supprimé)Idéalement située, maison 5 pièces neuveÀ vendre à deux pas de Montauban, Maisons France Confort Tournefeuille vous propose, idéalement située dans Verdun-sur-Garonne (82600), cette maison de 5 pièces de plain-pied de 101 m² sur un terrain de 600 m². Conçue de plain-pied, elle dispose de quatre chambres, d’une cuisine et d’une salle de bains. Cette maison est neuve.La maison se trouve dans un quartier convoité. L’École Maternelle Jules Verne et l’École Élémentaire Dareysse sont implantées à moins de 10 minutes à pied, tout comme une structure d’accueil pour les enfants en bas âge. Côté transports, les gares de Dieupentale, Grisolles et Montbartier sont accessibles en moins de 10 minutes en voiture. Les autoroutes A20 et A62 se trouvent à moins de 11 km. La commune dispose de deux terrains de tennis, d’une bibliothèque, de deux boulangeries, de quatre commerces, d’un supermarché, d’un bureau de poste et d’une boucherie-charcuterie à proximité. Enfin, le marché de la Place de l’Éperon se tient chaque vendredi matin.Cette maison est proposée à la vente pour la somme de 256 874 €.Prenez contact avec l’agence Maisons France Confort de Tournefeuille au (Numéro supprimé) pour toute question sur la maison, sur les modalités de vente ou sur les démarches à suivre.Annonce proposée par un Agent Commercial Partenaire.
Verdun-sur-Garonne
TERRAIN ET MAISONMaison F3 (50 m²) en vente à Verdun-sur-Garonne avec l’agence Maisons France Confort de Tournefeuille au (Numéro supprimé)Idéalement située, maison 3 pièces neuveÀ vendre à 23 km de Montauban, nous vous présentons cette maison de 3 pièces de plain-pied de 50 m² sur un terrain de 600 m², idéalement située à Verdun-sur-Garonne (82600). Son intérieur comprend deux chambres, une cuisine et une salle de bains. Cette maison est neuve.La maison se trouve dans un secteur prisé. L’École Maternelle Jules Verne et l’École Élémentaire Dareysse sont implantées à moins de 10 minutes à pied, ainsi qu’une structure d’accueil pour les enfants en bas âge. Côté transports, les gares de Dieupentale, Grisolles et Montbartier sont accessibles en moins de 10 minutes en voiture. Les autoroutes A20 et A62 se trouvent à moins de 11 km. La commune dispose de deux terrains de tennis, d’une bibliothèque, de deux boulangeries, de quatre commerces, d’un supermarché, d’une boucherie-charcuterie et d’un bureau de poste à proximité. Le marché de la Place de l’Éperon se tient chaque vendredi matin.Cette maison est proposée à la vente pour la somme de 199 874 €.Contactez l’agence Maisons France Confort de Tournefeuille au (Numéro supprimé) pour plus de renseignements sur la maison, sur les modalités de vente ou sur les démarches à suivre. Maisons France Confort Tournefeuille vous accompagne à toutes les étapes de votre projet.Annonce proposée par un Agent Commercial Partenaire.
Verdun-sur-Garonne
TERRAIN ET MAISONVENTE d’une maison de 5 pièces (113 m²) à Verdun-sur-Garonne avec l’agence Maisons France Confort de Tournefeuille au (Numéro supprimé)Idéalement située, maison 5 pièces neuveÀ quelques kilomètres de Montauban, à vendre, idéalement située à Verdun-sur-Garonne (82600), notre agence Maisons France Confort Tournefeuille est heureuse de vous présenter cette maison de 5 pièces de plain-pied de 113 m² sur un terrain de 600 m².Conçue de plain-pied, elle propose quatre chambres, une cuisine et deux salles de bains. Cette maison est neuve.La maison se situe dans un secteur recherché. L’École Maternelle Jules Verne et l’École Élémentaire Dareysse se trouvent à moins de 10 minutes à pied, tout comme une crèche. Côté transports, les gares de Dieupentale, Grisolles et Montbartier sont accessibles à moins de 10 minutes en voiture. Les autoroutes A20 et A62 sont accessibles à moins de 11 km. La commune dispose de deux terrains de tennis, d’une bibliothèque, de deux boulangeries, de quatre commerces, d’un supermarché, d’un bureau de poste et d’une boucherie-charcuterie à proximité. Le marché de la Place de l’Éperon se tient tous les vendredis matin.Le prix de vente est de 405 178 €.N’hésitez pas à prendre contact avec l’agence Maisons France Confort de Tournefeuille au (Numéro supprimé) pour obtenir de plus amples renseignements sur la maison ou sur les démarches à suivre.Annonce proposée par un Agent Commercial Partenaire.
Grisolles
TERRAINVENTE : terrain de 600 m² à Grisolles avec l’agence Maisons France Confort de Tournefeuille au (Numéro supprimé)Idéalement situé, proche de ToulouseÀ vendre à deux pas de Toulouse, à Grisolles (82170), grand terrain. Il se situe dans un secteur attractif. Trois établissements scolaires se trouvent à moins de 10 minutes à pied, comme le Collège Jean Lacaze ou l’École Élémentaire Le Grand Cèdre, ainsi qu’une structure d’accueil pour la petite enfance. Côté transports, la gare de Grisolles est à environ 1 km et l’autoroute A62 est accessible à 10 km. La commune dispose de quatre commerces, deux boulangeries, un bureau de poste, une épicerie et une boucherie-charcuterie à quelques minutes. Le marché de la Place de l’Église se tient chaque mercredi matin.Ce terrain est proposé à l’achat pour 85 000 €. Prenez contact avec notre agence Maisons France Confort de Tournefeuille au (Numéro supprimé) pour tout renseignement sur le terrain, les démarches à suivre et les modalités de vente. Réalisez vos projets immobiliers avec Maisons France Confort Tournefeuille.Annonce proposée par un Agent Commercial Partenaire.
Grisolles
TERRAIN ET MAISONVENTE : maison de 5 pièces (101 m²) à Grisolles avec l’agence Maisons France Confort de Tournefeuille au (Numéro supprimé)Idéalement située – maison 5 pièces neuveÀ vendre à 27 km de Toulouse, idéalement située dans Grisolles (82170), Maisons France Confort Tournefeuille vous propose cette maison de 5 pièces de plain-pied de 101 m² sur un terrain de 600 m².Elle se compose de quatre chambres, d’une cuisine et d’une salle de bains. Cette maison est neuve.La maison est située dans un secteur convoité. Trois établissements scolaires se trouvent à moins de 10 minutes à pied, dont le Collège Jean Lacaze et l’École Élémentaire Le Grand Cèdre, ainsi qu’une structure d’accueil pour les tout-petits. Côté transports en commun, la gare de Grisolles est à proximité et l’autoroute A62 est accessible à 10 km. La commune dispose de quatre commerces, deux boulangeries, une épicerie, un bureau de poste et une boucherie-charcuterie à quelques minutes. Le marché de la Place de l’Église se tient tous les mercredis matin.Cette maison est proposée à l’achat pour 279 841 €.Contactez l’agence Maisons France Confort de Tournefeuille au (Numéro supprimé) pour obtenir de plus amples renseignements sur la maison ou sur les démarches à suivre. Concrétisez vos projets immobiliers avec Maisons France Confort Tournefeuille.Annonce proposée par un Agent Commercial Partenaire.
Grisolles
TERRAIN ET MAISONGrisolles : maison T4 (81 m²) à vendre avec l’agence Maisons France Confort de Tournefeuille au (Numéro supprimé)Idéalement située – maison 4 pièces neuveÀ vendre à 27 km de Toulouse, idéalement située dans Grisolles (82170), nous sommes heureux de vous présenter cette maison de 4 pièces de plain-pied de 81 m² sur un terrain de 600 m². Elle comprend trois chambres, une cuisine et une salle de bains.La maison est neuve.Cette maison se situe dans un secteur prisé. Trois établissements scolaires se trouvent à moins de 10 minutes à pied, dont le Collège Jean Lacaze et l’École Élémentaire Le Grand Cèdre, ainsi qu’une crèche. Côté transports, la gare de Grisolles est à proximité. L’autoroute A62 est accessible à 10 km. La commune dispose de quatre commerces, deux boulangeries, une boucherie-charcuterie, une épicerie et un bureau de poste. Enfin, le marché de la Place de l’Église anime le quartier tous les mercredis matin.Cette maison est proposée à la vente pour 259 874 €.Contactez notre agence Maisons France Confort de Tournefeuille au (Numéro supprimé) pour toute question sur la maison ou sur les démarches à suivre. Faites de vos projets immobiliers une réalité avec Maisons France Confort Tournefeuille.Annonce proposée par un Agent Commercial Partenaire.
Grisolles
TERRAIN ET MAISONVENTE : maison F3 (50 m²) à Grisolles avec l’agence Maisons France Confort de Tournefeuille au (Numéro supprimé)Idéalement située – maison 3 pièces neuveÀ vendre à 27 km de Toulouse, nous vous présentons cette maison de 3 pièces de plain-pied de 50 m² sur un terrain de 600 m², idéalement située dans Grisolles (82170).Son intérieur comprend deux chambres, une cuisine et une salle de bains. Cette maison est neuve.La maison se trouve dans un secteur attractif. Trois établissements scolaires se trouvent à moins de 10 minutes à pied, dont le Collège Jean Lacaze et l’École Élémentaire Le Grand Cèdre, ainsi qu’une crèche. Côté transports, la gare de Grisolles est à proximité. L’autoroute A62 est accessible à 10 km. La commune dispose de quatre commerces, deux boulangeries, une épicerie, un bureau de poste et une boucherie-charcuterie. Enfin, le marché de la Place de l’Église anime les environs chaque mercredi matin.Cette maison est proposée à l’achat pour 224 785 €.Prenez contact avec l’agence Maisons France Confort de Tournefeuille au (Numéro supprimé) pour obtenir plus de renseignements sur la propriété ou sur les modalités de vente.Annonce proposée par un Agent Commercial Partenaire.
Grisolles
TERRAIN ET MAISONVENTE d’une maison F5 (98 m²) à Grisolles avec l’agence Maisons France Confort de Tournefeuille au (Numéro supprimé)Idéalement située – maison 5 pièces neuveÀ quelques kilomètres de Toulouse, nous sommes heureux de vous proposer à la vente, idéalement située dans Grisolles (82170), cette maison de 5 pièces de 98 m² sur un terrain de 600 m². Elle comprend quatre chambres, une cuisine et une salle de bains.Il s’agit d’une maison de 2 niveaux. Elle est neuve.La maison se situe dans un secteur attractif. Trois établissements scolaires sont implantés à moins de 10 minutes à pied, dont le Collège Jean Lacaze et l’École Élémentaire Le Grand Cèdre, ainsi qu’une structure d’accueil pour les tout-petits. Côté transports, la gare de Grisolles est à quelques pas. L’accès à l’autoroute A62 se fait à 10 km. La commune dispose de quatre commerces, deux boulangeries, une boucherie-charcuterie, un bureau de poste et une épicerie à proximité. Le marché de la Place de l’Église anime le quartier chaque mercredi matin.Cette maison est proposée à l’achat pour 286 987 €.Prenez contact avec l’agence Maisons France Confort de Tournefeuille au (Numéro supprimé) pour obtenir tout renseignement sur la maison, sur les modalités de vente ou sur les démarches à suivre.Annonce proposée par un Agent Commercial Partenaire.
L’actualité immobilière à Fabas
27/11/2023
02/11/2023
30/10/2023
20/10/2023
16/10/2023
16/10/2023