Maison à construire à Labastide-du-Temple (82100)
Images
Description
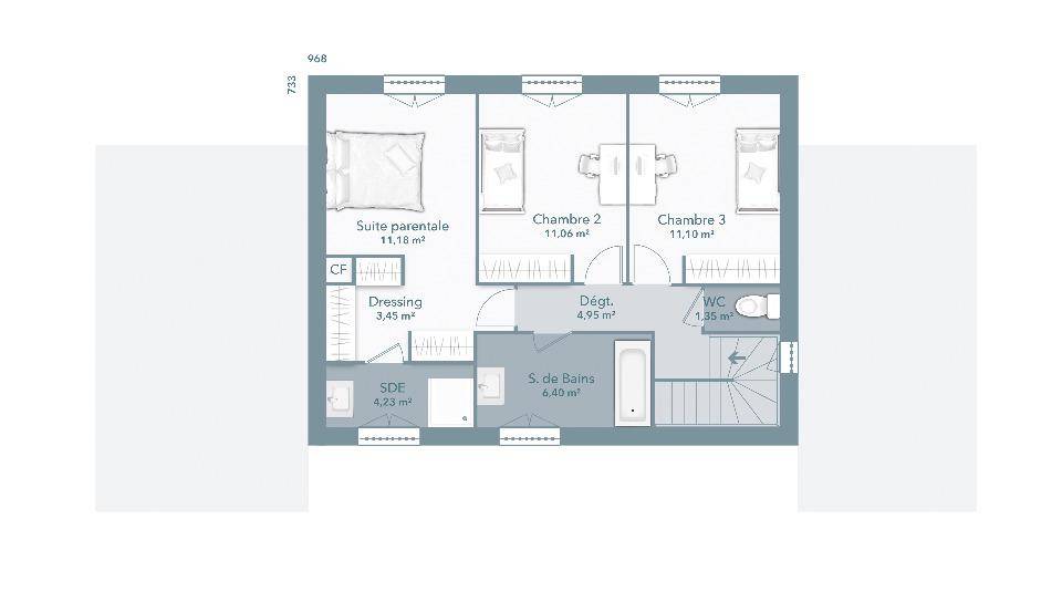
Maison de 6 pièces (130 m²) en vente à Labastide-du-Temple avec l'agence Maisons France Confort de Tournefeuille au (Numéro supprimé)
EMPLACEMENT PRIVILÉGIÉ - MAISON 6 PIÈCES NEUVE
En vente : située à 15 km de Montauban, nous vous présentons cette maison de 6 pièces de 130 m² et de 1 000 m² de terrain bénéficiant d'un emplacement d'exception dans Labastide-du-Temple (82100). Son intérieur compte quatre chambres, une cuisine et trois salles de bains.
Il s'agit d'une maison de 2 niveaux. Elle est neuve.
La maison se situe dans un quartier recherché. L'École Primaire le Petit Prince est implantée à moins de 10 minutes à pied. Côté transports en commun, on trouve trois gares (La Ville-Dieu-du-Temple, Castelsarrasin et Moissac) à moins de 10 minutes en voiture. Il y a un accès à l'autoroute A62 à 9 km. Il y a un tennis, une bibliothèque et une boulangerie dans les environs.
Elle est proposée à l'achat pour 259 874 €.
N'hésitez pas à prendre contact avec l'agence Maisons France Confort de Tournefeuille au (Numéro supprimé) pour toute question sur la maison, sur les démarches à suivre ou sur les modalités de vente. Maisons France Confort Tournefeuille vous accompagne à toutes les étapes de votre projet et dans tous vos projets immobiliers.
Annonce proposée par un Agent Commercial Partenaire.
Logement susceptibles de vous intéresser
Nous vous proposons de découvrir aussi cette sélection de logements situés à moins de 10km de Labastide-du-Temple et qui seraient susceptibles de vous intéresser.
La Ville-Dieu-du-Temple
TERRAIN ET MAISONLe modèle Elza est une maison de plain-pied de 106 m² à l’architecture contemporaine en L. Elle s’articule autour de trois chambres dont une suite parentale avec salle d’eau et dressing, d’une salle de bain et d’un wc séparé. La pièce de vie est fonctionnelle avec une cuisine ouverte sur le séjour de plus de 42m² .Enfin, la maison dispose d’un beau garage de 15 m² qui peut accueillir un véhicule, d’un cellier et d’une pièce bureau de 9m².Tous nos modèles de maison peuvent être personnalisés en fonction de vos besoins et envies !Dans la commune de Ville-Dieu-Du-Temple, nous vous présentons ce joli terrain viabilisé de 730 m² avec une très belle exposition et proche des commodités de proximité : commerces, groupes scolaires & restaurants. Situé à 10 minutes de Montauban et une minute seulement du centre, cette parcelle fait partie d’un lotissement d’une dizaine de lots.
Montbeton
TERRAINDans la charmante commune de Montbeton, située dans le département du Tarn-Et-Garonne, nous vous proposons ce terrain de 940 m² viabilisé et disposant du tout à l’égout, il est issu d’un lotissement de 13 lots seulement.Vous pourrez vous laisser séduire par les Gorges de l’Aveyron et le canal de Montech pour des balades inoubliables !N’hésitez plus, contactez notre agence et programmez votre visite !
La Ville-Dieu-du-Temple
TERRAINTerrain de 1 000 m² en vente à La Ville-Dieu-du-Temple avec l’agence Maisons France Confort de Tournefeuille au (Numéro supprimé)IDÉALEMENT SITUÉ – PROCHE DE MONTAUBANProche de la gare à La Ville-Dieu-du-Temple (82290), grand terrain. Il y a l’École Primaire Jules Ferry à moins de 10 minutes à pied. Niveau transports en commun, on trouve la gare La Ville-Dieu-du-Temple dans les environs. L’autoroute A62 est accessible à 10 km et Montauban est située à 12 km. On trouve un tennis, une bibliothèque, trois boulangeries, un supermarché, un bureau de poste et trois boucheries-charcuteries à proximité.Il est à vendre pour la somme de 55 000 €. Prenez contact avec l’agence Maisons France Confort de Tournefeuille au (Numéro supprimé) pour plus de renseignements sur ce terrain ou sur les modalités de vente. Maisons France Confort Tournefeuille vous accompagne dans tous vos projets immobiliers et dans toutes vos démarches.Annonce proposée par un Agent Commercial Partenaire.
La Ville-Dieu-du-Temple
TERRAIN ET MAISONVENTE : maison de 5 pièces (101 m²) à La Ville-Dieu-du-Temple avec l’agence Maisons France Confort de Tournefeuille au (Numéro supprimé)IDÉALEMENT SITUÉE – MAISON 5 PIÈCES NEUVEÀ 205 m de la gare, laissez vous charmer par cette maison de 5 pièces de plain-pied de 101 m² à vendre, idéalement située dans La Ville-Dieu-du-Temple (82290). Son intérieur offre quatre chambres, une cuisine et une salle de bains.Le terrain du bien est de 1 000 m².Cette maison est neuve.Cette maison se trouve dans un quartier prisé. Il y a l’École Primaire Jules Ferry à moins de 10 minutes à pied. Niveau transports en commun, on trouve la gare La Ville-Dieu-du-Temple à proximité. L’autoroute A62 est accessible à 10 km et Montauban se situe à 12 km. Il y a un tennis, une bibliothèque, trois boulangeries, un supermarché, un bureau de poste et trois boucheries-charcuteries à quelques minutes de la maison.Elle est à vendre pour la somme de 231 478 €.N’hésitez pas à prendre contact avec l’agence Maisons France Confort de Tournefeuille au (Numéro supprimé) pour tout renseignement sur la maison. Maisons France Confort Tournefeuille vous accompagne dans toutes vos démarches et à toutes les étapes de l’achat.Annonce proposée par un Agent Commercial Partenaire.
Labastide-du-Temple
TERRAINVENTE : terrain de 1 000 m² à Labastide-du-Temple avec l’agence Maisons France Confort de Tournefeuille au (Numéro supprimé)EMPLACEMENT PRIVILÉGIÉ – PROCHE DE MONTAUBANEn vente à 15 km de Montauban à Labastide-du-Temple (82100), grand terrain. Il est prêt à accueillir votre projet immobilier pour toute la famille. Il se situe dans un quartier recherché. On trouve l’École Primaire le Petit Prince à moins de 10 minutes à pied. Niveau transports, il y a les gares La Ville-Dieu-du-Temple, Castelsarrasin et Moissac à moins de 10 minutes en voiture. On trouve un accès à l’autoroute A62 à 9 km. On trouve un tennis, une bibliothèque et une boulangerie à proximité.Son prix de vente est de 53 000 €. Contactez l’agence Maisons France Confort de Tournefeuille au (Numéro supprimé) pour toute question sur ce terrain, sur les démarches à suivre ou sur les modalités de vente. Maisons France Confort Tournefeuille est là pour vous accompagner dans tous vos projets immobiliers.Annonce proposée par un Agent Commercial Partenaire.
La Ville-Dieu-du-Temple
TERRAIN ET MAISONLa Ville-Dieu-du-Temple : maison F5 (98 m²) à vendre avec l’agence Maisons France Confort de Tournefeuille au (Numéro supprimé)IDÉALEMENT SITUÉE – MAISON 5 PIÈCES NEUVEÀ 205 m de la gare, nous vous présentons cette maison de 5 pièces de 98 m² et de 1 000 m² de terrain idéalement située dans La Ville-Dieu-du-Temple (82290). Son intérieur comporte quatre chambres, une cuisine et une salle de bains.Il s’agit d’une maison de 2 niveaux. Elle est neuve.La maison se trouve dans un secteur convoité. Il y a l’École Primaire Jules Ferry à moins de 10 minutes à pied. Côté transports en commun, on trouve la gare La Ville-Dieu-du-Temple dans les environs. L’autoroute A62 est accessible à 10 km et Montauban est située à 12 km. On trouve un tennis, une bibliothèque, trois boulangeries, un supermarché, trois boucheries-charcuteries et un bureau de poste à proximité.Elle est proposée à l’achat pour 345 789 €.Contactez notre agence Maisons France Confort de Tournefeuille au (Numéro supprimé) pour plus d’informations sur la maison, sur les modalités de vente ou sur les démarches à suivre.Annonce proposée par un Agent Commercial Partenaire.
La Ville-Dieu-du-Temple
TERRAIN ET MAISONVENTE d’une maison T6 (130 m²) à La Ville-Dieu-du-Temple avec l’agence Maisons France Confort de Tournefeuille au (Numéro supprimé)IDÉALEMENT SITUÉE – MAISON 6 PIÈCES NEUVEÀ proximité de la gare, votre agence Maisons France Confort Tournefeuille est heureuse de vous présenter cette maison de 6 pièces de 130 m² et de 1 000 m² de terrain en vente idéalement située dans La Ville-Dieu-du-Temple (82290).Cette maison compte 2 niveaux. Elle dispose de quatre chambres, d’une cuisine et de trois salles de bains. Cette maison est neuve.Cette maison est située dans un quartier recherché. Il y a l’École Primaire Jules Ferry à moins de 10 minutes à pied. Niveau transports en commun, on trouve la gare La Ville-Dieu-du-Temple dans les environs. On trouve un accès à l’autoroute A62 à 10 km et Montauban se situe à 12 km. Il y a un tennis, une bibliothèque, trois boulangeries, un supermarché, un bureau de poste et trois boucheries-charcuteries à proximité.Son prix de vente est de 263 548 €.Contactez l’agence Maisons France Confort de Tournefeuille au (Numéro supprimé) pour toute information sur la maison. Maisons France Confort Tournefeuille vous accompagne dans tous vos projets immobiliers et à toutes les étapes de votre projet.Annonce proposée par un Agent Commercial Partenaire.
Labastide-du-Temple
TERRAIN ET MAISONMaison F5 (110 m²) en vente à Labastide-du-Temple avec l’agence Maisons France Confort de Tournefeuille au (Numéro supprimé)EMPLACEMENT PRIVILÉGIÉ – MAISON 5 PIÈCES NEUVEÀ vendre à deux pas de Montauban, bénéficiant d’un emplacement privilégié dans Labastide-du-Temple (82100), votre agence Maisons France Confort Tournefeuille est heureuse de vous présenter cette maison de 5 pièces de plain-pied de 110 m² et de 1 000 m² de terrain.Conçue de plain-pied, elle inclut quatre chambres, une cuisine et deux salles de bains. Cette maison est neuve.La maison est située dans un quartier recherché. Il y a l’École Primaire le Petit Prince à moins de 10 minutes à pied. Niveau transports, on trouve trois gares (La Ville-Dieu-du-Temple, Castelsarrasin et Moissac) à moins de 10 minutes en voiture. L’autoroute A62 est accessible à 9 km. Il y a un tennis, une bibliothèque et une boulangerie à quelques minutes.Elle est à vendre pour la somme de 266 897 €.N’hésitez pas à prendre contact avec l’agence Maisons France Confort de Tournefeuille au (Numéro supprimé) pour plus de renseignements sur la maison ou sur les modalités de vente.Annonce proposée par un Agent Commercial Partenaire.
Labastide-du-Temple
TERRAIN ET MAISONMaison de 6 pièces (130 m²) en vente à Labastide-du-Temple avec l’agence Maisons France Confort de Tournefeuille au (Numéro supprimé)EMPLACEMENT PRIVILÉGIÉ – MAISON 6 PIÈCES NEUVEEn vente : située à 15 km de Montauban, nous vous présentons cette maison de 6 pièces de 130 m² et de 1 000 m² de terrain bénéficiant d’un emplacement d’exception dans Labastide-du-Temple (82100). Son intérieur compte quatre chambres, une cuisine et trois salles de bains.Il s’agit d’une maison de 2 niveaux. Elle est neuve.La maison se situe dans un quartier recherché. L’École Primaire le Petit Prince est implantée à moins de 10 minutes à pied. Côté transports en commun, on trouve trois gares (La Ville-Dieu-du-Temple, Castelsarrasin et Moissac) à moins de 10 minutes en voiture. Il y a un accès à l’autoroute A62 à 9 km. Il y a un tennis, une bibliothèque et une boulangerie dans les environs.Elle est proposée à l’achat pour 259 874 €.N’hésitez pas à prendre contact avec l’agence Maisons France Confort de Tournefeuille au (Numéro supprimé) pour toute question sur la maison, sur les démarches à suivre ou sur les modalités de vente. Maisons France Confort Tournefeuille vous accompagne à toutes les étapes de votre projet et dans tous vos projets immobiliers.Annonce proposée par un Agent Commercial Partenaire.
L’actualité immobilière à Labastide-du-Temple
27/11/2023
02/11/2023
30/10/2023
20/10/2023
16/10/2023
16/10/2023