Maison à construire à Montauban (82000)
Images
Description
Montauban : maison T4 (94 m²) en vente avec l'agence maisons rance Confort de tournefeuille au (Numéro supprimé)
PROCHE GARE - MAISON 4 PIÈCES NEUVE
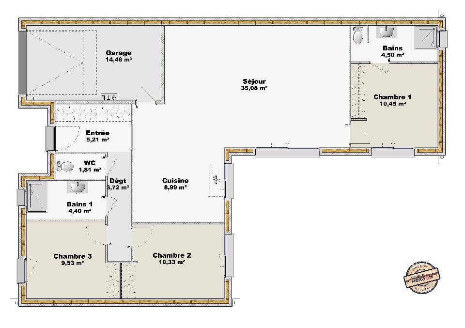
Nous vous présentons à vendre, proche de la gare de Montauban (82000), cette maison de 4 pièces de plain-pied de 94 m².
Conçue de plain-pied, elle compte trois chambres, une cuisine et deux salles de bains. Cette maison est neuve.
Le terrain de la propriété est de 900 m².
Il y a cinq établissements scolaires à moins de 10 minutes à pied, tout comme une crèche. Niveau transports, on trouve la gare Montauban Ville Bourbon à moins de 10 minutes en voiture. L'autoroute A20 est accessible à 4 km. Il y a un supermarché, deux boulangeries, deux épiceries et quatre boucheries-charcuteries à proximité.
Son prix de vente est de 381 475 €.
Contactez l'agence maisons rance Confort de tournefeuille au (Numéro supprimé) pour plus d'informations sur la maison, sur les modalités de vente et sur les démarches à suivre. Maisons France Confort Tournefeuille est là pour vous accompagner dans tous vos projets immobiliers.
Annonce proposée par un Agent Commercial Partenaire.
Logement susceptibles de vous intéresser
Nous vous proposons de découvrir aussi cette sélection de logements situés à moins de 10km de Montauban et qui seraient susceptibles de vous intéresser.
Montauban
TERRAINTERRAIN 500M2 CONSTRUCTIBLE SUR TOUTE LA SURFACE – SECTEUR HIPPODROME A MONTAUBAN.À proximité de toutes les commodités, des écoles, commerces, pharmacie, …Terrain constructible, plat, viabilisé et raccordé au tout-à-l’égout.Contactez-moi pour plus de renseignements.Votre conseiller HK HomeKare : Nadeen ALEXANDERAgent commercial (Entreprise individuelle).HK HomeKare immobilier : VENTE – LOCATION – GESTION – SYNDIC
Montauban
TERRAIN ET MAISONMaison (350 m²) à vendre à MontaubanIDÉALEMENT SITUÉE – TRES BELLE MAISON NEUVE de plein piedÀ vendre : nous sommes ravis de vous présenter, idéalement située aux alentours de Montauban, cette maison de 350 m² et de 5 500 m² de terrain. Son intérieur propose cinq chambres, une cuisine ,quatre salles de bains, salle de sport, salle de jeu, cave à vin.La maison est située dans un quartier convoité. Niveau transports en commun, il y a la gare Montauban Ville Bourbon à moins de 10 minutes en voiture. Accès à l’autoroute A20 à proximité. Elle est à vendre pour la somme de 1 250 000 €.Contactez exclusivement Mr (Erwan GOHEBEL : (Numéro supprimé)) pour plus d’informations sur la maison ou sur les modalités de vente.
Montbeton
TERRAIN ET MAISONDécouvrez le modèle Infini, une élégante maison conçue avec une architecture moderne, aux lignes sobres et épurées. Déclinez sa toiture à votre guise et en fonction de vos envies. Son aménagement intérieur saura répondre à votre mode de vie. Sa belle pièce à vivre traversante de 44 m² donnera sur votre extérieur par sa grande baie vitrée. A l’étage, le coté nuit s’articule autour de 3 grandes chambres avec placard et une belle salle de bains de 8 m² tout équipée. Le modèle Infini est une maison familiale et coquette qui plaira par son agencement pensé pour votre confort de vie, par Oc résidences, votre constructeur sur mesure en Occitanie.
Montauban
TERRAINPour donner vie à votre projet de construction, OC-RESIDENCES , constructeur de maison sur mesure depuis 1983, vous propose de venir découvrir cette parcelle de 446 m2 viabilisé sur l’agréable commume de MONTAUBAN au prix de 56 900 €. Si vous souhaitez avoir plus d’informations, contactez notre agence de GAILLAC au (Numéro supprimé).
Montbeton
TERRAINDans la charmante commune de Montbeton, située dans le département du Tarn-Et-Garonne, nous vous proposons ce terrain de 940 m² viabilisé et disposant du tout à l’égout, il est issu d’un lotissement de 13 lots seulement.Vous pourrez vous laisser séduire par les Gorges de l’Aveyron et le canal de Montech pour des balades inoubliables !N’hésitez plus, contactez notre agence et programmez votre visite !
Bressols
TERRAIN ET MAISONÀ vendre maison neuve de plain-pied située hors lotissement, à quelques minutes à pied du centre de Bressols, dans un secteur résidentiel calme et recherché. Surface de 125 m² dont un garage isolé et carrelé de 17 m² Terrain : 800 m² entièrement clôturé Salon / cuisine : 40 m² lumineux, ouvert sur le jardin 4 chambres avec parquet et espaces dressing Salle d’eau équipée avec meuble double vasque WC indépendant Équipements : Chauffage gainable (confort toutes saisons) Ballon thermodynamique Panneaux photovoltaïques pour réduire votre consommation Construction assurée par des professionnels avec garanties décennales et factures disponibles. Les informations sur les risques auxquels ce bien est exposé sont disponibles sur le site Géorisques : www.georisques.gouv.fr. Votre agence immobilière KW ADVANCE vous invite à découvrir toutes les originalités de cette maison en vente en prenant rendez-vous avec l’un de nos conseillers immobilier.
Bressols
TERRAIN ET MAISONÀ vendre maison neuve de plain-pied située hors lotissement, à quelques minutes à pied du centre de Bressols, dans un secteur résidentiel calme et recherché. Surface de 125 m² dont un garage isolé et carrelé de 17 m² Terrain : 800 m² entièrement clôturé Salon / cuisine : 40 m² lumineux, ouvert sur le jardin 4 chambres avec parquet et espaces dressing Salle d’eau équipée avec meuble double vasque WC indépendant Équipements : Chauffage gainable (confort toutes saisons) Ballon thermodynamique Panneaux photovoltaïques pour réduire votre consommation Construction assurée par des professionnels avec garanties décennales et factures disponibles. Les informations sur les risques auxquels ce bien est exposé sont disponibles sur le site Géorisques : www.georisques.gouv.fr. Votre agence immobilière KW ADVANCE vous invite à découvrir toutes les originalités de cette maison en vente en prenant rendez-vous avec l’un de nos conseillers immobilier.
Montauban
TERRAINVENTE : terrain de 8 500 m² à Montauban avec l’agence maisons rance Confort de tournefeuille au (Numéro supprimé)IDÉALEMENT SITUÉÀ Montauban (82000), découvrez ce terrain de 8 500 m². Il est situé dans un quartier recherché. Cinq établissements scolaires sont implantés à moins de 10 minutes à pied, tout comme une crèche. Niveau transports, on trouve la gare Montauban Ville Bourbon à moins de 10 minutes en voiture. L’autoroute A20 est accessible à 4 km. Il y a un supermarché, deux boulangeries, deux épiceries et quatre boucheries-charcuteries à quelques minutes du terrain.Il est proposé à l’achat pour 60 000 €. N’hésitez pas à prendre contact avec l’agence maisons rance Confort de tournefeuille au (Numéro supprimé) pour toute information sur ce terrain ou sur les démarches à suivre. Maisons France Confort Tournefeuille est là pour vous accompagner à toutes les étapes de votre projet.Annonce proposée par un Agent Commercial Partenaire.
Montauban
TERRAIN ET MAISONVENTE : maison de 5 pièces (113 m²) à Montauban avec l’agence maisons rance Confort de tournefeuille au (Numéro supprimé)IDÉALEMENT SITUÉE – MAISON 5 PIÈCES NEUVEEn vente : nous vous présentons cette maison de 5 pièces de plain-pied de 113 m² idéalement située dans Montauban (82000).Conçue de plain-pied, elle se divise en quatre chambres, une cuisine et deux salles de bains. La maison est neuve.Le terrain du bien est de 8 500 m².Cette maison se situe dans un quartier prisé. Cinq établissements scolaires se trouvent à moins de 10 minutes à pied, tout comme une crèche. Côté transports en commun, il y a la gare Montauban Ville Bourbon à moins de 10 minutes en voiture. L’autoroute A20 est accessible à 4 km. On trouve un supermarché, deux boulangeries, deux épiceries et quatre boucheries-charcuteries à quelques minutes à peine.Son prix de vente est de 311 475 €.N’hésitez pas à prendre contact avec l’agence maisons rance Confort de tournefeuille au (Numéro supprimé) pour plus de renseignements sur la maison, sur les modalités de vente et sur les démarches à suivre. Donnez vie à vos projets immobiliers avec Maisons France Confort Tournefeuille.Annonce proposée par un Agent Commercial Partenaire.
L’actualité immobilière à Montauban
27/11/2023
02/11/2023
30/10/2023
20/10/2023
16/10/2023
16/10/2023