Maison à construire à Montech (82700)
Images
Description
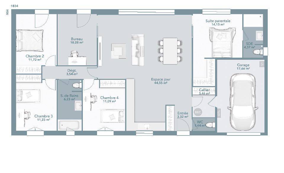
"Votre agence Maisons France Confort d'Aucamville vous propose ce beau projet maison + terrain sur la commune de MONTECH.
Avec Optima 125, vous optez pour une pièce de vie volumineuse, agréable et fonctionnelle et des espaces de nuit distincts pour les parents et les enfants. En effet, la pièce de vie est au centre de la maison, d'un côté on retrouve 3 chambres et un bureau pour les enfants et de l'autre, une suite parentale en option avec salle d'eau et dressing. Autre atout de la composition de cette maison, son garage avec son accès direct à la maison par le cellier ! La composition rêvée pour un plain-pied optimisé !
Prix: 271037€ HF
Pour toutes informations, contactez l'agence MAISONS FRANCE CONFORT d'Aucamville au (Numéro supprimé)."
Annonce proposée par un Agent Commercial Partenaire.
Logement susceptibles de vous intéresser
Nous vous proposons de découvrir aussi cette sélection de logements situés à moins de 10km de Montech et qui seraient susceptibles de vous intéresser.
Montech
TERRAIN« Votre agence Maisons France Confort d’Aucamville vous propose ce magnifique terrain de 1170 m² sur la commune de MONTECH.Il bénéficie d’une PISCINE et offre une surface idéale pour un projet de construction familiale ou contemporaine.Le terrain se trouve en zone UC du PLU, avec une emprise au sol de 30 %Ce terrain est non viabilisé, avec un raccordement au tout à l’égoutCollège, lycée et commerces sont accessibles à pied !Un emplacement privilégié, calme et pratique, parfait pour concrétiser votre projet immobilier.Confiez nous votre projet de vie nous serons honorés de le réaliser avec sérénité.Pour toutes informations, contactez l’agence MAISONS FRANCE CONFORT d’Aucamville au (Numéro supprimé). »Annonce proposée par un Agent Commercial Partenaire.
Montech
TERRAIN« Votre agence Maisons France Confort d’Aucamville vous propose ce magnifique terrain de 1150 m² sur la commune de MONTECH.Bel emplacement pour ce joli terrain plat et rectangulaire au calme. Il bénéficie d’un DOUBLE GARAGE existant et offre une surface idéale pour un projet de construction familiale ou contemporaine.Le terrain se trouve en zone UC du PLU, avec une emprise au sol de 30 %Ce terrain est non viabilisé, avec un raccordement au tout à l’égoutCollège, lycée et commerces sont accessibles à pied !Un emplacement privilégié, calme et pratique, parfait pour concrétiser votre projet immobilier.Confiez nous votre projet de vie nous serons honorés de le réaliser avec sérénité.Pour toutes informations, contactez l’agence MAISONS FRANCE CONFORT d’Aucamville au (Numéro supprimé). »Annonce proposée par un Agent Commercial Partenaire.
Montech
TERRAIN ET MAISON« Votre agence Maisons France Confort d’Aucamville vous propose ce beau projet maison + terrain sur la commune de MONTECH.La ligne de maison Actua est conçue pour coller aux tendances actuelles ! Cette maison de plain-pied de 105 m² en RE2020 est faite astucieusement ! Jugez, vous-même : elle dispose d’une entrée avec son placard, d’une pièce de vie de plus de 40 m², d’un cellier et d’un garage en option. La pièce de vie comprend une jolie cuisine ouverte sur la salle à manger et le salon, un ensemble parfait pour apprécier l’espace et la lumière traversante. Pour la partie nuit, la composition de cette maison est aussi astucieuse : 3 chambres avec placards, une salle de bains mais aussi une suite parentale en option avec rangements et salle d’eau. Contactez-nous dès aujourd’hui !Prix: 235848€HFPour toutes informations, contactez l’agence MAISONS FRANCE CONFORT d’Aucamville au (Numéro supprimé) »Annonce proposée par un Agent Commercial Partenaire.
Montech
TERRAIN ET MAISON« Votre agence Maisons France Confort d’Aucamville vous propose ce beau projet maison + terrain sur la commune de MONTECH.California, la modernité et l’élégance pour votre maison. Adaptée pour profiter à 360° du paysage, cette maison de 95 m² s’ouvre sur l’extérieur et offre de beaux volumes et une lumière traversante. Votre espace de vie au centre de la maison de 35 m² dispose de 2 grandes baies face à face pour laisser place à la lumière, l’extérieur s’invite à l’intérieur ! Cette maison de plain-pied bénéficie d’une grande suite parentale avec rangements et salle d’eau, mais aussi 2 autres chambres avec placards de l’autre côté de la pièce de vie pour que chacun garde son intimité. La maison idéale pour une famille de 2 enfants ! Pour se fondre dans le paysage et lui donner un côté chaleureux, les façades de la maison sont revêtues de parements en bois à claire-voie !prix: 335516€hfPour toutes informations, contactez l’agence MAISONS FRANCE CONFORT d’Aucamville au (Numéro supprimé) »Annonce proposée par un Agent Commercial Partenaire.
Montech
TERRAIN ET MAISON« Votre agence Maisons France Confort d’Aucamville vous propose ce beau projet maison + terrain sur la commune de MONTECH.Avec Optima 125, vous optez pour une pièce de vie volumineuse, agréable et fonctionnelle et des espaces de nuit distincts pour les parents et les enfants. En effet, la pièce de vie est au centre de la maison, d’un côté on retrouve 3 chambres et un bureau pour les enfants et de l’autre, une suite parentale en option avec salle d’eau et dressing. Autre atout de la composition de cette maison, son garage avec son accès direct à la maison par le cellier ! La composition rêvée pour un plain-pied optimisé !Prix: 271037€ HFPour toutes informations, contactez l’agence MAISONS FRANCE CONFORT d’Aucamville au (Numéro supprimé). »Annonce proposée par un Agent Commercial Partenaire.
Montech
TERRAIN ET MAISON« Votre agence Maisons France Confort d’Aucamville vous propose ce beau projet maison + terrain sur la commune de MONTECH.Cette maison en RE2020 de 120 m² avec son toit plat et ses lignes très modernes s’adaptera parfaitement à l’architecture de votre région. Dessinée pour les grands terrains du sud de la France, ses volumes sont astucieusement répartis. Au rez-de-chaussée, cette maison dispose d’un espace jour de 59 m² avec un grand salon, une salle à manger et une cuisine semi-ouverte. Autre point fort de ce niveau, la suite parentale avec dressing et salle d’eau en option. À l’étage, le niveau est réservé aux enfants avec 2 chambres et leurs rangements, une salle de bains et un dégagement qui possède lui aussi un placard. Avec son architecture moderne et cubique, cette maison vous offre confort et bien-être au quotidien.Prix: 321801€ HFPour toutes informations, contactez l’agence MAISONS FRANCE CONFORT d’Aucamville au (Numéro supprimé) »Annonce proposée par un Agent Commercial Partenaire.
Montech
TERRAIN ET MAISON« Votre agence Maisons France Confort d’Aucamville vous propose ce beau projet maison + terrain sur la commune de MONTECH.La ligne de maison Open est conçue pour coller aux tendances actuelles ! Cette maison de plain-pied de 105 m² en RE2020 est faite astucieusement ! Jugez, vous-même : elle dispose d’une entrée avec son placard, d’une pièce de vie de plus de 40 m², d’un cellier et d’un garage en option. La pièce de vie comprend une jolie cuisine ouverte sur la salle à manger et le salon, un ensemble parfait pour apprécier l’espace et la lumière traversante. Pour la partie nuit, la composition de cette maison est aussi astucieuse : 3 chambres avec placards, une salle de bains mais aussi une suite parentale en option avec rangements et salle d’eau. Contactez-nous dès aujourd’hui !Prix: 221691€HFPour toutes informations, contactez l’agence MAISONS FRANCE CONFORT d’Aucamville au (Numéro supprimé) »Annonce proposée par un Agent Commercial Partenaire.
Montech
TERRAIN ET MAISON« Votre agence Maisons France Confort d’Aucamville vous propose ce beau projet maison + terrain sur la commune de MONTECH.Optez pour le charme de la maison traditionnelle du sud de la France avec notre modèle Bastide 95+20 en RE2020. Avec ses volumes et son architecture mêlant élégance et tradition, cette maison fera le bonheur de votre famille. Au rez-de-chaussée, elle propose une pièce de vie lumineuse et agréable de 42 m² avec cuisine ouverte sur la salle à manger et le salon, et un cellier attenant à la cuisine et au garage. À l’étage, le pallier s’ouvre sur 2 chambres, une salle de bains et des WC mais aussi sur une suite parentale en option avec dressing et salle d’eau. Autre bel avantage de cette maison, au rez-de-chaussée, on peut ajouter un espace indépendant dédié aux parents en option avec une suite parentale, un dressing, des WC et une salle d’eau, le tout dans 20 m². Cette maison vous garantit le charme de l’authentique, les fonctionnalités du moderne et le bien-être des habitants !Prix: 242961€ HFPour toutes informations, contactez l’agence MAISONS FRANCE CONFORT d’Aucamville au (Numéro supprimé) »Annonce proposée par un Agent Commercial Partenaire.
Montech
TERRAIN ET MAISON« Votre agence Maisons France Confort d’Aucamville vous propose ce beau projet maison+terrain sur la commune de MONTECH.De plain-pied, ce plan de maison de 110 m² est construit en L pour garantir des espaces jour et nuit parfaitement distincts. L’entrée s’ouvre sur une pièce de vie de 43 m² composée d’un salon, de la cuisine et de la salle à manger. Cet espace bénéficie de beaucoup de lumière naturelle avec 2 baies disposées en face à face. Pour la configuration de la partie nuit, c’est un couloir qui dessert 3 chambres d’un côté et de l’autre, une salle de bains et une suite parentale en option, avec dressing et salle d’eau. Cette maison dispose également d’un garage intégré de 15 m², totalement accessible de la maison. Vous avez le coup de coeur pour cette maison fonctionnelle, lumineuse et organisée, contactez nous !prix: 260294€ hfPour toutes informations, contactez l’agence MAISONS FRANCE CONFORT d’Aucamville au (Numéro supprimé) »Annonce proposée par un Agent Commercial Partenaire.
L’actualité immobilière à Montech
27/11/2023
02/11/2023
30/10/2023
20/10/2023
16/10/2023
16/10/2023