Maison à construire à Saint-Nicolas-de-la-Grave (82210)
Images
Description
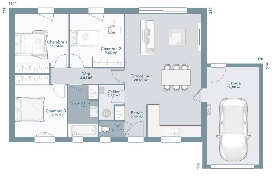
"Votre agence Maisons France Confort d'Aucamville vous propose ce projet maison + terrain sur la commune de St Nicolas de la Grave.
Actua 73 est un modèle de maison de 73 m² à la ligne épurée et moderne en RE2020. Cette maison, où chaque espace est optimisé et parfaitement fonctionnel, dispose de nombreux atouts : 3 chambres, un espace jour de près de 30 m² et une salle de bains de plus de 5 m². Élément incontournable de ce modèle, il bénéficie de nombreux placards et d'un garage en option accolé avec accès direct à la maison. Actua s'adaptera très bien à l'architecture de votre région vous pouvez en être convaincu !
prix: 171087€ hf
Pour toutes informations, contactez l'agence MAISONS FRANCE CONFORT d'Aucamville au (Numéro supprimé)."
Annonce proposée par un Agent Commercial Partenaire.
Logement susceptibles de vous intéresser
Nous vous proposons de découvrir aussi cette sélection de logements situés à moins de 10km de Saint-Nicolas-de-la-Grave et qui seraient susceptibles de vous intéresser.
Castelsarrasin
TERRAINVENTE : terrain de 900 m² à Castelsarrasin avec l’agence Maisons France Confort de Tournefeuille au (Numéro supprimé)PROCHE DE MONTAUBANGrand terrain en vente à quelques kilomètres de Montauban. De 900 m², ce terrain se situe dans Castelsarrasin (82100). On trouve plusieurs écoles (maternelle, élémentaire, primaire et collège) à moins de 10 minutes à pied, tout comme une crèche. Niveau transports, il y a la gare Castelsarrasin à quelques pas du terrain. Il y a un accès à l’autoroute A62 à 2 km. On trouve un bassin de natation, des commerces, des boulangeries, un bureau de poste, des boucheries-charcuteries et une poissonnerie à proximité.Il est à vendre pour la somme de 33 000 €. Contactez notre agence Maisons France Confort de Tournefeuille au (Numéro supprimé) pour toute information sur ce terrain et sur les modalités de vente. Maisons France Confort Tournefeuille vous accompagne dans tous vos projets immobiliers et à toutes les étapes de l’achat.Annonce proposée par un Agent Commercial Partenaire.
Castelsarrasin
TERRAIN ET MAISONMaison F5 (101 m²) en vente à Castelsarrasin avec l’agence Maisons France Confort de Tournefeuille au (Numéro supprimé)MAISON 5 PIÈCES NEUVE – PROCHE DE MONTAUBANÀ vendre : localisée à 20 km de Montauban, nous vous présentons cette maison de 5 pièces de plain-pied de 101 m² à Castelsarrasin (82100).Son intérieur dispose de quatre chambres, d’une cuisine et d’une salle de bains. La maison est neuve.Le terrain du bien s’étend sur 900 m².Il y a plusieurs établissements scolaires (maternelle, élémentaire, primaire et collège) à moins de 10 minutes à pied, tout comme une structure d’accueil pour la petite enfance. Côté transports en commun, on trouve la gare Castelsarrasin dans les environs. L’autoroute A62 est accessible à 2 km. Il y a un bassin de natation, des commerces, des boulangeries, une supérette, des boucheries-charcuteries et une poissonnerie à quelques minutes de la maison.Son prix de vente est de 194 784 €.N’hésitez pas à prendre contact avec l’agence Maisons France Confort de Tournefeuille au (Numéro supprimé) pour toute question sur cette maison. Maisons France Confort Tournefeuille vous accompagne dans tous vos projets immobiliers et dans toutes vos démarches.Annonce proposée par un Agent Commercial Partenaire.
Castelsarrasin
TERRAIN ET MAISONMaison de 5 pièces (101 m²) en vente à Castelsarrasin avec l’agence Maisons France Confort de Tournefeuille au (Numéro supprimé)PROCHE DE MONTAUBAN – MAISON 5 PIÈCES NEUVEÀ vendre à quelques kilomètres de Montauban, découvrez cette maison de 5 pièces de plain-pied de 101 m² à Castelsarrasin (82100).Son intérieur est composé de quatre chambres, d’une cuisine et d’une salle de bains. Cette maison est neuve.Le terrain de la propriété s’étend sur 900 m².Il y a plusieurs établissements scolaires (maternelle, élémentaire, primaire et collège) à moins de 10 minutes à pied, tout comme une crèche. Côté transports, on trouve la gare Castelsarrasin à quelques pas du bien. Il y a un accès à l’autoroute A62 à 2 km. Il y a un bassin de natation, des commerces, des boulangeries, une supérette, un bureau de poste et deux épiceries à proximité.Elle est proposée à l’achat pour 205 478 €.N’hésitez pas à prendre contact avec l’agence Maisons France Confort de Tournefeuille au (Numéro supprimé) pour obtenir de plus amples renseignements sur cette maison. Concrétisez vos projets immobiliers avec Maisons France Confort Tournefeuille.Annonce proposée par un Agent Commercial Partenaire.
Castelsarrasin
TERRAIN ET MAISONMaison T4 (81 m²) en vente à Castelsarrasin avec l’agence Maisons France Confort de Tournefeuille au (Numéro supprimé)MAISON 4 PIÈCES NEUVE – PROCHE DE MONTAUBANÀ 20 km de Montauban, à vendre à Castelsarrasin (82100), nous vous proposons cette maison de 4 pièces de plain-pied de 81 m² et de 900 m² de terrain. Elle comporte trois chambres, une cuisine et une salle de bains.La maison est neuve.Plusieurs écoles (maternelle, élémentaire, primaire et collège) se trouvent à moins de 10 minutes à pied, tout comme une crèche. Niveau transports en commun, il y a la gare Castelsarrasin juste à côté. L’autoroute A62 est accessible à 2 km. On trouve un bassin de natation, des commerces, des boulangeries, des boucheries-charcuteries, un bureau de poste et une poissonnerie à quelques minutes à peine.Son prix de vente est de 175 841 €.Prenez contact avec l’agence Maisons France Confort de Tournefeuille au (Numéro supprimé) pour tout renseignement sur la maison ou sur les démarches à suivre.Annonce proposée par un Agent Commercial Partenaire.
Castelsarrasin
TERRAIN ET MAISONCastelsarrasin : maison F3 (50 m²) en vente avec l’agence Maisons France Confort de Tournefeuille au (Numéro supprimé)PROCHE DE MONTAUBAN – MAISON 3 PIÈCES NEUVEÀ quelques kilomètres de Montauban, Maisons France Confort Tournefeuille vous présente cette maison de 3 pièces de plain-pied de 50 m² à Castelsarrasin (82100).Son intérieur offre deux chambres, une cuisine et une salle de bains. La maison est neuve.Le terrain du bien s’étend sur 900 m².Plusieurs écoles (maternelle, élémentaire, primaire et collège) se trouvent à moins de 10 minutes à pied, tout comme une crèche. Niveau transports en commun, il y a la gare Castelsarrasin à quelques pas de la maison. On trouve un accès à l’autoroute A62 à 2 km. On trouve un bassin de natation, des commerces, des boulangeries, une poissonnerie, deux épiceries et un bureau de poste à proximité de la maison.Elle est proposée à l’achat pour 145 784 €.Prenez contact avec l’agence Maisons France Confort de Tournefeuille au (Numéro supprimé) pour toute information sur la maison, sur les démarches à suivre ou sur les modalités de vente.Annonce proposée par un Agent Commercial Partenaire.
Saint-Aignan
TERRAINVENTE : terrain de 1 500 m² à Saint-Aignan avec l’agence Maisons France Confort de Tournefeuille au (Numéro supprimé)EMPLACEMENT PRIVILÉGIÉ – PROCHE DE MONTAUBANÀ deux pas de Montauban à Saint-Aignan (82100), grand terrain. Il se situe dans un quartier recherché. Tous les types d’établissements scolaires (maternelle, élémentaire et secondaire) se trouvent à moins de 10 minutes en voiture, tout comme deux structures d’accueil pour les tout-petits à moins de 10 minutes à pied. Niveau transports en commun, il y a les gares Castelsarrasin et Moissac à moins de 10 minutes en voiture. Il y a un accès à l’autoroute A62 à 4 km. On trouve des bibliothèques, des tennis, quatre bassins de natation, des boulangeries, des commerces, des supermarchés, une supérette et des boucheries-charcuteries à quelques minutes à peine. Le marché Place des Récollets anime le quartier.Il est à vendre pour la somme de 42 000 €. Prenez contact avec l’agence Maisons France Confort de Tournefeuille au (Numéro supprimé) pour toute information sur ce terrain, sur les démarches à suivre ou sur les modalités de vente. Maisons France Confort Tournefeuille vous accompagne à toutes les étapes de votre projet et dans tous vos projets immobiliers.Annonce proposée par un Agent Commercial Partenaire.
Saint-Aignan
TERRAIN ET MAISONSaint-Aignan : maison T5 (113 m²) en vente avec l’agence Maisons France Confort de Tournefeuille au (Numéro supprimé)EMPLACEMENT PRIVILÉGIÉ – MAISON 5 PIÈCES NEUVEÀ vendre : localisée à quelques kilomètres de Montauban, votre agence Maisons France Confort Tournefeuille est ravie de vous présenter cette maison de 5 pièces de plain-pied de 113 m², bénéficiant d’un emplacement privilégié dans Saint-Aignan (82100).Elle est composée de quatre chambres, d’une cuisine et de deux salles de bains. Cette maison est neuve.Le terrain de la propriété est de 1 500 m².La propriété est située dans un secteur prisé. On trouve tous les types d’établissements scolaires (de la maternelle au lycée) à moins de 10 minutes en voiture, tout comme deux crèches à moins de 10 minutes à pied. Niveau transports en commun, il y a les gares Castelsarrasin et Moissac à moins de 10 minutes en voiture. Il y a un accès à l’autoroute A62 à 4 km. On trouve des bibliothèques, des tennis, quatre bassins de natation, des boulangeries, des commerces, des supermarchés, une supérette et deux poissonneries à proximité du bien. Enfin, le marché Place des Récollets anime le quartier.Elle est proposée à l’achat pour 294 784 €.N’hésitez pas à prendre contact avec l’agence Maisons France Confort de Tournefeuille au (Numéro supprimé) pour plus de renseignements sur la maison, sur les modalités de vente ou sur les démarches à suivre. Maisons France Confort Tournefeuille vous accompagne dans tous vos projets immobiliers et à toutes les étapes de votre projet.Annonce proposée par un Agent Commercial Partenaire.
Saint-Aignan
TERRAIN ET MAISONVENTE d’une maison T3 (71 m²) à Saint-Aignan avec l’agence Maisons France Confort de Tournefeuille au (Numéro supprimé)EMPLACEMENT PRIVILÉGIÉ – MAISON 3 PIÈCES NEUVEEn vente à quelques kilomètres de Montauban, Maisons France Confort Tournefeuille vous propose, bénéficiant d’un emplacement privilégié dans Saint-Aignan (82100), cette maison de 3 pièces de plain-pied de 71 m² et de 1 500 m² de terrain.Elle est composée de deux chambres, d’une cuisine et d’une salle de bains. Cette maison est neuve.Le bien est situé dans un secteur convoité. Il y a des écoles de tous niveaux (de la maternelle au lycée) à moins de 10 minutes en voiture, tout comme deux crèches à moins de 10 minutes à pied. Niveau transports en commun, on trouve deux gares (Castelsarrasin et Moissac) à moins de 10 minutes en voiture. L’autoroute A62 est accessible à 4 km. Il y a des bibliothèques, des tennis, quatre bassins de natation, des boulangeries, des commerces, des supermarchés, des boucheries-charcuteries et une supérette à proximité. Enfin, le marché Place des Récollets anime les environs.Il est proposé à l’achat pour 174 894 €.N’hésitez pas à prendre contact avec l’agence Maisons France Confort de Tournefeuille au (Numéro supprimé) pour toute question sur la maison ou sur les démarches à suivre. Maisons France Confort Tournefeuille est là pour vous accompagner à toutes les étapes de votre projet.Annonce proposée par un Agent Commercial Partenaire.
Saint-Aignan
TERRAIN ET MAISONVENTE d’une maison de 5 pièces (120 m²) à Saint-Aignan avec l’agence Maisons France Confort de Tournefeuille au (Numéro supprimé)EMPLACEMENT PRIVILÉGIÉ – MAISON 5 PIÈCES NEUVEÀ vendre à deux pas de Montauban, venez découvrir cette maison de 5 pièces de plain-pied de 120 m² et de 1 500 m² de terrain bénéficiant d’un emplacement privilégié dans Saint-Aignan (82100).Conçue de plain-pied, elle compte trois chambres, une cuisine et deux salles de bains. Cette maison est neuve.Cette maison se situe dans un quartier attractif. On trouve des établissements scolaires du primaire et du secondaire à moins de 10 minutes en voiture, tout comme deux crèches à moins de 10 minutes à pied. Niveau transports en commun, il y a deux gares (Castelsarrasin et Moissac) à moins de 10 minutes en voiture. L’autoroute A62 est accessible à 4 km. On trouve des bibliothèques, des tennis, quatre bassins de natation, des boulangeries, des commerces, des supermarchés, deux poissonneries et des bureaux de poste à proximité. Enfin, le marché Place des Récollets anime les environs.Son prix de vente est de 372 489 €.N’hésitez pas à prendre contact avec l’agence Maisons France Confort de Tournefeuille au (Numéro supprimé) pour toute information sur la propriété, sur les modalités de vente ou sur les démarches à suivre. Maisons France Confort Tournefeuille est là pour vous accompagner à toutes les étapes de votre projet.Annonce proposée par un Agent Commercial Partenaire.
L’actualité immobilière à Saint-Nicolas-de-la-Grave
27/11/2023
02/11/2023
30/10/2023
20/10/2023
16/10/2023
16/10/2023