Maison à construire à La Queue-en-Brie (94510)
Images
Description
VENTE : maison de 6 pièces (105 m²) à La Queue-en-Brie
PROCHE DE PARIS - MAISON 6 PIÈCES NEUVE
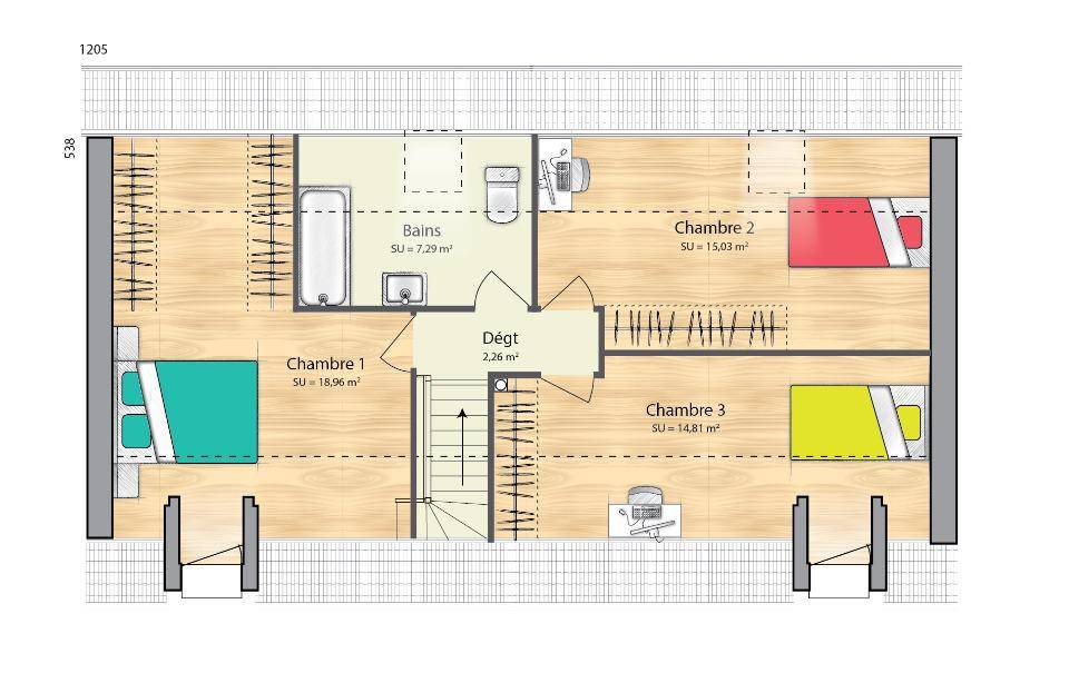
Au pied de la station Émerainville-Pontault-Combault (Paris à 25 min avec le RER E), à vendre à La Queue-en-Brie (94510), Maisons France Confort La Queue-en-Brie vous propose cette maison de 6 pièces de 105 m² et de 500 m² de terrain. Elle dispose de quatre chambres, d'une cuisine et de deux salles de bains.
Cette maison possède 2 niveaux. Elle est neuve.
Plusieurs écoles (maternelle, élémentaire et collège) se trouvent à moins de 10 minutes à pied. Niveau transports, il y a les lignes de RER E et A ainsi que huit gares à moins de 10 minutes en voiture. On trouve trois boulangeries, des commerces, des épiceries, une boucherie-charcuterie et un bureau de poste à quelques minutes de la maison.
Son prix de vente est de 510 000 €.
Contactez notre agence (TCHICAYA Dominique : (Numéro supprimé)) pour toute question sur cette maison, sur les modalités de vente ou sur les démarches à suivre.
Logement susceptibles de vous intéresser
Nous vous proposons de découvrir aussi cette sélection de logements situés à moins de 10km de La Queue-en-Brie et qui seraient susceptibles de vous intéresser.
 
  
 
 Ozoir-la-Ferrière
TERRAINVENTE d’un terrain de 327 m² à Ozoir-la-FerrièreTerrain de 327 m² à proximité du RER E (30 min de Paris). Ce terrain se situe dans Ozoir-la-Ferrière (77330). Il y a tous les types d’établissements scolaires à moins de 10 minutes à pied, tout comme une structure d’accueil pour les tout-petits. Côté transports en commun, on trouve le RER E et A ainsi que six gares à moins de 10 minutes en voiture. Il y a un tennis, un bassin de natation, des commerces, trois boulangeries, deux supermarchés, deux poissonneries et des épiceries dans les environs. Le marché Place des sports anime le quartier.Il est à vendre pour la somme de 169 000 €. Contactez Aurelien MONTANIER (tél : (Numéro supprimé)) pour plus d’informations sur ce terrain. Concrétisez vos projets immobiliers avec Maisons Balency Saint-Maur-des-Fossés.Annonce proposée par un Agent Commercial Partenaire.
 
  
 
 Ozoir-la-Ferrière
TERRAIN ET MAISONVENTE d’une maison de 5 pièces (100 m²) à Ozoir-la-FerrièreMAISON 5 PIÈCES NEUVEEn vente : à deux pas du RER E (30 min de Paris), nous vous présentons à Ozoir-la-Ferrière (77330), cette maison de 5 pièces de plain-pied de 100 m² et de 327 m² de terrain.Elle est composée de trois chambres, d’une cuisine et de deux salles de bains. La maison est neuve.Il y a des établissements scolaires du primaire et du secondaire à moins de 10 minutes à pied, tout comme une structure d’accueil pour les tout-petits. Côté transports, on trouve le RER E et A ainsi que six gares à moins de 10 minutes en voiture. Il y a un tennis, un bassin de natation, des commerces, trois boulangeries, deux supermarchés, des épiceries et deux poissonneries dans les environs. Enfin, le marché Place des sports anime les environs.Elle est à vendre pour la somme de 369 000 €.Contactez Aurelien MONTANIER (tél : (Numéro supprimé)) pour toute information sur la maison.Annonce proposée par un Agent Commercial Partenaire.
 
  
 
 Ozoir-la-Ferrière
TERRAIN ET MAISONOzoir-la-Ferrière : maison F6 (98 m²) en venteMAISON 6 PIÈCES NEUVEÀ vendre : à proximité du RER E (30 min de Paris), découvrez cette maison de 6 pièces de 98 m² et de 327 m² de terrain à Ozoir-la-Ferrière (77330). Son intérieur dispose de quatre chambres, d’une cuisine et d’une salle de bains.C’est une maison de 2 niveaux. Elle est neuve.Des établissements scolaires du primaire et du secondaire sont implantés à moins de 10 minutes à pied, tout comme une crèche. Côté transports en commun, il y a les lignes E et A du RER ainsi que six gares à moins de 10 minutes en voiture. On trouve un tennis, un bassin de natation, des commerces, trois boulangeries, deux supermarchés, des épiceries et deux poissonneries à proximité. Le marché Place des sports anime le quartier.Son prix de vente est de 380 000 €.Contactez notre agence (MONTANIER Aurelien : (Numéro supprimé)) pour obtenir de plus amples renseignements sur la maison ou sur les modalités de vente. Maisons Balency Saint-Maur-des-Fossés est là pour vous accompagner à toutes les étapes de l’achat.Annonce proposée par un Agent Commercial Partenaire.
 
  
 
 Ozoir-la-Ferrière
TERRAIN ET MAISONMaison de 7 pièces (160 m²) en vente à Ozoir-la-FerrièreMAISON 7 PIÈCES NEUVEÀ proximité du RER E (30 min de Paris), nous sommes ravis de vous présenter cette maison de 7 pièces de 160 m² et de 327 m² de terrain à vendre à Ozoir-la-Ferrière (77330).C’est une maison de 2 niveaux. Son intérieur est composé de quatre chambres, d’une cuisine et de deux salles de bains. Cette maison est neuve.Des écoles de tous types sont implantées à moins de 10 minutes à pied, tout comme une structure d’accueil pour les enfants en bas âge. Niveau transports, on trouve deux lignes de RER (E et A) ainsi que six gares à moins de 10 minutes en voiture. Il y a un tennis, un bassin de natation, des commerces, trois boulangeries, deux supermarchés, deux boucheries-charcuteries et des épiceries à proximité. Le marché Place des sports anime les environs.Son prix de vente est de 405 000 €.N’hésitez pas à prendre contact avec Aurelien MONTANIER (tél : (Numéro supprimé)) pour plus d’informations sur la maison. Faites de vos projets immobiliers une réalité avec Maisons Balency Saint-Maur-des-Fossés.Annonce proposée par un Agent Commercial Partenaire.
 
  
 
 Yerres
TERRAINEric Mouthon Conseiller Commercial (Numéro supprimé) Étude gratuite et personnalisée sur rendez-vous.Terrain viabilisé de 590m² situé au calme dans une impasse, proche commodités.
 
  
 
 Yerres
TERRAIN ET MAISONEric Mouthon Conseiller Commercial (Numéro supprimé) Étude gratuite et personnalisée sur rendez-vous.Agencement Flexible : 4 chambres lumineuses et des plans entièrement personnalisables pour un espace de vie qui vous ressemble. Performance RE 2020 : Une solution thermique et acoustique de pointe, garantissant un confort d’été supérieur (idéal contre la chaleur) et des économies d’énergie. Plancher Chauffant pour une chaleur douce et uniforme, sans radiateur encombrant. Volets Roulants (VR) motorisés et centralisé. Saisissez cette opportunité de bâtir une maison intelligente, éco-performante et sur mesure, dans un environnement paisible.
 
  
 
 Champs-sur-Marne
TERRAINPrix : 299000 €.Sur ce terrain, réalisez votre projet de construction de maison RE 2020 avec PAVILLONS D'ÎLE-DE-FRANCE (constructeur de maisons de gamme et sur-mesure depuis plus de 50 ans) :- Plan sur-mesure et personnalisé de 2 à 5 chambres- Mode de chauffage au choix- Grands choix d'équipements et de prestations- Matériaux de qualité selon les normes en vigueur- Accompagnement dans le choix et l’acquisition du terrainDemandez une étude gratuite et personnalisée de votre projet de construction sur ce terrain !Contactez Stéphane VERHAUVEN au (Numéro supprimé) ou au (Numéro supprimé) (Pavillons d'Île-de-France – Agence de Meaux).Prix hors frais de notaire. Terrain sélectionné et vu pour vous sous réserve de disponibilité et au prix indiqué par notre partenaire foncier. Visuels non contractuels.Cette annonce a été créée et diffusée avec le logiciel VITAHOME.
 
  
 
 Limeil-Brévannes
TERRAINA proximitéPrix : 295000 €.Sur ce terrain, réalisez votre projet de construction de maison RE 2020 avec PAVILLONS D'ÎLE-DE-FRANCE (constructeur de maisons de gamme et sur-mesure depuis plus de 50 ans) :- Plan sur-mesure et personnalisé de 2 à 5 chambres- Mode de chauffage au choix- Grands choix d'équipements et de prestations- Matériaux de qualité selon les normes en vigueur- Accompagnement dans le choix et l’acquisition du terrainDemandez une étude gratuite et personnalisée de votre projet de construction sur ce terrain !Contactez Stéphane VERHAUVEN au (Numéro supprimé) ou au (Numéro supprimé) (Pavillons d'Île-de-France – Agence de Meaux).Prix hors frais de notaire. Terrain sélectionné et vu pour vous sous réserve de disponibilité et au prix indiqué par notre partenaire foncier. Visuels non contractuels.Cette annonce a été créée et diffusée avec le logiciel VITAHOME.
 
  
 
 Ormesson-sur-Marne
TERRAINA proximitéPrix : 295000 €.Sur ce terrain, réalisez votre projet de construction de maison RE 2020 avec PAVILLONS D'ÎLE-DE-FRANCE (constructeur de maisons de gamme et sur-mesure depuis plus de 50 ans) :- Plan sur-mesure et personnalisé de 2 à 5 chambres- Mode de chauffage au choix- Grands choix d'équipements et de prestations- Matériaux de qualité selon les normes en vigueur- Accompagnement dans le choix et l’acquisition du terrainDemandez une étude gratuite et personnalisée de votre projet de construction sur ce terrain !Contactez Stéphane VERHAUVEN au (Numéro supprimé) ou au (Numéro supprimé) (Pavillons d'Île-de-France – Agence de Meaux).Prix hors frais de notaire. Terrain sélectionné et vu pour vous sous réserve de disponibilité et au prix indiqué par notre partenaire foncier. Visuels non contractuels.Cette annonce a été créée et diffusée avec le logiciel VITAHOME.
L’actualité immobilière à La Queue-en-Brie
 27/11/2023
 
 27/11/2023
 
  02/11/2023
 
 02/11/2023
 
  30/10/2023
 
 30/10/2023
 
  20/10/2023
 
 20/10/2023
 
  16/10/2023
 
 16/10/2023
 
  16/10/2023
 
 16/10/2023
 
  
  
  
  
 