Maison à construire à Mandres-les-Roses (94520)
Images
Description
Devenez Propriétaire à Mandres-les-Roses (94520), proche RER D !
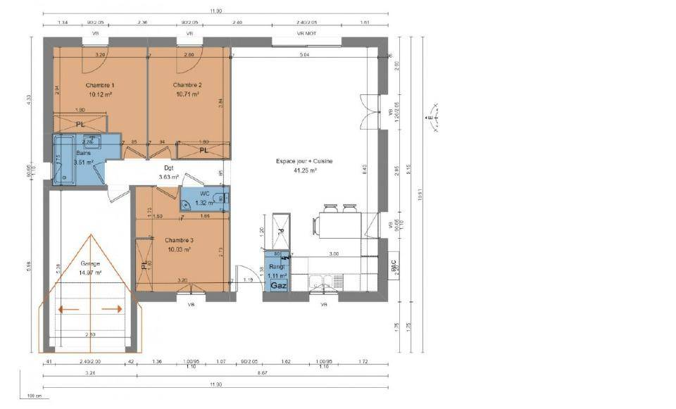
PLAIN-PIED de 82 m² des Maisons Balency d'Ormoy à bâtir sur un terrain de 413 m².
Faites-nous confiance pour vous bâtir une maison de 5 pièces sur un terrain constructible idéalement situé à Mandres-les-Roses, dans le Val-de-Marne, dès 320 000 €. Ce projet vous offre la possibilité de concevoir une maison moderne, lumineuse et fonctionnelle, entièrement adaptée à vos envies et à votre mode de vie.
Le terrain bénéficie d'un environnement calme et recherché, à proximité immédiate des commodités : les écoles Jacques-Yves Cousteau et Françoise Dolto se trouvent à quelques minutes à pied, tout comme la mairie, la poste et les commerces de centre-ville. Pour vos courses, l'Intermarché de Mandres-les-Roses est accessible en quelques minutes. Les amoureux de nature apprécieront le parc de la Fontaine et les sentiers verdoyants environnants.
Côté transports, la gare de Boissy-Saint-Léger (RER A) se situe à environ dix minutes en voiture et permet de rejoindre Paris en moins de 30 minutes. Plusieurs lignes de bus facilitent également la liaison vers les communes voisines et les pôles d'activités du Val-de-Marne.
Chaque construction Maisons Balency est réalisée selon les dernières normes RE2020, garantissant un confort thermique optimal, des économies d'énergie significatives et un impact environnemental réduit. Nous proposons des projets entièrement personnalisables, du style architectural aux aménagements intérieurs, pour une maison qui vous ressemble vraiment.
Appelez-nous sans plus attendre au (Numéro supprimé) !
Maisons Balency, membre du Groupe Hexaôm, 1er constructeur de maisons individuelles en France.
Agence d'Ormoy - 23 chemin de Tournenfils, 91540 Ormoy
Annonce proposée par un Agent Commercial Partenaire.
Logement susceptibles de vous intéresser
Nous vous proposons de découvrir aussi cette sélection de logements situés à moins de 10km de Mandres-les-Roses et qui seraient susceptibles de vous intéresser.
Quincy-sous-Sénart
TERRAINMuriel GARNIER vous présente, ce beau terrain plat de 405m2 situé dans la charmante commune de Quincy sous Sénart.Situé à moins de 10min à pied de la gare, et de toutes les commodités (écoles et commerces)Les axes routiers N6, N104, A5 et A6 sont accessibles en moins de 10min.Le terrain est plat et borné.En proximité de voie ferrée.La façade mesure un peu plus de 18m et dispose d’une profondeur de 22m environ, permettant ainsi la construction d’une maison de plus de 100m².Prévoir viabilité des réseaux eau, électricité et tout à l’égout sur ruePrix : 158.000 euros FAI Honoraires charge vendeur.Pour visiter et vous accompagner dans votre projet, contactez Muriel GARNIER, au (Numéro supprimé) ou, par courriel à (Email supprimé).Selon l’article L.561.5 du Code Monétaire et Financier, pour l’organisation de la visite, la présentation d’une pièce d’identité vous sera demandée.Cette présente annonce a été rédigée sous la responsabilité éditoriale de Muriel GARNIER agissant sous le statut d’agent commercial immatriculé au RSAC EVRY 981 209 620 auprès de SAS PROPRIETES PRIVEES, au capital de 44 920 euros, ZAC LE CHÊNE FERRÉ – 44 ALLÉE DES CINQ CONTINENTS 44120 VERTOU; SIRET 487 624 777 00040, RCS Nantes. Carte Professionnelle Transactions sur immeubles et fonds de commerce (T) et Gestion immobilière (G) n°CPI 4401 2016 000 010 388 délivrée par la CCI Nantes – Saint Nazaire. Compte séquestre n(Numéro supprimé)67 BPA SAINT-SEBASTIEN-SUR-LOIRE (44230). Garantie GALIAN-SMABTP – 89 rue de la Boétie, 75008 Paris – n°28137 J pour 2 000 000 euros pour T et 120 000 euros pour G. Assurance responsabilité civile professionnelle par GALIAN-SMABTP n° de police 28137.JMandat réf : 422652 – Le professionnel garantit et sécurise votre projet immobilier. Muriel GARNIER (EI) Agent Commercial – Numéro RSAC : EVRY 981 209 620 – .Les informations sur les risques auxquels ce bien est exposé sont disponibles sur le site Géorisques : www. georisques. gouv. fr
Évry-Grégy-sur-Yerre
TERRAINRare sur le secteur.Muriel GARNIER vous présente en exclusivité, ce beau terrain plat de 351m2 situé dans le charmant village d’Evry Grégy Sur Yerre.Situé à 30km de Paris, et seulement 5min de l’entrée N104 et A5B,La commune bénéficie de commerces de proximité (Restauration, Boulangerie, épicerie, coiffeur, pharmacie), ainsi que les écoles primaires et maternelles.Cette commune charmera tous les amoureux de la nature à la recherche de calme.Le terrain est plat et borné.La façade mesure un peu plus de 21m et dispose d’une profondeur de 18m environ.Prévoir viabilité des réseaux eau, électricité et tout à l’égout sur ruePrix : 134.000 euros FAI Honoraires charge vendeur.Pour visiter et vous accompagner dans votre projet, contactez Muriel GARNIER, au (Numéro supprimé) ou, par courriel à (Email supprimé).Selon l’article L.561.5 du Code Monétaire et Financier, pour l’organisation de la visite, la présentation d’une pièce d’identité vous sera demandée.Cette présente annonce a été rédigée sous la responsabilité éditoriale de Muriel GARNIER agissant sous le statut d’agent commercial immatriculé au RSAC EVRY 981 209 620 auprès de SAS PROPRIETES PRIVEES, au capital de 44 920 euros, ZAC LE CHÊNE FERRÉ – 44 ALLÉE DES CINQ CONTINENTS 44120 VERTOU; SIRET 487 624 777 00040, RCS Nantes. Carte Professionnelle Transactions sur immeubles et fonds de commerce (T) et Gestion immobilière (G) n°CPI 4401 2016 000 010 388 délivrée par la CCI Nantes – Saint Nazaire. Compte séquestre n(Numéro supprimé)67 BPA SAINT-SEBASTIEN-SUR-LOIRE (44230). Garantie GALIAN-SMABTP – 89 rue de la Boétie, 75008 Paris – n°28137 J pour 2 000 000 euros pour T et 120 000 euros pour G. Assurance responsabilité civile professionnelle par GALIAN-SMABTP n° de police 28137.JMandat réf : 405840 – Le professionnel garantit et sécurise votre projet immobilier. Muriel GARNIER (EI) Agent Commercial – Numéro RSAC : EVRY 981 209 620 – .
Boussy-Saint-Antoine
TERRAINVENTE d’un terrain de 860 m² à Boussy-Saint-AntoineParis à 30 min (RER D) – Terrain de 860 m² en vente à Boussy-Saint-Antoine (91800).À dix minutes : RER D (Boussy-Saint-Antoine), gare (Boussy-Saint-Antoine), établissements scolaires, tennis, bassin de natation, bowling, boulangeries, commerces, supermarché, épicerie et supérette. Paris à 23 km.Il est à vendre pour la somme de 170 000 €. Contactez Steeve KANOR ((Numéro supprimé)) pour obtenir de plus amples informations sur le terrain, sur les modalités de vente ou sur les démarches à suivre. Concrétisez vos projets immobiliers avec Maisons Evolution Tigery.Annonce proposée par un Agent Commercial Partenaire.
Boussy-Saint-Antoine
TERRAIN ET MAISONMaison de 4 pièces (104 m²) à vendre à Boussy-Saint-AntoineParis à 30 min (RER D) – À Boussy-Saint-Antoine (91800), maison neuve à vendre de 4 pièces, 2 niveaux, 104 m² de surface sur 860 m² de terrain. Elle dispose de trois chambres, d’une cuisine et d’une salle de bains.À dix minutes : RER D (Boussy-Saint-Antoine), gare (Boussy-Saint-Antoine), établissements scolaires, tennis, bassin de natation, bowling, boulangeries, commerces, supermarché, boucherie-charcuterie et bureau de poste. Paris à 23 km.Cette maison de 4 pièces est à vendre pour la somme de 440 860 €.Contactez notre agence (KANOR Steeve : (Numéro supprimé)) pour tout renseignement sur la maison ou sur les démarches à suivre.Annonce proposée par un Agent Commercial Partenaire.
Boussy-Saint-Antoine
TERRAIN ET MAISONMaison T4 (92 m²) à vendre à Boussy-Saint-AntoineParis à 30 min (RER D) – À Boussy-Saint-Antoine (91800), maison neuve en vente de 4 pièces, 92 m² sur 860 m² de terrain. Elle compte trois chambres, une cuisine et une salle de bains.À dix minutes : RER D (Boussy-Saint-Antoine), gare (Boussy-Saint-Antoine), établissements scolaires, tennis, bassin de natation, bowling, boulangeries, commerces, supermarché, épicerie et bureau de poste. Paris à 23 km.Le prix de vente de cette maison de 4 pièces est de 384 841 €.Contactez notre agence (Steeve KANOR : (Numéro supprimé)) pour toute information sur la maison.Annonce proposée par un Agent Commercial Partenaire.
Évry-Grégy-sur-Yerre
TERRAINProche Évry-Grégy-sur-Yerre : terrain de 700 m² à vendreProche Évry-Grégy-sur-Yerre (77166) à deux pas de la station Lieusaint-Moissy du RER D (20 min de Paris), donnez vie à votre projet immobilier sur ce terrain de 700 m². Le terrain est proche des commerces et des écoles. On trouve l’École Primaire la Clé des Champs à moins de 10 minutes à pied. Côté transports en commun, il y a la ligne de RER D (Lieusaint-Moissy) ainsi que quatre gares à moins de 10 minutes en voiture. On trouve une bibliothèque, un tennis, deux commerces et une boulangerie à quelques minutes du terrain.Il est à vendre pour la somme de 155 000 €. Contactez Jerome RAOUX ((Numéro supprimé)) pour obtenir de plus amples informations sur ce terrain, sur les démarches à suivre ou sur les modalités de vente.Annonce proposée par un Agent Commercial Partenaire.
Lieusaint
TERRAINProche Lieusaint : terrain de 670 m² à vendreÀ deux pas de la station Lieusaint-Moissy du RER D (20 min de Paris) proche Lieusaint (77127), grand terrain. Réalisez-y votre projet immobilier. Le terrain est proche des écoles et des commerces. Plusieurs écoles (maternelle, élémentaire, primaire et collège) sont implantées à moins de 10 minutes à pied, tout comme une structure d’accueil pour les enfants en bas âge. Niveau transports, il y a la ligne de RER D (Lieusaint-Moissy) ainsi que 17 gares à moins de 10 minutes en voiture. On trouve une bibliothèque, des commerces, des boulangeries, deux supermarchés, un bureau de poste et une supérette à quelques minutes à peine.Il est à vendre pour la somme de 155 000 €. Contactez Jerome RAOUX (tél : (Numéro supprimé)) pour toute question sur ce terrain, sur les modalités de vente ou sur les démarches à suivre. Donnez vie à vos projets immobiliers avec Maisons France Confort Nemours.Annonce proposée par un Agent Commercial Partenaire.
Évry-Grégy-sur-Yerre
TERRAIN ET MAISONVENTE : maison de 4 pièces (70 m²) proche Évry-Grégy-sur-YerreMAISON 4 PIÈCES NEUVE – À proximité de la station Lieusaint-Moissy du RER D (20 min de Paris), découvrez à vendre proche Évry-Grégy-sur-Yerre (77166), cette maison de 4 pièces de plain-pied de 70 m² et de 700 m² de terrain. Son intérieur dispose de deux chambres, d’une cuisine et d’une salle de bains.Cette maison est neuve.Il y a l’École Primaire la Clé des Champs à moins de 10 minutes à pied. Niveau transports, on trouve la ligne de RER D (Lieusaint-Moissy) ainsi que quatre gares à moins de 10 minutes en voiture. Il y a une bibliothèque, un tennis, deux commerces et une boulangerie à quelques minutes de la maison.Elle est à vendre pour la somme de 340 000 €.Prenez contact avec Jerome RAOUX (tél : (Numéro supprimé)) pour toute question sur ce bien. Concrétisez vos projets immobiliers avec Maisons France Confort Nemours.Annonce proposée par un Agent Commercial Partenaire.
Évry-Grégy-sur-Yerre
TERRAIN ET MAISONProche Évry-Grégy-sur-Yerre : maison de 5 pièces (90 m²) à vendreMAISON 5 PIÈCES NEUVE – Proche de la station Lieusaint-Moissy du RER D (20 min de Paris), nous vous présentons cette maison de 5 pièces de plain-pied de 90 m² proche Évry-Grégy-sur-Yerre (77166). Elle dispose de trois chambres, d’une cuisine et d’une salle de bains.Le terrain de la propriété s’étend sur 700 m².Cette maison est neuve.Il y a l’École Primaire la Clé des Champs à moins de 10 minutes à pied. Niveau transports, on trouve la ligne de RER D (Lieusaint-Moissy) ainsi que quatre gares à moins de 10 minutes en voiture. On trouve une bibliothèque, un tennis, deux commerces et une boulangerie dans les environs.Elle est à vendre pour la somme de 365 000 €.Contactez Jerome RAOUX (tél : (Numéro supprimé)) pour toute question sur cette maison.Annonce proposée par un Agent Commercial Partenaire.
L’actualité immobilière à Mandres-les-Roses
27/11/2023
02/11/2023
30/10/2023
20/10/2023
16/10/2023
16/10/2023