Maison à construire à Noiseau (94880)
Images
Description
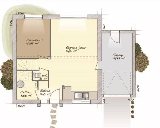
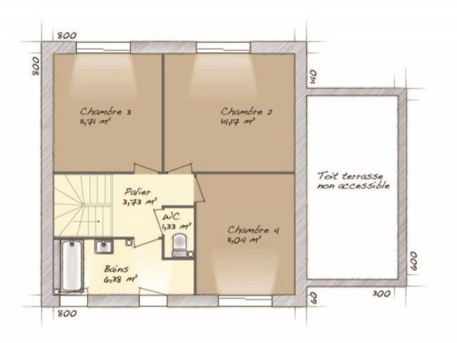
VENTE d'une maison F6 (98 m²) à Noiseau
MAISON 6 PIÈCES NEUVE - PROCHE DE PARIS
À quelques minutes du RER A (station Sucy-Bonneuil, 20 min de Paris), nous sommes heureux de vous présenter cette maison de 6 pièces de 98 m² et de 356 m² de terrain à Noiseau (94880).
Il s'agit d'une maison de 2 niveaux. Son intérieur offre quatre chambres, une cuisine et une salle de bains. Cette maison est neuve.
Il y a l'École Élémentaire Jean Jaurès et l'École Maternelle Albert Camus à moins de 10 minutes à pied. Niveau transports en commun, on trouve quatre lignes de RER (A, E, D et C) ainsi que 16 gares à moins de 10 minutes en voiture. Il y a un tennis, une bibliothèque, quatre commerces, un supermarché et une épicerie à proximité de la maison.
Son prix de vente est de 456 000 €.
N'hésitez pas à prendre contact avec Christophe MONTANIER (tél : (Numéro supprimé)) pour toute question sur cette maison ou sur les démarches à suivre. Faites de vos projets immobiliers une réalité avec Maisons Balency Saint-Maur-des-Fossés.
Annonce proposée par un Agent Commercial Partenaire.
Logement susceptibles de vous intéresser
Nous vous proposons de découvrir aussi cette sélection de logements situés à moins de 10km de Noiseau et qui seraient susceptibles de vous intéresser.
Villecresnes
TERRAIN ET MAISONRéalisez votre projet de construction de maison RE 2020 avec PAVILLONS D'ÎLE-DE-FRANCE (constructeur de maisons de gamme et sur-mesure depuis plus de 50 ans) :- Plan sur-mesure et personnalisé de 2 à 5 chambres- Mode de chauffage au choix- Grands choix d'équipements et de prestations- Matériaux de qualité selon les normes en vigueur- Accompagnement dans le choix et l’acquisition du terrainDemandez une étude gratuite et personnalisée de votre projet de construction !Contactez Stéphane VERHAUVEN au (Numéro supprimé) ou au (Numéro supprimé) (Pavillons d'Île-de-France – Agence de Meaux).Prix avec assurance dommages-ouvrage comprise, hors VRD, terrain viabilisé, assainissement compris, frais de notaire non compris, taxes non comprises, frais divers non compris. Terrain sélectionné et vu pour vous sous réserve de disponibilité et au prix indiqué par notre partenaire foncier. Visuels non contractuels.Cette annonce a été créée et diffusée avec le logiciel VITAHOME.
Sucy-en-Brie
TERRAIN ET MAISONRéalisez votre projet de construction de maison RE 2020 avec PAVILLONS D'ÎLE-DE-FRANCE (constructeur de maisons de gamme et sur-mesure depuis plus de 50 ans) :- Plan sur-mesure et personnalisé de 2 à 5 chambres- Mode de chauffage au choix- Grands choix d'équipements et de prestations- Matériaux de qualité selon les normes en vigueur- Accompagnement dans le choix et l’acquisition du terrainDemandez une étude gratuite et personnalisée de votre projet de construction !Contactez Stéphane VERHAUVEN au (Numéro supprimé) ou au (Numéro supprimé) (Pavillons d'Île-de-France – Agence de Meaux).Prix avec assurance dommages-ouvrage comprise, hors VRD, terrain non viabilisé, assainissement non compris, frais de notaire non compris, taxes non comprises, frais divers non compris. Terrain sélectionné et vu pour vous sous réserve de disponibilité et au prix indiqué par notre partenaire foncier. Visuels non contractuels.Cette annonce a été créée et diffusée avec le logiciel VITAHOME.
Villecresnes
TERRAIN ET MAISONRéalisez votre projet de construction de maison RE 2020 avec PAVILLONS D'ÎLE-DE-FRANCE (constructeur de maisons de gamme et sur-mesure depuis plus de 50 ans) :- Plan sur-mesure et personnalisé de 2 à 5 chambres- Mode de chauffage au choix- Grands choix d'équipements et de prestations- Matériaux de qualité selon les normes en vigueur- Accompagnement dans le choix et l’acquisition du terrainDemandez une étude gratuite et personnalisée de votre projet de construction !Contactez Stéphane VERHAUVEN au (Numéro supprimé) ou au (Numéro supprimé) (Pavillons d'Île-de-France – Agence de Meaux).Prix avec assurance dommages-ouvrage comprise, hors VRD, terrain viabilisé, assainissement compris, frais de notaire non compris, taxes non comprises, frais divers non compris. Terrain sélectionné et vu pour vous sous réserve de disponibilité et au prix indiqué par notre partenaire foncier. Visuels non contractuels.Cette annonce a été créée et diffusée avec le logiciel VITAHOME.
Saint-Maur-des-Fossés
TERRAIN ET MAISONRéalisez votre projet de construction de maison RE 2020 avec PAVILLONS D'ÎLE-DE-FRANCE (constructeur de maisons de gamme et sur-mesure depuis plus de 50 ans) :- Plan sur-mesure et personnalisé de 2 à 5 chambres- Mode de chauffage au choix- Grands choix d'équipements et de prestations- Matériaux de qualité selon les normes en vigueur- Accompagnement dans le choix et l’acquisition du terrainInformations du terrain : A proximitéDemandez une étude gratuite et personnalisée de votre projet de construction !Contactez Stéphane VERHAUVEN au (Numéro supprimé) ou au (Numéro supprimé) (Pavillons d'Île-de-France – Agence de Meaux).Prix avec assurance dommages-ouvrage comprise, hors VRD, terrain non viabilisé, assainissement non compris, frais de notaire non compris, taxes non comprises, frais divers non compris. Terrain sélectionné et vu pour vous sous réserve de disponibilité et au prix indiqué par notre partenaire foncier. Visuels non contractuels.Cette annonce a été créée et diffusée avec le logiciel VITAHOME.
Champigny-sur-Marne
TERRAIN ET MAISONChampigny-sur-Marne : maison de 5 pièces (96 m²) en venteQUARTIER RECHERCHÉ – MAISON 5 PIÈCES NEUVEEn vente : au pied de la station Les Boullereaux Champigny du RER E (20 min de Paris), nous sommes heureux de vous présenter cette maison de 5 pièces de 96 m² et de 340 m² de terrain située dans un quartier attractif de Champigny-sur-Marne (94500).Cette maison compte 2 niveaux. Son intérieur comporte quatre chambres, une cuisine et une salle de bains. Cette maison est neuve.La maison se situe dans un secteur convoité. On trouve plusieurs établissements scolaires (maternelle, élémentaire et collège) à moins de 10 minutes à pied, tout comme quatre structures d’accueil pour les tout-petits. Niveau transports en commun, il y a les lignes E, A, D et C du RER ainsi que 26 gares à moins de 10 minutes en voiture. On trouve un tennis, une bibliothèque, des commerces, des boulangeries, trois supermarchés, deux bureaux de poste et deux supérettes à proximité du logement. Enfin, le marché Centre-Ville anime le quartier.Elle est à vendre pour la somme de 370 000 €.N’hésitez pas à prendre contact avec notre agence (SOUMARMON Félix : (Numéro supprimé)) pour toute question sur la maison.Annonce proposée par un Agent Commercial Partenaire.
Valenton
TERRAIN ET MAISONRéalisez votre projet de construction de maison RE 2020 avec PAVILLONS D'ÎLE-DE-FRANCE (constructeur de maisons de gamme et sur-mesure depuis plus de 50 ans) :- Plan sur-mesure et personnalisé de 2 à 5 chambres- Mode de chauffage au choix- Grands choix d'équipements et de prestations- Matériaux de qualité selon les normes en vigueur- Accompagnement dans le choix et l’acquisition du terrainDemandez une étude gratuite et personnalisée de votre projet de construction !Contactez Stéphane VERHAUVEN au (Numéro supprimé) ou au (Numéro supprimé) (Pavillons d'Île-de-France – Agence de Meaux).Prix avec assurance dommages-ouvrage comprise, hors VRD, terrain non viabilisé, assainissement non compris, frais de notaire non compris, taxes non comprises, frais divers non compris. Terrain sélectionné et vu pour vous sous réserve de disponibilité et au prix indiqué par notre partenaire foncier. Visuels non contractuels.Cette annonce a été créée et diffusée avec le logiciel VITAHOME.
Champigny-sur-Marne
TERRAIN ET MAISONChampigny-sur-Marne : maison de 7 pièces (120 m²) à vendreQUARTIER RECHERCHÉ – MAISON 7 PIÈCES NEUVEEn vente : à quelques minutes du RER E (station Les Boullereaux Champigny, 20 min de Paris), dans un quartier recherché de Champigny-sur-Marne (94500), nous sommes heureux de vous proposer cette maison de 7 pièces de 120 m². Son intérieur dispose de cinq chambres, d’une cuisine et de deux salles de bains.Le terrain de cette maison est de 340 m².Il s’agit d’une maison de 2 niveaux. Elle est neuve.La maison se situe dans un secteur convoité. Plusieurs écoles (maternelle, élémentaire et collège) sont implantées à moins de 10 minutes à pied, tout comme quatre crèches. Niveau transports en commun, on trouve les lignes de RER E, A, D et C ainsi que 26 gares à moins de 10 minutes en voiture. Il y a un tennis, une bibliothèque, des commerces, des boulangeries, trois supermarchés, des épiceries et deux supérettes à proximité du logement. Le marché Centre-Ville anime les environs.Elle est à vendre pour la somme de 395 000 €.Prenez contact avec notre agence (Félix SOUMARMON : (Numéro supprimé)) pour obtenir de plus amples informations sur la propriété ou sur les démarches à suivre. Faites de vos projets immobiliers une réalité avec Maisons France Confort Magny-le-Hongre.Annonce proposée par un Agent Commercial Partenaire.
Champigny-sur-Marne
TERRAIN ET MAISONChampigny-sur-Marne : maison de 6 pièces (105 m²) à vendreQUARTIER RECHERCHÉ – MAISON 6 PIÈCES NEUVEÀ vendre : à proximité de la station Les Boullereaux Champigny (Paris à 20 min par le RER E), Maisons France Confort Magny-le-Hongre vous propose cette maison de 6 pièces de plain-pied de 105 m² et de 340 m² de terrain, nichée dans un quartier convoité de Champigny-sur-Marne (94500).Son intérieur dispose de quatre chambres, d’une cuisine et de deux salles de bains. La maison est neuve.La maison est située dans un secteur attractif. On trouve plusieurs établissements scolaires (maternelle, élémentaire et collège) à moins de 10 minutes à pied, tout comme quatre crèches. Côté transports, il y a les lignes E, A, D et C du RER ainsi que 26 gares à moins de 10 minutes en voiture. On trouve un tennis, une bibliothèque, des commerces, des boulangeries, trois supermarchés, des épiceries et deux supérettes à quelques minutes du bien. Le marché Centre-Ville anime le quartier.Son prix de vente est de 390 000 €.Contactez Félix SOUMARMON ((Numéro supprimé)) pour tout renseignement sur la maison. Maisons France Confort Magny-le-Hongre est là pour vous accompagner à toutes les étapes de votre projet.Annonce proposée par un Agent Commercial Partenaire.
Villecresnes
TERRAIN ET MAISONRéalisez votre projet de construction de maison RE 2020 avec PAVILLONS D'ÎLE-DE-FRANCE (constructeur de maisons de gamme et sur-mesure depuis plus de 50 ans) :- Plan sur-mesure et personnalisé de 2 à 5 chambres- Mode de chauffage au choix- Grands choix d'équipements et de prestations- Matériaux de qualité selon les normes en vigueur- Accompagnement dans le choix et l’acquisition du terrainDemandez une étude gratuite et personnalisée de votre projet de construction !Contactez Stéphane VERHAUVEN au (Numéro supprimé) ou au (Numéro supprimé) (Pavillons d'Île-de-France – Agence de Meaux).Prix avec assurance dommages-ouvrage comprise, hors VRD, terrain viabilisé, assainissement compris, frais de notaire non compris, taxes non comprises, frais divers non compris. Terrain sélectionné et vu pour vous sous réserve de disponibilité et au prix indiqué par notre partenaire foncier. Visuels non contractuels.Cette annonce a été créée et diffusée avec le logiciel VITAHOME.
L’actualité immobilière à Noiseau
27/11/2023
02/11/2023
30/10/2023
20/10/2023
16/10/2023
16/10/2023