Maison à construire à Saint-Maur-des-Fossés (94100)
Images
Description
Saint Maur des Fossés
Quartier pavillonnaire
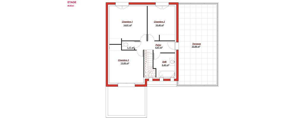
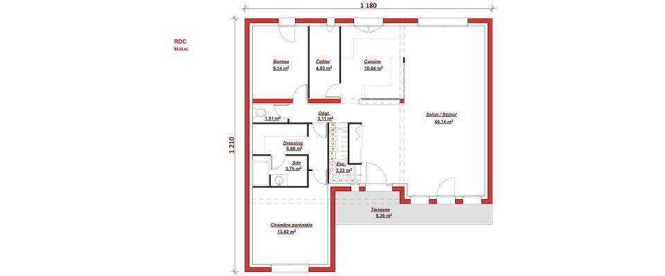
Projet de construction d'une surface habitable de 145m2, disposant de 5 chambres dont une suite parentale au rdc.
Le tout proposé sur un terrain de 450m2, à proximité des commodités.
Projet sur mesure réalisé suivant vos souhaits. Nous contacter au (Numéro supprimé)
Logement susceptibles de vous intéresser
Nous vous proposons de découvrir aussi cette sélection de logements situés à moins de 10km de Saint-Maur-des-Fossés et qui seraient susceptibles de vous intéresser.
Villecresnes
TERRAIN ET MAISONRéalisez votre projet de construction de maison RE 2020 avec PAVILLONS D'ÎLE-DE-FRANCE (constructeur de maisons de gamme et sur-mesure depuis plus de 50 ans) :- Plan sur-mesure et personnalisé de 2 à 5 chambres- Mode de chauffage au choix- Grands choix d'équipements et de prestations- Matériaux de qualité selon les normes en vigueur- Accompagnement dans le choix et l’acquisition du terrainDemandez une étude gratuite et personnalisée de votre projet de construction !Contactez Stéphane VERHAUVEN au (Numéro supprimé) ou au (Numéro supprimé) (Pavillons d'Île-de-France – Agence de Meaux).Prix avec assurance dommages-ouvrage comprise, hors VRD, terrain viabilisé, assainissement compris, frais de notaire non compris, taxes non comprises, frais divers non compris. Terrain sélectionné et vu pour vous sous réserve de disponibilité et au prix indiqué par notre partenaire foncier. Visuels non contractuels.Cette annonce a été créée et diffusée avec le logiciel VITAHOME.
Vitry-sur-Seine
TERRAINEXCLUSIVITÉ – 94440 – VITRY-SUR-SEINE – TERRAIN CONSTRUCTIBLE – FAÇADE 10 M – ORIENTATION EST / OUEST – TRAMWAY T9 – FUTUR MÉTRO L15 SUDEffiCity, l’agence qui estime votre bien en ligne, et Irena Novakovic vous proposent, dans un quartier calme et pavillonnaire recherché de Vitry-sur-Seine, à seulement 650 mètres du tramway T9 « Mairie de Vitry » et du futur métro ligne 15 Sud, un terrain constructible de 295 m² disposant d’une façade d’environ 10 mètres et d’une orientation Est / Ouest, idéale pour optimiser la luminosité naturelle tout au long de la journée.De forme rectangulaire, ce terrain permet la construction d’une maison individuelle avec jardin et stationnement, bénéficiant d’un ensoleillement traversant. INFORMATIONS URBANISTIQUES CLÉS :Zone : UCEmprise au sol maximale : 58 m²Construction possible : R+1 + comblesHauteur maximale : 10 mètresIdéal pour maison familiale avec étages et combles aménagésCe terrain offre un cadre de vie recherché :quartier pavillonnaire calmeproximité des transportsécoles et commerces accessibles rapidementsecteur en pleine valorisation grâce au projet du Grand ParisBien rare sur le secteur, parfaitement adapté à un projet de résidence principale ou patrimonial. Contactez-moi pour étudier votre projet et programmer une visite. Les informations sur les risques auxquels ce bien est exposé sont disponibles sur le site Georisque : georisques. gouv. fr Irena Novakovic – EI – est Agent Commercial mandataire en immobilier, immatriculé au Registre Spécial des Agents Commerciaux du Tribunal de Commerce de Créteil sous le n(Numéro supprimé).Siège social du mandant : effiCity, 48 avenue de Villiers – 75017 PARIS – Société par Actions Simplifiée, société au capital de 132 373,05 euros, immatriculée au RCS Paris 497 617 746 et titulaire de la Carte professionnelle CPI 7501 2015 000 002 025 – CCI Paris IDF – Caisse de Garantie : GALIAN Assurances 89 rue de la Boétie 75008 Paris
Sucy-en-Brie
TERRAIN ET MAISONRéalisez votre projet de construction de maison RE 2020 avec PAVILLONS D'ÎLE-DE-FRANCE (constructeur de maisons de gamme et sur-mesure depuis plus de 50 ans) :- Plan sur-mesure et personnalisé de 2 à 5 chambres- Mode de chauffage au choix- Grands choix d'équipements et de prestations- Matériaux de qualité selon les normes en vigueur- Accompagnement dans le choix et l’acquisition du terrainDemandez une étude gratuite et personnalisée de votre projet de construction !Contactez Stéphane VERHAUVEN au (Numéro supprimé) ou au (Numéro supprimé) (Pavillons d'Île-de-France – Agence de Meaux).Prix avec assurance dommages-ouvrage comprise, hors VRD, terrain non viabilisé, assainissement non compris, frais de notaire non compris, taxes non comprises, frais divers non compris. Terrain sélectionné et vu pour vous sous réserve de disponibilité et au prix indiqué par notre partenaire foncier. Visuels non contractuels.Cette annonce a été créée et diffusée avec le logiciel VITAHOME.
Villecresnes
TERRAIN ET MAISONRéalisez votre projet de construction de maison RE 2020 avec PAVILLONS D'ÎLE-DE-FRANCE (constructeur de maisons de gamme et sur-mesure depuis plus de 50 ans) :- Plan sur-mesure et personnalisé de 2 à 5 chambres- Mode de chauffage au choix- Grands choix d'équipements et de prestations- Matériaux de qualité selon les normes en vigueur- Accompagnement dans le choix et l’acquisition du terrainDemandez une étude gratuite et personnalisée de votre projet de construction !Contactez Stéphane VERHAUVEN au (Numéro supprimé) ou au (Numéro supprimé) (Pavillons d'Île-de-France – Agence de Meaux).Prix avec assurance dommages-ouvrage comprise, hors VRD, terrain viabilisé, assainissement compris, frais de notaire non compris, taxes non comprises, frais divers non compris. Terrain sélectionné et vu pour vous sous réserve de disponibilité et au prix indiqué par notre partenaire foncier. Visuels non contractuels.Cette annonce a été créée et diffusée avec le logiciel VITAHOME.
Saint-Maur-des-Fossés
TERRAIN ET MAISONRéalisez votre projet de construction de maison RE 2020 avec PAVILLONS D'ÎLE-DE-FRANCE (constructeur de maisons de gamme et sur-mesure depuis plus de 50 ans) :- Plan sur-mesure et personnalisé de 2 à 5 chambres- Mode de chauffage au choix- Grands choix d'équipements et de prestations- Matériaux de qualité selon les normes en vigueur- Accompagnement dans le choix et l’acquisition du terrainInformations du terrain : A proximitéDemandez une étude gratuite et personnalisée de votre projet de construction !Contactez Stéphane VERHAUVEN au (Numéro supprimé) ou au (Numéro supprimé) (Pavillons d'Île-de-France – Agence de Meaux).Prix avec assurance dommages-ouvrage comprise, hors VRD, terrain non viabilisé, assainissement non compris, frais de notaire non compris, taxes non comprises, frais divers non compris. Terrain sélectionné et vu pour vous sous réserve de disponibilité et au prix indiqué par notre partenaire foncier. Visuels non contractuels.Cette annonce a été créée et diffusée avec le logiciel VITAHOME.
Champigny-sur-Marne
TERRAIN ET MAISONChampigny-sur-Marne : maison de 5 pièces (96 m²) en venteQUARTIER RECHERCHÉ – MAISON 5 PIÈCES NEUVEEn vente : au pied de la station Les Boullereaux Champigny du RER E (20 min de Paris), nous sommes heureux de vous présenter cette maison de 5 pièces de 96 m² et de 340 m² de terrain située dans un quartier attractif de Champigny-sur-Marne (94500).Cette maison compte 2 niveaux. Son intérieur comporte quatre chambres, une cuisine et une salle de bains. Cette maison est neuve.La maison se situe dans un secteur convoité. On trouve plusieurs établissements scolaires (maternelle, élémentaire et collège) à moins de 10 minutes à pied, tout comme quatre structures d’accueil pour les tout-petits. Niveau transports en commun, il y a les lignes E, A, D et C du RER ainsi que 26 gares à moins de 10 minutes en voiture. On trouve un tennis, une bibliothèque, des commerces, des boulangeries, trois supermarchés, deux bureaux de poste et deux supérettes à proximité du logement. Enfin, le marché Centre-Ville anime le quartier.Elle est à vendre pour la somme de 370 000 €.N’hésitez pas à prendre contact avec notre agence (SOUMARMON Félix : (Numéro supprimé)) pour toute question sur la maison.Annonce proposée par un Agent Commercial Partenaire.
Valenton
TERRAIN ET MAISONRéalisez votre projet de construction de maison RE 2020 avec PAVILLONS D'ÎLE-DE-FRANCE (constructeur de maisons de gamme et sur-mesure depuis plus de 50 ans) :- Plan sur-mesure et personnalisé de 2 à 5 chambres- Mode de chauffage au choix- Grands choix d'équipements et de prestations- Matériaux de qualité selon les normes en vigueur- Accompagnement dans le choix et l’acquisition du terrainDemandez une étude gratuite et personnalisée de votre projet de construction !Contactez Stéphane VERHAUVEN au (Numéro supprimé) ou au (Numéro supprimé) (Pavillons d'Île-de-France – Agence de Meaux).Prix avec assurance dommages-ouvrage comprise, hors VRD, terrain non viabilisé, assainissement non compris, frais de notaire non compris, taxes non comprises, frais divers non compris. Terrain sélectionné et vu pour vous sous réserve de disponibilité et au prix indiqué par notre partenaire foncier. Visuels non contractuels.Cette annonce a été créée et diffusée avec le logiciel VITAHOME.
Champigny-sur-Marne
TERRAIN ET MAISONChampigny-sur-Marne : maison de 7 pièces (120 m²) à vendreQUARTIER RECHERCHÉ – MAISON 7 PIÈCES NEUVEEn vente : à quelques minutes du RER E (station Les Boullereaux Champigny, 20 min de Paris), dans un quartier recherché de Champigny-sur-Marne (94500), nous sommes heureux de vous proposer cette maison de 7 pièces de 120 m². Son intérieur dispose de cinq chambres, d’une cuisine et de deux salles de bains.Le terrain de cette maison est de 340 m².Il s’agit d’une maison de 2 niveaux. Elle est neuve.La maison se situe dans un secteur convoité. Plusieurs écoles (maternelle, élémentaire et collège) sont implantées à moins de 10 minutes à pied, tout comme quatre crèches. Niveau transports en commun, on trouve les lignes de RER E, A, D et C ainsi que 26 gares à moins de 10 minutes en voiture. Il y a un tennis, une bibliothèque, des commerces, des boulangeries, trois supermarchés, des épiceries et deux supérettes à proximité du logement. Le marché Centre-Ville anime les environs.Elle est à vendre pour la somme de 395 000 €.Prenez contact avec notre agence (Félix SOUMARMON : (Numéro supprimé)) pour obtenir de plus amples informations sur la propriété ou sur les démarches à suivre. Faites de vos projets immobiliers une réalité avec Maisons France Confort Magny-le-Hongre.Annonce proposée par un Agent Commercial Partenaire.
Champigny-sur-Marne
TERRAIN ET MAISONChampigny-sur-Marne : maison de 6 pièces (105 m²) à vendreQUARTIER RECHERCHÉ – MAISON 6 PIÈCES NEUVEÀ vendre : à proximité de la station Les Boullereaux Champigny (Paris à 20 min par le RER E), Maisons France Confort Magny-le-Hongre vous propose cette maison de 6 pièces de plain-pied de 105 m² et de 340 m² de terrain, nichée dans un quartier convoité de Champigny-sur-Marne (94500).Son intérieur dispose de quatre chambres, d’une cuisine et de deux salles de bains. La maison est neuve.La maison est située dans un secteur attractif. On trouve plusieurs établissements scolaires (maternelle, élémentaire et collège) à moins de 10 minutes à pied, tout comme quatre crèches. Côté transports, il y a les lignes E, A, D et C du RER ainsi que 26 gares à moins de 10 minutes en voiture. On trouve un tennis, une bibliothèque, des commerces, des boulangeries, trois supermarchés, des épiceries et deux supérettes à quelques minutes du bien. Le marché Centre-Ville anime le quartier.Son prix de vente est de 390 000 €.Contactez Félix SOUMARMON ((Numéro supprimé)) pour tout renseignement sur la maison. Maisons France Confort Magny-le-Hongre est là pour vous accompagner à toutes les étapes de votre projet.Annonce proposée par un Agent Commercial Partenaire.
L’actualité immobilière à Saint-Maur-des-Fossés
27/11/2023
02/11/2023
30/10/2023
20/10/2023
16/10/2023
16/10/2023