Maison à construire à Vitry-sur-Seine (94400)
Images
Description
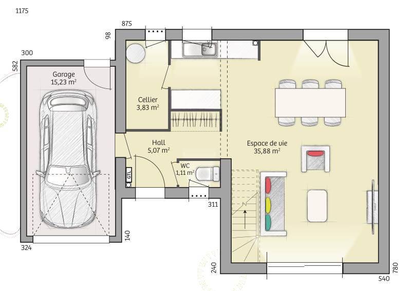
Vitry-sur-Seine : maison de 5 pièces (90 m²) en vente
IDÉALEMENT SITUÉE - MAISON 5 PIÈCES NEUVE
Proche du RER C (5 min de Paris), notre agence Maisons France Confort Magny-le-Hongre est heureuse de vous proposer cette maison de 5 pièces de 90 m² et de 180 m² de terrain à vendre idéalement située dans Vitry-sur-Seine (94400).
Cette maison comporte 2 niveaux. Son intérieur dispose de trois chambres, d'une cuisine et d'une salle de bains. La maison est neuve.
Cette maison se situe dans un quartier prisé. On trouve des écoles de tous types (de la maternelle au lycée) à moins de 10 minutes à pied, tout comme une crèche. Niveau transports en commun, il y a cinq lignes de RER ainsi que 34 gares à moins de 10 minutes en voiture. On trouve un bassin de natation, une bibliothèque, un tennis, des boulangeries, des commerces, deux supermarchés, deux bureaux de poste et une supérette dans les environs. 2 marchés animent le quartier.
Elle est proposée à l'achat pour 380 000 €.
N'hésitez pas à prendre contact avec Hugo NGUYEN (tél : (Numéro supprimé)) pour tout renseignement sur la maison, sur les démarches à suivre ou sur les modalités de vente. Maisons France Confort Magny-le-Hongre vous accompagne à toutes les étapes de votre projet et dans tous vos projets immobiliers.
Annonce proposée par un Agent Commercial Partenaire.
Logement susceptibles de vous intéresser
Nous vous proposons de découvrir aussi cette sélection de logements situés à moins de 10km de Vitry-sur-Seine et qui seraient susceptibles de vous intéresser.
Vitry-sur-Seine
TERRAIN ET MAISONA VITRY-SUR-SEINE sur un terrain de 485 m², Maisons Clairval vous propose de réaliser cette maison neuve d'une surface de 95 m² habitables avec 4 chambres. Informations du terrain : Terrain idéalement situé à Vitry-sur-Seine dans un secteur pavillonnaire calme et recherché. parfait pour bâtir la maison de vos rêves ou pour un projet d'investissement, pas de circulation de voitures, pas de vis a vis et pas de mitoyenneté.Profitez d'un cadre de vie exceptionnel avec toutes les commodités à proximité immédiate : commerces, écoles, services et parcs.La desserte est excellente : RER C, bus et tramway. Atout majeur, la future gare de la ligne 15 du Grand Paris Express valorisera durablement votre bien. Une opportunité rare à saisir dans un quartier dynamique et en plein essor.contact : (Numéro supprimé)Demandez une étude gratuite et personnalisée de votre projet de construction !Contactez nous au (Numéro supprimé) (Maisons Clairval).Prix avec assurance dommages-ouvrage comprise, VRD non compris, terrain non viabilisé, adaptation non comprise, assainissement non compris, frais de notaire non compris, taxes non comprises, frais divers non compris. Terrain sélectionné et vu pour vous sous réserve de disponibilité et au prix indiqué par notre partenaire foncier. Conditions et visuels non contractuels.Cette annonce a été créée et diffusée avec le logiciel VITAHOME.
Vitry-sur-Seine
TERRAIN ET MAISONTerrain de 648 m², hors lotissement, avec une belle façade de plus de 18 m, viabilité sur rue, très belle exposition sans vis a vis, non mitoyen,Ecoles, collège, Gare à moins de 10 min à pieds dernier lot disponible dans tout le quartier.Maison neuve sur mesure Plain Pied de 120 m² habitables avec 4 chambres, dont une suite parentale, séjour traversant, isolation renforcé, PAC air/eau, volets roulants crépusculaires, avec garantie 10 ans et dommage ouvrage (DO) comprise dans le prix.prix ferme et définitive dès la signature du contrat, possibilité de bénéficier du prêt a taux zéro (PTZ),Etude de financement, Plans et visite possible sur simple demande.contact : (Numéro supprimé)Contactez nous au (Numéro supprimé) (Maisons Clairval).Prix avec assurance dommages-ouvrage comprise, VRD non compris, terrain non viabilisé, adaptation non comprise, assainissement non compris, frais de notaire non compris, taxes non comprises, frais divers non compris. Terrain sélectionné et vu pour vous sous réserve de disponibilité et au prix indiqué par notre partenaire foncier. Conditions et visuels non contractuels.Cette annonce a été créée et diffusée avec le logiciel VITAHOME.
Châtenay-Malabry
TERRAINVENTE : terrain de 355 m² à Châtenay-MalabryParis à 15 min (RER B, Robinson) – Bénéficiant d’un emplacement d’exception dans Châtenay-Malabry (92290), en vente : réalisez votre projet sur ce terrain de 355 m².À proximité : RER (lignes B et C), gares, établissements scolaires, bibliothèque, tennis, commerces, boulangeries, supermarchés, poissonneries et bureau de poste.Son prix de vente est de 555 000 €. Contactez Steeve KANOR (tél : (Numéro supprimé)) pour toute question sur le terrain, sur les démarches à suivre ou sur les modalités de vente. Maisons Evolution Tigery vous accompagne dans tous vos projets immobiliers et à toutes les étapes de votre projet.Annonce proposée par un Agent Commercial Partenaire.
Châtenay-Malabry
TERRAIN ET MAISONChâtenay-Malabry : maison de 4 pièces (110 m²) à vendreParis à 15 min (RER B, Robinson) – À découvrir bénéficiant d’un emplacement privilégié dans Châtenay-Malabry (92290) : maison neuve 4 pièces en vente. 2 niveaux, surface de 110 m² sur 355 m² de terrain. Son intérieur comporte quatre chambres, une cuisine et deux salles de bains.À proximité : RER (lignes B et C), gares, établissements scolaires, bibliothèque, tennis, commerces, boulangeries, supermarchés, bureau de poste et boucheries-charcuteries.Le prix de vente de cette maison de 4 pièces est de 845 900 €.Contactez Steeve KANOR (tél : (Numéro supprimé)) pour tout renseignement sur la maison. Maisons Evolution Tigery est là pour vous accompagner dans tous vos projets immobiliers.Annonce proposée par un Agent Commercial Partenaire.
Antony
TERRAINSecteur très recherche; situé à 10 ' du marchéPrix : 525000 €.Sur ce terrain de 357 m² à ANTONY, Maisons Clairval vous propose de réaliser votre projet de construction de maison individuelle.Maisons Clairval propose de construire votre maison neuve avec toutes les prestations suivantes :- Plan sur-mesure et personnalisé de 2 à 6 chambres- Mode de chauffage au choix- Grands choix d'équipements et de prestations- Matériaux de qualité selon les normes en vigueur- Accompagnement dans le choix et l’acquisition du terrain- Construction conforme à la nouvelle RE 2020Demandez une étude gratuite et personnalisée de votre projet de construction sur ce terrain !Contactez Nicolas REBOUL au (Numéro supprimé) ou au (Numéro supprimé) (Maisons Clairval – Agence de Villemoisson).Prix hors frais de notaire. Terrain sélectionné et vu pour vous sous réserve de disponibilité et au prix indiqué par notre partenaire foncier. Conditions et visuels non contractuels.Cette annonce a été créée et diffusée avec le logiciel VITAHOME.
Athis-Mons
TERRAINSecteur calme et recherché à proximité du RER C.Rare sur le secteur.Prix : 227000 €.Sur ce terrain de 460 m² à ATHIS-MONS, Maisons Clairval vous propose de réaliser votre projet de construction de maison individuelle.Maisons Clairval propose de construire votre maison neuve avec toutes les prestations suivantes :- Plan sur-mesure et personnalisé de 2 à 6 chambres- Mode de chauffage au choix- Grands choix d'équipements et de prestations- Matériaux de qualité selon les normes en vigueur- Accompagnement dans le choix et l’acquisition du terrain- Construction conforme à la nouvelle RE 2020Demandez une étude gratuite et personnalisée de votre projet de construction sur ce terrain !Contactez Nicolas REBOUL au (Numéro supprimé) ou au (Numéro supprimé) (Maisons Clairval – Agence de Villemoisson).Prix hors frais de notaire. Terrain sélectionné et vu pour vous sous réserve de disponibilité et au prix indiqué par notre partenaire foncier. Conditions et visuels non contractuels.Cette annonce a été créée et diffusée avec le logiciel VITAHOME.
Châtenay-Malabry
TERRAINquartier pavillonnaire paisible et verdoyant.Le tramway T10 et le Parc de la Vallée aux Loups sont accessibles à pied en quelques minutes.Prix : 649000 €.Sur ce terrain de 667 m² à CHATENAY-MALABRY, Maisons Clairval vous propose de réaliser votre projet de construction de maison individuelle.Maisons Clairval propose de construire votre maison neuve avec toutes les prestations suivantes :- Plan sur-mesure et personnalisé de 2 à 6 chambres- Mode de chauffage au choix- Grands choix d'équipements et de prestations- Matériaux de qualité selon les normes en vigueur- Accompagnement dans le choix et l’acquisition du terrain- Construction conforme à la nouvelle RE 2020Demandez une étude gratuite et personnalisée de votre projet de construction sur ce terrain !Contactez Nicolas REBOUL au (Numéro supprimé) ou au (Numéro supprimé) (Maisons Clairval – Agence de Villemoisson).Prix hors frais de notaire. Terrain sélectionné et vu pour vous sous réserve de disponibilité et au prix indiqué par notre partenaire foncier. Conditions et visuels non contractuels.Cette annonce a été créée et diffusée avec le logiciel VITAHOME.
Créteil
TERRAINEnvironnement paisible et verdoyantProximité immédiate des écoles, commerces, transports et des bords de MarneUne belle opportunité à saisir dans l'un des quartiers les plus prisés de Créteil.Dans un environnement recherché, à deux pas du village de Créteil et des bords de MarnePrix : 460000 €.Sur ce terrain de 383 m² à CRETEIL, Maisons Clairval vous propose de réaliser votre projet de construction de maison individuelle.Maisons Clairval propose de construire votre maison neuve avec toutes les prestations suivantes :- Plan sur-mesure et personnalisé de 2 à 6 chambres- Mode de chauffage au choix- Grands choix d'équipements et de prestations- Matériaux de qualité selon les normes en vigueur- Accompagnement dans le choix et l’acquisition du terrain- Construction conforme à la nouvelle RE 2020Demandez une étude gratuite et personnalisée de votre projet de construction sur ce terrain !Contactez Nicolas REBOUL au (Numéro supprimé) ou au (Numéro supprimé) (Maisons Clairval – Agence de Villemoisson).Prix hors frais de notaire. Terrain sélectionné et vu pour vous sous réserve de disponibilité et au prix indiqué par notre partenaire foncier. Conditions et visuels non contractuels.Cette annonce a été créée et diffusée avec le logiciel VITAHOME.
Ivry-sur-Seine
TERRAINterrain large de 10mrare dans le secteurPrix : 450000 €.Sur ce terrain de 389 m² à IVRY-SUR-SEINE, Maisons Clairval vous propose de réaliser votre projet de construction de maison individuelle.Maisons Clairval propose de construire votre maison neuve avec toutes les prestations suivantes :- Plan sur-mesure et personnalisé de 2 à 6 chambres- Mode de chauffage au choix- Grands choix d'équipements et de prestations- Matériaux de qualité selon les normes en vigueur- Accompagnement dans le choix et l’acquisition du terrain- Construction conforme à la nouvelle RE 2020Demandez une étude gratuite et personnalisée de votre projet de construction sur ce terrain !Contactez Nicolas REBOUL au (Numéro supprimé) ou au (Numéro supprimé) (Maisons Clairval – Agence de Villemoisson).Prix hors frais de notaire. Terrain sélectionné et vu pour vous sous réserve de disponibilité et au prix indiqué par notre partenaire foncier. Conditions et visuels non contractuels.Cette annonce a été créée et diffusée avec le logiciel VITAHOME.
L’actualité immobilière à Vitry-sur-Seine
27/11/2023
02/11/2023
30/10/2023
20/10/2023
16/10/2023
16/10/2023