Maison à construire à Ambleville (95710)
Images
Description
Maison de 6 pièces (114 m²) à vendre à Ambleville
IDÉALEMENT SITUÉE - MAISON 6 PIÈCES NEUVE
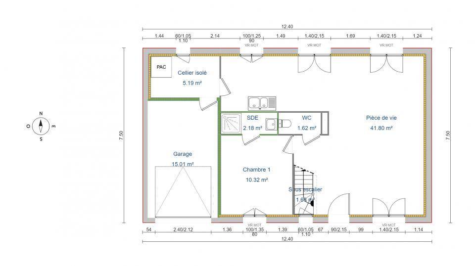
À vendre : à quelques kilomètres de Cergy, idéalement située dans Ambleville (95710), nous vous proposons cette maison de 6 pièces de 114 m².
Cette maison comporte 2 niveaux. Son intérieur comporte quatre chambres, une cuisine et deux salles de bains. La maison est neuve.
Le terrain de la propriété est de 650 m².
Cette maison se situe dans un quartier attractif. Une école élémentaire y est implantée. Il y a une épicerie à quelques minutes de la maison.
Elle est proposée à l'achat pour 308 600 €.
N'hésitez pas à prendre contact avec notre agence (Gilles BOREAU : (Numéro supprimé)) pour toute information sur la maison ou sur les modalités de vente. Donnez vie à vos projets immobiliers avec Les Maisons Extraco Les Andelys.
Logement susceptibles de vous intéresser
Nous vous proposons de découvrir aussi cette sélection de logements situés à moins de 10km de Ambleville et qui seraient susceptibles de vous intéresser.
La Chapelle-en-Vexin
TERRAINTerrain à vendre : emplacement idéal pour votre prochain projet. Description : A la recherche du lieu parfait pour concrétiser votre vision ? Ne chercher plus, il est là ! Ce terrain spacieux, situé dans un quartier très rechercher, offre une belle opportunité unique pour réaliser le projet d’une vie Caractéristiques : – Emplacement stratégique offrant un accès facile aux commodités locales et aux axes de transport. – Environnement calme et paisible, idéal pour ceux qui recherchent la tranquillité tout en restant connectés à la vie urbaine. – Proximité des écoles, commerces et autres services essentiels, garantissant une vie pratique et confortable. Ne manquez pas cette opportunité unique d’investir dans l’avenir et de réaliser vos aspirations. N’hésitez pas à me contacter dès maintenant pour plus d’informations et pour planifier une visite sur place !Prix : 95000 €.Sur ce terrain, réalisez votre projet de construction de maison RE 2020 avec PAVILLONS D'ÎLE-DE-FRANCE (constructeur de maisons de gamme et sur-mesure depuis plus de 50 ans) :- Plan sur-mesure et personnalisé de 2 à 5 chambres- Mode de chauffage au choix- Grands choix d'équipements et de prestations- Matériaux de qualité selon les normes en vigueur- Accompagnement dans le choix et l’acquisition du terrainDemandez une étude gratuite et personnalisée de votre projet de construction sur ce terrain !Contactez Jason GUEVEL au (Numéro supprimé) ou au (Numéro supprimé) (Pavillons d'Île-de-France – Agence de Cauffry).Prix hors frais de notaire. Terrain sélectionné et vu pour vous sous réserve de disponibilité et au prix indiqué par notre partenaire foncier. Visuels non contractuels.Cette annonce a été créée et diffusée avec le logiciel VITAHOME.
La Chapelle-en-Vexin
TERRAIN ET MAISONRéalisez votre projet de construction de maison RE 2020 avec PAVILLONS D'ÎLE-DE-FRANCE (constructeur de maisons de gamme et sur-mesure depuis plus de 50 ans) :- Plan sur-mesure et personnalisé de 2 à 5 chambres- Mode de chauffage au choix- Grands choix d'équipements et de prestations- Matériaux de qualité selon les normes en vigueur- Accompagnement dans le choix et l’acquisition du terrainInformations du terrain : Terrain à vendre : emplacement idéal pour votre prochain projet. Description : A la recherche du lieu parfait pour concrétiser votre vision ? Ne chercher plus, il est là ! Ce terrain spacieux, situé dans un quartier très rechercher, offre une belle opportunité unique pour réaliser le projet d’une vie Caractéristiques : – Emplacement stratégique offrant un accès facile aux commodités locales et aux axes de transport. – Environnement calme et paisible, idéal pour ceux qui recherchent la tranquillité tout en restant connectés à la vie urbaine. – Proximité des écoles, commerces et autres services essentiels, garantissant une vie pratique et confortable. Ne manquez pas cette opportunité unique d’investir dans l’avenir et de réaliser vos aspirations. N’hésitez pas à me contacter dès maintenant pour plus d’informations et pour planifier une visite sur place !Demandez une étude gratuite et personnalisée de votre projet de construction !Contactez Jason GUEVEL au (Numéro supprimé) ou au (Numéro supprimé) (Pavillons d'Île-de-France – Agence de Cauffry).Prix avec assurance dommages-ouvrage comprise, hors VRD, terrain viabilisé, assainissement non compris, frais de notaire non compris, taxes non comprises, frais divers non compris. Terrain sélectionné et vu pour vous sous réserve de disponibilité et au prix indiqué par notre partenaire foncier. Visuels non contractuels.Cette annonce a été créée et diffusée avec le logiciel VITAHOME.
La Chapelle-en-Vexin
TERRAIN ET MAISONRéalisez votre projet de construction de maison RE 2020 avec PAVILLONS D'ÎLE-DE-FRANCE (constructeur de maisons de gamme et sur-mesure depuis plus de 50 ans) :- Plan sur-mesure et personnalisé de 2 à 5 chambres- Mode de chauffage au choix- Grands choix d'équipements et de prestations- Matériaux de qualité selon les normes en vigueur- Accompagnement dans le choix et l’acquisition du terrainInformations du terrain : Terrain à vendre : emplacement idéal pour votre prochain projet. Description : A la recherche du lieu parfait pour concrétiser votre vision ? Ne chercher plus, il est là ! Ce terrain spacieux, situé dans un quartier très rechercher, offre une belle opportunité unique pour réaliser le projet d’une vie Caractéristiques : – Emplacement stratégique offrant un accès facile aux commodités locales et aux axes de transport. – Environnement calme et paisible, idéal pour ceux qui recherchent la tranquillité tout en restant connectés à la vie urbaine. – Proximité des écoles, commerces et autres services essentiels, garantissant une vie pratique et confortable. Ne manquez pas cette opportunité unique d’investir dans l’avenir et de réaliser vos aspirations. N’hésitez pas à me contacter dès maintenant pour plus d’informations et pour planifier une visite sur place !Demandez une étude gratuite et personnalisée de votre projet de construction !Contactez Jason GUEVEL au (Numéro supprimé) ou au (Numéro supprimé) (Pavillons d'Île-de-France – Agence de Cauffry).Prix avec assurance dommages-ouvrage comprise, hors VRD, terrain viabilisé, assainissement non compris, frais de notaire non compris, taxes non comprises, frais divers non compris. Terrain sélectionné et vu pour vous sous réserve de disponibilité et au prix indiqué par notre partenaire foncier. Visuels non contractuels.Cette annonce a été créée et diffusée avec le logiciel VITAHOME.
La Chapelle-en-Vexin
TERRAIN ET MAISONRéalisez votre projet de construction de maison RE 2020 avec PAVILLONS D'ÎLE-DE-FRANCE (constructeur de maisons de gamme et sur-mesure depuis plus de 50 ans) :- Plan sur-mesure et personnalisé de 2 à 5 chambres- Mode de chauffage au choix- Grands choix d'équipements et de prestations- Matériaux de qualité selon les normes en vigueur- Accompagnement dans le choix et l’acquisition du terrainInformations du terrain : Terrain à vendre : emplacement idéal pour votre prochain projet. Description : A la recherche du lieu parfait pour concrétiser votre vision ? Ne chercher plus, il est là ! Ce terrain spacieux, situé dans un quartier très rechercher, offre une belle opportunité unique pour réaliser le projet d’une vie Caractéristiques : – Emplacement stratégique offrant un accès facile aux commodités locales et aux axes de transport. – Environnement calme et paisible, idéal pour ceux qui recherchent la tranquillité tout en restant connectés à la vie urbaine. – Proximité des écoles, commerces et autres services essentiels, garantissant une vie pratique et confortable. Ne manquez pas cette opportunité unique d’investir dans l’avenir et de réaliser vos aspirations. N’hésitez pas à me contacter dès maintenant pour plus d’informations et pour planifier une visite sur place !Demandez une étude gratuite et personnalisée de votre projet de construction !Contactez Jason GUEVEL au (Numéro supprimé) ou au (Numéro supprimé) (Pavillons d'Île-de-France – Agence de Cauffry).Prix avec assurance dommages-ouvrage comprise, hors VRD, terrain viabilisé, assainissement non compris, frais de notaire non compris, taxes non comprises, frais divers non compris. Terrain sélectionné et vu pour vous sous réserve de disponibilité et au prix indiqué par notre partenaire foncier. Visuels non contractuels.Cette annonce a été créée et diffusée avec le logiciel VITAHOME.
Vexin-sur-Epte
TERRAINVENTE : terrain de 1 200 m² à Vexin-Sur-EpteEMPLACEMENT PRIVILÉGIÉ – PROCHE DE VERNONÀ Vexin-Sur-Epte (27510) en vente à quelques kilomètres de Mantes-la-Jolie, donnez vie à votre résidence principale ou secondaire sur ce terrain de 1 200 m². Il donne sur un espace vert. Dans un quartier recherché, le terrain bénéficiant d’un emplacement d’exception est proche des écoles et des commerces. On trouve des établissements scolaires de tous types (de la maternelle au lycée) à moins de 10 minutes en voiture, tout comme deux crèches à moins de 10 minutes à pied. Il y a des tennis, des commerces, des boulangeries, trois supermarchés, quatre épiceries et des boucheries-charcuteries à quelques minutes.Ce terrain est proposé à l’achat pour 96 000 €. N’hésitez pas à prendre contact avec Carole GOITA ((Numéro supprimé)) pour tout renseignement sur le terrain ou sur les démarches à suivre. Extraco Construction Rénovation Les Andelys est là pour vous accompagner à toutes les étapes de l’achat.
Vexin-sur-Epte
TERRAIN ET MAISONVexin-Sur-Epte : maison de 5 pièces (86 m²) en venteEMPLACEMENT PRIVILÉGIÉ – MAISON 5 PIÈCES NEUVEÀ quelques kilomètres de vernon, venez découvrir cette maison de 5 pièces de 86 m² bénéficiant d’un emplacement privilégié dans Vexin-Sur-Epte (27510). Son intérieur compte trois chambres, une cuisine et une salle de bains.Le terrain du bien s’étend sur 1 200 m².Cette maison possède 2 niveaux. Elle est neuve.La maison se situe dans un secteur prisé. On trouve des écoles du primaire et du secondaire à moins de 10 minutes en voiture, tout comme deux structures d’accueil pour la petite enfance à moins de 10 minutes à pied. Il y a des tennis, des commerces, des boulangeries, trois supermarchés, quatre épiceries et des boucheries-charcuteries dans les environs.Elle est proposée à l’achat pour 269 600 €.N’hésitez pas à prendre contact avec Carole GOITA (tél : (Numéro supprimé)) pour plus de renseignements sur la maison ou sur les modalités de vente.
Vexin-sur-Epte
TERRAIN ET MAISONMaison de 4 pièces (98 m²) à vendre à Vexin-Sur-EpteEMPLACEMENT PRIVILÉGIÉ – MAISON 4 PIÈCES NEUVEÀ vendre : située à 18 km de Mantes-la-Jolie, bénéficiant d’un emplacement d’exception dans Vexin-Sur-Epte (27510), Extraco Construction Rénovation Les Andelys vous propose cette maison de 4 pièces de plain-pied de 98 m².Son intérieur propose trois chambres, une cuisine et une salle de bains. Cette maison est neuve.Le terrain de la propriété est de 1 200 m².La maison se trouve dans un secteur convoité. Des établissements scolaires de tous niveaux (de la maternelle au lycée) sont implantés à moins de 10 minutes en voiture, tout comme deux structures d’accueil pour les enfants en bas âge à moins de 10 minutes à pied. Il y a des tennis, des commerces, des boulangeries, trois supermarchés, quatre épiceries et des boucheries-charcuteries à proximité.Son prix de vente est de 294 600 €.Contactez notre agence (Carole GOITA : (Numéro supprimé)) pour toute information sur la maison, sur les modalités de vente et sur les démarches à suivre. Concrétisez vos projets immobiliers avec Extraco Construction Rénovation Les Andelys.
Vexin-sur-Epte
TERRAIN ET MAISONVENTE : maison T4 en structure bois (94 m²) à Vexin-Sur-EpteEMPLACEMENT PRIVILÉGIÉ – MAISON 4 PIÈCES NEUVEÀ 18 km de Mantes-la-Jolie, Extraco Construction Rénovation Les Andelys vous présente cette maison de 4 pièces de plain-pied de 94 m² et de 1 200 m² de terrain bénéficiant d’un emplacement d’exception dans Vexin-Sur-Epte (27510).Son intérieur comporte trois chambres, une cuisine et deux salles de bains. Cette maison est neuve.La maison se situe dans un secteur recherché. Des établissements scolaires de tous niveaux se trouvent à moins de 10 minutes en voiture, tout comme deux crèches à moins de 10 minutes à pied. Il y a des tennis, des commerces, des boulangeries, trois supermarchés, des boucheries-charcuteries et quatre épiceries dans les environs.Son prix de vente est de 324 600 €.N’hésitez pas à prendre contact avec notre agence (GOITA Carole : (Numéro supprimé)) pour tout renseignement sur le bien ou sur les modalités de vente. Concrétisez vos projets immobiliers avec Extraco Construction Rénovation Les Andelys.
Vexin-sur-Epte
TERRAIN ET MAISONVENTE d’une maison de 4 pièces (135 m²) à Vexin-Sur-EpteEMPLACEMENT PRIVILÉGIÉ – MAISON 4 PIÈCES NEUVEEn vente : localisée à deux pas de Mantes-la-Jolie, bénéficiant d’un emplacement d’exception dans Vexin-Sur-Epte (27510), nous sommes ravis de vous proposer cette maison de 4 pièces de 135 m².Il s’agit d’une maison de 2 niveaux. Son intérieur est composé de cinq chambres, d’une cuisine et de deux salles de bains. Cette maison est neuve.Le terrain du bien est de 1 200 m².La maison est située dans un secteur recherché. On trouve des écoles (de la maternelle au lycée) à moins de 10 minutes en voiture, tout comme deux crèches à moins de 10 minutes à pied. Il y a des tennis, des commerces, des boulangeries, trois supermarchés, des boucheries-charcuteries et quatre épiceries dans les environs.Son prix de vente est de 344 600 €.Prenez contact avec Carole GOITA ((Numéro supprimé)) pour obtenir de plus amples informations sur la propriété. Extraco Construction Rénovation Les Andelys est là pour vous accompagner à toutes les étapes de votre projet.
L’actualité immobilière à Ambleville
27/11/2023
02/11/2023
30/10/2023
20/10/2023
16/10/2023
16/10/2023