Maison à construire à Attainville (95570)
Images
Description
Contactez Stéphanie SEBAG de l'agence Maisons Evolution de Mareuil-lès-Meaux au (Numéro supprimé) pour avoir plus d'informations sur ce projet.
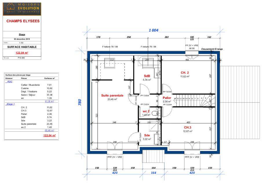
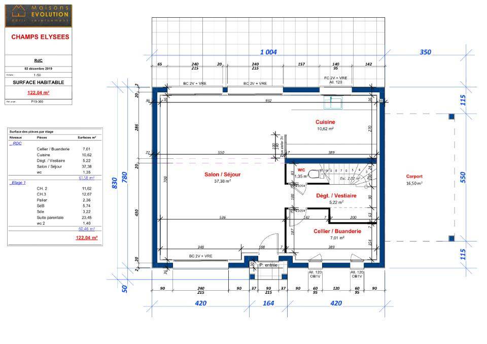
Découvrez cette belle et grande maison moderne à étage de 162 m² habitables idéalement située sur la commune de ATTAINVILLE
Elle est composée de 5 chambres dont 2 suites parentales avec salle d'eau, d'une troisième salle de bains, de deux WC séparés, d'un cellier, et d'un grand salon-séjour lumineux avec cuisine ouverte. Vous y trouverez également une véritable entrée avec placard.
Les plans sont entièrement modifiables selon vos souhaits, en agence ou visioconférence. Nous vous proposons un véritable accompagnement de qualité tout au long de votre projet.
Dessinons ensemble votre future maison !
Tel : (Numéro supprimé)
Annonce proposée par un Agent Commercial Partenaire.
Logement susceptibles de vous intéresser
Nous vous proposons de découvrir aussi cette sélection de logements situés à moins de 10km de Attainville et qui seraient susceptibles de vous intéresser.
Écouen
TERRAINTerrain de 630 m² à vendre à ÉcouenPROCHE DE PARISGrand terrain au pied du Transilien H (gare d’Écouen-Ézanville, 15 min de Paris). De 630 m², ce terrain se situe dans Écouen (95440). Le terrain est proche des commerces et des écoles. On trouve plusieurs écoles (maternelle, élémentaire, primaire et collège) à moins de 10 minutes à pied. Niveau transports, il y a le RER D et C ainsi que 30 gares à moins de 10 minutes en voiture. On trouve une bibliothèque, des commerces, quatre boulangeries, une poissonnerie, deux épiceries et un bureau de poste dans les environs.Ce terrain est à vendre pour la somme de 250 000 €. N’hésitez pas à prendre contact avec notre agence (FLIPPE Antoine : (Numéro supprimé)) pour toute information sur le terrain, sur les démarches à suivre ou sur les modalités de vente. Donnez vie à vos projets immobiliers avec Maisons Balency Baillet-en-France.Annonce proposée par un Agent Commercial Partenaire.
Écouen
TERRAIN ET MAISONMaison T7 (102 m²) à vendre à ÉcouenPROCHE DE PARIS – MAISON 7 PIÈCES NEUVEAu pied de la gare d’Écouen-Ézanville (Paris à 15 min par le Transilien H), votre agence Maisons Balency Baillet-en-France est ravie de vous proposer cette maison de 7 pièces de 102 m² à Écouen (95440).C’est une maison de 2 niveaux. Son intérieur compte cinq chambres, une cuisine et deux salles de bains. La maison est neuve.Le terrain du bien s’étend sur 630 m².Plusieurs établissements scolaires (maternelle, élémentaire, primaire et collège) se trouvent à moins de 10 minutes à pied. Niveau transports en commun, il y a deux lignes de RER (D et C) ainsi que 30 gares à moins de 10 minutes en voiture. On trouve une bibliothèque, des commerces, quatre boulangeries, un bureau de poste, deux épiceries et une poissonnerie à proximité de la maison.Elle est à vendre pour la somme de 430 000 €.N’hésitez pas à prendre contact avec Antoine FLIPPE (tél : (Numéro supprimé)) pour tout renseignement sur la maison, sur les démarches à suivre ou sur les modalités de vente. Maisons Balency Baillet-en-France est là pour vous accompagner à toutes les étapes de l’achat.Annonce proposée par un Agent Commercial Partenaire.
Écouen
TERRAIN ET MAISONMaison de 6 pièces (109 m²) à vendre à ÉcouenPROCHE DE PARIS – MAISON 6 PIÈCES NEUVEÀ deux pas du Transilien H (gare d’Écouen-Ézanville, 15 min de Paris), laissez vous charmer par cette maison de 6 pièces de 109 m² à vendre à Écouen (95440).C’est une maison de 2 niveaux. Son intérieur dispose de quatre chambres, d’une cuisine et de deux salles de bains. La maison est neuve.Le terrain du bien s’étend sur 630 m².Il y a plusieurs écoles (maternelle, élémentaire, primaire et collège) à moins de 10 minutes à pied. Niveau transports en commun, on trouve le RER D et C ainsi que 30 gares à moins de 10 minutes en voiture. Il y a une bibliothèque, des commerces, quatre boulangeries, deux épiceries, une poissonnerie et un bureau de poste dans les environs.Elle est proposée à l’achat pour 445 000 €.Contactez Antoine FLIPPE (tél : (Numéro supprimé)) pour toute question sur cette maison, sur les modalités de vente ou sur les démarches à suivre.Annonce proposée par un Agent Commercial Partenaire.
Écouen
TERRAIN ET MAISONMaison T7 (124 m²) en vente à ÉcouenPROCHE DE PARIS – MAISON 7 PIÈCES NEUVEÀ côté du Transilien H (gare d’Écouen-Ézanville, 15 min de Paris), notre agence Maisons Balency Baillet-en-France est ravie de vous proposer cette maison de 7 pièces de 124 m² et de 630 m² de terrain à Écouen (95440). Son intérieur se divise en cinq chambres, une cuisine et trois salles de bains.Il s’agit d’une maison de 2 niveaux. Elle est neuve.Plusieurs écoles (maternelle, élémentaire, primaire et collège) sont implantées à moins de 10 minutes à pied. Niveau transports en commun, on trouve les lignes D et C du RER ainsi que 30 gares à moins de 10 minutes en voiture. Il y a une bibliothèque, des commerces, quatre boulangeries, une poissonnerie, deux épiceries et un bureau de poste à proximité du logement.Elle est à vendre pour la somme de 455 000 €.Contactez Antoine FLIPPE ((Numéro supprimé)) pour toute question sur cette maison ou sur les démarches à suivre. Faites de vos projets immobiliers une réalité avec Maisons Balency Baillet-en-France.Annonce proposée par un Agent Commercial Partenaire.
Villiers-Adam
TERRAINVilliers-Adam : terrain de 630 m² en ventePROCHE DE PARISGrand terrain à côté du Transilien H (gare de Mériel, 40 min de Paris). De 630 m², ce terrain se situe dans Villiers-Adam (95840). Ce terrain est proche des commerces et des écoles. L’École Primaire Publique Paul Cézanne est implantée à moins de 10 minutes à pied. Niveau transports en commun, il y a la ligne de RER C (Montigny-Beauchamp) ainsi que 33 gares à moins de 10 minutes en voiture. On trouve un tennis, une bibliothèque et un commerce à proximité du terrain.Son prix de vente est de 170 000 €. Prenez contact avec Antoine FLIPPE ((Numéro supprimé)) pour plus d’informations sur le terrain. Maisons Balency Baillet-en-France est là pour vous accompagner à toutes les étapes de l’achat.Annonce proposée par un Agent Commercial Partenaire.
Villiers-Adam
TERRAIN ET MAISONVilliers-Adam : maison de 6 pièces (105 m²) en ventePROCHE DE PARIS – MAISON 6 PIÈCES NEUVEAu pied du Transilien H (gare de Mériel, 40 min de Paris), Maisons Balency Baillet-en-France vous présente cette maison de 6 pièces de 105 m² à Villiers-Adam (95840). Elle dispose de quatre chambres, d’une cuisine et de deux salles de bains.Le terrain du bien s’étend sur 630 m².Cette maison compte 2 niveaux. Elle est neuve.L’École Primaire Publique Paul Cézanne se trouve à moins de 10 minutes à pied. Côté transports en commun, il y a la ligne de RER C (Montigny-Beauchamp) ainsi que 33 gares à moins de 10 minutes en voiture. On trouve un tennis, une bibliothèque et un commerce à proximité.Elle est à vendre pour la somme de 378 000 €.N’hésitez pas à prendre contact avec notre agence (Antoine FLIPPE : (Numéro supprimé)) pour toute question sur cette maison. Maisons Balency Baillet-en-France est là pour vous accompagner dans toutes vos démarches.Annonce proposée par un Agent Commercial Partenaire.
Villiers-Adam
TERRAIN ET MAISONVilliers-Adam : maison de 5 pièces (90 m²) à vendreMAISON 5 PIÈCES NEUVE – PROCHE DE PARISÀ vendre : à côté du Transilien H (gare de Mériel, 40 min de Paris), laissez vous charmer par cette maison de 5 pièces de 90 m² et de 630 m² de terrain à Villiers-Adam (95840).Cette maison comporte 2 niveaux. Son intérieur se divise en trois chambres, une cuisine et une salle de bains. La maison est neuve.L’École Primaire Publique Paul Cézanne se trouve à moins de 10 minutes à pied. Niveau transports en commun, il y a la ligne de RER C (Montigny-Beauchamp) ainsi que 33 gares à moins de 10 minutes en voiture. On trouve un tennis, une bibliothèque et un commerce à proximité du logement.Son prix de vente est de 370 000 €.N’hésitez pas à prendre contact avec notre agence (Antoine FLIPPE : (Numéro supprimé)) pour plus de renseignements sur la maison.Annonce proposée par un Agent Commercial Partenaire.
Villiers-Adam
TERRAIN ET MAISONVilliers-Adam : maison de 6 pièces (80 m²) en venteMAISON 6 PIÈCES NEUVE – PROCHE DE PARISÀ deux pas de la gare de Mériel (Paris à 40 min avec le Transilien H), nous vous proposons cette maison de 6 pièces de 80 m² à vendre à Villiers-Adam (95840).C’est une maison de 2 niveaux. Elle est composée de quatre chambres, d’une cuisine et de deux salles de bains. La maison est neuve.Le terrain de la propriété s’étend sur 630 m².Il y a l’École Primaire Publique Paul Cézanne à moins de 10 minutes à pied. Niveau transports, on trouve la ligne de RER C (Montigny-Beauchamp) ainsi que 33 gares à moins de 10 minutes en voiture. Il y a un tennis, une bibliothèque et un commerce à quelques minutes à peine.Son prix de vente est de 347 000 €.Contactez notre agence (Antoine FLIPPE : (Numéro supprimé)) pour toute question sur cette maison, sur les modalités de vente ou sur les démarches à suivre. Maisons Balency Baillet-en-France est là pour vous accompagner à toutes les étapes de votre projet.Annonce proposée par un Agent Commercial Partenaire.
Noisy-sur-Oise
TERRAINcentre de Noisy sur Oise, terrain constructible de 386 m² en zone UG. Le terrain est en pente mais la zone d’implantation est plate.Honoraires à la charge du vendeurVotre agent commercial 3G IMMO sur place EI – Carole DESPRETS inscrite au RSAC de COMPIEGNE n° 483 339 750 Selon l’article L.561.5 du Code Monétaire et Financier, pour l’organisation de la visite, la présentation d’une pièce d’identité vous sera demandée.Les informations sur les risques auxquels ce bien est exposé sont disponibles sur le site Géorisques : www.georisques.gouv.frLes informations sur les risques auxquels ce bien est exposé sont disponibles sur le site Géorisques : www.georisques.gouv.fr
L’actualité immobilière à Attainville
27/11/2023
02/11/2023
30/10/2023
20/10/2023
16/10/2023
16/10/2023