Maison à construire à Bessancourt (95550)
Images
Description
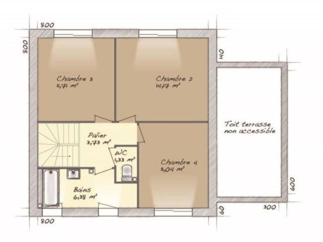
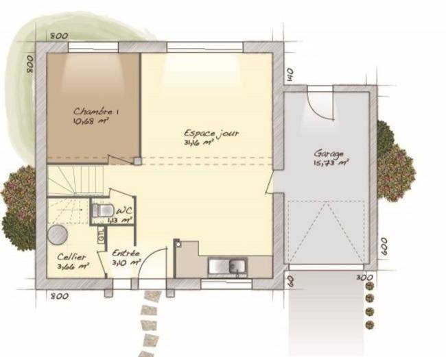
VENTE : maison F6 (98 m²) à Bessancourt
MAISON 6 PIÈCES NEUVE - PROCHE DE PARIS
À vendre : proche du Transilien H (35 min de Paris), Maisons Balency Coignières vous propose à Bessancourt (95550), cette maison de 6 pièces de 98 m² et de 360 m² de terrain.
Cette maison possède 2 niveaux. Son intérieur est composé de quatre chambres, d'une cuisine et d'une salle de bains. Cette maison est neuve.
Cinq établissements scolaires sont implantés à moins de 10 minutes à pied, tout comme deux structures d'accueil pour les tout-petits. Niveau transports, on trouve la gare Bessancourt dans les alentours. Il y a un tennis, des commerces, trois boulangeries, trois supermarchés, une épicerie et un bureau de poste à proximité.
Elle est à vendre pour la somme de 419 800 €.
Contactez Arnaud DUTEURTRE (tél : (Numéro supprimé)) pour toute information sur cette maison, sur les démarches à suivre ou sur les modalités de vente. Maisons Balency Coignières est là pour vous accompagner à toutes les étapes de votre projet.
Annonce proposée par un Agent Commercial Partenaire.
Logement susceptibles de vous intéresser
Nous vous proposons de découvrir aussi cette sélection de logements situés à moins de 10km de Bessancourt et qui seraient susceptibles de vous intéresser.
Ermont
TERRAINTerrain de 600 m² à vendre à ErmontGrand terrain au pied du Transilien H (gare d’Ermont Halte, 20 min de Paris). De 600 m², ce terrain se situe dans Ermont (95120). Ce terrain est proche des écoles et des commerces. Tous les types d’établissements scolaires se trouvent à moins de 10 minutes à pied, tout comme sept crèches. Côté transports, il y a la station de RER Cernay (ligne C) ainsi que trois gares (Ermont Halte, Cernay (Val-d’Oise) et Gros Noyer Saint-Prix) dans les environs. On trouve une bibliothèque, un bassin de natation, deux tennis, des commerces, des boulangeries, un supermarché, une supérette et un bureau de poste à quelques minutes. Le marché Place St Flaive anime le quartier.Ce terrain est proposé à l’achat pour 300 000 €. Prenez contact avec notre agence (FLIPPE Antoine : (Numéro supprimé)) pour tout renseignement sur le terrain.Annonce proposée par un Agent Commercial Partenaire.
Ermont
TERRAIN ET MAISONMaison de 5 pièces (96 m²) en vente à ErmontMAISON 5 PIÈCES NEUVEÀ vendre : à deux pas du Transilien H (gare d’Ermont Halte, 20 min de Paris), notre agence Maisons Balency Baillet-en-France est ravie de vous présenter cette maison de 5 pièces de 96 m² à Ermont (95120). Son intérieur offre quatre chambres, une cuisine et une salle de bains.Le terrain de la maison s’étend sur 600 m².Cette maison compte 2 niveaux. Elle est neuve.Des écoles (de la maternelle au lycée) sont implantées à moins de 10 minutes à pied, tout comme sept crèches. Niveau transports en commun, il y a la station de RER Cernay (ligne C) ainsi que trois gares (Ermont Halte, Cernay (Val-d’Oise) et Gros Noyer Saint-Prix) juste à côté. On trouve une bibliothèque, un bassin de natation, deux tennis, des commerces, des boulangeries, un supermarché, des épiceries et un bureau de poste à quelques minutes. Le marché Place St Flaive anime les environs.Son prix de vente est de 480 000 €.N’hésitez pas à prendre contact avec notre agence (FLIPPE Antoine : (Numéro supprimé)) pour plus de renseignements sur cette maison, sur les modalités de vente ou sur les démarches à suivre. Maisons Balency Baillet-en-France vous accompagne à toutes les étapes de l’achat et dans tous vos projets immobiliers.Annonce proposée par un Agent Commercial Partenaire.
Ermont
TERRAIN ET MAISONVENTE d’une maison de 7 pièces (102 m²) à ErmontMAISON 7 PIÈCES NEUVEÀ vendre : à côté du Transilien H (gare d’Ermont Halte, 20 min de Paris), ayez le coup de coeur pour à Ermont (95120), cette maison de 7 pièces de 102 m² et de 600 m² de terrain.Cette maison comporte 2 niveaux. Elle inclut cinq chambres, une cuisine et deux salles de bains. La maison est neuve.Des établissements scolaires de tous niveaux (de la maternelle au lycée) sont implantés à moins de 10 minutes à pied, tout comme sept crèches. Niveau transports en commun, il y a la station de RER Cernay (ligne C) ainsi que trois gares (Ermont Halte, Cernay (Val-d’Oise) et Gros Noyer Saint-Prix) dans un rayon de 1 km. On trouve une bibliothèque, un bassin de natation, deux tennis, des commerces, des boulangeries, un supermarché, un bureau de poste et trois boucheries-charcuteries à quelques minutes. Le marché Place St Flaive anime le quartier.Elle est à vendre pour la somme de 470 000 €.Prenez contact avec notre agence (FLIPPE Antoine : (Numéro supprimé)) pour obtenir de plus amples informations sur cette maison.Annonce proposée par un Agent Commercial Partenaire.
Ermont
TERRAIN ET MAISONErmont : maison de 6 pièces (109 m²) en venteMAISON 6 PIÈCES NEUVEÀ vendre : à deux pas du Transilien H (gare d’Ermont Halte, 20 min de Paris), Maisons Balency Baillet-en-France vous propose cette maison de 6 pièces de 109 m² et de 600 m² de terrain à Ermont (95120). Elle dispose de quatre chambres, d’une cuisine et de deux salles de bains.Cette maison possède 2 niveaux. Elle est neuve.Il y a tous les types d’écoles (maternelle, élémentaire et secondaire) à moins de 10 minutes à pied, tout comme sept crèches. Niveau transports en commun, on trouve la station de RER Cernay (ligne C) ainsi que trois gares (Ermont Halte, Cernay (Val-d’Oise) et Gros Noyer Saint-Prix) dans les environs. Il y a une bibliothèque, un bassin de natation, deux tennis, des commerces, des boulangeries, un supermarché, un bureau de poste et trois boucheries-charcuteries à quelques minutes à peine. Enfin, le marché Place St Flaive anime les environs.Elle est proposée à l’achat pour 485 000 €.Prenez contact avec notre agence (Antoine FLIPPE : (Numéro supprimé)) pour toute question sur cette maison, sur les démarches à suivre ou sur les modalités de vente. Faites de vos projets immobiliers une réalité avec Maisons Balency Baillet-en-France.Annonce proposée par un Agent Commercial Partenaire.
Ermont
TERRAIN ET MAISONMaison T7 (124 m²) en vente à ErmontMAISON 7 PIÈCES NEUVEÀ vendre : à quelques minutes du Transilien H (gare d’Ermont Halte, 20 min de Paris), à Ermont (95120), Maisons Balency Baillet-en-France vous propose cette maison de 7 pièces de 124 m². Son intérieur offre cinq chambres, une cuisine et trois salles de bains.Le terrain de la propriété s’étend sur 600 m².C’est une maison de 2 niveaux. Elle est neuve.Il y a des établissements scolaires de tous types à moins de 10 minutes à pied, tout comme sept structures d’accueil pour les enfants en bas âge. Côté transports, on trouve la station de RER Cernay (ligne C) ainsi que trois gares (Ermont Halte, Cernay (Val-d’Oise) et Gros Noyer Saint-Prix) dans les alentours. Il y a une bibliothèque, un bassin de natation, deux tennis, des commerces, des boulangeries, un supermarché, des épiceries et un bureau de poste à quelques minutes à peine. Enfin, le marché Place St Flaive anime le quartier.Elle est proposée à l’achat pour 495 000 €.Prenez contact avec Antoine FLIPPE (tél : (Numéro supprimé)) pour obtenir de plus amples informations sur la maison, sur les modalités de vente ou sur les démarches à suivre. Maisons Balency Baillet-en-France vous accompagne dans tous vos projets immobiliers et à toutes les étapes de votre projet.Annonce proposée par un Agent Commercial Partenaire.
Villiers-Adam
TERRAINVilliers-Adam : terrain de 630 m² en ventePROCHE DE PARISGrand terrain à côté du Transilien H (gare de Mériel, 40 min de Paris). De 630 m², ce terrain se situe dans Villiers-Adam (95840). Ce terrain est proche des commerces et des écoles. L’École Primaire Publique Paul Cézanne est implantée à moins de 10 minutes à pied. Niveau transports en commun, il y a la ligne de RER C (Montigny-Beauchamp) ainsi que 33 gares à moins de 10 minutes en voiture. On trouve un tennis, une bibliothèque et un commerce à proximité du terrain.Son prix de vente est de 170 000 €. Prenez contact avec Antoine FLIPPE ((Numéro supprimé)) pour plus d’informations sur le terrain. Maisons Balency Baillet-en-France est là pour vous accompagner à toutes les étapes de l’achat.Annonce proposée par un Agent Commercial Partenaire.
Villiers-Adam
TERRAIN ET MAISONVilliers-Adam : maison de 6 pièces (105 m²) en ventePROCHE DE PARIS – MAISON 6 PIÈCES NEUVEAu pied du Transilien H (gare de Mériel, 40 min de Paris), Maisons Balency Baillet-en-France vous présente cette maison de 6 pièces de 105 m² à Villiers-Adam (95840). Elle dispose de quatre chambres, d’une cuisine et de deux salles de bains.Le terrain du bien s’étend sur 630 m².Cette maison compte 2 niveaux. Elle est neuve.L’École Primaire Publique Paul Cézanne se trouve à moins de 10 minutes à pied. Côté transports en commun, il y a la ligne de RER C (Montigny-Beauchamp) ainsi que 33 gares à moins de 10 minutes en voiture. On trouve un tennis, une bibliothèque et un commerce à proximité.Elle est à vendre pour la somme de 378 000 €.N’hésitez pas à prendre contact avec notre agence (Antoine FLIPPE : (Numéro supprimé)) pour toute question sur cette maison. Maisons Balency Baillet-en-France est là pour vous accompagner dans toutes vos démarches.Annonce proposée par un Agent Commercial Partenaire.
Villiers-Adam
TERRAIN ET MAISONVilliers-Adam : maison de 5 pièces (90 m²) à vendreMAISON 5 PIÈCES NEUVE – PROCHE DE PARISÀ vendre : à côté du Transilien H (gare de Mériel, 40 min de Paris), laissez vous charmer par cette maison de 5 pièces de 90 m² et de 630 m² de terrain à Villiers-Adam (95840).Cette maison comporte 2 niveaux. Son intérieur se divise en trois chambres, une cuisine et une salle de bains. La maison est neuve.L’École Primaire Publique Paul Cézanne se trouve à moins de 10 minutes à pied. Niveau transports en commun, il y a la ligne de RER C (Montigny-Beauchamp) ainsi que 33 gares à moins de 10 minutes en voiture. On trouve un tennis, une bibliothèque et un commerce à proximité du logement.Son prix de vente est de 370 000 €.N’hésitez pas à prendre contact avec notre agence (Antoine FLIPPE : (Numéro supprimé)) pour plus de renseignements sur la maison.Annonce proposée par un Agent Commercial Partenaire.
Villiers-Adam
TERRAIN ET MAISONVilliers-Adam : maison de 6 pièces (80 m²) en venteMAISON 6 PIÈCES NEUVE – PROCHE DE PARISÀ deux pas de la gare de Mériel (Paris à 40 min avec le Transilien H), nous vous proposons cette maison de 6 pièces de 80 m² à vendre à Villiers-Adam (95840).C’est une maison de 2 niveaux. Elle est composée de quatre chambres, d’une cuisine et de deux salles de bains. La maison est neuve.Le terrain de la propriété s’étend sur 630 m².Il y a l’École Primaire Publique Paul Cézanne à moins de 10 minutes à pied. Niveau transports, on trouve la ligne de RER C (Montigny-Beauchamp) ainsi que 33 gares à moins de 10 minutes en voiture. Il y a un tennis, une bibliothèque et un commerce à quelques minutes à peine.Son prix de vente est de 347 000 €.Contactez notre agence (Antoine FLIPPE : (Numéro supprimé)) pour toute question sur cette maison, sur les modalités de vente ou sur les démarches à suivre. Maisons Balency Baillet-en-France est là pour vous accompagner à toutes les étapes de votre projet.Annonce proposée par un Agent Commercial Partenaire.
L’actualité immobilière à Bessancourt
27/11/2023
02/11/2023
30/10/2023
20/10/2023
16/10/2023
16/10/2023