Maison à construire à Bezons (95870)
Images
Description
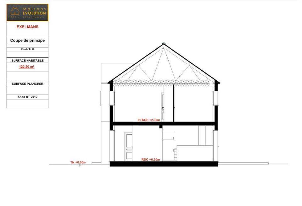
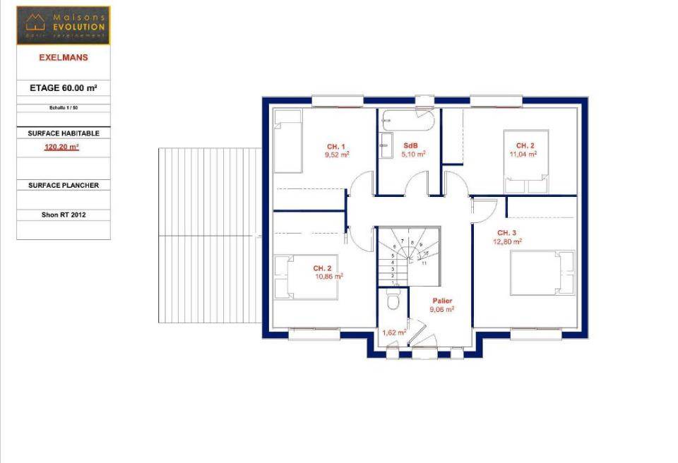
🏡 Maison individuelle sur-mesure de 6 pièces à Bezons (95870) - Terrain de 300 m²
IDÉALEMENT SITUÉE - MAISON NEUVE R+COMBLES POUR VOTRE FAMILLE
À Bezons, au pied du RER A (station Houilles-Carrières-sur-Seine, Paris en 10 min), Maisons Évolution vous propose de concrétiser votre projet de maison individuelle sur-mesure sur un terrain de 300 m², dans un secteur calme et recherché.
🌟 Votre future maison personnalisée :
Surface habitable : 120 m² sur 2 niveaux
4 chambres, cuisine ouverte, salle de bains, et espace de vie lumineux
Plans entièrement personnalisables : style architectural, agencement et finitions selon vos envies
Possibilité d'ajouter garage et sous-sol total pour un confort optimal
Accompagnement complet par Maisons Évolution Cormeilles-en-Parisis, constructeur reconnu pour son expertise et la qualité de ses réalisations
📍 Un emplacement idéal pour toute la famille :
Quartier résidentiel et attractif de Bezons
Écoles, crèche, collèges et lycées à moins de 10 minutes à pied
Commerces et services à proximité : supermarchés, boulangeries, boucheries, bibliothèque, piscines et tennis
Transports pratiques : RER A, C et D, 54 gares accessibles en moins de 10 min en voiture
💰 Prix indicatif : 458 500 €
(Terrain + maison - hors frais de notaire et coûts annexes, visuel non contractuel)
📞 Contactez Caroline BETHERY au (Numéro supprimé) pour une étude gratuite et personnalisée de votre futur projet.
Maisons Évolution vous accompagne à chaque étape, de la conception à la remise des clés de votre maison sur-mesure.
Maisons Évolution - Construisez la maison qui vous ressemble.
Logement susceptibles de vous intéresser
Nous vous proposons de découvrir aussi cette sélection de logements situés à moins de 10km de Bezons et qui seraient susceptibles de vous intéresser.
Sartrouville
TERRAINSARTROUVILLE – Quartier recherché de La VaudoireTerrain constructible de 429 m² – idéal pour votre maison familiale sur-mesureÀ seulement 5 minutes à pied de la gare de Sartrouville (RER A et Transilien), découvrez ce terrain de 429 m² parfaitement situé pour accueillir la maison familiale de vos rêves, conçue sur-mesure par Maisons Évolution.Nichée dans un quartier résidentiel prisé, cette parcelle vous offre un cadre de vie pratique et agréable :Écoles de la maternelle au lycée accessibles en moins de 10 minutes à piedCommerces et services de proximité💰 Prix de vente : 429 000 €Une opportunité rare pour construire une maison qui vous ressemble, dans un environnement alliant confort, dynamisme et convivialité.👉 Pour plus d’informations ou organiser une visite, contactez dès maintenant :Caroline BETHERY – (Numéro supprimé)Maisons Évolution Cormeilles-en-Parisis vous accompagne à chaque étape de votre projet.
Sartrouville
TERRAIN🌳 Terrain de 300 m² à vendre à Sartrouville – Projet de maison sur-mesure avec garage et sous-solIDÉALEMENT SITUÉ – VUE DÉGAGÉEÀ Sartrouville (78500), découvrez ce terrain de 300 m² offrant une vue dégagée et un cadre de vie recherché, parfait pour concrétiser votre projet de maison individuelle sur-mesure avec Maisons Évolution.🏡 Votre future maison R+Combles avec garage et sous-sol :Conception 100 % personnalisable selon vos envies et vos besoinsSous-sol total et garage intégré pour plus d’espace et de confortArchitecture moderne ou traditionnelle au choixAccompagnement complet par Maisons Évolution Cormeilles-en-Parisis, constructeur reconnu pour son sérieux et sa qualité📍 Un emplacement idéal :Quartier calme et recherché de SartrouvilleTransilien J à quelques minutes (Paris en 15 min)RER A et C à moins de 10 minutes en voitureÉcoles, commerces, boulangeries, supermarchés, bureau de poste et tennis à moins de 10 minutes à pied💰 Prix du terrain : 198 000 €(Hors frais de notaire et coût de la construction – visuel non contractuel)📞 Contactez Caroline BETHERY au (Numéro supprimé) pour plus d’informations et une étude gratuite et personnalisée de votre projet.Maisons Évolution Cormeilles-en-Parisis vous accompagne à chaque étape de votre future construction.
Bezons
TERRAIN🌳 Terrain de 300 m² à Bezons – Votre projet de maison individuelle sur-mesureIDÉALEMENT SITUÉ – PRÊT À ACCUEILLIR VOTRE FUTURE MAISONÀ Bezons (95870), à deux pas du RER A (station Houilles-Carrières-sur-Seine, 10 min de Paris), découvrez ce terrain de 300 m² idéal pour réaliser votre maison individuelle sur-mesure avec Maisons Évolution.🏡 Votre projet maison :Terrain prêt à bâtir pour une maison R+Combles personnalisableConception entièrement sur-mesure selon vos envies : nombre de chambres, plan, style architectural et finitionsPossibilité d’intégrer garage et sous-sol totalAccompagnement complet par Maisons Évolution Cormeilles-en-Parisis, constructeur reconnu pour son savoir-faire et la qualité de ses réalisations📍 Un emplacement privilégié pour toute la famille :Quartier calme et attractifÉcoles, collèges, lycées et crèche à moins de 10 minutes à piedTransports pratiques : RER A, C et DCommerces et services à proximité : bibliothèque, supermarchés, boulangeries, boucheries, bureau de poste, piscines et tennis💰 Prix : 240 000 €(Terrain – hors frais de notaire et coût de construction, visuel non contractuel)📞 Contactez Caroline BETHERY au (Numéro supprimé) pour plus d’informations et une étude personnalisée de votre futur projet de construction.Maisons Évolution vous accompagne à chaque étape, de l’achat du terrain jusqu’à la remise des clés de votre maison sur-mesure.Maisons Évolution – Construisez la maison qui vous ressemble.
Bezons
TERRAIN ET MAISON🏡 Maison individuelle sur-mesure de 7 pièces à Bezons (95870) – Terrain de 300 m²IDÉALEMENT SITUÉE – MAISON NEUVE R+COMBLES POUR VOTRE FAMILLEÀ Bezons, à quelques minutes du RER A (station Houilles-Carrières-sur-Seine, Paris en 10 min), Maisons Évolution vous propose de réaliser votre maison individuelle sur-mesure sur un terrain de 300 m², dans un secteur résidentiel attractif.🌟 Votre future maison personnalisée :Surface habitable : 102 m² sur 2 niveaux5 chambres, cuisine ouverte, 2 salles de bains et un espace de vie lumineuxPlans entièrement personnalisables : choix du style architectural, aménagement intérieur et finitions selon vos enviesPossibilité d’intégrer garage et sous-sol total pour plus de confortAccompagnement complet par Maisons Évolution Cormeilles-en-Parisis, constructeur reconnu pour son expertise et la qualité de ses réalisations📍 Un emplacement idéal pour toute la famille :Quartier calme et recherché de BezonsÉcoles, crèche, collèges et lycées à moins de 10 minutes à piedCommerces et services à proximité : supermarchés, boulangeries, boucheries, bibliothèque, piscines et tennisTransports pratiques : RER A, C et D, 54 gares accessibles en moins de 10 min en voiture💰 Prix indicatif : 420 500 €(Terrain + maison – hors frais de notaire et coûts annexes, visuel non contractuel)📞 Contactez Caroline BETHERY au (Numéro supprimé) pour une étude gratuite et personnalisée de votre futur projet.Maisons Évolution vous accompagne à toutes les étapes, de la conception à la remise des clés de votre maison sur-mesure.Maisons Évolution – Construisez la maison qui vous ressemble.
Sartrouville
TERRAIN ET MAISONPROJET DE CONSTRUCTION – Maison familiale neuve à Sartrouville4 pièces – 100 m² habitables sur terrain de 429 m²À seulement quelques minutes à pied de la gare RER A de Sartrouville, Maisons Évolution Cormeilles-en-Parisis vous propose un projet de maison individuelle contemporaine, personnalisable selon vos envies et le style de vie de votre famille.Cette maison de 100 m² sur 2 niveaux comprend :Un bel espace de vie ouvert et lumineux, idéal pour recevoir4 chambres confortables pour toute la famille2 salles de bains modernes, pensées pour votre confortUn jardin agréable grâce à son terrain de 429 m²✅ Les atouts du secteur :Quartier recherché et familialÉcoles de la maternelle au lycée à moins de 10 minutes à piedCommerces et services de proximité🚆 Un emplacement stratégique :RER A, RER C et Transilien J accessible en 5 minutes à pieds💰 Prix du projet maison + terrain : 625 000 €✨ Une opportunité rare de concrétiser votre projet de maison neuve sur-mesure, dans un cadre de vie agréable et très bien desservi.👉 Pour en savoir plus sur ce projet ou sur la personnalisation de votre future maison, contactez dès aujourd’hui :Caroline BETHERY – (Numéro supprimé)Maisons Évolution Cormeilles-en-Parisis vous accompagne dans toutes vos démarches.
Sartrouville
TERRAIN ET MAISONPROJET DE CONSTRUCTION – Maison familiale neuve à Sartrouville4 pièces – 110 m² habitables sur terrain de 429 m²À seulement 5 minutes de la gare RER A de Sartrouville (Paris en moins de 20 minutes), Maisons Évolution vous propose un projet de maison individuelle contemporaine, personnalisable selon vos besoins et vos envies.Cette maison de 110 m², sur 2 niveaux, est pensée pour allier confort et fonctionnalité :Un vaste séjour lumineux avec cuisine ouverte4 chambres spacieuses, parfaites pour accueillir toute la famille2 salles de bains modernesUn jardin agréable grâce à son terrain de 429 m²✅ Les atouts du secteur :Quartier recherché et familialÉcoles de la maternelle au lycée accessibles à pied en moins de 10 minutesCommerces et services à proximité 🚆 Une situation idéale :RER A et C à proximité immédiateTransilien J (Paris Saint-Lazare en 15 min)💰 Prix du projet maison + terrain : 668 000 €✨ L’opportunité de concrétiser une maison neuve sur-mesure, adaptée à votre mode de vie, dans un cadre agréable et parfaitement desservi.👉 Pour plus d’informations sur ce projet ou pour personnaliser votre future maison, contactez dès aujourd’hui :Caroline BETHERY – (Numéro supprimé)Maisons Évolution Cormeilles-en-Parisis vous accompagne de la conception à la remise des clés.
Bezons
TERRAIN ET MAISON🏡 Maison individuelle sur-mesure de 6 pièces à Bezons (95870) – Terrain de 300 m²IDÉALEMENT SITUÉE – MAISON NEUVE R+COMBLES POUR VOTRE FAMILLEÀ Bezons, au pied du RER A (station Houilles-Carrières-sur-Seine, Paris en 10 min), Maisons Évolution vous propose de concrétiser votre projet de maison individuelle sur-mesure sur un terrain de 300 m², dans un secteur calme et recherché.🌟 Votre future maison personnalisée :Surface habitable : 120 m² sur 2 niveaux4 chambres, cuisine ouverte, salle de bains, et espace de vie lumineuxPlans entièrement personnalisables : style architectural, agencement et finitions selon vos enviesPossibilité d’ajouter garage et sous-sol total pour un confort optimalAccompagnement complet par Maisons Évolution Cormeilles-en-Parisis, constructeur reconnu pour son expertise et la qualité de ses réalisations📍 Un emplacement idéal pour toute la famille :Quartier résidentiel et attractif de BezonsÉcoles, crèche, collèges et lycées à moins de 10 minutes à piedCommerces et services à proximité : supermarchés, boulangeries, boucheries, bibliothèque, piscines et tennisTransports pratiques : RER A, C et D, 54 gares accessibles en moins de 10 min en voiture💰 Prix indicatif : 458 500 €(Terrain + maison – hors frais de notaire et coûts annexes, visuel non contractuel)📞 Contactez Caroline BETHERY au (Numéro supprimé) pour une étude gratuite et personnalisée de votre futur projet.Maisons Évolution vous accompagne à chaque étape, de la conception à la remise des clés de votre maison sur-mesure.Maisons Évolution – Construisez la maison qui vous ressemble.
Sartrouville
TERRAIN ET MAISON🏡 PROJET DE CONSTRUCTION – Maison familiale sur-mesure à Sartrouville4 pièces – 104 m² habitables sur terrain de 429 m²À seulement 5 minutes à pied de la gare RER A de Sartrouville, Maisons Évolution vous propose un projet de maison individuelle neuve de 104 m², personnalisable selon vos envies et les besoins de votre famille.Cette maison contemporaine à étage se compose de :Un bel espace de vie lumineux avec cuisine ouverte3 chambres spacieuses, idéales pour accueillir toute la familleUne salle de bains moderne et fonctionnelleUn jardin généreux grâce à son terrain de 429 m²✅ Confort et praticité au quotidien :Quartier recherché de La VaudoireÉcoles de la maternelle au lycée accessibles en moins de 10 minutes à piedCommerces de proximité🚆 Une localisation idéale :RER A, C et Transilien ligne J à 5 minutes à pied (Paris en moins de 20 minutes)💰 Prix du projet maison + terrain : 664 500 €✨ Une opportunité rare de construire une maison neuve qui vous ressemble, dans un secteur prisé et parfaitement desservi.👉 Pour plus d’informations sur ce projet ou sur la personnalisation de votre future maison, contactez dès aujourd’hui :Caroline BETHERY – (Numéro supprimé)Maisons Évolution Cormeilles-en-Parisis vous accompagne de la conception à la remise des clés.
Sartrouville
TERRAIN ET MAISON🏡 Votre future maison sur-mesure à Sartrouville (78500) – 4 pièces, 104 m² sur terrain de 300 m²IDÉALEMENT SITUÉE – MAISON NEUVE AVEC JARDIN, GARAGE ET SOUS-SOL POSSIBLERéalisez votre maison individuelle sur-mesure avec Maisons Évolution dans un secteur recherché de Sartrouville, à quelques minutes du Transilien J (Paris à 15 min) !🌟 Le projet maison (modèle personnalisable) :Maison R+Combles de 104 m² habitables sur 300 m² de terrain3 chambres spacieuses, belle pièce de vie lumineuse, cuisine ouverte et salle de bains familialePossibilité de garage intégré et sous-sol total selon vos besoinsConception entièrement personnalisable : plans, agencement, finitions et style architecturalAccompagnement complet par Maisons Évolution Cormeilles-en-Parisis, constructeur reconnu pour son savoir-faire et la qualité de ses réalisations📍 Un emplacement idéal :Quartier calme et résidentielÉcoles, commerces, boulangeries, supermarchés, tennis et bureau de poste à proximitéTransports pratiques : Transilien J, RER A et C à moins de 10 min💰 Prix global indicatif : 449 500 €(Terrain + maison – hors frais annexes, visuel non contractuel)📞 Contactez dès aujourd’hui Caroline BETHERY au (Numéro supprimé) pour étudier votre projet et recevoir une étude gratuite et personnalisée de votre future maison à Sartrouville.Maisons Évolution – Donnez vie à la maison qui vous ressemble.
L’actualité immobilière à Bezons
27/11/2023
02/11/2023
30/10/2023
20/10/2023
16/10/2023
16/10/2023