Maison à construire à Bouffémont (95570)
Images
Description
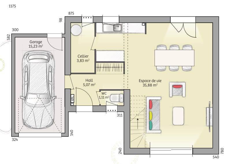
VENTE d'une maison de 5 pièces (90 m²) à Bouffémont
IDÉALEMENT SITUÉE - MAISON 5 PIÈCES NEUVE
En vente : à deux pas de la gare de Bouffémont-Moisselles (Paris à 20 min avec le Transilien H), nous sommes heureux de vous proposer, idéalement située dans Bouffémont (95570), cette maison de 5 pièces de 90 m² et de 453 m² de terrain.
Cette maison compte 2 niveaux. Elle se divise en trois chambres, une cuisine et une salle de bains. Cette maison est neuve.
La maison se trouve dans un secteur attractif. Il y a plusieurs établissements scolaires (maternelle, élémentaire, primaire et collège) à moins de 10 minutes à pied. Niveau transports en commun, on trouve les lignes de RER C et D ainsi que 37 gares à moins de 10 minutes en voiture. Il y a un tennis, une bibliothèque, deux boulangeries, trois commerces et une épicerie dans les environs.
Son prix de vente est de 389 000 €.
Prenez contact avec notre agence (NGUYEN Hugo : (Numéro supprimé)) pour toute information sur la propriété ou sur les modalités de vente. Maisons France Confort Magny-le-Hongre est là pour vous accompagner à toutes les étapes de l'achat.
Annonce proposée par un Agent Commercial Partenaire.
Logement susceptibles de vous intéresser
Nous vous proposons de découvrir aussi cette sélection de logements situés à moins de 10km de Bouffémont et qui seraient susceptibles de vous intéresser.

Bouffémont
TERRAINVENTE d’un terrain de 453 m² à BouffémontIDÉALEMENT SITUÉ – VUE DÉGAGÉEÀ Bouffémont (95570) à deux pas de la gare de Bouffémont-Moisselles (Paris à 20 min par le Transilien H), découvrez ce terrain de 453 m². Ce terrain, avec une exposition sud-ouest, profite d’une vue dégagée. Dans un secteur recherché, le terrain idéalement situé est proche des commerces et des écoles. Plusieurs établissements scolaires (maternelle, élémentaire, primaire et collège) sont implantés à moins de 10 minutes à pied. Niveau transports en commun, il y a le RER C et D ainsi que 37 gares à moins de 10 minutes en voiture. On trouve un tennis, une bibliothèque, deux boulangeries, trois commerces et une épicerie dans les environs.Son prix de vente est de 189 000 €. Prenez contact avec Hugo NGUYEN (tél : (Numéro supprimé)) pour toute information sur le terrain ou sur les démarches à suivre.Annonce proposée par un Agent Commercial Partenaire.

Bessancourt
TERRAINVENTE : terrain de 320 m² à BessancourtIDÉALEMENT SITUÉ – VUE DÉGAGÉEProche de la gare (Paris à 35 min par le Transilien H) à Bessancourt (95550), terrain de 320 m². Réalisez-y la maison de vos rêves. Ce terrain, orienté au sud-ouest, profite d’une vue dégagée. Dans un quartier convoité, ce terrain idéalement situé est proche des commerces et des écoles. Il y a cinq établissements scolaires à moins de 10 minutes à pied, tout comme deux crèches. Niveau transports en commun, on trouve la gare Bessancourt dans les environs. On trouve un tennis, des commerces, trois boulangeries, trois supermarchés, une épicerie et un bureau de poste à quelques minutes à peine.Ce terrain est proposé à l’achat pour 150 000 €. Prenez contact avec notre agence (NGUYEN Hugo : (Numéro supprimé)) pour toute information sur le terrain ou sur les démarches à suivre. Maisons France Confort Magny-le-Hongre vous accompagne dans tous vos projets immobiliers et dans toutes vos démarches.Annonce proposée par un Agent Commercial Partenaire.

Bouffémont
TERRAIN ET MAISONVENTE d’une maison de 5 pièces (90 m²) à BouffémontIDÉALEMENT SITUÉE – MAISON 5 PIÈCES NEUVEEn vente : à deux pas de la gare de Bouffémont-Moisselles (Paris à 20 min avec le Transilien H), nous sommes heureux de vous proposer, idéalement située dans Bouffémont (95570), cette maison de 5 pièces de 90 m² et de 453 m² de terrain.Cette maison compte 2 niveaux. Elle se divise en trois chambres, une cuisine et une salle de bains. Cette maison est neuve.La maison se trouve dans un secteur attractif. Il y a plusieurs établissements scolaires (maternelle, élémentaire, primaire et collège) à moins de 10 minutes à pied. Niveau transports en commun, on trouve les lignes de RER C et D ainsi que 37 gares à moins de 10 minutes en voiture. Il y a un tennis, une bibliothèque, deux boulangeries, trois commerces et une épicerie dans les environs.Son prix de vente est de 389 000 €.Prenez contact avec notre agence (NGUYEN Hugo : (Numéro supprimé)) pour toute information sur la propriété ou sur les modalités de vente. Maisons France Confort Magny-le-Hongre est là pour vous accompagner à toutes les étapes de l’achat.Annonce proposée par un Agent Commercial Partenaire.

Bouffémont
TERRAIN ET MAISONVENTE : maison F8 (140 m²) à BouffémontIDÉALEMENT SITUÉE – MAISON 8 PIÈCES NEUVEProche du Transilien H (gare de Bouffémont-Moisselles, 20 min de Paris), nous vous proposons en vente, idéalement située dans Bouffémont (95570), cette maison de 8 pièces de 140 m².C’est une maison de 2 niveaux. Elle est composée de cinq chambres, d’une cuisine et de deux salles de bains. Cette maison est neuve.Le terrain du bien s’étend sur 453 m².Ce bien se situe dans un quartier attractif. Plusieurs établissements scolaires (maternelle, élémentaire, primaire et collège) se trouvent à moins de 10 minutes à pied. Niveau transports, il y a le RER C et D ainsi que 37 gares à moins de 10 minutes en voiture. Il y a un tennis, une bibliothèque, deux boulangeries, trois commerces et une épicerie dans les environs.Il est à vendre pour la somme de 449 000 €.N’hésitez pas à prendre contact avec Hugo NGUYEN (tél : (Numéro supprimé)) pour tout renseignement sur la maison ou sur les démarches à suivre. Maisons France Confort Magny-le-Hongre vous accompagne à toutes les étapes de l’achat et dans tous vos projets immobiliers.Annonce proposée par un Agent Commercial Partenaire.

Bouffémont
TERRAIN ET MAISONVENTE : maison F6 (105 m²) à BouffémontIDÉALEMENT SITUÉE – MAISON 6 PIÈCES NEUVEÀ vendre : à côté de la gare de Bouffémont-Moisselles (Paris à 20 min avec le Transilien H), notre agence Maisons France Confort Magny-le-Hongre est ravie de vous proposer cette maison de 6 pièces de 105 m² idéalement située dans Bouffémont (95570).Il s’agit d’une maison de 2 niveaux. Son intérieur comporte quatre chambres, une cuisine et deux salles de bains. La maison est neuve.Le terrain de la propriété est de 453 m².Cette maison est située dans un quartier convoité. On trouve plusieurs établissements scolaires (maternelle, élémentaire, primaire et collège) à moins de 10 minutes à pied. Niveau transports en commun, il y a les lignes C et D du RER ainsi que 37 gares à moins de 10 minutes en voiture. Il y a un tennis, une bibliothèque, deux boulangeries, trois commerces et une épicerie dans les environs.Elle est à vendre pour la somme de 409 000 €.Prenez contact avec notre agence (NGUYEN Hugo : (Numéro supprimé)) pour tout renseignement sur la maison, sur les démarches à suivre ou sur les modalités de vente. Maisons France Confort Magny-le-Hongre vous accompagne dans tous vos projets immobiliers et à toutes les étapes de votre projet.Annonce proposée par un Agent Commercial Partenaire.

Bouffémont
TERRAIN ET MAISONMaison de 6 pièces (95 m²) en vente à BouffémontIDÉALEMENT SITUÉE – MAISON 6 PIÈCES NEUVEÀ vendre : à quelques minutes de la gare de Bouffémont-Moisselles (Paris à 20 min avec le Transilien H), idéalement située dans Bouffémont (95570), ayez le coup de coeur pour cette maison de 6 pièces de plain-pied de 95 m².Conçue de plain-pied, elle comporte trois chambres, une cuisine et deux salles de bains. La maison est neuve.Le terrain de la propriété est de 453 m².Cette maison se situe dans un secteur prisé. Il y a plusieurs établissements scolaires (maternelle, élémentaire, primaire et collège) à moins de 10 minutes à pied. Niveau transports en commun, on trouve les lignes de RER C et D ainsi que 37 gares à moins de 10 minutes en voiture. Il y a un tennis, une bibliothèque, deux boulangeries, trois commerces et une épicerie à proximité du bien.Son prix de vente est de 409 000 €.Contactez notre agence (NGUYEN Hugo : (Numéro supprimé)) pour tout renseignement sur la propriété ou sur les modalités de vente.Annonce proposée par un Agent Commercial Partenaire.

Bessancourt
TERRAIN ET MAISONBessancourt : maison T5 (90 m²) en venteIDÉALEMENT SITUÉE – MAISON 5 PIÈCES NEUVEAu pied de la gare (Paris à 35 min par le Transilien H), Maisons France Confort Magny-le-Hongre vous présente en vente, idéalement située dans Bessancourt (95550), cette maison de 5 pièces de 90 m² et de 320 m² de terrain. Elle comporte trois chambres, une cuisine et une salle de bains.Cette maison possède 2 niveaux. Elle est neuve.Cette maison se trouve dans un secteur attractif. Cinq établissements scolaires sont implantés à moins de 10 minutes à pied, tout comme deux structures d’accueil pour la petite enfance. Côté transports en commun, il y a la gare Bessancourt à proximité. On trouve un tennis, des commerces, trois boulangeries, trois supermarchés, un bureau de poste et une épicerie à quelques minutes du logement.Son prix de vente est de 359 000 €.Prenez contact avec Hugo NGUYEN ((Numéro supprimé)) pour toute information sur la maison.Annonce proposée par un Agent Commercial Partenaire.

Bessancourt
TERRAIN ET MAISONBessancourt : maison de 5 pièces (90 m²) à vendreIDÉALEMENT SITUÉE – MAISON 5 PIÈCES NEUVEÀ vendre : au pied de la gare (Paris à 35 min par le Transilien H), nous sommes heureux de vous proposer cette maison de 5 pièces de 90 m² idéalement située dans Bessancourt (95550). Elle inclut trois chambres, une cuisine et une salle de bains.Le terrain de la propriété s’étend sur 320 m².Il s’agit d’une maison de 2 niveaux. Elle est neuve.La maison est située dans un secteur prisé. Cinq établissements scolaires sont implantés à moins de 10 minutes à pied, tout comme deux crèches. Niveau transports en commun, on trouve la gare Bessancourt à quelques pas de la maison. Il y a un tennis, des commerces, trois boulangeries, trois supermarchés, une épicerie et un bureau de poste à proximité du logement.Elle est proposée à l’achat pour 409 000 €.Contactez notre agence (Hugo NGUYEN : (Numéro supprimé)) pour toute question sur la maison.Annonce proposée par un Agent Commercial Partenaire.

Bessancourt
TERRAIN ET MAISONMaison F6 (115 m²) en vente à BessancourtIDÉALEMENT SITUÉE – MAISON 6 PIÈCES NEUVEÀ vendre : à 525 m de la gare (Paris à 35 min par le Transilien H), venez découvrir cette maison de 6 pièces de plain-pied de 115 m² idéalement située dans Bessancourt (95550). Son intérieur propose trois chambres, une cuisine et trois salles de bains.Le terrain de la propriété s’étend sur 320 m².La maison est neuve.Cette maison se situe dans un secteur recherché. On trouve cinq établissements scolaires à moins de 10 minutes à pied, tout comme deux structures d’accueil pour la petite enfance. Côté transports, il y a la gare Bessancourt juste à côté. On trouve un tennis, des commerces, trois boulangeries, trois supermarchés, un bureau de poste et une épicerie à proximité.Son prix de vente est de 430 000 €.Prenez contact avec Hugo NGUYEN ((Numéro supprimé)) pour plus d’informations sur la propriété.Annonce proposée par un Agent Commercial Partenaire.
L’actualité immobilière à Bouffémont





