Maison à construire à Ennery (95300)
Images
Description
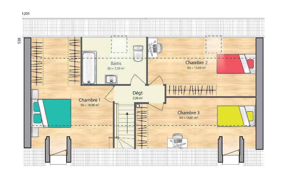
VENTE d'une maison de 6 pièces (105 m²) à Ennery
IDÉALEMENT SITUÉE - MAISON 6 PIÈCES NEUVE
À vendre : localisée à moins de 30 km du Luxembourg et de l'Allemagne et à deux pas de Metz, nous vous proposons cette maison de 6 pièces de 105 m² et de 376 m² de terrain idéalement située dans Ennery (57365).
C'est une maison de 2 niveaux. Son intérieur se divise en quatre chambres, une cuisine et deux salles de bains. Cette maison est neuve.
Elle se trouve dans un secteur recherché. L'École Primaire A. Camus est implantée à moins de 10 minutes à pied. Côté transports, on trouve sept gares à moins de 10 minutes en voiture. Les autoroutes A31, A4 et A30 et la nationale N52 sont accessibles à moins de 9 km. Il y a un tennis, deux boulangeries, trois commerces, deux supermarchés et un bureau de poste à quelques minutes.
Son prix de vente est de 304 900 €.
Prenez contact avec Mylann URBANSKY (tél : (Numéro supprimé)) pour plus de renseignements sur la maison, sur les démarches à suivre ou sur les modalités de vente. Donnez vie à vos projets immobiliers avec Maisons Balency Baillet-en-France.
Annonce proposée par un Agent Commercial Partenaire.
Logement susceptibles de vous intéresser
Nous vous proposons de découvrir aussi cette sélection de logements situés à moins de 10km de Ennery et qui seraient susceptibles de vous intéresser.
Villiers-Adam
TERRAINVilliers-Adam : terrain de 630 m² en ventePROCHE DE PARISGrand terrain à côté du Transilien H (gare de Mériel, 40 min de Paris). De 630 m², ce terrain se situe dans Villiers-Adam (95840). Ce terrain est proche des commerces et des écoles. L’École Primaire Publique Paul Cézanne est implantée à moins de 10 minutes à pied. Niveau transports en commun, il y a la ligne de RER C (Montigny-Beauchamp) ainsi que 33 gares à moins de 10 minutes en voiture. On trouve un tennis, une bibliothèque et un commerce à proximité du terrain.Son prix de vente est de 170 000 €. Prenez contact avec Antoine FLIPPE ((Numéro supprimé)) pour plus d’informations sur le terrain. Maisons Balency Baillet-en-France est là pour vous accompagner à toutes les étapes de l’achat.Annonce proposée par un Agent Commercial Partenaire.
Villiers-Adam
TERRAIN ET MAISONVilliers-Adam : maison de 6 pièces (105 m²) en ventePROCHE DE PARIS – MAISON 6 PIÈCES NEUVEAu pied du Transilien H (gare de Mériel, 40 min de Paris), Maisons Balency Baillet-en-France vous présente cette maison de 6 pièces de 105 m² à Villiers-Adam (95840). Elle dispose de quatre chambres, d’une cuisine et de deux salles de bains.Le terrain du bien s’étend sur 630 m².Cette maison compte 2 niveaux. Elle est neuve.L’École Primaire Publique Paul Cézanne se trouve à moins de 10 minutes à pied. Côté transports en commun, il y a la ligne de RER C (Montigny-Beauchamp) ainsi que 33 gares à moins de 10 minutes en voiture. On trouve un tennis, une bibliothèque et un commerce à proximité.Elle est à vendre pour la somme de 378 000 €.N’hésitez pas à prendre contact avec notre agence (Antoine FLIPPE : (Numéro supprimé)) pour toute question sur cette maison. Maisons Balency Baillet-en-France est là pour vous accompagner dans toutes vos démarches.Annonce proposée par un Agent Commercial Partenaire.
Villiers-Adam
TERRAIN ET MAISONVilliers-Adam : maison de 5 pièces (90 m²) à vendreMAISON 5 PIÈCES NEUVE – PROCHE DE PARISÀ vendre : à côté du Transilien H (gare de Mériel, 40 min de Paris), laissez vous charmer par cette maison de 5 pièces de 90 m² et de 630 m² de terrain à Villiers-Adam (95840).Cette maison comporte 2 niveaux. Son intérieur se divise en trois chambres, une cuisine et une salle de bains. La maison est neuve.L’École Primaire Publique Paul Cézanne se trouve à moins de 10 minutes à pied. Niveau transports en commun, il y a la ligne de RER C (Montigny-Beauchamp) ainsi que 33 gares à moins de 10 minutes en voiture. On trouve un tennis, une bibliothèque et un commerce à proximité du logement.Son prix de vente est de 370 000 €.N’hésitez pas à prendre contact avec notre agence (Antoine FLIPPE : (Numéro supprimé)) pour plus de renseignements sur la maison.Annonce proposée par un Agent Commercial Partenaire.
Villiers-Adam
TERRAIN ET MAISONVilliers-Adam : maison de 6 pièces (80 m²) en venteMAISON 6 PIÈCES NEUVE – PROCHE DE PARISÀ deux pas de la gare de Mériel (Paris à 40 min avec le Transilien H), nous vous proposons cette maison de 6 pièces de 80 m² à vendre à Villiers-Adam (95840).C’est une maison de 2 niveaux. Elle est composée de quatre chambres, d’une cuisine et de deux salles de bains. La maison est neuve.Le terrain de la propriété s’étend sur 630 m².Il y a l’École Primaire Publique Paul Cézanne à moins de 10 minutes à pied. Niveau transports, on trouve la ligne de RER C (Montigny-Beauchamp) ainsi que 33 gares à moins de 10 minutes en voiture. Il y a un tennis, une bibliothèque et un commerce à quelques minutes à peine.Son prix de vente est de 347 000 €.Contactez notre agence (Antoine FLIPPE : (Numéro supprimé)) pour toute question sur cette maison, sur les modalités de vente ou sur les démarches à suivre. Maisons Balency Baillet-en-France est là pour vous accompagner à toutes les étapes de votre projet.Annonce proposée par un Agent Commercial Partenaire.
Maurecourt
TERRAINMaurecourt : terrain de 239 m² à vendreIDÉALEMENT SITUÉ – PROCHE DE PARISÀ proximité du Transilien J (25 min de Paris) à Maurecourt (78780), terrain de 239 m². Ce terrain, avec vue sur jardin, est exposé au sud. Dans un secteur recherché, le terrain idéalement situé est proche des écoles et des commerces. Il y a l’École Élémentaire Tilleuls, l’École Élémentaire la Cerisaie et l’École Maternelle Chantebelle à moins de 10 minutes à pied et trois structures d’accueil pour les tout-petits. Côté transports, on trouve le RER A et C ainsi que 33 gares à moins de 10 minutes en voiture. Il y a une bibliothèque, un tennis, des commerces, trois boulangeries, un bureau de poste, trois épiceries et une boucherie-charcuterie dans les environs.Ce terrain est à vendre pour la somme de 179 000 €. Contactez notre agence (KUD Morgane : (Numéro supprimé)) pour toute question sur le terrain ou sur les modalités de vente. Les Maisons Extraco Chambourcy est là pour vous accompagner à toutes les étapes de votre projet.
Maurecourt
TERRAIN ET MAISONMaurecourt : maison T6 (114 m²) en venteIDÉALEMENT SITUÉE – MAISON 6 PIÈCES NEUVEÀ vendre : proche du Transilien J (25 min de Paris), idéalement située dans Maurecourt (78780), découvrez cette maison de 6 pièces de 114 m² et de 239 m² de terrain.Il s’agit d’une maison de 2 niveaux. Elle est composée de cinq chambres, d’une cuisine et de deux salles de bains. Cette maison est neuve.Cette propriété se trouve dans un quartier attractif. Il y a l’École Élémentaire Tilleuls, l’École Élémentaire la Cerisaie et l’École Maternelle Chantebelle à moins de 10 minutes à pied et trois structures d’accueil pour les enfants en bas âge. Côté transports, on trouve deux lignes de RER (A et C) ainsi que 33 gares à moins de 10 minutes en voiture. On trouve une bibliothèque, un tennis, des commerces, trois boulangeries, une boucherie-charcuterie, un bureau de poste et trois épiceries dans les environs.Son prix de vente est de 370 239 €.N’hésitez pas à prendre contact avec notre agence (KUD Morgane : (Numéro supprimé)) pour tout renseignement sur la maison ou sur les modalités de vente. Les Maisons Extraco Chambourcy est là pour vous accompagner à toutes les étapes de l’achat.
Maurecourt
TERRAIN ET MAISONMaison F5 (100 m²) en vente à MaurecourtIDÉALEMENT SITUÉE – MAISON 5 PIÈCES NEUVEÀ vendre : à proximité du Transilien J (25 min de Paris), nous vous proposons cette maison de 5 pièces de 100 m² et de 239 m² de terrain idéalement située dans Maurecourt (78780).Cette maison compte 2 niveaux. Elle comporte quatre chambres, une cuisine et une salle de bains. Cette maison est neuve.Le bien se trouve dans un secteur attractif. Il y a l’École Élémentaire Tilleuls, l’École Élémentaire la Cerisaie et l’École Maternelle Chantebelle à moins de 10 minutes à pied et trois structures d’accueil pour les enfants en bas âge. Côté transports en commun, on trouve les lignes A et C du RER ainsi que 33 gares à moins de 10 minutes en voiture. On trouve une bibliothèque, un tennis, des commerces, trois boulangeries, trois épiceries, un bureau de poste et une boucherie-charcuterie à proximité.Il est à vendre pour la somme de 365 691 €.Prenez contact avec notre agence (KUD Morgane : (Numéro supprimé)) pour toute information sur la maison, sur les modalités de vente ou sur les démarches à suivre. Les Maisons Extraco Chambourcy vous accompagne à toutes les étapes de votre projet et dans tous vos projets immobiliers.
Maurecourt
TERRAIN ET MAISONMaison de 5 pièces (137 m²) à vendre à MaurecourtIDÉALEMENT SITUÉE – MAISON 5 PIÈCES NEUVEEn vente : à côté de la gare (Paris à 25 min avec le Transilien J), Les Maisons Extraco Chambourcy vous présente cette maison de 5 pièces de 137 m² et de 239 m² de terrain idéalement située dans Maurecourt (78780).Il s’agit d’une maison de 2 niveaux. Elle comporte quatre chambres, une cuisine et une salle de bains. Cette maison est neuve.La maison est située dans un quartier recherché. Il y a l’École Élémentaire Tilleuls, l’École Élémentaire la Cerisaie et l’École Maternelle Chantebelle à moins de 10 minutes à pied et trois structures d’accueil pour la petite enfance. Niveau transports, on trouve le RER A et C ainsi que 33 gares à moins de 10 minutes en voiture. Il y a une bibliothèque, un tennis, des commerces, trois boulangeries, une boucherie-charcuterie, trois épiceries et un bureau de poste dans les environs.Elle est proposée à l’achat pour 459 900 €.Contactez Morgane KUD ((Numéro supprimé)) pour toute question sur la maison ou sur les modalités de vente.
Maurecourt
TERRAIN ET MAISONMaison T5 (114 m²) en vente à MaurecourtIDÉALEMENT SITUÉE – MAISON 5 PIÈCES NEUVEEn vente : à côté du Transilien J (25 min de Paris), idéalement située dans Maurecourt (78780), notre agence Les Maisons Extraco Chambourcy est ravie de vous proposer cette maison de 5 pièces de plain-pied de 114 m². Son intérieur offre quatre chambres, une cuisine et une salle de bains.Le terrain de la propriété s’étend sur 239 m².La maison est neuve.Le bien se situe dans un quartier prisé. Il y a l’École Élémentaire Tilleuls, l’École Élémentaire la Cerisaie et l’École Maternelle Chantebelle à moins de 10 minutes à pied et trois crèches. Niveau transports en commun, on trouve les lignes A et C du RER ainsi que 33 gares à moins de 10 minutes en voiture. Il y a une bibliothèque, un tennis, des commerces, trois boulangeries, trois épiceries, une boucherie-charcuterie et un bureau de poste à quelques minutes du logement.Il est proposé à l’achat pour 355 372 €.Contactez notre constructeur (Morgane KUD : (Numéro supprimé)) pour obtenir de plus amples informations sur la maison.
L’actualité immobilière à Ennery
27/11/2023
02/11/2023
30/10/2023
20/10/2023
16/10/2023
16/10/2023