Maison à construire à Éragny (95610)
Images
Description
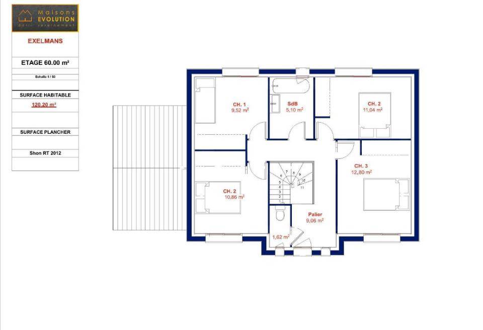
Éragny - Projet de construction : Maison 6 pièces de 120 m²
PROCHE DE PARIS - MAISON SUR-MESURE POUR FAMILLE
À Éragny (95610), à proximité de la gare Éragny-Neuville (Transilien J - Paris en 30 minutes), réalisez votre maison sur-mesure avec Maisons Evolution, sur un terrain de 250 m², idéal pour accueillir toute la famille.
Ce projet de maison, sur 2 niveaux, prévoit :
4 chambres spacieuses,
Une cuisine ouverte à aménager selon vos envies,
1 salle de bains,
Des espaces lumineux et fonctionnels, pensés pour le confort de toute la famille.
Un cadre de vie pratique et agréable :
Écoles de la maternelle au lycée accessibles en moins de 10 minutes à pied,
Commerces et services à proximité : boulangeries, supermarchés, épiceries, bibliothèque, bureau de poste,
Loisirs et activités sportives : tennis et bassin de natation, à quelques pas,
Transports faciles pour rejoindre Paris rapidement.
Ce projet de construction (terrain + maison sur-mesure, hors frais annexes) est proposé au prix de 423 400 €, une belle opportunité pour devenir propriétaire et créer un chez-vous pensé selon vos besoins.
Pour toute information, découvrir les modalités de vente ou être accompagné dans vos démarches, contactez :
Caroline BETHERY - (Numéro supprimé)
Maisons Evolution Cormeilles-en-Parisis vous accompagne à chaque étape, du terrain à la livraison de votre maison personnalisée, conçue sur-mesure pour vous et votre famille.
Logement susceptibles de vous intéresser
Nous vous proposons de découvrir aussi cette sélection de logements situés à moins de 10km de Éragny et qui seraient susceptibles de vous intéresser.
Éragny
TERRAIN ET MAISONVENTE d’une maison de 7 pièces (124 m²) à ÉragnyIDÉALEMENT SITUÉE – MAISON 7 PIÈCES NEUVEÀ vendre : à côté du Transilien J (gare d’Éragny-Neuville, 30 min de Paris), laissez vous charmer par, idéalement située dans Éragny (95610), cette maison de 7 pièces de 124 m².Cette maison comporte 2 niveaux. Elle inclut cinq chambres, une cuisine et trois salles de bains. La maison est neuve.Le terrain du bien s’étend sur 430 m².La propriété se trouve dans un secteur recherché. Des écoles de tous types sont implantées à moins de 10 minutes à pied. Niveau transports, il y a la gare Éragny-Neuville juste à côté. On trouve une bibliothèque, deux tennis, un bassin de natation, des commerces, des boulangeries, trois supermarchés, un bureau de poste et des boucheries-charcuteries à quelques minutes de la maison.Elle est à vendre pour la somme de 395 670 €.N’hésitez pas à prendre contact avec Emmanuel au (Numéro supprimé) pour obtenir de plus amples renseignements sur la maison.
Éragny
TERRAIN ET MAISONÉragny : maison T6 (109 m²) à vendreIDÉALEMENT SITUÉE – MAISON 6 PIÈCES NEUVEÀ proximité de la gare d’Éragny-Neuville (Paris à 30 min par le Transilien J), découvrez cette maison de 6 pièces de 109 m² et de 430 m² de terrain idéalement située dans Éragny (95610). Son intérieur inclut quatre chambres, une cuisine et deux salles de bains.C’est une maison de 2 niveaux. Elle est neuve.La maison est située dans un secteur prisé. Des écoles de tous types (de la maternelle au lycée) se trouvent à moins de 10 minutes à pied. Niveau transports en commun, il y a la gare Éragny-Neuville dans les environs. Il y a une bibliothèque, deux tennis, un bassin de natation, des commerces, des boulangeries, trois supermarchés, des boucheries-charcuteries et un bureau de poste à quelques minutes.Elle est à vendre pour la somme de 392 450 €.Prenez contact avec Emmanuel au (Numéro supprimé) pour plus de renseignements sur la maison. Maisons France Confort Moisselles est là pour vous accompagner dans toutes vos démarches.
Triel-sur-Seine
TERRAIN ET MAISONVENTE d’une maison 1 pièce (198 m²) à Triel-sur-SeineIDÉALEMENT SITUÉE – MAISON 1 PIÈCE NEUVEEn vente : à côté de la gare (Paris à 35 min par le Transilien J), nous sommes ravis de vous présenter cette maison 1 pièce de 198 m² idéalement située dans Triel-sur-Seine (78510). Son intérieur propose cinq chambres, une cuisine et trois salles de bains.Le terrain du bien s’étend sur 746 m².Cette maison comporte 2 niveaux. Elle est neuve.La maison se situe dans un secteur attractif. Plusieurs écoles (maternelle, élémentaire et collège) se trouvent à moins de 10 minutes à pied. Niveau transports en commun, il y a la gare Triel-sur-Seine à proximité. On trouve une bibliothèque, un tennis, des commerces, trois boulangeries, un supermarché, quatre épiceries et deux boucheries-charcuteries à quelques minutes du logement.Elle est proposée à l’achat pour 621 000 €.Contactez Morgane KUD ((Numéro supprimé)) pour plus d’informations sur la maison ou sur les modalités de vente. Les Maisons Extraco Chambourcy est là pour vous accompagner dans toutes vos démarches.
Éragny
TERRAIN ET MAISONMaison de 5 pièces (90 m²) en vente à ÉragnyIDÉALEMENT SITUÉE – MAISON 5 PIÈCES NEUVEEn vente : à deux pas de la gare d’Éragny-Neuville (Paris à 30 min par le Transilien J), idéalement située dans Éragny (95610), ayez le coup de coeur pour cette maison de 5 pièces de plain-pied de 90 m² et de 430 m² de terrain.Elle compte trois chambres, une cuisine et une salle de bains. Cette maison est neuve.La maison se trouve dans un quartier recherché. Il y a des établissements scolaires du primaire et du secondaire à moins de 10 minutes à pied. Niveau transports en commun, on trouve la gare Éragny-Neuville juste à côté. Il y a une bibliothèque, deux tennis, un bassin de natation, des commerces, des boulangeries, trois supermarchés, des épiceries et un bureau de poste dans les environs.Son prix de vente est de 373 990 €.Contactez Emmanuel au (Numéro supprimé) pour plus de renseignements sur la maison ou sur les démarches à suivre. Maisons France Confort Moisselles est là pour vous accompagner à toutes les étapes de l’achat.
Éragny
TERRAIN ET MAISONMaison de 5 pièces (89 m²) à vendre à ÉragnyIDÉALEMENT SITUÉE – MAISON 5 PIÈCES NEUVEÀ proximité du Transilien J (gare d’Éragny-Neuville, 30 min de Paris), à vendre idéalement située dans Éragny (95610), votre agence Maisons France Confort Moisselles est ravie de vous proposer cette maison de 5 pièces de 89 m². Son intérieur dispose de trois chambres, d’une cuisine et de deux salles de bains.Le terrain du bien est de 430 m².C’est une maison de 2 niveaux. Elle est neuve.La maison se situe dans un secteur attractif. Il y a des établissements scolaires de tous niveaux (de la maternelle au lycée) à moins de 10 minutes à pied. Niveau transports en commun, on trouve la gare Éragny-Neuville dans un rayon de 1 km. On trouve une bibliothèque, deux tennis, un bassin de natation, des commerces, des boulangeries, trois supermarchés, des épiceries et des boucheries-charcuteries à quelques minutes à peine.Elle est à vendre pour la somme de 370 200 €.Prenez contact avec notre agence Emmanuel au (Numéro supprimé) pour tout renseignement sur la maison. Maisons France Confort Moisselles vous accompagne dans tous vos projets immobiliers et dans toutes vos démarches.
Éragny
TERRAIN ET MAISONMaison F7 (102 m²) en vente à ÉragnyIDÉALEMENT SITUÉE – MAISON 7 PIÈCES NEUVEAu pied de la gare d’Éragny-Neuville (Paris à 30 min par le Transilien J), nous sommes heureux de vous proposer en vente, idéalement située dans Éragny (95610), cette maison de 7 pièces de 102 m².Il s’agit d’une maison de 2 niveaux. Elle se divise en cinq chambres, une cuisine et deux salles de bains. La maison est neuve.Le terrain de la propriété est de 430 m².Cette maison se situe dans un quartier recherché. On trouve des établissements scolaires du primaire et du secondaire à moins de 10 minutes à pied. Niveau transports en commun, il y a la gare Éragny-Neuville dans les environs. Il y a une bibliothèque, deux tennis, un bassin de natation, des commerces, des boulangeries, trois supermarchés, des épiceries et des boucheries-charcuteries à quelques minutes de la maison.Elle est proposée à l’achat pour 375 690 €.Contactez notre agence Emmanuel au (Numéro supprimé) pour tout renseignement sur la propriété, sur les modalités de vente ou sur les démarches à suivre. Concrétisez vos projets immobiliers avec Maisons France Confort Moisselles.
Éragny
TERRAINVENTE d’un terrain de 430 m² à ÉragnyIDÉALEMENT SITUÉ – PROCHE DE PARISÀ Éragny (95610) à côté du Transilien J (gare d’Éragny-Neuville, 30 min de Paris), imaginez la maison de vos rêves sur ce terrain de 430 m². Dans un secteur prisé, le terrain idéalement situé est proche des écoles et des commerces. Des écoles de tous niveaux sont implantées à moins de 10 minutes à pied. Niveau transports en commun, il y a la gare Éragny-Neuville juste à côté. On trouve une bibliothèque, deux tennis, un bassin de natation, des commerces, des boulangeries, trois supermarchés, un bureau de poste et des boucheries-charcuteries à quelques minutes de la propriété.Son prix de vente est de 185 000 €. Prenez contact avec Emmanuel au (Numéro supprimé) pour obtenir de plus amples renseignements sur ce terrain, sur les démarches à suivre ou sur les modalités de vente. Maisons France Confort Moisselles vous accompagne à toutes les étapes de l’achat et dans tous vos projets immobiliers.
Éragny
TERRAIN ET MAISONÉragny : maison de 6 pièces (110 m²) à vendreIDÉALEMENT SITUÉE – MAISON 6 PIÈCES NEUVEProche du Transilien J (gare d’Éragny-Neuville, 30 min de Paris), à vendre idéalement située dans Éragny (95610), découvrez cette maison de 6 pièces de 110 m² et de 430 m² de terrain.Cette maison compte 2 niveaux. Son intérieur se divise en quatre chambres, une cuisine et une salle de bains. Cette maison est neuve.La maison se trouve dans un quartier prisé. Il y a tous les types d’établissements scolaires (maternelle, élémentaire et secondaire) à moins de 10 minutes à pied. Côté transports, on trouve la gare Éragny-Neuville dans un rayon de 1 km. On trouve une bibliothèque, deux tennis, un bassin de natation, des commerces, des boulangeries, trois supermarchés, des épiceries et des boucheries-charcuteries à quelques minutes du logement.Elle est proposée à l’achat pour 425 500 €.Contactez notre agence Emmanuel au (Numéro supprimé) pour obtenir de plus amples renseignements sur la maison ou sur les modalités de vente.
Éragny
TERRAIN ET MAISONMaison de 6 pièces (115 m²) à vendre à ÉragnyIDÉALEMENT SITUÉE – MAISON 6 PIÈCES NEUVEEn vente : à proximité du Transilien J (gare d’Éragny-Neuville, 30 min de Paris), idéalement située dans Éragny (95610), nous vous proposons cette maison de 6 pièces de 115 m² et de 430 m² de terrain. Son intérieur est composé de quatre chambres, d’une cuisine et de deux salles de bains.Cette maison comporte 2 niveaux. Elle est neuve.Cette maison se trouve dans un secteur prisé. Des écoles de tous niveaux (de la maternelle au lycée) sont implantées à moins de 10 minutes à pied. Côté transports en commun, il y a la gare Éragny-Neuville dans un rayon de 1 km. On trouve une bibliothèque, deux tennis, un bassin de natation, des commerces, des boulangeries, trois supermarchés, des épiceries et un bureau de poste à quelques minutes de la maison.Elle est proposée à l’achat pour 422 350 €.Prenez contact avec Emmanuel au (Numéro supprimé) pour plus d’informations sur la maison, sur les démarches à suivre ou sur les modalités de vente. Maisons France Confort Moisselles est là pour vous accompagner à toutes les étapes de l’achat.
L’actualité immobilière à Éragny
27/11/2023
02/11/2023
30/10/2023
20/10/2023
16/10/2023
16/10/2023