Maison à construire à Herblay (95220)
Images
Description
PROJET DE CONSTRUCTION - MAISON 5 PIÈCES (105 m²) À HERBLAY (95220)
Construisez votre maison sur-mesure dans un quartier privilégié, à seulement 20 minutes de Paris !
Maisons Évolution Cormeilles-en-Parisis vous propose un projet de construction personnalisé d'une maison moderne de 5 pièces (105 m²) sur un terrain de 400 m², idéalement situé sur les coteaux d'Herblay.
Votre future maison :
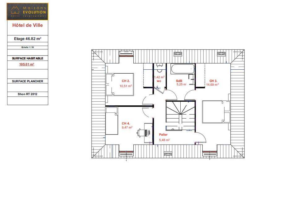
Surface habitable : 105 m² sur 2 niveaux
4 chambres spacieuses, possibilité de suite parentale
Grande pièce de vie lumineuse avec cuisine ouverte
2 salles de bains modernes
Maison entièrement personnalisable : plans, aménagements et finitions selon vos envies
Construction conforme aux normes RE2020 pour confort, performance énergétique et durabilité
Un emplacement idéal :
Quartier calme et recherché, proche des commodités
Écoles, crèches et collège accessibles en moins de 10 minutes à pied
Commerces, supermarché, boulangeries, bureau de poste et épiceries à proximité
Gare Herblay à moins de 1 km pour des trajets simples vers Paris
Prix global du projet : 460 500 € (terrain + maison, hors frais annexes)
📞 Contactez Caroline BETHERY au (Numéro supprimé) pour plus d'informations et pour concevoir votre maison sur-mesure avec Maisons Évolution.
Logement susceptibles de vous intéresser
Nous vous proposons de découvrir aussi cette sélection de logements situés à moins de 10km de Herblay-sur-Seine et qui seraient susceptibles de vous intéresser.
Ermont
TERRAINTerrain de 600 m² à vendre à ErmontGrand terrain au pied du Transilien H (gare d’Ermont Halte, 20 min de Paris). De 600 m², ce terrain se situe dans Ermont (95120). Ce terrain est proche des écoles et des commerces. Tous les types d’établissements scolaires se trouvent à moins de 10 minutes à pied, tout comme sept crèches. Côté transports, il y a la station de RER Cernay (ligne C) ainsi que trois gares (Ermont Halte, Cernay (Val-d’Oise) et Gros Noyer Saint-Prix) dans les environs. On trouve une bibliothèque, un bassin de natation, deux tennis, des commerces, des boulangeries, un supermarché, une supérette et un bureau de poste à quelques minutes. Le marché Place St Flaive anime le quartier.Ce terrain est proposé à l’achat pour 300 000 €. Prenez contact avec notre agence (FLIPPE Antoine : (Numéro supprimé)) pour tout renseignement sur le terrain.Annonce proposée par un Agent Commercial Partenaire.
Ermont
TERRAIN ET MAISONMaison de 5 pièces (96 m²) en vente à ErmontMAISON 5 PIÈCES NEUVEÀ vendre : à deux pas du Transilien H (gare d’Ermont Halte, 20 min de Paris), notre agence Maisons Balency Baillet-en-France est ravie de vous présenter cette maison de 5 pièces de 96 m² à Ermont (95120). Son intérieur offre quatre chambres, une cuisine et une salle de bains.Le terrain de la maison s’étend sur 600 m².Cette maison compte 2 niveaux. Elle est neuve.Des écoles (de la maternelle au lycée) sont implantées à moins de 10 minutes à pied, tout comme sept crèches. Niveau transports en commun, il y a la station de RER Cernay (ligne C) ainsi que trois gares (Ermont Halte, Cernay (Val-d’Oise) et Gros Noyer Saint-Prix) juste à côté. On trouve une bibliothèque, un bassin de natation, deux tennis, des commerces, des boulangeries, un supermarché, des épiceries et un bureau de poste à quelques minutes. Le marché Place St Flaive anime les environs.Son prix de vente est de 480 000 €.N’hésitez pas à prendre contact avec notre agence (FLIPPE Antoine : (Numéro supprimé)) pour plus de renseignements sur cette maison, sur les modalités de vente ou sur les démarches à suivre. Maisons Balency Baillet-en-France vous accompagne à toutes les étapes de l’achat et dans tous vos projets immobiliers.Annonce proposée par un Agent Commercial Partenaire.
Ermont
TERRAIN ET MAISONVENTE d’une maison de 7 pièces (102 m²) à ErmontMAISON 7 PIÈCES NEUVEÀ vendre : à côté du Transilien H (gare d’Ermont Halte, 20 min de Paris), ayez le coup de coeur pour à Ermont (95120), cette maison de 7 pièces de 102 m² et de 600 m² de terrain.Cette maison comporte 2 niveaux. Elle inclut cinq chambres, une cuisine et deux salles de bains. La maison est neuve.Des établissements scolaires de tous niveaux (de la maternelle au lycée) sont implantés à moins de 10 minutes à pied, tout comme sept crèches. Niveau transports en commun, il y a la station de RER Cernay (ligne C) ainsi que trois gares (Ermont Halte, Cernay (Val-d’Oise) et Gros Noyer Saint-Prix) dans un rayon de 1 km. On trouve une bibliothèque, un bassin de natation, deux tennis, des commerces, des boulangeries, un supermarché, un bureau de poste et trois boucheries-charcuteries à quelques minutes. Le marché Place St Flaive anime le quartier.Elle est à vendre pour la somme de 470 000 €.Prenez contact avec notre agence (FLIPPE Antoine : (Numéro supprimé)) pour obtenir de plus amples informations sur cette maison.Annonce proposée par un Agent Commercial Partenaire.
Ermont
TERRAIN ET MAISONErmont : maison de 6 pièces (109 m²) en venteMAISON 6 PIÈCES NEUVEÀ vendre : à deux pas du Transilien H (gare d’Ermont Halte, 20 min de Paris), Maisons Balency Baillet-en-France vous propose cette maison de 6 pièces de 109 m² et de 600 m² de terrain à Ermont (95120). Elle dispose de quatre chambres, d’une cuisine et de deux salles de bains.Cette maison possède 2 niveaux. Elle est neuve.Il y a tous les types d’écoles (maternelle, élémentaire et secondaire) à moins de 10 minutes à pied, tout comme sept crèches. Niveau transports en commun, on trouve la station de RER Cernay (ligne C) ainsi que trois gares (Ermont Halte, Cernay (Val-d’Oise) et Gros Noyer Saint-Prix) dans les environs. Il y a une bibliothèque, un bassin de natation, deux tennis, des commerces, des boulangeries, un supermarché, un bureau de poste et trois boucheries-charcuteries à quelques minutes à peine. Enfin, le marché Place St Flaive anime les environs.Elle est proposée à l’achat pour 485 000 €.Prenez contact avec notre agence (Antoine FLIPPE : (Numéro supprimé)) pour toute question sur cette maison, sur les démarches à suivre ou sur les modalités de vente. Faites de vos projets immobiliers une réalité avec Maisons Balency Baillet-en-France.Annonce proposée par un Agent Commercial Partenaire.
Ermont
TERRAIN ET MAISONMaison T7 (124 m²) en vente à ErmontMAISON 7 PIÈCES NEUVEÀ vendre : à quelques minutes du Transilien H (gare d’Ermont Halte, 20 min de Paris), à Ermont (95120), Maisons Balency Baillet-en-France vous propose cette maison de 7 pièces de 124 m². Son intérieur offre cinq chambres, une cuisine et trois salles de bains.Le terrain de la propriété s’étend sur 600 m².C’est une maison de 2 niveaux. Elle est neuve.Il y a des établissements scolaires de tous types à moins de 10 minutes à pied, tout comme sept structures d’accueil pour les enfants en bas âge. Côté transports, on trouve la station de RER Cernay (ligne C) ainsi que trois gares (Ermont Halte, Cernay (Val-d’Oise) et Gros Noyer Saint-Prix) dans les alentours. Il y a une bibliothèque, un bassin de natation, deux tennis, des commerces, des boulangeries, un supermarché, des épiceries et un bureau de poste à quelques minutes à peine. Enfin, le marché Place St Flaive anime le quartier.Elle est proposée à l’achat pour 495 000 €.Prenez contact avec Antoine FLIPPE (tél : (Numéro supprimé)) pour obtenir de plus amples informations sur la maison, sur les modalités de vente ou sur les démarches à suivre. Maisons Balency Baillet-en-France vous accompagne dans tous vos projets immobiliers et à toutes les étapes de votre projet.Annonce proposée par un Agent Commercial Partenaire.
Maurecourt
TERRAINMaurecourt : terrain de 239 m² à vendreIDÉALEMENT SITUÉ – PROCHE DE PARISÀ proximité du Transilien J (25 min de Paris) à Maurecourt (78780), terrain de 239 m². Ce terrain, avec vue sur jardin, est exposé au sud. Dans un secteur recherché, le terrain idéalement situé est proche des écoles et des commerces. Il y a l’École Élémentaire Tilleuls, l’École Élémentaire la Cerisaie et l’École Maternelle Chantebelle à moins de 10 minutes à pied et trois structures d’accueil pour les tout-petits. Côté transports, on trouve le RER A et C ainsi que 33 gares à moins de 10 minutes en voiture. Il y a une bibliothèque, un tennis, des commerces, trois boulangeries, un bureau de poste, trois épiceries et une boucherie-charcuterie dans les environs.Ce terrain est à vendre pour la somme de 179 000 €. Contactez notre agence (KUD Morgane : (Numéro supprimé)) pour toute question sur le terrain ou sur les modalités de vente. Les Maisons Extraco Chambourcy est là pour vous accompagner à toutes les étapes de votre projet.
Maurecourt
TERRAIN ET MAISONMaurecourt : maison T6 (114 m²) en venteIDÉALEMENT SITUÉE – MAISON 6 PIÈCES NEUVEÀ vendre : proche du Transilien J (25 min de Paris), idéalement située dans Maurecourt (78780), découvrez cette maison de 6 pièces de 114 m² et de 239 m² de terrain.Il s’agit d’une maison de 2 niveaux. Elle est composée de cinq chambres, d’une cuisine et de deux salles de bains. Cette maison est neuve.Cette propriété se trouve dans un quartier attractif. Il y a l’École Élémentaire Tilleuls, l’École Élémentaire la Cerisaie et l’École Maternelle Chantebelle à moins de 10 minutes à pied et trois structures d’accueil pour les enfants en bas âge. Côté transports, on trouve deux lignes de RER (A et C) ainsi que 33 gares à moins de 10 minutes en voiture. On trouve une bibliothèque, un tennis, des commerces, trois boulangeries, une boucherie-charcuterie, un bureau de poste et trois épiceries dans les environs.Son prix de vente est de 370 239 €.N’hésitez pas à prendre contact avec notre agence (KUD Morgane : (Numéro supprimé)) pour tout renseignement sur la maison ou sur les modalités de vente. Les Maisons Extraco Chambourcy est là pour vous accompagner à toutes les étapes de l’achat.
Maurecourt
TERRAIN ET MAISONMaison F5 (100 m²) en vente à MaurecourtIDÉALEMENT SITUÉE – MAISON 5 PIÈCES NEUVEÀ vendre : à proximité du Transilien J (25 min de Paris), nous vous proposons cette maison de 5 pièces de 100 m² et de 239 m² de terrain idéalement située dans Maurecourt (78780).Cette maison compte 2 niveaux. Elle comporte quatre chambres, une cuisine et une salle de bains. Cette maison est neuve.Le bien se trouve dans un secteur attractif. Il y a l’École Élémentaire Tilleuls, l’École Élémentaire la Cerisaie et l’École Maternelle Chantebelle à moins de 10 minutes à pied et trois structures d’accueil pour les enfants en bas âge. Côté transports en commun, on trouve les lignes A et C du RER ainsi que 33 gares à moins de 10 minutes en voiture. On trouve une bibliothèque, un tennis, des commerces, trois boulangeries, trois épiceries, un bureau de poste et une boucherie-charcuterie à proximité.Il est à vendre pour la somme de 365 691 €.Prenez contact avec notre agence (KUD Morgane : (Numéro supprimé)) pour toute information sur la maison, sur les modalités de vente ou sur les démarches à suivre. Les Maisons Extraco Chambourcy vous accompagne à toutes les étapes de votre projet et dans tous vos projets immobiliers.
Maurecourt
TERRAIN ET MAISONMaison de 5 pièces (137 m²) à vendre à MaurecourtIDÉALEMENT SITUÉE – MAISON 5 PIÈCES NEUVEEn vente : à côté de la gare (Paris à 25 min avec le Transilien J), Les Maisons Extraco Chambourcy vous présente cette maison de 5 pièces de 137 m² et de 239 m² de terrain idéalement située dans Maurecourt (78780).Il s’agit d’une maison de 2 niveaux. Elle comporte quatre chambres, une cuisine et une salle de bains. Cette maison est neuve.La maison est située dans un quartier recherché. Il y a l’École Élémentaire Tilleuls, l’École Élémentaire la Cerisaie et l’École Maternelle Chantebelle à moins de 10 minutes à pied et trois structures d’accueil pour la petite enfance. Niveau transports, on trouve le RER A et C ainsi que 33 gares à moins de 10 minutes en voiture. Il y a une bibliothèque, un tennis, des commerces, trois boulangeries, une boucherie-charcuterie, trois épiceries et un bureau de poste dans les environs.Elle est proposée à l’achat pour 459 900 €.Contactez Morgane KUD ((Numéro supprimé)) pour toute question sur la maison ou sur les modalités de vente.
L’actualité immobilière à Herblay-sur-Seine
27/11/2023
02/11/2023
30/10/2023
20/10/2023
16/10/2023
16/10/2023