Maison à construire à L'Isle-Adam (95290)
Images
Description
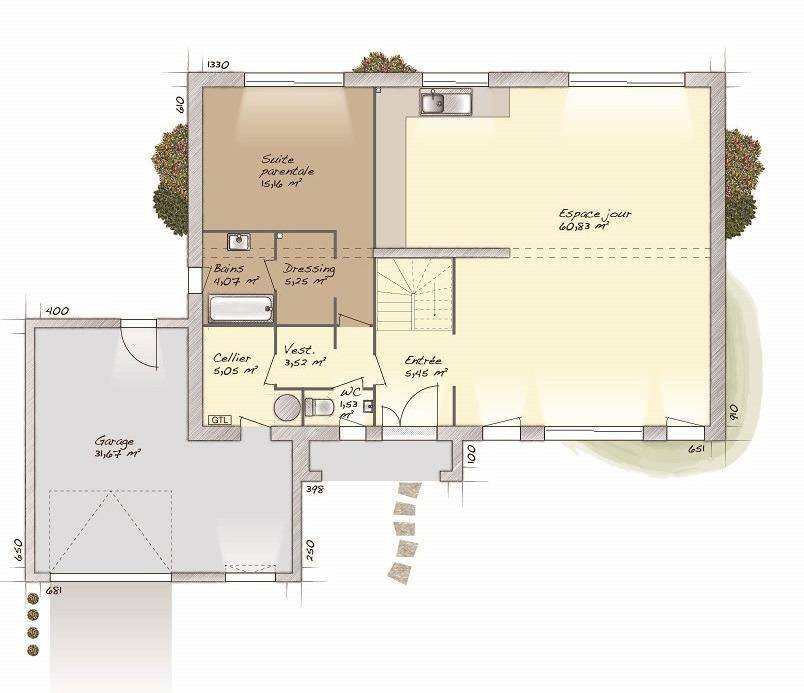
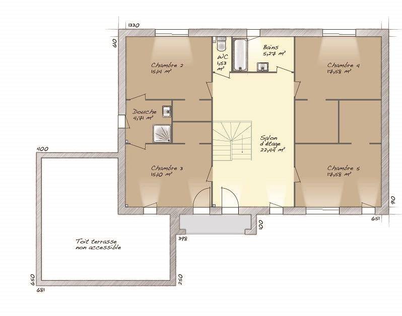
L'Isle-Adam : maison de 8 pièces (200 m²) à vendre
IDÉALEMENT SITUÉE - MAISON 8 PIÈCES NEUVE
À proximité du Transilien H (gare de L'Isle-Adam-Parmain, 50 min de Paris), en vente idéalement située dans L'Isle-Adam (95290), nous sommes heureux de vous proposer cette maison de 8 pièces de 200 m² et de 700 m² de terrain. Son intérieur offre cinq chambres, une cuisine et deux salles de bains.
Cette maison comporte 2 niveaux. Elle est neuve.
Cette maison est située dans un secteur attractif. Il y a l'École Élémentaire Parc de Cassan et l'École Maternelle Chantefleur à moins de 10 minutes à pied. Niveau transports en commun, on trouve 23 gares à moins de 10 minutes en voiture. Il y a une bibliothèque, deux commerces, un supermarché, une boulangerie et trois boucheries-charcuteries dans les environs.
Son prix de vente est de 843 092 €.
Contactez Christophe TALAMONI (tél : (Numéro supprimé)) pour toute question sur la maison. Concrétisez vos projets immobiliers avec Maisons Balency Baillet-en-France.
Annonce proposée par un Agent Commercial Partenaire.
Logement susceptibles de vous intéresser
Nous vous proposons de découvrir aussi cette sélection de logements situés à moins de 10km de L'Isle-Adam et qui seraient susceptibles de vous intéresser.
Vallangoujard
TERRAIN ET MAISONVallangoujard : maison T4 (60 m²) à vendreEMPLACEMENT PRIVILÉGIÉ – MAISON 4 PIÈCES NEUVEEn vente : à quelques minutes du Transilien H (gare de L’Isle-Adam-Parmain, 50 min de Paris), laissez vous charmer par cette maison de 4 pièces de plain-pied de 60 m² bénéficiant d’un emplacement d’exception dans Vallangoujard (95810). Son intérieur est composé de deux chambres, d’une cuisine et d’une salle de bains.Le terrain de la maison s’étend sur 450 m².Cette maison est neuve.Cette propriété se situe dans un quartier recherché. L’École Primaire Publique Grangeon se trouve à moins de 10 minutes à pied. Niveau transports, il y a 13 gares à moins de 10 minutes en voiture. Il y a un tennis et une bibliothèque à quelques minutes à peine.Son prix de vente est de 239 400 €.Contactez Christophe TALAMONI ((Numéro supprimé)) pour obtenir de plus amples informations sur la maison.Annonce proposée par un Agent Commercial Partenaire.
Saint-Leu-la-Forêt
TERRAIN ET MAISONMaison de 7 pièces (120 m²) en vente à Saint-Leu-la-ForêtPROCHE GARE – MAISON 7 PIÈCES NEUVEÀ deux pas du Transilien H (25 min de Paris), à vendre dans Saint-Leu-la-Forêt (95320), proche de la gare, nous vous présentons cette maison de 7 pièces de 120 m² et de 273 m² de terrain.Cette maison possède 2 niveaux. Elle dispose de cinq chambres, d’une cuisine et de deux salles de bains. La maison est neuve.Des établissements scolaires maternelles et élémentaires sont implantés à moins de 10 minutes à pied, tout comme une crèche. Côté transports, il y a la gare Saint-Leu-la-Forêt dans un rayon de 1 km. On trouve un tennis, des commerces, des boulangeries, une supérette, des épiceries et un bureau de poste à proximité. Enfin, le marché Place de la Mairie anime le quartier.Elle est à vendre pour la somme de 409 850 €.N’hésitez pas à prendre contact avec Christophe TALAMONI ((Numéro supprimé)) pour toute question sur le bien.Annonce proposée par un Agent Commercial Partenaire.
Saint-Leu-la-Forêt
TERRAIN ET MAISONMaison de 5 pièces (100 m²) à vendre à Saint-Leu-la-ForêtPROCHE GARE – MAISON 5 PIÈCES NEUVEÀ vendre : au pied du Transilien H (25 min de Paris), proche de la gare de Saint-Leu-la-Forêt (95320), votre agence Maisons Balency Baillet-en-France est heureuse de vous présenter cette maison de 5 pièces de 100 m² et de 273 m² de terrain. Elle comporte quatre chambres, une cuisine et deux salles de bains.Cette maison possède 2 niveaux. Elle est neuve.Des établissements scolaires maternelles et élémentaires sont implantés à moins de 10 minutes à pied, tout comme une crèche. Côté transports en commun, on trouve la gare Saint-Leu-la-Forêt dans les environs. Il y a un tennis, des commerces, des boulangeries, un bureau de poste, des épiceries et quatre boucheries-charcuteries à quelques minutes. Enfin, le marché Place de la Mairie anime le quartier.Elle est proposée à l’achat pour 399 800 €.N’hésitez pas à prendre contact avec Christophe TALAMONI ((Numéro supprimé)) pour tout renseignement sur le bien. Maisons Balency Baillet-en-France vous accompagne dans tous vos projets immobiliers et dans toutes vos démarches.Annonce proposée par un Agent Commercial Partenaire.
Vallangoujard
TERRAINVENTE : terrain de 450 m² à VallangoujardEMPLACEMENT PRIVILÉGIÉ – PROCHE DE SAINT-DENISÀ deux pas de la gare de L’Isle-Adam-Parmain (Paris à 50 min avec le Transilien H) à Vallangoujard (95810), terrain de 450 m². Réalisez-y la maison de vos rêves. Il donne sur un espace vert et est orienté au sud. Dans un quartier prisé, ce terrain bénéficiant d’un emplacement privilégié est proche des commerces et des écoles. L’École Primaire Publique Grangeon est implantée à moins de 10 minutes à pied. Niveau transports en commun, on trouve 13 gares à moins de 10 minutes en voiture. Il y a un tennis et une bibliothèque dans les environs.Il est à vendre pour la somme de 90 000 €. Contactez notre agence (Christophe TALAMONI : (Numéro supprimé)) pour plus d’informations sur le terrain. Maisons Balency Baillet-en-France vous accompagne dans tous vos projets immobiliers et dans toutes vos démarches.Annonce proposée par un Agent Commercial Partenaire.
Montsoult
TERRAINTerrain de 450 m² en vente à MontsoultEMPLACEMENT PRIVILÉGIÉ – VUE SANS VIS-À-VISTerrain de 450 m² à deux pas du Transilien H (gare de Montsoult-Maffliers, 25 min de Paris). Ce terrain se situe bénéficiant d’un emplacement privilégié dans Montsoult (95560). Ce terrain, sans vis-à-vis, est orienté plein sud. Dans un quartier attractif, ce terrain est proche des écoles et des commerces. Il y a des établissements scolaires de tous niveaux à moins de 10 minutes à pied et une structure d’accueil pour la petite enfance. Côté transports en commun, on trouve la gare Montsoult-Maffliers dans un rayon de 1 km. Il y a une bibliothèque, deux tennis, deux commerces, deux boulangeries, une épicerie, un bureau de poste et une supérette à proximité.Il est proposé à l’achat pour 180 000 €. Contactez Christophe TALAMONI ((Numéro supprimé)) pour plus d’informations sur le terrain, sur les modalités de vente ou sur les démarches à suivre. Faites de vos projets immobiliers une réalité avec Maisons Balency Baillet-en-France.Annonce proposée par un Agent Commercial Partenaire.
Montsoult
TERRAIN ET MAISONVENTE d’une maison T4 (83 m²) à MontsoultEMPLACEMENT PRIVILÉGIÉ – MAISON 4 PIÈCES NEUVEEn vente : au pied du Transilien H (gare de Montsoult-Maffliers, 25 min de Paris), bénéficiant d’un emplacement d’exception dans Montsoult (95560), Maisons Balency Baillet-en-France vous présente cette maison de 4 pièces de plain-pied de 83 m². Conçue de plain-pied, elle propose trois chambres, une cuisine et une salle de bains.Le terrain du bien s’étend sur 450 m².La maison est neuve.Cette maison se trouve dans un secteur prisé. Il y a des établissements scolaires du primaire et du secondaire à moins de 10 minutes à pied et une crèche. Niveau transports, on trouve la gare Montsoult-Maffliers à quelques pas de la maison. On trouve une bibliothèque, deux tennis, deux commerces, deux boulangeries, une boucherie-charcuterie, une supérette et un bureau de poste à proximité.Son prix de vente est de 349 600 €.Contactez Christophe TALAMONI (tél : (Numéro supprimé)) pour tout renseignement sur le bien, sur les modalités de vente ou sur les démarches à suivre. Concrétisez vos projets immobiliers avec Maisons Balency Baillet-en-France.Annonce proposée par un Agent Commercial Partenaire.
L'Isle-Adam
TERRAIN ET MAISONMaison de 9 pièces (242 m²) à vendre à L’Isle-AdamIDÉALEMENT SITUÉE – MAISON 9 PIÈCES NEUVEÀ vendre : à côté du Transilien H (gare de L’Isle-Adam-Parmain, 50 min de Paris), nous vous proposons cette maison de 9 pièces de 242 m² et de 700 m² de terrain avec vue sur jardin idéalement située dans L’Isle-Adam (95290). Son intérieur est composé de cinq chambres, d’une cuisine et de trois salles de bains.Il s’agit d’une maison de 2 niveaux. Elle est neuve.La maison se trouve dans un quartier prisé. L’École Élémentaire Parc de Cassan et l’École Maternelle Chantefleur sont implantées à moins de 10 minutes à pied. Niveau transports, il y a 23 gares à moins de 10 minutes en voiture. On trouve une bibliothèque, deux commerces, un supermarché, une boulangerie et trois boucheries-charcuteries à proximité du bien.Son prix de vente est de 893 000 €.N’hésitez pas à prendre contact avec Christophe TALAMONI (tél : (Numéro supprimé)) pour toute information sur le bien, sur les démarches à suivre ou sur les modalités de vente. Maisons Balency Baillet-en-France est là pour vous accompagner à toutes les étapes de l’achat.Annonce proposée par un Agent Commercial Partenaire.
L'Isle-Adam
TERRAIN ET MAISONL’Isle-Adam : maison de 8 pièces (200 m²) à vendreIDÉALEMENT SITUÉE – MAISON 8 PIÈCES NEUVEÀ proximité du Transilien H (gare de L’Isle-Adam-Parmain, 50 min de Paris), en vente idéalement située dans L’Isle-Adam (95290), nous sommes heureux de vous proposer cette maison de 8 pièces de 200 m² et de 700 m² de terrain. Son intérieur offre cinq chambres, une cuisine et deux salles de bains.Cette maison comporte 2 niveaux. Elle est neuve.Cette maison est située dans un secteur attractif. Il y a l’École Élémentaire Parc de Cassan et l’École Maternelle Chantefleur à moins de 10 minutes à pied. Niveau transports en commun, on trouve 23 gares à moins de 10 minutes en voiture. Il y a une bibliothèque, deux commerces, un supermarché, une boulangerie et trois boucheries-charcuteries dans les environs.Son prix de vente est de 843 092 €.Contactez Christophe TALAMONI (tél : (Numéro supprimé)) pour toute question sur la maison. Concrétisez vos projets immobiliers avec Maisons Balency Baillet-en-France.Annonce proposée par un Agent Commercial Partenaire.
Champagne-sur-Oise
TERRAIN ET MAISONChampagne-sur-Oise : maison de 4 pièces (83 m²) en venteIDÉALEMENT SITUÉE – MAISON 4 PIÈCES NEUVEEn vente : proche du Transilien H (50 min de Paris), idéalement située dans Champagne-sur-Oise (95660), nous sommes heureux de vous présenter cette maison de 4 pièces de plain-pied de 83 m² et de 260 m² de terrain. Son intérieur est composé de trois chambres, d’une cuisine et d’une salle de bains.Cette maison est neuve.La maison est située dans un secteur prisé. Des établissements scolaires primaires y sont implantés. Niveau transports, il y a 12 gares à moins de 10 minutes en voiture. Il y a une bibliothèque à quelques minutes à peine.Son prix de vente est de 290 000 €.N’hésitez pas à prendre contact avec Christophe TALAMONI (tél : (Numéro supprimé)) pour toute information sur la maison, sur les démarches à suivre ou sur les modalités de vente.Annonce proposée par un Agent Commercial Partenaire.
L’actualité immobilière à L'Isle-Adam
27/11/2023
02/11/2023
30/10/2023
20/10/2023
16/10/2023
16/10/2023