Maison à construire à Marines (95640)
Images
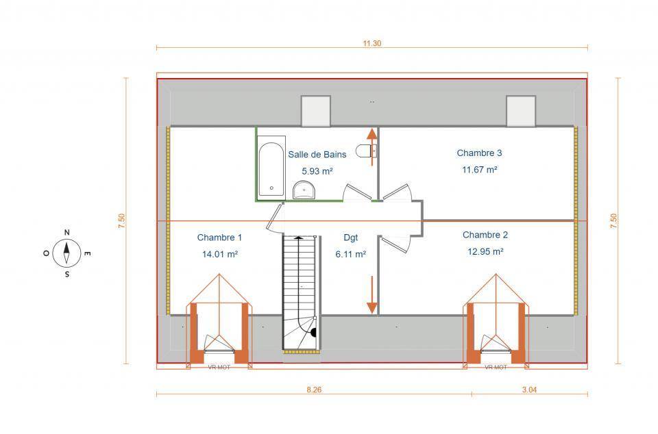
Description
VENTE : maison F5 (85 m²) à Marines
IDÉALEMENT SITUÉE - MAISON 5 PIÈCES NEUVE
À deux pas de la gare de Santeuil-Le Perchay (Paris à 55 min avec le Transilien J), votre agence Les Maisons Extraco Chambourcy est heureuse de vous proposer en vente, idéalement située dans Marines (95640), cette maison de 5 pièces de 85 m² et de 516 m² de terrain.
Il s'agit d'une maison de 2 niveaux. Elle est composée de trois chambres, d'une cuisine et d'une salle de bains. Cette maison est neuve.
Ce bien est situé dans un quartier prisé. On trouve l'École Élémentaire Paul Cézanne, l'École Maternelle les Murgers et le Collège des Hautiers à moins de 10 minutes à pied. Côté transports en commun, il y a six gares à moins de 10 minutes en voiture. On trouve une bibliothèque, des commerces, deux boulangeries, un supermarché, deux épiceries et un bureau de poste à proximité.
Il est proposé à l'achat pour 307 200 €.
N'hésitez pas à prendre contact avec Gilles BOREAU ((Numéro supprimé)) pour plus de renseignements sur la maison, sur les modalités de vente ou sur les démarches à suivre.
Logement susceptibles de vous intéresser
Nous vous proposons de découvrir aussi cette sélection de logements situés à moins de 10km de Marines et qui seraient susceptibles de vous intéresser.
Hénonville
TERRAINVENTE : terrain de 640 m² à HénonvillePROCHE DE CERGYÀ proximité de la gare de La Villetertre (Paris à 1 h avec le Transilien J) à Hénonville (60119), grand terrain. Il est prêt à accueillir votre résidence principale ou secondaire pour toute la famille. Le terrain est proche des commerces et des écoles. Une école maternelle est implantée dans le quartier. Côté transports en commun, il y a quatre gares à moins de 10 minutes en voiture. L’autoroute A16 est accessible à 10 km et Cergy est située à 19 km. On trouve un tennis, une bibliothèque et une boucherie-charcuterie à proximité du bien.Son prix de vente est de 106 000 €. N’hésitez pas à prendre contact avec Antoine FLIPPE (tél : (Numéro supprimé)) pour toute information sur le terrain ou sur les démarches à suivre. Concrétisez vos projets immobiliers avec Maisons Balency Baillet-en-France.Annonce proposée par un Agent Commercial Partenaire.
Hénonville
TERRAIN ET MAISONVENTE d’une maison de 6 pièces (105 m²) à HénonvillePROCHE DE CERGY – MAISON 6 PIÈCES NEUVEEn vente : proche du Transilien J (gare de La Villetertre, 1 h de Paris), laissez vous charmer par cette maison de 6 pièces de 105 m² et de 640 m² de terrain à Hénonville (60119).Cette maison possède 2 niveaux. Son intérieur propose quatre chambres, une cuisine et deux salles de bains. Cette maison est neuve.Il y a une école maternelle dans le quartier. Côté transports, on trouve quatre gares à moins de 10 minutes en voiture. Il y a un accès à l’autoroute A16 à 10 km et Cergy est située à 19 km. Il y a un tennis, une bibliothèque et une boucherie-charcuterie dans les environs.Elle est à vendre pour la somme de 314 000 €.Prenez contact avec Antoine FLIPPE ((Numéro supprimé)) pour obtenir de plus amples informations sur la maison, sur les modalités de vente ou sur les démarches à suivre.Annonce proposée par un Agent Commercial Partenaire.
Hénonville
TERRAIN ET MAISONVENTE : maison de 5 pièces (90 m²) à HénonvillePROCHE DE CERGY – MAISON 5 PIÈCES NEUVEÀ vendre : au pied de la gare de La Villetertre (Paris à 1 h avec le Transilien J), nous vous proposons à Hénonville (60119), cette maison de 5 pièces de 90 m² et de 640 m² de terrain. Son intérieur compte quatre chambres, une cuisine et deux salles de bains.Il s’agit d’une maison de 2 niveaux. Elle est neuve.Une école maternelle est implantée dans le quartier. Niveau transports, il y a quatre gares à moins de 10 minutes en voiture. L’autoroute A16 est accessible à 10 km et Cergy se situe à 19 km. On trouve un tennis, une bibliothèque et une boucherie-charcuterie à proximité.Son prix de vente est de 306 000 €.Contactez notre agence (FLIPPE Antoine : (Numéro supprimé)) pour toute information sur cette maison ou sur les modalités de vente.Annonce proposée par un Agent Commercial Partenaire.
Vallangoujard
TERRAINVallangoujard : terrain de 2 485 m² en ventePROCHE DE SAINT-DENISGrand terrain à quelques minutes du Transilien H (gare de L’Isle-Adam-Parmain, 50 min de Paris). De 2 485 m², ce terrain se situe dans Vallangoujard (95810). Il y a l’École Primaire Publique Grangeon à moins de 10 minutes à pied. Côté transports en commun, on trouve 13 gares à moins de 10 minutes en voiture. Il y a un tennis et une bibliothèque à quelques minutes à peine.Il est à vendre pour la somme de 225 400 €. Contactez Denis DUCOS ((Numéro supprimé)) pour toute information sur ce terrain, sur les démarches à suivre ou sur les modalités de vente. Maisons Balency Pontoise est là pour vous accompagner dans tous vos projets immobiliers.Annonce proposée par un Agent Commercial Partenaire.
Vallangoujard
TERRAIN ET MAISONVENTE : maison de 8 pièces (145 m²) à VallangoujardMAISON 8 PIÈCES NEUVE – PROCHE DE SAINT-DENISÀ quelques minutes du Transilien H (gare de L’Isle-Adam-Parmain, 50 min de Paris), Maisons Balency Pontoise vous présente cette maison de 8 pièces de 145 m² à Vallangoujard (95810). Elle compte cinq chambres, une cuisine et trois salles de bains.Le terrain du bien est de 2 485 m².C’est une maison de 2 niveaux. Elle est neuve.L’École Primaire Publique Grangeon est implantée à moins de 10 minutes à pied. Niveau transports, on trouve 13 gares à moins de 10 minutes en voiture. Il y a un tennis et une bibliothèque à quelques minutes de la maison.Elle est à vendre pour la somme de 583 000 €.Prenez contact avec notre agence (DUCOS Denis : (Numéro supprimé)) pour toute information sur cette maison. Donnez vie à vos projets immobiliers avec Maisons Balency Pontoise.Annonce proposée par un Agent Commercial Partenaire.
Grisy-les-Plâtres
TERRAINVENTE : terrain de 1 082 m² à Grisy-les-PlâtresPROCHE D’ARGENTEUILGrand terrain à côté de la gare de Boissy-l’Aillerie (Paris à 45 min par le Transilien J). De 1 082 m², ce terrain se situe dans Grisy-les-Plâtres (95810). Il y a une école primaire dans le quartier. Niveau transports en commun, on trouve trois stations de RER (Cergy-Saint-Christophe – ligne A, Cergy Le Haut – ligne A – et Pontoise – ligne C) ainsi que 12 gares à moins de 10 minutes en voiture. Il y a une bibliothèque et une boulangerie à proximité de la propriété.Il est proposé à l’achat pour 165 000 €. N’hésitez pas à prendre contact avec notre agence (DUCOS Denis : (Numéro supprimé)) pour obtenir de plus amples renseignements sur ce terrain ou sur les modalités de vente. Maisons Balency Pontoise est là pour vous accompagner dans tous vos projets immobiliers.Annonce proposée par un Agent Commercial Partenaire.
Grisy-les-Plâtres
TERRAIN ET MAISONGrisy-les-Plâtres : maison de 6 pièces (80 m²) à vendrePROCHE D’ARGENTEUIL – MAISON 6 PIÈCES NEUVEÀ quelques minutes du Transilien J (gare de Boissy-l’Aillerie, 45 min de Paris), nous sommes heureux de vous proposer à vendre à Grisy-les-Plâtres (95810), cette maison de 6 pièces de 80 m². Elle dispose de quatre chambres, d’une cuisine et de deux salles de bains.Le terrain de cette maison est de 1 082 m².Cette maison comporte 2 niveaux. Elle est neuve.Une école primaire est implantée dans le quartier. Côté transports en commun, il y a trois stations de RER (Cergy-Saint-Christophe – ligne A, Cergy Le Haut – ligne A – et Pontoise – ligne C) ainsi que 12 gares à moins de 10 minutes en voiture. On trouve une bibliothèque et une boulangerie à quelques minutes.Elle est proposée à l’achat pour 382 000 €.Prenez contact avec notre agence (DUCOS Denis : (Numéro supprimé)) pour toute question sur cette maison. Maisons Balency Pontoise vous accompagne dans toutes vos démarches et à toutes les étapes de votre projet.Annonce proposée par un Agent Commercial Partenaire.
Bouconvillers
TERRAINTerrain viabilisé et plat avec toutes commodités:Accès rapide A15 et N184- 5’min de CHARS (95)- 10’min de MARINES (95)- 15’min de CERGY (95)GARE SNCF de CHARS (95) « Ligne J » à seulement 3kmPrix : 89000 €.Sur ce terrain, réalisez votre projet de construction de maison RE 2020 avec PAVILLONS D'ÎLE-DE-FRANCE (constructeur de maisons de gamme et sur-mesure depuis plus de 50 ans) :- Plan sur-mesure et personnalisé de 2 à 5 chambres- Mode de chauffage au choix- Grands choix d'équipements et de prestations- Matériaux de qualité selon les normes en vigueur- Accompagnement dans le choix et l’acquisition du terrainDemandez une étude gratuite et personnalisée de votre projet de construction sur ce terrain !Contactez Olivier SAMSON au (Numéro supprimé) ou au (Numéro supprimé) (Pavillons d'Île-de-France – Agence de Meaux).Prix hors frais de notaire. Terrain sélectionné et vu pour vous sous réserve de disponibilité et au prix indiqué par notre partenaire foncier. Visuels non contractuels.Cette annonce a été créée et diffusée avec le logiciel VITAHOME.
Bouconvillers
TERRAIN ET MAISONRéalisez votre projet de construction de maison RE 2020 avec PAVILLONS D'ÎLE-DE-FRANCE (constructeur de maisons de gamme et sur-mesure depuis plus de 50 ans) :- Plan sur-mesure et personnalisé de 2 à 5 chambres- Mode de chauffage au choix- Grands choix d'équipements et de prestations- Matériaux de qualité selon les normes en vigueur- Accompagnement dans le choix et l’acquisition du terrainInformations du terrain : Terrain viabilisé et plat avec toutes commodités:Accès rapide A15 et N184- 5’min de CHARS (95)- 10’min de MARINES (95)- 15’min de CERGY (95)GARE SNCF de CHARS (95) « Ligne J » à seulement 3kmDemandez une étude gratuite et personnalisée de votre projet de construction !Contactez Olivier SAMSON au (Numéro supprimé) ou au (Numéro supprimé) (Pavillons d'Île-de-France – Agence de Meaux).Prix avec assurance dommages-ouvrage comprise, hors VRD, terrain viabilisé, assainissement compris, frais de notaire non compris, taxes non comprises, frais divers non compris. Terrain sélectionné et vu pour vous sous réserve de disponibilité et au prix indiqué par notre partenaire foncier. Visuels non contractuels.Cette annonce a été créée et diffusée avec le logiciel VITAHOME.
L’actualité immobilière à Marines
27/11/2023
02/11/2023
30/10/2023
20/10/2023
16/10/2023
16/10/2023