Maison à construire à Marines (95640)
Images
Description
🏡 Votre projet Terrain + Maison à Bouconvillers (60)
Saisissez l'opportunité de construire sur un terrain entièrement viabilisé de 489 m², situé dans un lotissement de 21 lots, avec une façade de 14,60 ml offrant une belle possibilité d'implantation.
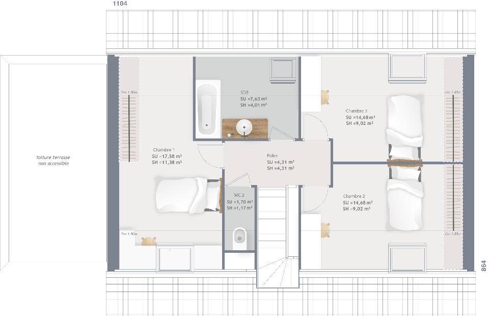
Nous vous proposons une maison familiale de 115 m² habitables, parfaitement pensée pour le confort et la fonctionnalité :
Suite parentale au rez-de-chaussée avec dressing et salle d'eau
3 chambres à l'étage, idéales pour enfants, famille ou télétravail
Salle de bain familiale à l'étage
2 WC séparés (RDC + Étage)
Grande pièce de vie lumineuse, ouverte et conviviale
Architecture moderne, plan personnalisable selon vos envies
Garage accolé
👉 Projet complet Terrain + Maison + Frais annexes: 350 000 €
Un projet clé en main pour une vie sereine dans un environnement calme et recherché.
Contactez XAVIER DOS SANTOS pour une étude personnalisée et découvrir toutes les possibilités de votre future maison au (Numéro supprimé)
Logement susceptibles de vous intéresser
Nous vous proposons de découvrir aussi cette sélection de logements situés à moins de 10km de Marines et qui seraient susceptibles de vous intéresser.
Bouconvillers
TERRAIN ET MAISONVENTE d’une maison T6 (112 m²) à BouconvillersIDÉALEMENT SITUÉE – MAISON 6 PIÈCES NEUVEEn vente : proche de la gare de Chars (Paris à 55 min par le Transilien J), Les Maisons Extraco Chambourcy vous propose cette maison de 6 pièces de 112 m² idéalement située dans Bouconvillers (60240).Il s’agit d’une maison de 2 niveaux. Son intérieur compte quatre chambres, une cuisine et deux salles de bains. Cette maison est neuve.Le terrain de la propriété s’étend sur 580 m².La maison se situe dans un secteur attractif. Côté transports en commun, il y a six gares à moins de 10 minutes en voiture. Les autoroutes A16 et A15 et la nationale N14 sont accessibles à moins de 20 km et Cergy se situe à 18 km. On trouve un tennis et un commerce à proximité.Elle est proposée à l’achat pour 314 400 €.Prenez contact avec notre agence (Gilles BOREAU : (Numéro supprimé)) pour tout renseignement sur la propriété, sur les modalités de vente ou sur les démarches à suivre.
Marines
TERRAIN ET MAISON🏡 Votre projet Terrain + Maison à Bouconvillers (60)Dans un lotissement de 21 lots, découvrez ce terrain à bâtir de 489 m², entièrement viabilisé, avec une façade de 14,60 ml. Parfait pour accueillir une maison de plain-pied moderne et fonctionnelle.Nous vous proposons une maison de 60 m² habitables, idéale pour un premier achat ou une vie de plain-pied :1 chambre confortablePièce de vie ouverte et lumineuseSalle de bain fonctionnelleGarage accolé pour plus de praticitéPlan simple, compact et optimisé👉 Projet complet Terrain + Maison + Frais annexes: 255 000 €Un projet accessible, clé en main, dans un cadre paisible et recherché.Contactez XAVIER DOS SANTOS pour une étude personnalisée de votre future maison au (Numéro supprimé)
Marines
TERRAIN ET MAISON🏡 Votre projet Terrain + Maison à Bouconvillers (60)Saisissez l’opportunité de construire sur un terrain entièrement viabilisé de 489 m², situé dans un lotissement de 21 lots, avec une façade de 14,60 ml offrant une belle possibilité d’implantation.Nous vous proposons une maison familiale de 115 m² habitables, parfaitement pensée pour le confort et la fonctionnalité :Suite parentale au rez-de-chaussée avec dressing et salle d’eau3 chambres à l’étage, idéales pour enfants, famille ou télétravailSalle de bain familiale à l’étage2 WC séparés (RDC + Étage)Grande pièce de vie lumineuse, ouverte et convivialeArchitecture moderne, plan personnalisable selon vos enviesGarage accolé👉 Projet complet Terrain + Maison + Frais annexes: 350 000 €Un projet clé en main pour une vie sereine dans un environnement calme et recherché.Contactez XAVIER DOS SANTOS pour une étude personnalisée et découvrir toutes les possibilités de votre future maison au (Numéro supprimé)
Bouconvillers
TERRAINVENTE d’un terrain de 580 m² à BouconvillersIDÉALEMENT SITUÉ – PROCHE DE CERGYÀ Bouconvillers (60240) à deux pas du Transilien J (gare de Chars, 55 min de Paris), découvrez ce terrain de 580 m². Dans un quartier recherché, ce terrain idéalement situé est proche des écoles et des commerces. Niveau transports, il y a six gares à moins de 10 minutes en voiture. Les autoroutes A16 et A15 et la nationale N14 sont accessibles à moins de 20 km et Cergy est située à 18 km. On trouve un tennis et un commerce dans les environs.Il est proposé à l’achat pour 90 900 €. Contactez notre agence (BOREAU Gilles : (Numéro supprimé)) pour toute question sur ce terrain. Les Maisons Extraco Chambourcy vous accompagne à toutes les étapes de votre projet et dans tous vos projets immobiliers.
Bouconvillers
TERRAIN ET MAISONMaison F5 (99 m²) à vendre à BouconvillersIDÉALEMENT SITUÉE – MAISON 5 PIÈCES NEUVEÀ proximité du Transilien J (gare de Chars, 55 min de Paris), votre agence Les Maisons Extraco Chambourcy est ravie de vous proposer cette maison de 5 pièces de 99 m² en vente idéalement située dans Bouconvillers (60240).Cette maison comporte 2 niveaux. Son intérieur comporte quatre chambres, une cuisine et une salle de bains. La maison est neuve.Le terrain du bien est de 580 m².Le bien est situé dans un secteur prisé. Niveau transports, on trouve six gares à moins de 10 minutes en voiture. Les autoroutes A16 et A15 et la nationale N14 sont accessibles à moins de 20 km et Cergy est située à 18 km. Il y a un tennis et un commerce à quelques minutes.Il est à vendre pour la somme de 303 300 €.Contactez notre constructeur (Gilles BOREAU : (Numéro supprimé)) pour tout renseignement sur la maison, sur les modalités de vente ou sur les démarches à suivre. Faites de vos projets immobiliers une réalité avec Les Maisons Extraco Chambourcy.
Marines
TERRAINVENTE : terrain de 516 m² à MarinesIDÉALEMENT SITUÉ – PROCHE D’ARGENTEUILÀ quelques minutes de la gare de Santeuil-Le Perchay (Paris à 55 min par le Transilien J) à Marines (95640), grand terrain. Réalisez-y votre résidence principale ou secondaire. Dans un quartier convoité, ce terrain idéalement situé est proche des écoles et des commerces. L’École Élémentaire Paul Cézanne, l’École Maternelle les Murgers et le Collège des Hautiers sont implantés à moins de 10 minutes à pied. Côté transports, il y a six gares à moins de 10 minutes en voiture. On trouve une bibliothèque, des commerces, deux boulangeries, un supermarché, deux épiceries et un bureau de poste à quelques minutes à peine.Son prix de vente est de 146 000 €. Prenez contact avec Gilles BOREAU (tél : (Numéro supprimé)) pour tout renseignement sur le terrain, sur les modalités de vente ou sur les démarches à suivre. Les Maisons Extraco Chambourcy est là pour vous accompagner à toutes les étapes de l’achat.
Bouconvillers
TERRAINÀ Vendre : Terrain Exceptionnel de 503 m² – Idéal pour Votre Future Maison ! ??Situé dans un environnement prisé, ce magnifique terrain de 523 m² offre un cadre naturel rare et recherché. Parfait pour les personnes souhaitant construire une maison confortable et entièrement sur mesure.- Projet de construction avec notre partenaireLa vente inclut la possibilité de construire votre future maison avec notre partenaire, entreprise reconnue pour la qualité de ses réalisations, son accompagnement sur mesure et son expertise dans l’habitat durable.Vous pourrez bénéficier :- D’un accompagnement complet (plans, permis, construction)- D’une maison personnalisée selon vos goûts et besoins- D’un projet clé en main en toute sérénité- Localisation :Environnement paisible, proche des commodités, écoles, commerces, axes routiers, tout en restant à l’écart de la foule.- Viabilités :Le terrain dispose des viabilités déjà raccordé PREVOIR FOSSE SEPTIQUEEau / Electricité / Telecom prêt à être raccordés? Une opportunité rare pour concrétiser votre projet de vie !Contactez Gérald AFONSO au 06 / 98 / 03 / 84 /87 dès maintenant pour plus d’informations, une visite ou une étude personnalisée. Les honoraires sont à la charge du vendeur.Les informations sur les risques auxquels ce bien est exposé sont disponibles sur le site Géorisques : www. georisques. gouv. fr.Contactez Gérald AFONSO Entrepreneur Individuel, Agent commercial OptimHome (RSAC N(Numéro supprimé) Greffe de COMPIEGNE) (Numéro supprimé) (réf. 598311 )
Marines
TERRAIN ET MAISONVENTE : maison de 6 pièces (114 m²) à MarinesIDÉALEMENT SITUÉE – MAISON 6 PIÈCES NEUVEÀ proximité de la gare de Santeuil-Le Perchay (Paris à 55 min par le Transilien J), laissez vous charmer par cette maison de 6 pièces de 114 m² et de 516 m² de terrain à vendre idéalement située dans Marines (95640). Elle offre cinq chambres, une cuisine et deux salles de bains.Cette maison comporte 2 niveaux. Elle est neuve.Cette maison se trouve dans un secteur recherché. L’École Élémentaire Paul Cézanne, l’École Maternelle les Murgers et le Collège des Hautiers sont implantés à moins de 10 minutes à pied. Niveau transports, il y a six gares à moins de 10 minutes en voiture. On trouve une bibliothèque, des commerces, deux boulangeries, un supermarché, un bureau de poste et deux épiceries dans les environs.Son prix de vente est de 328 400 €.N’hésitez pas à prendre contact avec notre agence (Gilles BOREAU : (Numéro supprimé)) pour toute information sur la maison.
Marines
TERRAIN ET MAISON🏡 Votre projet Terrain + Maison à Bouconvillers (60)Dans un lotissement de 21 lots, profitez d’un terrain entièrement viabilisé de 489 m², avec une belle façade de 14,60 ml – idéal pour accueillir votre future maison familiale.Nous vous proposons une maison de 105 m² habitables, au style moderne et optimisé :Suite parentale au rez-de-chaussée avec dressing et salle d’eau3 chambres à l’étage1 salle de bain familiale à l’étageAucun garage, pour une implantation simple et fonctionnellePièce de vie lumineuse, plan modulable selon vos envies👉 Projet complet Terrain + Maison + Frais annexes: 325 000 €Un projet clé en main pour vous installer dans un environnement calme et recherché.Contactez XAVIER DOS SANTOS pour plus d’informations ou une étude personnalisée de votre maison sur mesure, au (Numéro supprimé).
L’actualité immobilière à Marines
27/11/2023
02/11/2023
30/10/2023
20/10/2023
16/10/2023
16/10/2023