Maison à construire à Soisy-sous-Montmorency (95230)
Images
Description
Maison de 5 pièces (90 m²) en vente à Soisy-sous-Montmorency
MAISON 5 PIÈCES NEUVE - PROCHE DE PARIS
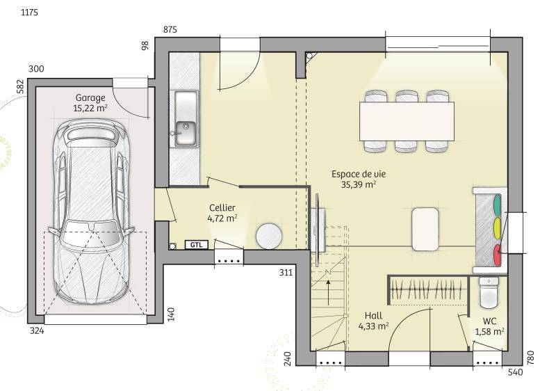
À vendre : à côté de la gare de Champ de Courses d'Enghien (Paris à 15 min avec le Transilien H), à Soisy-sous-Montmorency (95230), nous vous proposons cette maison de 5 pièces de 90 m². Elle inclut trois chambres, une cuisine et une salle de bains.
Le terrain de la propriété est de 320 m².
C'est une maison de 2 niveaux. Elle est neuve.
Plusieurs établissements scolaires (maternelle, élémentaire, primaire et collège) sont implantés à moins de 10 minutes à pied. Niveau transports, il y a trois lignes de RER (C, D et B) ainsi que 51 gares à moins de 10 minutes en voiture. On trouve une bibliothèque, deux tennis, un bassin de natation, quatre boulangeries, des commerces, deux supermarchés, trois épiceries et une supérette à proximité. Enfin, le marché Centre-Ville a lieu tous les vendredis matin.
Elle est à vendre pour la somme de 395 000 €.
N'hésitez pas à prendre contact avec Cedric YAHIAOUI (tél : (Numéro supprimé)) pour toute information sur la maison, sur les démarches à suivre ou sur les modalités de vente.
Annonce proposée par un Agent Commercial Partenaire.
Logement susceptibles de vous intéresser
Nous vous proposons de découvrir aussi cette sélection de logements situés à moins de 10km de Soisy-sous-Montmorency et qui seraient susceptibles de vous intéresser.
Ermont
TERRAINTerrain de 600 m² à vendre à ErmontGrand terrain au pied du Transilien H (gare d’Ermont Halte, 20 min de Paris). De 600 m², ce terrain se situe dans Ermont (95120). Ce terrain est proche des écoles et des commerces. Tous les types d’établissements scolaires se trouvent à moins de 10 minutes à pied, tout comme sept crèches. Côté transports, il y a la station de RER Cernay (ligne C) ainsi que trois gares (Ermont Halte, Cernay (Val-d’Oise) et Gros Noyer Saint-Prix) dans les environs. On trouve une bibliothèque, un bassin de natation, deux tennis, des commerces, des boulangeries, un supermarché, une supérette et un bureau de poste à quelques minutes. Le marché Place St Flaive anime le quartier.Ce terrain est proposé à l’achat pour 300 000 €. Prenez contact avec notre agence (FLIPPE Antoine : (Numéro supprimé)) pour tout renseignement sur le terrain.Annonce proposée par un Agent Commercial Partenaire.
Ermont
TERRAIN ET MAISONMaison de 5 pièces (96 m²) en vente à ErmontMAISON 5 PIÈCES NEUVEÀ vendre : à deux pas du Transilien H (gare d’Ermont Halte, 20 min de Paris), notre agence Maisons Balency Baillet-en-France est ravie de vous présenter cette maison de 5 pièces de 96 m² à Ermont (95120). Son intérieur offre quatre chambres, une cuisine et une salle de bains.Le terrain de la maison s’étend sur 600 m².Cette maison compte 2 niveaux. Elle est neuve.Des écoles (de la maternelle au lycée) sont implantées à moins de 10 minutes à pied, tout comme sept crèches. Niveau transports en commun, il y a la station de RER Cernay (ligne C) ainsi que trois gares (Ermont Halte, Cernay (Val-d’Oise) et Gros Noyer Saint-Prix) juste à côté. On trouve une bibliothèque, un bassin de natation, deux tennis, des commerces, des boulangeries, un supermarché, des épiceries et un bureau de poste à quelques minutes. Le marché Place St Flaive anime les environs.Son prix de vente est de 480 000 €.N’hésitez pas à prendre contact avec notre agence (FLIPPE Antoine : (Numéro supprimé)) pour plus de renseignements sur cette maison, sur les modalités de vente ou sur les démarches à suivre. Maisons Balency Baillet-en-France vous accompagne à toutes les étapes de l’achat et dans tous vos projets immobiliers.Annonce proposée par un Agent Commercial Partenaire.
Ermont
TERRAIN ET MAISONVENTE d’une maison de 7 pièces (102 m²) à ErmontMAISON 7 PIÈCES NEUVEÀ vendre : à côté du Transilien H (gare d’Ermont Halte, 20 min de Paris), ayez le coup de coeur pour à Ermont (95120), cette maison de 7 pièces de 102 m² et de 600 m² de terrain.Cette maison comporte 2 niveaux. Elle inclut cinq chambres, une cuisine et deux salles de bains. La maison est neuve.Des établissements scolaires de tous niveaux (de la maternelle au lycée) sont implantés à moins de 10 minutes à pied, tout comme sept crèches. Niveau transports en commun, il y a la station de RER Cernay (ligne C) ainsi que trois gares (Ermont Halte, Cernay (Val-d’Oise) et Gros Noyer Saint-Prix) dans un rayon de 1 km. On trouve une bibliothèque, un bassin de natation, deux tennis, des commerces, des boulangeries, un supermarché, un bureau de poste et trois boucheries-charcuteries à quelques minutes. Le marché Place St Flaive anime le quartier.Elle est à vendre pour la somme de 470 000 €.Prenez contact avec notre agence (FLIPPE Antoine : (Numéro supprimé)) pour obtenir de plus amples informations sur cette maison.Annonce proposée par un Agent Commercial Partenaire.
Ermont
TERRAIN ET MAISONErmont : maison de 6 pièces (109 m²) en venteMAISON 6 PIÈCES NEUVEÀ vendre : à deux pas du Transilien H (gare d’Ermont Halte, 20 min de Paris), Maisons Balency Baillet-en-France vous propose cette maison de 6 pièces de 109 m² et de 600 m² de terrain à Ermont (95120). Elle dispose de quatre chambres, d’une cuisine et de deux salles de bains.Cette maison possède 2 niveaux. Elle est neuve.Il y a tous les types d’écoles (maternelle, élémentaire et secondaire) à moins de 10 minutes à pied, tout comme sept crèches. Niveau transports en commun, on trouve la station de RER Cernay (ligne C) ainsi que trois gares (Ermont Halte, Cernay (Val-d’Oise) et Gros Noyer Saint-Prix) dans les environs. Il y a une bibliothèque, un bassin de natation, deux tennis, des commerces, des boulangeries, un supermarché, un bureau de poste et trois boucheries-charcuteries à quelques minutes à peine. Enfin, le marché Place St Flaive anime les environs.Elle est proposée à l’achat pour 485 000 €.Prenez contact avec notre agence (Antoine FLIPPE : (Numéro supprimé)) pour toute question sur cette maison, sur les démarches à suivre ou sur les modalités de vente. Faites de vos projets immobiliers une réalité avec Maisons Balency Baillet-en-France.Annonce proposée par un Agent Commercial Partenaire.
Ermont
TERRAIN ET MAISONMaison T7 (124 m²) en vente à ErmontMAISON 7 PIÈCES NEUVEÀ vendre : à quelques minutes du Transilien H (gare d’Ermont Halte, 20 min de Paris), à Ermont (95120), Maisons Balency Baillet-en-France vous propose cette maison de 7 pièces de 124 m². Son intérieur offre cinq chambres, une cuisine et trois salles de bains.Le terrain de la propriété s’étend sur 600 m².C’est une maison de 2 niveaux. Elle est neuve.Il y a des établissements scolaires de tous types à moins de 10 minutes à pied, tout comme sept structures d’accueil pour les enfants en bas âge. Côté transports, on trouve la station de RER Cernay (ligne C) ainsi que trois gares (Ermont Halte, Cernay (Val-d’Oise) et Gros Noyer Saint-Prix) dans les alentours. Il y a une bibliothèque, un bassin de natation, deux tennis, des commerces, des boulangeries, un supermarché, des épiceries et un bureau de poste à quelques minutes à peine. Enfin, le marché Place St Flaive anime le quartier.Elle est proposée à l’achat pour 495 000 €.Prenez contact avec Antoine FLIPPE (tél : (Numéro supprimé)) pour obtenir de plus amples informations sur la maison, sur les modalités de vente ou sur les démarches à suivre. Maisons Balency Baillet-en-France vous accompagne dans tous vos projets immobiliers et à toutes les étapes de votre projet.Annonce proposée par un Agent Commercial Partenaire.
Écouen
TERRAINTerrain de 630 m² à vendre à ÉcouenPROCHE DE PARISGrand terrain au pied du Transilien H (gare d’Écouen-Ézanville, 15 min de Paris). De 630 m², ce terrain se situe dans Écouen (95440). Le terrain est proche des commerces et des écoles. On trouve plusieurs écoles (maternelle, élémentaire, primaire et collège) à moins de 10 minutes à pied. Niveau transports, il y a le RER D et C ainsi que 30 gares à moins de 10 minutes en voiture. On trouve une bibliothèque, des commerces, quatre boulangeries, une poissonnerie, deux épiceries et un bureau de poste dans les environs.Ce terrain est à vendre pour la somme de 250 000 €. N’hésitez pas à prendre contact avec notre agence (FLIPPE Antoine : (Numéro supprimé)) pour toute information sur le terrain, sur les démarches à suivre ou sur les modalités de vente. Donnez vie à vos projets immobiliers avec Maisons Balency Baillet-en-France.Annonce proposée par un Agent Commercial Partenaire.
Écouen
TERRAIN ET MAISONMaison T7 (102 m²) à vendre à ÉcouenPROCHE DE PARIS – MAISON 7 PIÈCES NEUVEAu pied de la gare d’Écouen-Ézanville (Paris à 15 min par le Transilien H), votre agence Maisons Balency Baillet-en-France est ravie de vous proposer cette maison de 7 pièces de 102 m² à Écouen (95440).C’est une maison de 2 niveaux. Son intérieur compte cinq chambres, une cuisine et deux salles de bains. La maison est neuve.Le terrain du bien s’étend sur 630 m².Plusieurs établissements scolaires (maternelle, élémentaire, primaire et collège) se trouvent à moins de 10 minutes à pied. Niveau transports en commun, il y a deux lignes de RER (D et C) ainsi que 30 gares à moins de 10 minutes en voiture. On trouve une bibliothèque, des commerces, quatre boulangeries, un bureau de poste, deux épiceries et une poissonnerie à proximité de la maison.Elle est à vendre pour la somme de 430 000 €.N’hésitez pas à prendre contact avec Antoine FLIPPE (tél : (Numéro supprimé)) pour tout renseignement sur la maison, sur les démarches à suivre ou sur les modalités de vente. Maisons Balency Baillet-en-France est là pour vous accompagner à toutes les étapes de l’achat.Annonce proposée par un Agent Commercial Partenaire.
Écouen
TERRAIN ET MAISONMaison de 6 pièces (109 m²) à vendre à ÉcouenPROCHE DE PARIS – MAISON 6 PIÈCES NEUVEÀ deux pas du Transilien H (gare d’Écouen-Ézanville, 15 min de Paris), laissez vous charmer par cette maison de 6 pièces de 109 m² à vendre à Écouen (95440).C’est une maison de 2 niveaux. Son intérieur dispose de quatre chambres, d’une cuisine et de deux salles de bains. La maison est neuve.Le terrain du bien s’étend sur 630 m².Il y a plusieurs écoles (maternelle, élémentaire, primaire et collège) à moins de 10 minutes à pied. Niveau transports en commun, on trouve le RER D et C ainsi que 30 gares à moins de 10 minutes en voiture. Il y a une bibliothèque, des commerces, quatre boulangeries, deux épiceries, une poissonnerie et un bureau de poste dans les environs.Elle est proposée à l’achat pour 445 000 €.Contactez Antoine FLIPPE (tél : (Numéro supprimé)) pour toute question sur cette maison, sur les modalités de vente ou sur les démarches à suivre.Annonce proposée par un Agent Commercial Partenaire.
Écouen
TERRAIN ET MAISONMaison T7 (124 m²) en vente à ÉcouenPROCHE DE PARIS – MAISON 7 PIÈCES NEUVEÀ côté du Transilien H (gare d’Écouen-Ézanville, 15 min de Paris), notre agence Maisons Balency Baillet-en-France est ravie de vous proposer cette maison de 7 pièces de 124 m² et de 630 m² de terrain à Écouen (95440). Son intérieur se divise en cinq chambres, une cuisine et trois salles de bains.Il s’agit d’une maison de 2 niveaux. Elle est neuve.Plusieurs écoles (maternelle, élémentaire, primaire et collège) sont implantées à moins de 10 minutes à pied. Niveau transports en commun, on trouve les lignes D et C du RER ainsi que 30 gares à moins de 10 minutes en voiture. Il y a une bibliothèque, des commerces, quatre boulangeries, une poissonnerie, deux épiceries et un bureau de poste à proximité du logement.Elle est à vendre pour la somme de 455 000 €.Contactez Antoine FLIPPE ((Numéro supprimé)) pour toute question sur cette maison ou sur les démarches à suivre. Faites de vos projets immobiliers une réalité avec Maisons Balency Baillet-en-France.Annonce proposée par un Agent Commercial Partenaire.
L’actualité immobilière à Soisy-sous-Montmorency
27/11/2023
02/11/2023
30/10/2023
20/10/2023
16/10/2023
16/10/2023