Maison à construire à Aups (83630)
Images
Description
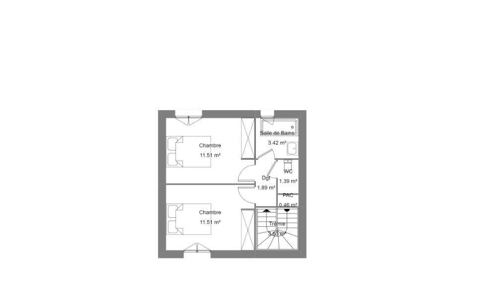
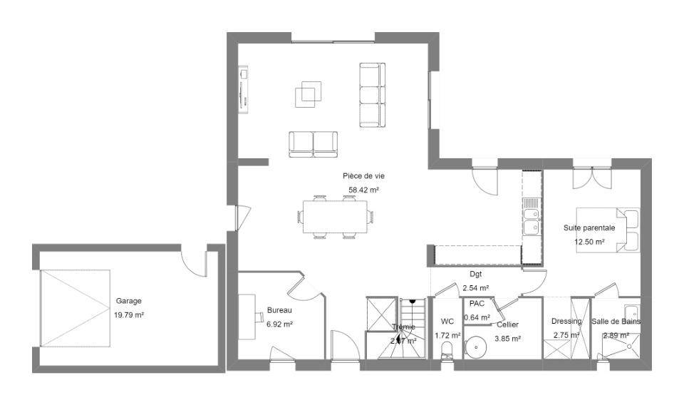
Projet de construction à AUPS
Belle villa neuve très fonctionnelle et lumineuse sur un terrain plat de 1 200 m² idéalement situé dans un quartier résidentiel au calme et à proximité de toutes les commodités. Centre village accessible en moins de 10mn à pieds.
Cette villa neuve se compose au rez de chaussée d'un vaste séjour de 58m² avec une cuisine ouverte, un cellier, une suite parentale avec sa salle d'eau privative et son dressing, et un bureau.
A l'étage vous y découvrirez 2 belles chambres et une salle de bain.
Un garage vient compléter ce bien.
Votre projet clef en mains à 460 000 euros incluant votre villa avec garage, le terrain ainsi que le coût des raccordements.
Pour tous renseignements et une étude personnalisée, contactez Véronique CHAUVET au (Numéro supprimé).
Maisons France Confort constructeur de maisons individuelles leader en France. Entreprise familiale crée en 1919.
Logement susceptibles de vous intéresser
Nous vous proposons de découvrir aussi cette sélection de logements situés à moins de 10km de Aups et qui seraient susceptibles de vous intéresser.
Sillans-la-Cascade
TERRAIN ET MAISONDevenez propriétaire ! Contactez le (Numéro supprimé)Emplacement stratégique à 35 minutes de Brignoles et de DraguignanEn exclusivité votre constructeur vous propose, avec son partenaire foncier, de faire bâtir votre maison de plain-pied d’environ 70m² avec garage attenant d’environ 20m² sur ce magnifique terrain plat de 668m2 à Sillans-la-Cascade, à 10min de Cotignac. Vous trouverez à pieds le le centre-ville et les écoles, dans un cadre champêtre. Cette maison comprend un bel espace de vie de presque 30m² et dispose de 3 chambres ainsi que d’une salle d’eau avec WC indépendant. Budget global d’investissement : 270 000€ hors taxes de raccordement aux réseaux et frais de notaire.Détails des prestations et personnalisation de votre future maison neuve sur rendez-vous.Contactez votre chargée de projet Samantha RICAUD au (Numéro supprimé)*Modèle non contractuel, hors frais.
Sillans-la-Cascade
TERRAINRARE A LA VENTE ! Contactez le (Numéro supprimé)En exclusivité votre constructeur vous propose, avec son partenaire foncier, de faire bâtir votre projet de vie sur ce magnifique terrain plat de 668m2 à Sillans-la-Cascade. Situé à 500m du centre-ville et des écoles, dans un cadre champêtre, seulement à 10 minutes de Cotignac, bientôt sacré plus beau village historique de France ! A 35 minutes de Brignoles et de Draguignan, vous pourrez réaliser une maison de plain-pied de plus de 87m² habitables grâce à notre exemplarité énergétique. Le terrain est arboré, en partie clôturé et les réseaux sont en bordure avec le TAE. Détails des prestations et personnalisation de votre future maison neuve sur rendez-vous.Contactez votre chargée de projet Samantha RICAUD au (Numéro supprimé)
Sillans-la-Cascade
TERRAIN ET MAISONDevenez propriétaire ! Contactez le (Numéro supprimé)En exclusivité votre constructeur vous propose, avec son partenaire foncier, de faire bâtir votre maison de plain-pied d’environ 80m² sur ce magnifique terrain plat de 668m2 à Sillans-la-Cascade, à 10min de Cotignac. Vous trouverez à pieds le le centre-ville et les écoles, dans un cadre champêtre. Emplacement stratégique à 35 minutes de Brignoles et de Draguignan, cette maison comprend un bel espace de vie de plus de 35m² et dispose de 3 chambres ainsi que d’une salle d’eau avec WC indépendant. Budget global d’investissement : 265 500€ hors taxes de raccordement aux réseaux.Détails des prestations et personnalisation de votre future maison neuve sur rendez-vous.Contactez votre chargée de projet Samantha RICAUD au (Numéro supprimé)*Modèle non contractuel, hors frais.
Aups
TERRAIN ET MAISONProjet de construction à AUPSBelle villa neuve très fonctionnelle et lumineuse sur un terrain plat de 1 200 m² idéalement situé dans un quartier résidentiel au calme et à proximité de toutes les commodités. Centre village accessible en moins de 10mn à pieds. Cette villa neuve se compose au rez de chaussée d’un vaste séjour de 58m² avec une cuisine ouverte, un cellier, une suite parentale avec sa salle d’eau privative et son dressing, et un bureau. A l’étage vous y découvrirez 2 belles chambres et une salle de bain. Un garage vient compléter ce bien.Votre projet clef en mains à 460 000 euros incluant votre villa avec garage, le terrain ainsi que le coût des raccordements.Pour tous renseignements et une étude personnalisée, contactez Véronique CHAUVET au (Numéro supprimé). Maisons France Confort constructeur de maisons individuelles leader en France. Entreprise familiale crée en 1919.
Aups
TERRAIN ET MAISONProjet de construction à AUPSMaisons France Confort vous propose cette belle villa neuve de plain-pied bénéficiant d’un environnement de qualité au calme et à proximité des commodités sur un terrain de 1 200 m². Cette villa neuve répond parfaitement à la norme RE2020 grâce à son isolation renforcée et son mode de chauffage très économique.Elle se compose d’un belle espace de vie très lumineux, une cuisine ouverte, 4 chambres dont une suite parentale avec sa salle de bains privative et son dressing. Vous y trouverez également une seconde salle de bains pour toute la famille. Cette villa neuve offre de très belles prestations tels que la climatisation sur l’ensemble de la maison avec une régulation de la température pièce par pièce, des volets roulants électriques et un kit domotique. Vous avez la possibilité d’y ajouter un garage si vous le souhaitez.Coté pratique le centre ville est accessible en moins de 10mn à pieds.Votre projet clefs en mains à 358 000 euros incluant le terrain, la maison et les frais de raccordement.Pour tous renseignements et une étude personnalisée, contactez Véronique CHAUVET au (Numéro supprimé).Maisons France Confort agence de Trans en Provence. Constructeur de maisons individuelles leader en France. Entreprise familiale fondée en 1919.
Salernes
TERRAIN ET MAISONVotre constructeur Maisons France Confort, vous offre l’opportunité de faire bâtir votre villa à Salernes!En accord avec notre partenaire foncier, nous vous proposons ce bien rare sur le secteur, un terrain plat de 1037m2 dans un environnement verdoyant.Proposition de villa :Villa plain pied de 60m2 comprenant séjour et 2 chambresLe tout sur 1037m2 de terrainQuartier calme et tranquilleA 12minutes à pied du centre de SalernesFrais de terrassement/adaptations estimés inclus (sous réserve de l’étude de sol G2)Salernes à 80kms de Aix en Provence, 100kms de Marseille et 110kms de Nice, se situe dans un écrin de verdure proche des grandes villes.Petite ville centre du Haut-Var, Salernes fait partie de l’agglomération Dracénie Provence Verdon agglomération. La forêt, l’argile et l’eau posent depuis des millénaires Salernes comme une cité de la Céramique dans le Var. Située dans la vallée de la Bresque, à flanc de collines et à l’abri des vents, à deux pas des Gorges du Verdon et de la Côte d’Azur, Salernes vit au rythme du climat méditerranéen. Son patrimoine historique important en fait un village phare du Haut Var.Ne manquez pas l’opportunité de vivre dans cette charmante ville et contactez votre chargée de projet Amélie Van Brabant au (Numéro supprimé) pour toute information sur les modalités de vente.Concrétisez vos projets immobiliers avec Maisons France Confort Fréjus
Aups
TERRAINProjet de construction à AUPSÀ seulement 5 minutes à pied du centre-ville d’Aups, venez découvrir ce superbe terrain constructible de 1200 m². Situé dans un environnement paisible, ce terrain vous offre un environnement très agréable tout en restant à deux pas des commerces, des écoles et des services du village.Il réunit de nombreux atouts pour concrétiser votre projet :- Entièrement plat pour construire et aménager votre future maison en toute simplicité.- Grâce à son exposition plein sud, vous profiterez d’une luminosité optimale et d’un jardin ensoleillé toute l’année.- Avec ses 1200 m², vous aurez l’espace nécessaire pour créer une villa confortable, avec jardin paysager et piscine.- Les viabilités en bordure (eau, EDF, tout-à-l’égout) facilitent le lancement rapide de votre projet de construction.Ce terrain rare à la vente conjugue praticité, ensoleillement et authenticité provençale. Il constitue l’opportunité idéale pour bâtir votre villa sur mesure dans l’un des villages les plus recherchés du Var.Pour tous renseignements et une étude personnalisée de votre projet de construction, contactez Véronique Chauvet au (Numéro supprimé).Maisons France Confort agence de Trans en Provence, constructeur de maisons individuelles leader en France. Entreprise familiale fondée en 1919.
Aups
TERRAIN ET MAISONProjet de construction à AUPSL’agence Maisons France Confort de Trans en Provence vous propose de découvrir cette belle villa neuve très lumineuse qui vous séduira par son agencement optimal, et ses volumes. Vous trouverez au rez de chaussée d’un hall d’entrée, une belle pièce de vie avec cuisine us, un cellier, et une suite parentale avec sa salle d’eau privative. A l’étage, un espace nuit avec 2 chambres, une salle de bain et de nombreux rangements. Possibilité d’y ajouter un garage.Cette villa à la norme RE2020 offre une isolation très performantes et un système de chauffage économique grâce à sa pompe à chaleur.Sur un terrain de 1200m² situé dans un environnement calme, à 10mn à pieds du centre village d’Aups.Votre projet clefs en mains à 370 000 euros incluant votre villa neuve, le terrain ainsi que le coût des raccordements.Pour tous renseignements et une étude personnalisée, contacter Véronique CHAUVET au (Numéro supprimé). Maisons France Confort leader dans la construction de maisons individuelles, entreprise familiale fondée en 1919.
Salernes
TERRAINVotre constructeur Maisons France Confort, vous offre l’opportunité de faire bâtir votre villa à Salernes!En accord avec notre partenaire foncier, nous vous proposons ce terrain de 680m2 en lotissement avec jolie vue dégagéeDescriptif terrain:Terrain de 680m2Possibilité de construire en étageTerrain en lotissement – viabilisé et raccordé au tout à l’égoutQuartier résidentielSalernes à 80kms de Aix en Provence, 100kms de Marseille et 110kms de Nice, se situe dans un écrin de verdure proche des grandes villes.Petite ville centre du Haut-Var, Salernes fait partie de l’agglomération Dracénie Provence Verdon agglomération. La forêt, l’argile et l’eau posent depuis des millénaires Salernes comme une cité de la Céramique dans le Var. Située dans la vallée de la Bresque, à flanc de collines et à l’abri des vents, à deux pas des Gorges du Verdon et de la Côte d’Azur, Salernes vit au rythme du climat méditerranéen. Son patrimoine historique important en fait un village phare du Haut Var.Ne manquez pas l’opportunité de vivre dans cette charmante ville et contactez votre chargée de projet Amélie Van Brabant au (Numéro supprimé) pour toute information sur les modalités de vente.Concrétisez vos projets immobiliers avec Maisons France Confort Fréjus
L’actualité immobilière à Aups
27/11/2023
02/11/2023
30/10/2023
20/10/2023
16/10/2023
16/10/2023