Maison à construire à Bormes-les-Mimosas (83230)
Images
Description
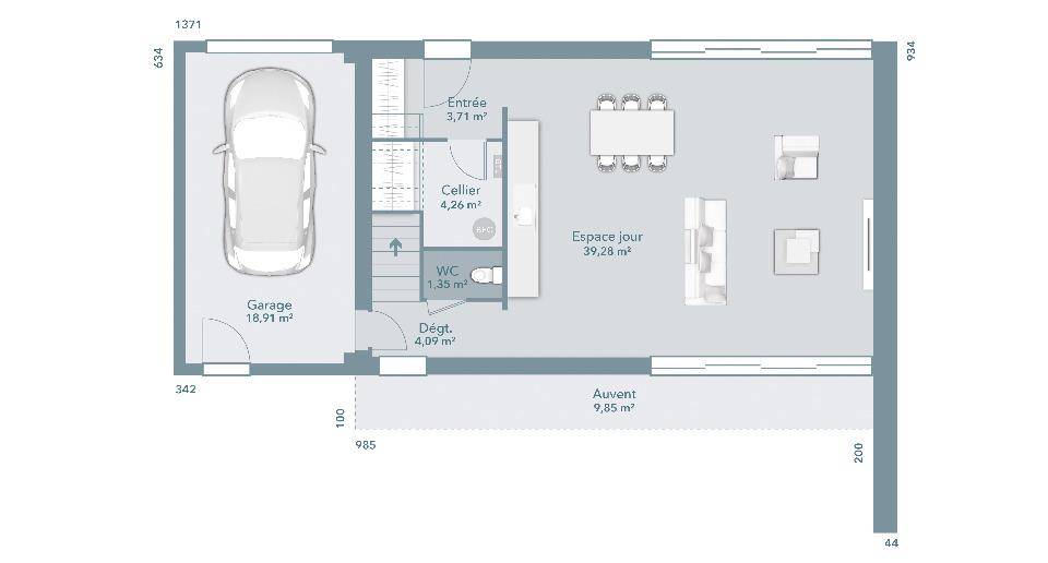
NOUVEAUTE !!!!!! Belle opportunité à ne pas manquer!!! Tel (Numéro supprimé)
Projet de construction à Bormes Les Mimosas...
Maisons France Confort vous propose la réalisation de cette villa à l'architecture contemporaine, lumineuse et spacieuse de type étage partiel de 120m² habitable, offrant de beaux volumes, une entrée avec placard de nombreux rangements, espace de vie lumineux grâce à ses grandes ouvertures, une cuisine ouverte sur l'espace de vie de plus de 50m²,cellier, 1 bureau, suite parentale avec accès terrasse semi couverte, porche entrant et à l'étage 2 chambres, 1 grande salle d'eau et 1 WC séparé, garage accolé.
Villa neuve aux normes RE2020.
Son prix clefs en mains est de 630.000€ incluant la villa, le terrain, le terrassement ainsi que le coût des raccordements.
Pour tous renseignements et une étude personnalisée, contacter Maissa au (Numéro supprimé)
Maisons France Confort agence de la Farlède. Constructeur de maisons individuelles leader en France.
Entreprise familiale fondée en 1919.
Logement susceptibles de vous intéresser
Nous vous proposons de découvrir aussi cette sélection de logements situés à moins de 10km de Bormes-les-Mimosas et qui seraient susceptibles de vous intéresser.
Bormes-les-Mimosas
TERRAINOpportunité à ne pas manquer!!!Terrain à bâtir sur la commune de Bormes Les MimosasMaisons France Confort en accord avec son partenaire foncier, vous propose ce magnifique terrain plat offrant une superficie de 410m² exposition plein sud. Secteur résidentiel, au calme.Terrain viabilisé, il se situe à proximité des commerces et des commodités.Possibilité de construire une villa de Plain-pied ou étage.Pour tous renseignements, veuillez contacter Maissa au (Numéro supprimé) ou au (Numéro supprimé)
Bormes-les-Mimosas
TERRAIN ET MAISONNOUVEAUTE !!!!!! Belle opportunité à ne pas manquer!!! Tel (Numéro supprimé)Projet de construction à Bormes Les Mimosas…Maisons France Confort vous propose la réalisation de cette villa à l’architecture contemporaine, lumineuse et spacieuse de type étage partiel de 140m² habitable, offrant de beaux volumes, une entrée avec placard de nombreux rangements, espace de vie lumineux grâce à ses grandes ouvertures, une cuisine ouverte sur l’espace de vie de plus de 60m², suite parentale avec accès terrasse et à l’étage 2 chambres, 1 grande salle d’eau et 1 WC séparé.Villa neuve aux normes RE2020.Son prix clefs en mains est de 620.000€ incluant la villa, le terrain, le terrassement ainsi que le coût des raccordements.Pour tous renseignements et une étude personnalisée, contacter Maissa au (Numéro supprimé)Maisons France Confort agence de la Farlède. Constructeur de maisons individuelles leader en France. Entreprise familiale fondée en 1919.
Bormes-les-Mimosas
TERRAIN ET MAISONNOUVEAUTE !!!!!! Belle opportunité à ne pas manquer!!! Tel (Numéro supprimé)Projet de construction à Bormes Les Mimosas…Maisons France Confort vous propose la réalisation de cette villa à l’architecture contemporaine, lumineuse et spacieuse de type étage partiel de 120m² habitable, offrant de beaux volumes, une entrée avec placard de nombreux rangements, espace de vie lumineux grâce à ses grandes ouvertures, une cuisine ouverte sur l’espace de vie de plus de 50m²,cellier, 1 bureau, suite parentale avec accès terrasse semi couverte, porche entrant et à l’étage 2 chambres, 1 grande salle d’eau et 1 WC séparé, garage accolé.Villa neuve aux normes RE2020.Son prix clefs en mains est de 630.000€ incluant la villa, le terrain, le terrassement ainsi que le coût des raccordements.Pour tous renseignements et une étude personnalisée, contacter Maissa au (Numéro supprimé)Maisons France Confort agence de la Farlède. Constructeur de maisons individuelles leader en France. Entreprise familiale fondée en 1919.
Bormes-les-Mimosas
TERRAIN ET MAISONNOUVEAUTE !!!!!! Belle opportunité à ne pas manquer!!! Tel (Numéro supprimé)Projet de construction à Bormes Les Mimosas…Maisons France Confort vous propose la réalisation de cette villa, lumineuse et spacieuse de type étage partiel de 110m² habitable, offrant de beaux volumes, une entrée avec placard de nombreux rangements, espace de vie lumineux, une cuisine ouverte sur l’espace de vie de plus de 50m²,cellier, suite parentale et à l’étage 2 chambres, 1 grande salle d’eau et 1 WC séparé.Villa neuve aux normes RE2020.Son prix clefs en mains est de 550.000€ incluant la villa, le terrain, le terrassement ainsi que le coût des raccordements.Pour tous renseignements et une étude personnalisée, contacter Maissa au (Numéro supprimé)Maisons France Confort agence de la Farlède. Constructeur de maisons individuelles leader en France. Entreprise familiale fondée en 1919.
La Londe-les-Maures
TERRAINTerrain constructible – 2 070 m² – Domaine privé de Valcros, La Londe-les-Maures GFP Immobilier vous propose ce terrain constructible d’environ 2 070 m², orienté Est, situé dans le prestigieux domaine de Valcros avec vue dégagée sur le lac et golf 18 trous. Il bénéficie d’un permis validé pour une villa de 248 m² habitables incluant piscine, terrasses, garage de 37 m² et abri voiture de 25 m², avec possibilité de permis modificatif selon projet. En zone UFb, le terrain est non divisible, plan au sol libre (plain-pied uniquement), et peuvent être construits jusqu’à 400 m² selon le cahier des charges. L’étude de sol G1, la topographie et le bornage sont déjà réalisés. Ce secteur calme et naturel offre une proximité avec les plages, le golf et les commodités de La Londe-les-Maures. Contactez nous !
Bormes-les-Mimosas
TERRAINTerrain constructible viabilisé, quartier du Pin, Bormes-les-Mimosas Situé dans un environnement calme et recherché, à proximité immédiate des commerces, écoles et plages, ce terrain plat de 412 m² offre une belle opportunité pour la construction de votre maison individuelle. Caractéristiques principales : Surface de plancher autorisée : 164,8 m² en R+1 (2 x 82,4 m²) ; Occupation du sol : 20% (soit 82,4 m²) ; Espaces verts minimum : 40% (soit 164,8 m²) ; Aucune mitoyenneté – vue dégagée sur le village ; Exposition : Sud ; Étude G1 réalisée – terrain non exposé aux risques naturels majeurs. Ce terrain fait partie d’un petit lotissement de 6 lots, offrant un cadre de vie calme et sécurisé, avec une voie d’accès privée, 3 candélabres, un local poubelle collectif et 2 places de parking visiteurs. Emplacement idéal à 800 m du centre-ville de Bormes-les-Mimosas, à 1,2 km des plages et Accès rapide aux commerces, écoles, médecins et transports Une opportunité rare dans un secteur privilégié. Contactez-nous pour plus d’informations ou pour organiser une visite.
Le Lavandou
TERRAINRare sur le secteur!!! Vue merTerrain à bâtir sur la commune du Lavandou St ClairMaisons France Confort en accord avec son partenaire foncier, vous propose ce magnifique terrain en restanque offrant une superficie de 774m² avec vue mer, exposition plein sud.Terrain avec les viabilités en bordure, tout à l’égout, il se situe à 300m de la plage et des commerces de St Clair à pieds, permis de construire déjà accepté pour une belle villa contemporaine.Pour tous renseignements, veuillez contacter Maissa au (Numéro supprimé) ou au (Numéro supprimé)
Le Lavandou
TERRAINRare à la vente – Opportunité exceptionnelle sur la commune prisée de Cavalière !Nous vous proposons un magnifique terrain de 1 300 m², idéalement situé dans un environnement résidentiel calme et verdoyant, à moins d’un kilomètre des plages et du centre de Cavalière. Vue mer face à Port Cros et l’île du Levant.Ce terrain bénéficie d’un permis de construire accordé et purgé de tout recours pour la réalisation d’une villa contemporaine de 219 m² habitables sur deux niveaux, à laquelle s’ajoute un garage de 28 m².Les volumes projetés offrent de belles possibilités d’aménagement, avec une architecture élégante et des espaces de vie lumineux, ouverts sur l’extérieur. Le terrain permet également de profiter d’une belle exposition et d’une vue mer.Caractéristiques principales :oSuperficie du terrain : 1 300 m²oPermis de construire accordé et purgéoSurface habitable prévue : 219 m² (R+1)oGarage de 28 m²oViabilisation à proximité immédiateoEnvironnement résidentiel de qualité, proche commoditésCe bien constitue une opportunité rare dans un cadre recherché de la Côte d’Azur. Les honoraires sont à la charge du vendeur.Les informations sur les risques auxquels ce bien est exposé sont disponibles sur le site Géorisques : www. georisques. gouv. fr.Réseau Immobilier CAPIFRANCE – Votre agent commercial (RSAC N(Numéro supprimé) – Greffe de TOULON) Véronique REY THOUVARD Entrepreneur Individuel (Numéro supprimé) – Réf.906985
Collobrières
TERRAINCollobrières, charmant village d’environ 2000 habitants avec toutes commodités: écoles, crèche, commerces, nombreuses activités… Très beau terrain constructible borné de 691m2 avec une vue magnifiquement dégagée sur les collines et les vignes. Ensoleillé , sans vis à vis, tout à l’égout et raccordements en bordure. CONSTRUCTEUR LIBRE avec possibilité de bâtir sur RDC + 1 niveau. RARE dans le village!!! Il est possible d’acquérir 300m2 de châtaigneraie ainsi que d’un deuxième terrain identique et accolé . Collobrières, à environ 30 minutes de la mer, 35 de l’aéroport, de Toulon, Hyères, du Golf de Saint Tropez. Ce village est fréquenté toute l’année , beaucoup de potentiel!!!Honoraires à la charge du vendeurVotre agent commercial 3G IMMO sur place EI – Ingrid COLLOMBET inscrite au RSAC de TOULON n° 384 604 369 Selon l’article L.561.5 du Code Monétaire et Financier, pour l’organisation de la visite, la présentation d’une pièce d’identité vous sera demandée.Les informations sur les risques auxquels ce bien est exposé sont disponibles sur le site Géorisques : www.georisques.gouv.frLes informations sur les risques auxquels ce bien est exposé sont disponibles sur le site Géorisques : www.georisques.gouv.fr
L’actualité immobilière à Bormes-les-Mimosas
27/11/2023
02/11/2023
30/10/2023
20/10/2023
16/10/2023
16/10/2023