Maison à construire à Draguignan (83300)
Images
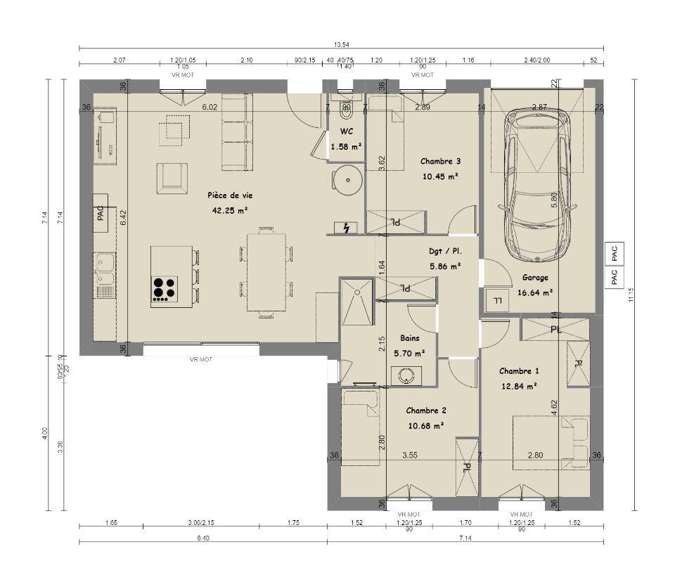
Description
Vous souhaitez vivre sur la commune de Draguignan sur un terrain de 900m² dans un quartier calme non loin du centre ville et hôpital?
Venez construire avec Natacha de Maisons France Confort cette jolie maison de 89m² composée de trois chambres, une pièce de vie avec sa cuisine ouverte. Un garage intégré complète également cette maison.
Le prix comprend le terrain, la maison (voir descriptif lors du rendez-vous), provision terrassement.
Le prix ne comprend pas: frais de notaire, aménagements intérieurs (voir lors du RDV), aménagements extérieurs, taxes et raccordements.
Vous souhaitez en savoir plus sur ce projet ou en élaborer un à votre image? Contactez vite Natacha Espinosa de Maison France Confort au (Numéro supprimé).
Logement susceptibles de vous intéresser
Nous vous proposons de découvrir aussi cette sélection de logements situés à moins de 10km de Draguignan et qui seraient susceptibles de vous intéresser.
Trans-en-Provence
TERRAINÀ découvrir, beau terrain plat et viabilisé de 700 m², situé dans une petite copropriété calme et préservée. L’environnement, résidentiel et verdoyant, garantit un cadre de vie agréable, sans nuisance.La parcelle offre une surface plancher de 100 m², idéale pour la réalisation d’une maison contemporaine ou traditionnelle selon vos envies.Emplacement privilégié, à proximité du centre de Trans-en-Provence, des commerces, des écoles et des principaux axes routiers.Renseignements :Yannick POINCLOUX – Maisons de Manon, agence de Sainte-Maxime(Numéro supprimé)Avant-projet sur mesure. D’autres projets peuvent être étudiés selon vos besoins.En collaboration avec notre partenaire foncier et sous réserve de disponibilité.Ce bien ne vous convient pas ? Nous vous accompagnons aussi dans la recherche de votre terrain.Annonce proposée par un Agent Commercial Partenaire.
Lorgues
TERRAIN83510 – LORGUES – QUARTIER CALME et NATUREL- TERRAIN CONSTRUCTIBLE – 753.0 M² – BELLE OPPORTUNITÉ À SAISIR!efficity, l’agence qui estime votre bien en ligne, vous propose ce terrain VIABILISE constructible de 725 m2 avec une surface utile de 576 m2 et une surface plancher de 135 m2Il est idéalement situé Proche du centre ville et des installations sportives, dans un nouveau petit lotissement.Dans un environnement calme et paisible jonché d’oliviers, son exposition Sud Sud-Est garantit une luminosité optimale tout au long de la journée. Les informations sur les risques auxquels ce bien est exposé sont disponibles sur le site Georisque : georisques. gouv. fr Gregory Pierret – EI – est Agent Commercial mandataire en immobilier, immatriculé au Registre Spécial des Agents Commerciaux du Tribunal de Commerce de draguignan sous le n(Numéro supprimé).Siège social du mandant : effiCity, 48 avenue de Villiers – 75017 PARIS – Société par Actions Simplifiée, société au capital de 132 373,05 euros, immatriculée au RCS Paris 497 617 746 et titulaire de la Carte professionnelle CPI 7501 2015 000 002 025 – CCI Paris IDF – Caisse de Garantie : GALIAN Assurances 89 rue de la Boétie 75008 Paris
Draguignan
TERRAINProjet de construction à DraguignanÀ seulement 5 minutes du centre ville de Draguignan, venez découvrir ce beau terrain constructible de 1654m². Situé dans un environnement paisible, ce terrain vous offre un cadre campagne tout en restant à 5 minutes des commerces, des écoles et services de la villeIl réunit de nombreux atouts pour concrétiser votre projet :- 2 beaux plateaux pour construire et aménager votre future maison en toute simplicité.- Grâce à sa position dominante, vous profiterez d’une jolie vue dégagée sur la ville.- Avec ses 1654m², vous aurez l’espace nécessaire pour créer une villa confortable, avec jardin paysager et piscine.- Les viabilités à proximité (eau, EDF, tout-à-l’égout) facilitent le lancement rapide de votre projet de construction.- Idéal pour un projet familiale. L’emprise au sol de 248m² permet d’y projeter un beau projet de construction .Ce terrain rare à la vente conjugue praticité et authenticité. Il constitue l’opportunité idéale pour bâtir votre villa sur mesure.Pour tous renseignements et une étude personnalisée de votre projet de construction, contactez Véronique Chauvet au (Numéro supprimé).Maisons France Confort agence de Trans en Provence, constructeur de maisons individuelles leader en France. Entreprise familiale fondée en 1919.
Draguignan
TERRAIN ET MAISONProjet de construction à DraguignanVenez découvrir cette belle villa neuve de 120m² habitable sur un terrain de 1654m² idéalement situé au calme, à proximité des commodités.Cette villa se compose d’un bel espace de vie avec une cuisine ouverte, un cellier, 4 chambres dont une suite parentale avec sa salle d’eau privative et son dressing, et une seconde salle de bains qui vient complété ce bien. Vous aurez la possibilité d’y ajouter un garage si vous le souhaitez. De belles prestations sont prévues tels que les volets roulants électriques, les menuiseries couleur anthracite, la toiture 4 pans, un pack domotique et pour votre confort la climatisation sur l’ensemble de la maison. La maison répond aux normes RE2020.Projet clefs en mains à 410 000 euros incluant la maison, le terrain ainsi que les frais de raccordements.Pour tous renseignements et une étude personnalisée, contacter Véronique CHAUVET au (Numéro supprimé). Maisons France Confort entreprise familiale fondée en 1919, leader en France dans la construction de maisons individuelles.
Trans-en-Provence
TERRAINÀ découvrir, beau terrain plat et viabilisé de 700 m², situé dans une petite copropriété calme et préservée. L’environnement, résidentiel et verdoyant, garantit un cadre de vie agréable, sans nuisance.Idéale pour la réalisation d’une maison contemporaine ou traditionnelle selon vos envies.Emplacement privilégié, à proximité du centre de Trans-en-Provence, des commerces, des écoles et des principaux axes routiers.Renseignements :Yannick POINCLOUX – Maisons de Manon, agence de Sainte-Maxime(Numéro supprimé)Avant-projet sur mesure. D’autres projets peuvent être étudiés selon vos besoins.En collaboration avec notre partenaire foncier et sous réserve de disponibilité.Ce bien ne vous convient pas ? Nous vous accompagnons aussi dans la recherche de votre terrain.Annonce proposée par un Agent Commercial Partenaire.
Draguignan
TERRAIN ET MAISONProjet de construction à DraguignanCoup de coeur pour cette belle villa neuve de 113m² habitable sur un terrain de 1654m² à proximité des commodités. Cette villa offre une vaste pièce de vie climatisée de 45m² avec cuisine ouverte. L’agencement de cet espace ouvrant par une grande baie sur le jardin, lui confère une ambiance chaleureuse. 4 chambres dont une suite parentale en rez de chaussée avec sa salle d’eau privative et son dressing, de nombreux espaces de rangements et une salle de bains familiale complètent harmonieusement ce bien.Notre avis : les volumes, la situation et les prestations de cette villa lui donnent tout son charme et sa rareté. Villa neuve entièrement climatisée aux normes RE2020 avec la possibilité d’y ajouter un garage.Son prix clefs en mains 428 000 euros incluant la villa, le terrain, ainsi que le coût des raccordements.Pour tous renseignements et une étude personnalisée, contactez Véronique CHAUVET au (Numéro supprimé)Maisons France Confort agence de Trans en Provence constructeur de maisons individuelles leader en France. Entreprise familiale fondée en 1919.
Draguignan
TERRAIN ET MAISONDraguignan – Votre villa de 100m² habitable à 366 000 euros sur un terrain de 1654m²Maisons France Confort agence de Trans en Provence vous propose une belle villa de plain-pied située dans un environnement de qualité, à 5 minutes des commodités, sur un terrain de 1654m² offrant une jolie vue dégagée.Confort, modernité et performance :Grand espace de vie lumineuxCuisine ouverte contemporaine4 chambres spacieusesUne salle de bains moderne idéale pour toute la familleVolets roulants électriquesSystème domotique pour un quotidien simplifiéPerformance énergétique RE2020 : Grâce à une isolation renforcée et un chauffage économique, cette villa vous assure un confort optimal tout au long de l’année.Projet clé en main à 366 000 euros Ce prix comprend le terrain, la maison et les frais de raccordement.Pour une tous renseignements et une étude personnalisée, contactez Véronique CHAUVET au (Numéro supprimé)Maisons France Confort constructeur de maisons individuelles leader en France. Entreprise familiale fondée en 1919.
Les Arcs
TERRAINProjet de constructionMaisons France Confort constructeur de maisons individuelles, vous propose ce magnifique terrain de 1 244 m² idéalement situé à seulement 6km de la commune des Arcs sur Argens, dans un environnement verdoyant à 2 pas du centre village de Taradeau.Localisation privilégiée : profitez d’un cadre campagne tout en restant proche des commodités, écoles, commerces et services.Le terrain situé sur les hauteurs du village offre une belle exposition sud, idéale pour implanter votre future maison dans un cadre serein et lumineux.Terrain prêt à bâtir : toutes les viabilités (eau, électricité, tout-à-l’égout) sont en bordure du terrain, facilitant le démarrage rapide de votre projet de construction.Faites construire la maison qui vous ressemble avec Maisons France Confort.1er constructeur de maisons individuelles en France.Ce terrain n’attend plus que votre projet de vie !Pour tous renseignements et une étude personnalisée, contactez Véronique Chauvet au (Numéro supprimé). Maisons France Confort agence de Trans en Provence, constructeur de maisons individuelles leader en France. Entreprise familiale fondée en 1919.
Les Arcs
TERRAIN ET MAISONProjet de construction à seulement 6 km de la commune des Arcs sur ArgensA découvrir ! Belle villa neuve composée d’un bel espace de vie climatisée de 44m² avec une cuisine ouverte, un cellier, 3 chambres dont une suite parentale avec sa salle d’eau privative et son dressing. Vous y trouverez également de nombreux espaces de rangements. Villa très lumineuse répondant à la norme RE2020 offrant un vrai confort de vie avec des prestations de qualité. Possibilité de réaliser un garage en option. L’ensemble sur un terrain de 1 244m² idéalement situé dans un quartier résidentiel à proximité de toutes les commodités. Votre projet à 382 000 euros incluant la maison, le terrain et les frais de raccordements.Pour tous renseignements et une étude personnalisée, contactez Véronique CHAUVET au (Numéro supprimé).Maisons France Confort, agence de Trans en Provence. Constructeur de maisons individuelles leader en France. Entreprise familiale crée en 1919.
L’actualité immobilière à Draguignan
27/11/2023
02/11/2023
30/10/2023
20/10/2023
16/10/2023
16/10/2023