Maison à construire à Flayosc (83780)
Images
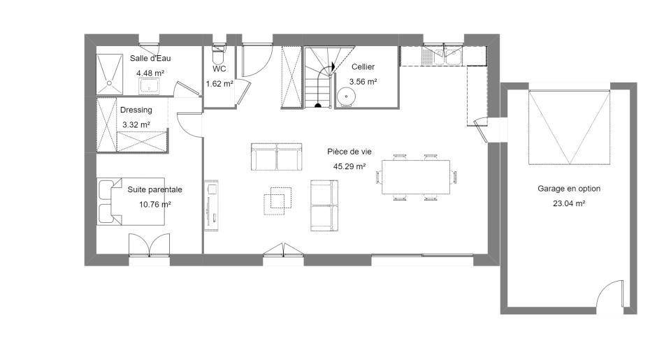
Description
Projet de construction à Flayosc
Coup de coeur pour cette belle villa neuve sur un terrain de 1003m² idéalement situé dans un cadre campagne, à proximité des commodités.
Cette villa offre
- une vaste pièce de vie climatisée de 45m² avec cuisine ouverte. L'agencement de cet espace ouvrant par une grande baie sur le jardin, lui confère une ambiance chaleureuse.
- 4 chambres dont une suite parentale en rez de chaussée avec sa salle d'eau privative et son dressing
- de nombreux espaces de rangements
- une salle de bains familiale complètent harmonieusement ce bien.
Notre avis : les volumes, la situation et les prestations de cette villa lui donnent tout son charme et sa rareté.
Villa neuve entièrement climatisée aux normes RE2020.
Possibilité d'y ajouter un garage.
Son prix clefs en mains : 402 000 euros incluant la villa, le terrain, ainsi que le coût des raccordements.
Pour tous renseignements et une étude personnalisée, contactez Véronique CHAUVET au (Numéro supprimé)
Maisons France Confort agence de Trans en Provence constructeur de maisons individuelles leader en France.
Entreprise familiale fondée en 1919.
Logement susceptibles de vous intéresser
Nous vous proposons de découvrir aussi cette sélection de logements situés à moins de 10km de Flayosc et qui seraient susceptibles de vous intéresser.
Lorgues
TERRAIN83510 – LORGUES – QUARTIER CALME et NATUREL- TERRAIN CONSTRUCTIBLE – 753.0 M² – BELLE OPPORTUNITÉ À SAISIR!efficity, l’agence qui estime votre bien en ligne, vous propose ce terrain VIABILISE constructible de 753m2, avec une surface utile de 667m2 et une surface plancher de 135m2.Il est idéalement situé Proche du centre ville et des installations sportives, dans un nouveau petit lotissement.Dans un environnement calme et paisible jonché d’oliviers, son exposition Sud Sud-Est garantit une luminosité optimale tout au long de la journée. Les informations sur les risques auxquels ce bien est exposé sont disponibles sur le site Georisque : georisques. gouv. fr Gregory Pierret – EI – est Agent Commercial mandataire en immobilier, immatriculé au Registre Spécial des Agents Commerciaux du Tribunal de Commerce de draguignan sous le n(Numéro supprimé).Siège social du mandant : effiCity, 48 avenue de Villiers – 75017 PARIS – Société par Actions Simplifiée, société au capital de 132 373,05 euros, immatriculée au RCS Paris 497 617 746 et titulaire de la Carte professionnelle CPI 7501 2015 000 002 025 – CCI Paris IDF – Caisse de Garantie : GALIAN Assurances 89 rue de la Boétie 75008 Paris
Lorgues
TERRAIN83510 – LORGUES – QUARTIER CALME et NATUREL- TERRAIN CONSTRUCTIBLE – 1814.0 M² – BELLE OPPORTUNITÉ À SAISIR!efficity, l’agence qui estime votre bien en ligne, vous propose ce terrain VIABILISE constructible de 1814m2, avec une surface utile de 1454m2 et une surface plancher de 302m2.Possibilité de construire 2 villas sur la parcelle.Il est idéalement situé Proche du centre ville et des installations sportives, dans un nouveau petit lotissement.Dans un environnement calme et paisible jonché d’oliviers, son exposition Sud Sud-Est garantit une luminosité optimale tout au long de la journée. Les informations sur les risques auxquels ce bien est exposé sont disponibles sur le site Georisque : georisques. gouv. fr Gregory Pierret – EI – est Agent Commercial mandataire en immobilier, immatriculé au Registre Spécial des Agents Commerciaux du Tribunal de Commerce de draguignan sous le n(Numéro supprimé).Siège social du mandant : effiCity, 48 avenue de Villiers – 75017 PARIS – Société par Actions Simplifiée, société au capital de 132 373,05 euros, immatriculée au RCS Paris 497 617 746 et titulaire de la Carte professionnelle CPI 7501 2015 000 002 025 – CCI Paris IDF – Caisse de Garantie : GALIAN Assurances 89 rue de la Boétie 75008 Paris
Lorgues
TERRAIN ET MAISONA LORGUES sur un terrain de 753 m², VILLAS PRISME vous propose de réaliser votre projet de construction de maison individuelle d'une surface de 80 m² habitables avec 3 chambres.Avec VILLAS PRISME, vous pouvez personnaliser votre projet de maison sur mesure :- Plan et distribution- Système de chauffage au choix- Prestations et équipements selon vos souhaits : carrelages, faïence, menuiseries, salles de bains…- Mode constructif et matériaux selon les normes en vigueur Plat Exposé plein sudViabiliséEmprise au sol de 125 m²Assainissement individuel à prévoirDemandez une étude gratuite et personnalisée de votre projet de construction !Contactez Manon GUIRAUDOU au (Numéro supprimé) (Villas Prisme – Agence de Brignoles).Prix avec assurance dommages-ouvrage comprise, hors VRD, terrain viabilisé, frais de notaire non compris, frais divers non compris. Terrain sélectionné et vu pour vous sous réserve de disponibilité et au prix indiqué par notre partenaire foncier. Non mandaté pour la vente du terrain. Visuels non contractuels.Cette annonce a été créée et diffusée avec le logiciel VITAHOME.
Flayosc
TERRAINSitué dans un quartier calme et résidentiel à 2 KM du centre village et ses commerces.Très beau terrain de 1622 m2, plat arboré d’oliviers. Borné, clôturé et viabilisé avec assainissement individuel à prévoir.Protégé par un poteau incendie privé, il est desservi par un chemin dont l’accès est sécurisé par un portail.Emprise au sol de 145 m2 + étage + garage-annexes et piscine.Prix : 219.500 euros, honoraires charge vendeur inclus.Pour visiter et vous accompagner dans votre projet, contactez Ringo CLAUW, au (Numéro supprimé) ou, par courriel à (Email supprimé).Selon l’article L.561.5 du Code Monétaire et Financier, pour l’organisation de la visite, la présentation d’une pièce d’identité vous sera demandée.Cette présente annonce a été rédigée sous la responsabilité éditoriale de Ringo CLAUW agissant sous le statut d’agent commercial immatriculé au RSAC DRAGUIGNAN 498339274 auprès de SAS PROPRIETES PRIVEES, au capital de 44 920 euros, ZAC LE CHÊNE FERRÉ – 44 ALLÉE DES CINQ CONTINENTS 44120 VERTOU; SIRET 487 624 777 00040, RCS Nantes. Carte Professionnelle Transactions sur immeubles et fonds de commerce (T) et Gestion immobilière (G) n°CPI 4401 2016 000 010 388 délivrée par la CCI Nantes – Saint Nazaire. Compte séquestre n(Numéro supprimé)67 BPA SAINT-SEBASTIEN-SUR-LOIRE (44230). Garantie GALIAN-SMABTP – 89 rue de la Boétie, 75008 Paris – n°28137 J pour 2 000 000 euros pour T et 120 000 euros pour G. Assurance responsabilité civile professionnelle par GALIAN-SMABTP n° de police 28137.JMandat réf : 426889 Le professionnel garantit et sécurise votre projet immobilier. Ringo CLAUW (EI) Agent Commercial – Numéro RSAC : DRAGUIGNAN 498339274 – .
Lorgues
TERRAIN– Secteur château la Martinette – Amoureux de nature, ce terrain de 8429 m² situé au coeur du Var, à Lorgues, est fait pour vous !Nichée dans un environnement calme et verdoyant, cette belle parcelle en zone naturelle non constructible offre un cadre paisible, idéal pour profiter de la campagne, des balades en famille ou encore pour un projet de loisir (verger, ruches, détente?).Accessible, bien exposé et à seulement quelques minutes du centre du village, ce terrain séduit par son authenticité et son potentiel.Un véritable havre de paix pour les amoureux de la nature et du grand air.Prix : 17 000 euros commission charge vendeurPour visiter et vous accompagner dans votre projet, contactez Marion VIZIER, au (Numéro supprimé) ou, par courriel à (Email supprimé).Selon l’article L.561.5 du Code Monétaire et Financier, pour l’organisation de la visite, la présentation d’une pièce d’identité vous sera demandée.Cette présente annonce a été rédigée sous la responsabilité éditoriale de Marion VIZIER agissant en qualité de conseiller immobilier indépendant sous portage salarial auprès de SAS PROPRIETES PRIVEES, au capital de 44 920 euros, ZAC LE CHÊNE FERRÉ – 44 ALLÉE DES CINQ CONTINENTS 44120 VERTOU; SIRET 487 624 777 00040, RCS Nantes. Carte Professionnelle Transactions sur immeubles et fonds de commerce (T) et Gestion immobilière (G) n°CPI 4401 2016 000 010 388 délivrée par la CCI Nantes – Saint Nazaire. Compte séquestre n(Numéro supprimé)67 BPA SAINT-SEBASTIEN-SUR-LOIRE (44230). Garantie GALIAN-SMABTP – 89 rue de la Boétie, 75008 Paris – n°28137 J pour 2 000 000 euros pour T et 120 000 euros pour G. Assurance responsabilité civile professionnelle par GALIAN-SMABTP n° de police 28137.JMandat réf : 426581 – Le professionnel garantit et sécurise votre projet immobilier.
Draguignan
TERRAINHors lotissementDominantAu calmeRaccordable au tout à l'égout Emprise au sol de 183.60 m² au sol + 55 m² à l'étagePrix : 150000 €.Sur ce terrain de 1224 m² à DRAGUIGNAN, VILLAS PRISME vous propose de réaliser votre projet de construction de maison individuelle.Avec VILLAS PRISME, vous pouvez personnaliser votre projet de maison sur mesure :- Plan et distribution- Système de chauffage au choix- Prestations et équipements selon vos souhaits : carrelages, faïence, menuiseries, salles de bains…- Mode constructif et matériaux selon les normes en vigueur Demandez une étude gratuite et personnalisée de votre projet de construction sur ce terrain à DRAGUIGNAN ! Prix hors frais de notaire. Terrain sélectionné et vu pour vous sous réserve de disponibilité et au prix indiqué par notre partenaire foncier. Non mandaté pour la vente du terrain. Visuels non contractuels.Cette annonce a été créée et diffusée avec le logiciel VITAHOME.
Draguignan
TERRAIN ET MAISONVilla de plain pied composée de 3 chambres avec une baie vitrée de 3 met fenêtre panoramique dans la cuisine.Contactez Eric BONNEAU DESROCHES au (Numéro supprimé) (Villas Prisme – Agence de Fréjus).Prix avec assurance dommages-ouvrage comprise, hors VRD, terrain viabilisé, frais de notaire non compris, frais divers non compris. Terrain sélectionné et vu pour vous sous réserve de disponibilité et au prix indiqué par notre partenaire foncier. Non mandaté pour la vente du terrain. Visuels non contractuels.Cette annonce a été créée et diffusée avec le logiciel VITAHOME.
Draguignan
TERRAINTerrain plat d'environ 1000 m².Prix : 120000 €.Sur ce terrain de 1000 m² à DRAGUIGNAN, VILLAS PRISME vous propose de réaliser votre projet de construction de maison individuelle.Avec VILLAS PRISME, vous pouvez personnaliser votre projet de maison sur mesure :- Plan et distribution- Système de chauffage au choix- Prestations et équipements selon vos souhaits : carrelages, faïence, menuiseries, salles de bains…- Mode constructif et matériaux selon les normes en vigueur Demandez une étude gratuite et personnalisée de votre projet de construction sur ce terrain à DRAGUIGNAN ! Prix hors frais de notaire. Terrain sélectionné et vu pour vous sous réserve de disponibilité et au prix indiqué par notre partenaire foncier. Non mandaté pour la vente du terrain. Visuels non contractuels.Cette annonce a été créée et diffusée avec le logiciel VITAHOME.
Draguignan
TERRAINCommune d’AMPUS – HAMEAU DE LENTIER- 9 LOTS DE TERRAINS A BÂTIR – CADRE CAMPAGNARD, CALME ET VUE DOMINANTE A 8 MINUTES DE DRAGUIGNANDécouvrez ce nouveau projet sur le secteur de la Dracénie :9 lots de terrains à bâtir de 382 m² à 1022 m², idéalement situés à seulement 8 minutes du centre-ville de Draguignan, tout en profitant d’un environnement campagne, paisible et verdoyant …Chaque terrain offre une vue dominante et dégagée sur la nature environnante, dans un cadre privilégié alliant tranquillité et proximité des commodités.Les atouts du programme :9 lots viabilisés aux surfaces variées, adaptés à tous les projetsLIBRE CONSTRUCTEUR (résidence principale ou secondaire)Environnement calme, sans nuisance, à l’écart de l’agitation urbaineVue dégagée et exposition idéaleA seulement 8 minutes du centre-ville de DraguignanTerrains purgés de tout recours pour une acquisition en toute sérénitéLivraison prévue en juin 2026Un emplacement idéal pour ceux qui recherchent le confort de la campagne sans s’éloigner de la ville.Opportunité rare à saisir dès maintenant !Contactez moi pour recevoir le plan des lots, le tarif détaillé et organiser une visite sur site.Pour visiter et vous accompagner dans votre projet, contactez Stéphan LEVASSEUR, au (Numéro supprimé) ou, par courriel à (Email supprimé).Selon l’article L.561.5 du Code Monétaire et Financier, pour l’organisation de la visite, la présentation d’une pièce d’identité vous sera demandée.Cette présente annonce a été rédigée sous la responsabilité éditoriale de LEVASSEUR Stéphan agissant sous le statut d’agent commercial immatriculé au RSAC DRAGUIGNAN 451793319 auprès de SAS PROPRIETES PRIVEES, au capital de 44 920 euros, ZAC LE CHÊNE FERRÉ – 44 Allée des cinq continents 44120 VERTOU – SIRET 487 624 777 00040, RCS Nantes. Carte Professionnelle (T) et (G) n°CPI 4401 2016 000 010 388 délivrée par la CCI Nantes – Saint Nazaire. Garantie GALIAN-SMABTP – 89 rue de la Boétie, 75008 Paris – n°28137 J pour 2 000 000 euros pour T et 120 000 euros pour G. Assurance responsabilité civile professionnelle par GALIAN n° de police 17124335Le professionnel garantit et sécurise votre projet immobilier N° de Mandat : 425523LVS DPE-C /GES-C Consommation de (à euros) Stéphan LEVASSEUR (EI) Agent Commercial – Numéro RSAC : DRAGUIGNAN 451 793 319 Les informations sur les risques auxquels ce bien est exposé sont disponibles sur le site Géorisques : www.géorisques.gouv.fr Stéphan LEVASSEUR (EI) Agent Commercial – Numéro RSAC : DRAGUIGNAN 451793319 – .Les informations sur les risques auxquels ce bien est exposé sont disponibles sur le site Géorisques : www. georisques. gouv. fr
L’actualité immobilière à Flayosc
27/11/2023
02/11/2023
30/10/2023
20/10/2023
16/10/2023
16/10/2023