Maison à construire à Flayosc (83780)
Images
Description
Projet de construction à Flayosc
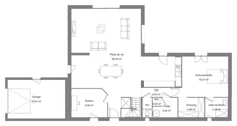
Belle villa neuve très fonctionnelle et lumineuse de 150m² habitable sur un terrain plat de 1 600m² idéalement situé dans un quartier résidentiel au calme et à tout juste 2km du centre du village.
Cette villa neuve se compose au rez de chaussée d'un vaste séjour avec une cuisine ouverte, un cellier, une suite parentale avec sa salle d'eau privative et son dressing, et un bureau. A l'étage vous y découvrirez 2 belles chambres et une salle de bain. Un garage vient compléter ce bien.
Coté prestations, vous trouverez une climatisation sur l'ensemble de la villa, des volets roulants électriques sur toutes les menuiseries, un pack domotique et une isolation renforcée qui répond parfaitement à la norme thermique RE2020.
Votre projet clef en mains à 600 000 euros incluant votre villa avec garage, le terrain ainsi que le coût des raccordements.
Pour tous renseignements et une étude personnalisée, contactez Véronique CHAUVET au (Numéro supprimé).
Maisons France Confort constructeur de maisons individuelles leader en France. Entreprise familiale crée en 1919 vous offrant toutes les garanties nécessaires à votre projet de construction.
Logement susceptibles de vous intéresser
Nous vous proposons de découvrir aussi cette sélection de logements situés à moins de 10km de Flayosc et qui seraient susceptibles de vous intéresser.
Draguignan
TERRAINHors lotissementDominantAu calmeRaccordable au tout à l'égout Emprise au sol de 183.60 m² au sol + 55 m² à l'étagePrix : 150000 €.Sur ce terrain de 1224 m² à DRAGUIGNAN, VILLAS PRISME vous propose de réaliser votre projet de construction de maison individuelle.Avec VILLAS PRISME, vous pouvez personnaliser votre projet de maison sur mesure :- Plan et distribution- Système de chauffage au choix- Prestations et équipements selon vos souhaits : carrelages, faïence, menuiseries, salles de bains…- Mode constructif et matériaux selon les normes en vigueur Demandez une étude gratuite et personnalisée de votre projet de construction sur ce terrain à DRAGUIGNAN ! Prix hors frais de notaire. Terrain sélectionné et vu pour vous sous réserve de disponibilité et au prix indiqué par notre partenaire foncier. Non mandaté pour la vente du terrain. Visuels non contractuels.Cette annonce a été créée et diffusée avec le logiciel VITAHOME.
Draguignan
TERRAIN ET MAISONA DRAGUIGNAN sur un terrain de 2600 m², VILLAS PRISME vous propose de réaliser votre projet de construction de maison individuelle d'une surface de 95 m² habitables avec 3 chambres.Avec VILLAS PRISME, vous pouvez personnaliser votre projet de maison sur mesure :- Plan et distribution- Système de chauffage au choix- Prestations et équipements selon vos souhaits : carrelages, faïence, menuiseries, salles de bains…- Mode constructif et matériaux selon les normes en vigueur Rare sur le secteur !Venez découvrir ce magnifique terrain à bâtir de 2 600 m², situé dans un environnement calme et recherché de Draguignan, à seulement quelques minutes du centre et de toutes commodités.🏡 Atouts du terrain :Superbe superficie : 2 600 m² de terrain plat et exposé plein sudEmprise au sol de 15 %, offrant un large potentiel de construction soit 390 m² de plain-piedPossibilité d’étage sur 30 % de la surface bâtie : idéal pour un projet familial Exposition plein sud : ensoleillement optimal toute la journéeEnvironnement paisible et verdoyant, sans vis-à-visFosse septique à prévoir Accès facile, dans un secteur résidentiel prisé💎 Un cadre exceptionnel pour bâtir la maison de vos rêves, entre campagne et ville📍 Localisation : Draguignan (83300)📏 Surface : 2 600 m² constructibles⚡ Rare opportunité à saisir rapidement !Demandez une étude gratuite et personnalisée de votre projet de construction !Contactez Manon GUIRAUDOU au (Numéro supprimé) (Villas Prisme – Agence de Brignoles).Prix avec assurance dommages-ouvrage comprise, hors VRD, terrain non viabilisé, frais de notaire non compris, frais divers non compris. Terrain sélectionné et vu pour vous sous réserve de disponibilité et au prix indiqué par notre partenaire foncier. Non mandaté pour la vente du terrain. Visuels non contractuels.Cette annonce a été créée et diffusée avec le logiciel VITAHOME.
Draguignan
TERRAINTerrain plat d'environ 1000 m².Prix : 120000 €.Sur ce terrain de 1000 m² à DRAGUIGNAN, VILLAS PRISME vous propose de réaliser votre projet de construction de maison individuelle.Avec VILLAS PRISME, vous pouvez personnaliser votre projet de maison sur mesure :- Plan et distribution- Système de chauffage au choix- Prestations et équipements selon vos souhaits : carrelages, faïence, menuiseries, salles de bains…- Mode constructif et matériaux selon les normes en vigueur Demandez une étude gratuite et personnalisée de votre projet de construction sur ce terrain à DRAGUIGNAN ! Prix hors frais de notaire. Terrain sélectionné et vu pour vous sous réserve de disponibilité et au prix indiqué par notre partenaire foncier. Non mandaté pour la vente du terrain. Visuels non contractuels.Cette annonce a été créée et diffusée avec le logiciel VITAHOME.
Draguignan
TERRAIN ET MAISONVilla de plain pied composée de 3 chambres avec une baie vitrée de 3 met fenêtre panoramique dans la cuisine.Contactez Eric BONNEAU DESROCHES au (Numéro supprimé) (Villas Prisme – Agence de Fréjus).Prix avec assurance dommages-ouvrage comprise, hors VRD, terrain viabilisé, frais de notaire non compris, frais divers non compris. Terrain sélectionné et vu pour vous sous réserve de disponibilité et au prix indiqué par notre partenaire foncier. Non mandaté pour la vente du terrain. Visuels non contractuels.Cette annonce a été créée et diffusée avec le logiciel VITAHOME.
Draguignan
TERRAINRare sur le secteur !Venez découvrir ce magnifique terrain à bâtir de 2 600 m², situé dans un environnement calme et recherché de Draguignan, à seulement quelques minutes du centre et de toutes commodités.🏡 Atouts du terrain :Superbe superficie : 2 600 m² de terrain plat et exposé plein sudEmprise au sol de 15 %, offrant un large potentiel de construction soit 390 m² de plain-piedPossibilité d’étage sur 30 % de la surface bâtie : idéal pour un projet familial Exposition plein sud : ensoleillement optimal toute la journéeEnvironnement paisible et verdoyant, sans vis-à-visFosse septique à prévoir Accès facile, dans un secteur résidentiel prisé💎 Un cadre exceptionnel pour bâtir la maison de vos rêves, entre campagne et ville📍 Localisation : Draguignan (83300)📏 Surface : 2 600 m² constructibles⚡ Rare opportunité à saisir rapidement !Prix : 220000 €.Sur ce terrain de 2600 m² à DRAGUIGNAN, VILLAS PRISME vous propose de réaliser votre projet de construction de maison individuelle.Avec VILLAS PRISME, vous pouvez personnaliser votre projet de maison sur mesure :- Plan et distribution- Système de chauffage au choix- Prestations et équipements selon vos souhaits : carrelages, faïence, menuiseries, salles de bains…- Mode constructif et matériaux selon les normes en vigueur Demandez une étude gratuite et personnalisée de votre projet de construction sur ce terrain à DRAGUIGNAN ! Prix hors frais de notaire. Terrain sélectionné et vu pour vous sous réserve de disponibilité et au prix indiqué par notre partenaire foncier. Non mandaté pour la vente du terrain. Visuels non contractuels.Cette annonce a été créée et diffusée avec le logiciel VITAHOME.
Draguignan
TERRAIN ET MAISONA DRAGUIGNAN sur un terrain de 2187 m², VILLAS PRISME vous propose de réaliser votre projet de construction de maison individuelle d'une surface de 124 m² habitables avec 4 chambres.Avec VILLAS PRISME, vous pouvez personnaliser votre projet de maison sur mesure :- Plan et distribution- Système de chauffage au choix- Prestations et équipements selon vos souhaits : carrelages, faïence, menuiseries, salles de bains…- Mode constructif et matériaux selon les normes en vigueur Rare sur le secteur !Venez découvrir ce magnifique terrain à bâtir de 2 187 m², situé dans un environnement calme et recherché de Draguignan, à seulement quelques minutes du centre et de toutes commodités.🏡 Atouts du terrain :Superbe superficie : 2 187 m² de terrain plat et exposé plein sudEmprise au sol de 15 %, offrant un large potentiel de construction soit 328 m² de plain-piedPossibilité d’étage sur 30 % de la surface bâtie : idéal pour un projet familial Exposition plein sud : ensoleillement optimal toute la journéeEnvironnement paisible et verdoyant, sans vis-à-visFosse septique à prévoir Accès facile, dans un secteur résidentiel prisé💎 Un cadre exceptionnel pour bâtir la maison de vos rêves, entre campagne et ville📍 Localisation : Draguignan (83300)📏 Surface : 2 187 m² constructibles⚡ Rare opportunité à saisir rapidement !Demandez une étude gratuite et personnalisée de votre projet de construction !Contactez Manon GUIRAUDOU au (Numéro supprimé) (Villas Prisme – Agence de Brignoles).Prix avec assurance dommages-ouvrage comprise, hors VRD, terrain non viabilisé, frais de notaire non compris, frais divers non compris. Terrain sélectionné et vu pour vous sous réserve de disponibilité et au prix indiqué par notre partenaire foncier. Non mandaté pour la vente du terrain. Visuels non contractuels.Cette annonce a été créée et diffusée avec le logiciel VITAHOME.
Lorgues
TERRAIN83510 – LORGUES – QUARTIER CALME et NATUREL- TERRAIN CONSTRUCTIBLE – 753.0 M² – BELLE OPPORTUNITÉ À SAISIR!efficity, l’agence qui estime votre bien en ligne, vous propose ce terrain VIABILISE constructible de 725 m2 avec une surface utile de 576 m2 et une surface plancher de 135 m2Il est idéalement situé Proche du centre ville et des installations sportives, dans un nouveau petit lotissement.Dans un environnement calme et paisible jonché d’oliviers, son exposition Sud Sud-Est garantit une luminosité optimale tout au long de la journée. Les informations sur les risques auxquels ce bien est exposé sont disponibles sur le site Georisque : georisques. gouv. fr Gregory Pierret – EI – est Agent Commercial mandataire en immobilier, immatriculé au Registre Spécial des Agents Commerciaux du Tribunal de Commerce de draguignan sous le n(Numéro supprimé).Siège social du mandant : effiCity, 48 avenue de Villiers – 75017 PARIS – Société par Actions Simplifiée, société au capital de 132 373,05 euros, immatriculée au RCS Paris 497 617 746 et titulaire de la Carte professionnelle CPI 7501 2015 000 002 025 – CCI Paris IDF – Caisse de Garantie : GALIAN Assurances 89 rue de la Boétie 75008 Paris
Draguignan
TERRAINProjet de construction à DraguignanÀ seulement 5 minutes du centre ville de Draguignan, venez découvrir ce beau terrain constructible de 1654m². Situé dans un environnement paisible, ce terrain vous offre un cadre campagne tout en restant à 5 minutes des commerces, des écoles et services de la villeIl réunit de nombreux atouts pour concrétiser votre projet :- 2 beaux plateaux pour construire et aménager votre future maison en toute simplicité.- Grâce à sa position dominante, vous profiterez d’une jolie vue dégagée sur la ville.- Avec ses 1654m², vous aurez l’espace nécessaire pour créer une villa confortable, avec jardin paysager et piscine.- Les viabilités à proximité (eau, EDF, tout-à-l’égout) facilitent le lancement rapide de votre projet de construction.- Idéal pour un projet familiale. L’emprise au sol de 248m² permet d’y projeter un beau projet de construction .Ce terrain rare à la vente conjugue praticité et authenticité. Il constitue l’opportunité idéale pour bâtir votre villa sur mesure.Pour tous renseignements et une étude personnalisée de votre projet de construction, contactez Véronique Chauvet au (Numéro supprimé).Maisons France Confort agence de Trans en Provence, constructeur de maisons individuelles leader en France. Entreprise familiale fondée en 1919.
Ampus
TERRAINSecteur DRAGUIGNAN… Votre conseiller Propriétés-privées.com Stéphan LEVASSEUR vous propose ce Projet de DIVISION de 5 LOTS à Bâtir de 990 m² chacun sur une parcelle totale de 5626 m² exposition en zone AUd et AUcr exposé sud Est – Vue panoramiqueEn 1AUd : l’emprise maximale au sol des constructions et de leurs annexes est fixée à 15% et 7 m de hauteur sur 3 projets et 3,50 m sur les 2 autres projets. Toitures : Elles sont simples, généralement à 2 pentes opposées ; la pente doit être sensiblement identique à celle des constructions avoisinantes et ne devra en aucun cas dépasser 30%.1AUcr: Les constructions devront être édifiées à une distance de la limite séparative au moins égale à la moitié de la hauteur du bâtiment, mesurée à l’égout du toit, avec un minimum de 4 mètres.Prix : 450 000 euros ( honoraires charge vendeur) DPE NON SOUMIS – Montant moyen estimé des dépenses annuelles d’énergie pour un usage standard établi à partir des prix de l’énergie de l’année 2022 ( 0 à 0 euros ) ?Les informations sur les risques auxquels ce bien est exposé sont disponibles sur le site Géorisques (Lien supprimé)’. Pour visiter et vous accompagner dans votre projet contactez Stéphan LEVASSEUR agissant sous le statut d’agent commercial auprès de la SAS PROPRIETES PRIVEES, au (Numéro supprimé) ou professionnel garantit et sécurise votre projet immobilier. SAS PROPRIETES PRIVEES, 44 Allée des cinq continents, Bâtiment C, ZAC le Chêne Ferré, 44120 VERTOU, Carte professionnelle CPI 4401 2016 000 010 388 CCI Nantes Saint-Nazaire par courriel à (Email supprimé). RSAC 451 793 319 Draguignan Mandat réf : 348 269 LVS – Le professionnel garantit et sécurise votre projet immobilier. SAS PROPRIETES PRIVEES, 44 Allée des cinq continents, Bâtiment C, ZAC le Chêne Ferré, 44120 VERTOU, Carte professionnelle CPI 4401 2016 000 010 388 CCI Nantes-Saint Nazaire Stéphan LEVASSEUR (EI) Agent Commercial – Numéro RSAC : DRAGUIGNAN 451793319 – .
L’actualité immobilière à Flayosc
27/11/2023
02/11/2023
30/10/2023
20/10/2023
16/10/2023
16/10/2023