Maison à construire à Fréjus (83600)
Images
Description
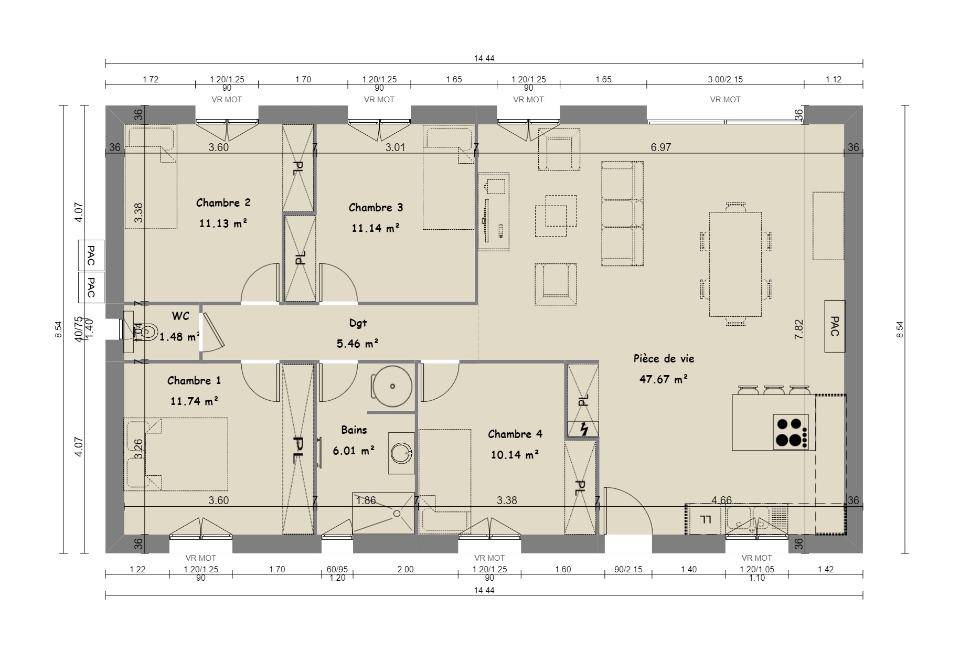
VENTE : maison T5 (105 m²) à Fréjus
IDÉALEMENT SITUÉE - MAISON 5 PIÈCES NEUVE
Sur le littoral méditerranéen, Maisons France Confort Fréjus vous propose cette maison de 5 pièces de plain-pied de 105 m² et de 717 m² de terrain idéalement située dans Fréjus (83600). Conçue de plain-pied, elle comporte quatre chambres, une cuisine et une salle de bains.
Cette maison est neuve.
La maison se situe dans un quartier prisé. Des établissements scolaires du primaire et du secondaire sont implantés à moins de 10 minutes en voiture, tout comme six crèches à moins de 10 minutes à pied. Niveau transports en commun, il y a quatre gares à moins de 10 minutes en voiture. On trouve un accès à l'autoroute A8 à 4 km. On trouve quatre bibliothèques, des tennis, quatre bassins de natation, un bowling, quatre ports de plaisance, des commerces, des supermarchés, des boulangeries, des épiceries et des supérettes à proximité de la maison. Enfin, 2 marchés animent les environs.
Elle est proposée à l'achat pour 415 000 €. Hors frais de notaire, de raccordements et d'adaptation au sol.
Contactez Fabrice DI GREGORIO (tél : (Numéro supprimé)) pour toute information sur la maison, sur les démarches à suivre ou sur les modalités de vente. Maisons France Confort Fréjus vous accompagne dans tous vos projets immobiliers et à toutes les étapes de votre projet.
Logement susceptibles de vous intéresser
Nous vous proposons de découvrir aussi cette sélection de logements situés à moins de 10km de Fréjus et qui seraient susceptibles de vous intéresser.

Les Adrets-de-l'Estérel
TERRAINTerrain à vendre – 1 516 m² – 345 000 € PCA MAISONS vous propose un terrain Situé dans un domaine sécurisé, ce magnifique terrain plat de 1 516 m² offre un cadre privilégié avec une vue dégagée sur les collines environnantes.Déjà viabilisé, il représente une belle opportunité pour concrétiser votre projet de construction dans un environnement paisible et recherché. Points forts :Superficie généreuse de 1 516 m²Terrain plat, facile à aménagerDomaine sécuriséVue imprenable sur les collinesViabilisé, prêt à bâtir Prix : 345 000 €Pour plus d’information vous pouvez nous contacter au (Numéro supprimé) ou au (Numéro supprimé)Annonce proposée par un Agent Commercial Partenaire.

Les Adrets-de-l'Estérel
TERRAIN ET MAISONprojet de maisons RE2020 +Terrassement 669 000€ *hors frai de notaire *PCA MAISONS vous propose un terrain Situé dans un domaine sécurisé, ce magnifique terrain plat de 1 516 m² offre un cadre privilégié avec une vue dégagée sur les collines environnantes.Déjà viabilisé, il représente une belle opportunité pour concrétiser votre projet de construction dans un environnement paisible et recherché. Points forts :Superficie généreuse de 1 516 m²Terrain plat, facile à aménagerDomaine sécuriséVue imprenable sur les collinesViabilisé, prêt à bâtir Prix : 669 000 €Pour plus d’information vous pouvez nous contacter au (Numéro supprimé) ou au (Numéro supprimé) Annonce proposée par un Agent Commercial Partenaire.

Puget-sur-Argens
TERRAINProjet de construction à Puget sur ArgensMaisons France Confort agence de Trans en Provence, vous propose un projet de construction d’une villa individuelle de plain-pied ou à étage sur ce beau plat de 1055m² situé dans un environnement calme bénéficiant d’une exposition plein sud.Localisation privilégiée : profitez d’un cadre campagne tout en restant proche des commodités et des grands axes (autoroute A8 accessible rapidement)Terrain prêt à bâtir : toutes les viabilités (eau, électricité, tout-à-l’égout) sont en bordure du terrain, facilitant le démarrage rapide de votre projet de construction.Faites construire la maison qui vous ressemble avec Maisons France Confort, 1er constructeur de maisons individuelles en France.Pour tous renseignements et une étude personnalisée, contactez Véronique Chauvet au (Numéro supprimé).Maisons France Confort agence de Trans en Provence. Constructeur de maisons individuelles leader en France. Entreprise familiale fondée en 1919.

Puget-sur-Argens
TERRAINTerrain à PUGET SUR ARGENS! Dernier terrain disponible!superficie 628m2 emprise au sol 157m2 piscine possibleIl s’agit d’un lotissement de 13 lots! celui ci est le dernier !Viabilisés et relié au Tout à l’égout. Axe autoroute à 5 min! écoles, collège, commerces à proximitéCe terrain est a coté de la zone naturelle, balade au pied de votre maison. N’hésitez pas à me contacter au (Numéro supprimé), Noémie COUTIAUX Maisons de manon, groupe HEXAOM

Bagnols-en-Forêt
TERRAINGrande parcelle de 1381m² située sur les hauteurs de Bagnols en Forêt.A seulement 20 minutes des plages de la côte d’azur, 12 minutes de l’autoroute A8, 45 minutes de Cannes et moins d’une heure de l’aéroport de Nice, ce magnifique village provençal prisé offre un cadre de vie privilégié, alliant calme, qualité de vie et proximité du littoral, tout en bénéficiant d’un accès rapide aux grands axes et pôles d’activités majeures de la région.Ce terrain bénéficie de la proximité d’un petit centre commercial, station service, pôle médical ainsi que des écoles, commerces et restaurants.L’avantage pour les familles, un arrêt de bus se trouve à proximité immédiate, assurant un accès pratique et sécurisé aux élèves de l’école primaire au lycée.Ce superbe terrain se trouve au coeur d’un parc de 31 000 m² en position dominante. Il bénéficie d’un vaste dégagement et offre une belle vue dégagée ainsi qu’une exposition plein sud.Il est complanté d’une belle oliveraie et de pins, assurant un cadre de vie paisible, naturel et résidentiel.Ce superbe terrain est à vendre pour la somme de 170 000 €. Prenez contact avec notre agence (Fabrice DI GREGORIO : (Numéro supprimé)) pour toute question sur le terrain ou sur les modalités de vente. Donnez vie à vos projets immobiliers avec Maisons France Confort Fréjus.

Fréjus
TERRAINGrande parcelle de 2074m² située sur les hauteurs de Bagnols en Forêt.A seulement 20 minutes des plages de la côte d’azur, 12 minutes de l’autoroute A8, 45 minutes de Cannes et moins d’une heure de l’aéroport de Nice, ce magnifique village provençal prisé offre un cadre de vie privilégié, alliant calme, qualité de vie et proximité du littoral, tout en bénéficiant d’un accès rapide aux grands axes et pôles d’activités majeures de la région.Ce terrain bénéficie de la proximité d’un petit centre commercial, station-service, pôle médical ainsi que des écoles, commerces et restaurants.L’avantage pour les familles, un arrêt de bus se trouve à proximité immédiate, assurant un accès pratique et sécurisé aux élèves de l’école primaire au lycée.Ce superbe terrain se trouve au coeur d’un parc de 31 000 m² en position dominante. Il bénéficie d’un vaste dégagement et offre une belle vue dégagée ainsi qu’une exposition plein sud.Il est complanté d’une belle oliveraie et de pins, assurant un cadre de vie paisible, naturel et résidentiel.Ce superbe terrain est à vendre pour la somme de 250 000 €. Prenez contact avec notre agence (Fabrice DI GREGORIO : (Numéro supprimé)) pour toute question sur le terrain ou sur les modalités de vente. Donnez vie à vos projets immobiliers avec Maisons France Confort Fréjus.

Saint-Raphaël
TERRAINTerrain de 1 105 m² à vendre à Saint RaphaelQUARTIER RECHERCHÉ proximité immédiate des commercesGrand terrain plat à moins de 10mn de la mer Méditerranée à Saint Raphael (83700). Il donne sur des espaces verts et bénéficie d’une exposition sud dans un secteur attractif. Le terrain situé dans un quartier convoité est proche des commerces et des écoles. Les écoles (de la maternelle au lycée) sont implantées à moins de 5 minutes en voiture, tout comme six crèches à moins de 10 minutes à pied. Niveau transports, on trouve la gare à moins de 5 minutes en voiture. L’autoroute A8 est accessible en 10mn. Toutes les commodités et les activités d’une ville dynamique et à taille humaine sont accessibles rapidement.Ce terrain est proposé à l’achat pour 480 000 €. Contactez notre agence (Fabrice DI GREGORIO : (Numéro supprimé)) pour plus de renseignements sur le terrain ou sur les modalités de vente. Concrétisez vos projets immobiliers avec Maisons France Confort Fréjus.

Saint-Raphaël
TERRAINTerrain de 1 100 m² à vendre à Saint RaphaelQUARTIER RECHERCHÉ proximité immédiate des commercesGrand terrain plat à moins de 10mn de la mer Méditerranée à Saint Raphael (83700). Il donne sur des espaces verts et bénéficie d’une exposition sud dans un secteur attractif. Le terrain situé dans un quartier convoité est proche des commerces et des écoles. Les écoles (de la maternelle au lycée) sont implantées à moins de 5 minutes en voiture, tout comme six crèches à moins de 10 minutes à pied. Niveau transports, on trouve la gare à moins de 5 minutes en voiture. L’autoroute A8 est accessible en 10mn. Toutes les commodités et les activités d’une ville dynamique et à taille humaine sont accessibles rapidement.Ce terrain est proposé à l’achat pour 450 000 €. Contactez notre agence (Fabrice DI GREGORIO : (Numéro supprimé)) pour plus de renseignements sur le terrain ou sur les modalités de vente. Concrétisez vos projets immobiliers avec Maisons France Confort Fréjus.

Fréjus
TERRAINNOUVEAU : Terrains à bâtir à Fréjus, Quartier Sainte-Brigitte. Découvrez Domaine ROSEA, un nouveau programme immobilier situé à la sortie de Fréjus, dans le quartier recherché de Sainte-Brigitte. Ce lotissement intimiste de 19 terrains à bâtir vous offre une opportunité rare de construire la maison de vos rêves dans un environnement calme, verdoyant et parfaitement connecté. Le Domaine ROSEA bénéficie d’une accessibilité optimale avec la gare de péage de l’A8 à 2min, permettant de rejoindre Cannes, Nice et Toulon en moins d’1h. Le centre-ville de Fréjus est accessible en 10min, les plages sont à 15min, et la gare SNCF se trouve à proximité. Les commodités sont nombreuses: crèches, écoles primaires et collèges dans un rayon de 5 km, commerces, supermarchés, pharmacies, centres médicaux et hôpital intercommunal à moins de 15min. Les terrains sont plats et bien en retrait de la route, garantissant une tranquillité maximale. Le lotissement sera entièrement clôturé et s’inscrit dans un environnement naturel préservé, avec des espaces boisés à proximité. Vous bénéficiez du libre choix du constructeur et les parcelles sont viabilisées et prêtes à bâtir. Domaine ROSEA est situé à proximité des principaux bassins d’emploi de Fréjus-St Raphael, Puget-sur-argens et Sophia-Antipolis. Pour toutes informations complémentaires, prenez contact avec nous !
L’actualité immobilière à Fréjus





