Maison à construire à Hyères (83400)
Images
Description
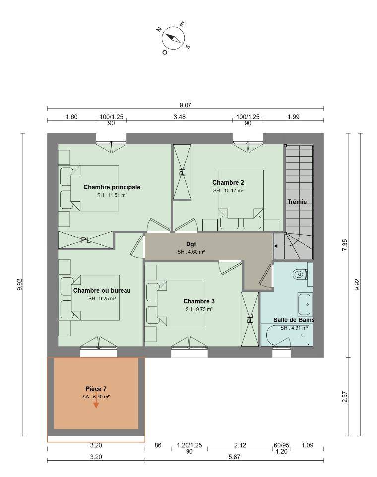
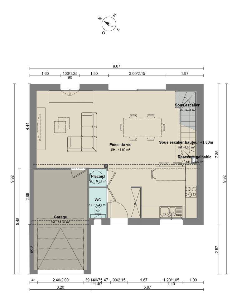
✨ Votre Future Maison RE2020 : Luxe, Confort et Centre-Ville à Hyères !
Projet Exclusif Maisons de Manon (Groupe Hexaom) | Terrain + Maison 4 Ch. + Piscine Possible
Imaginez : vivre dans une maison neuve, répondant aux dernières normes d'économie d'énergie (RE2020), avec un extérieur privatif, et tout cela, au coeur du nouveau centre-ville de Hyères. Ce rêve est désormais à portée de main !
UN EMPLACEMENT IDEAL ET PRATIQUE :
Centre-ville dynamique, quartier en plein essor, offrant une vie sans voiture.
Toutes les commodités (écoles, commerces, transports) accessibles immédiatement à pied.
LA MAISON PARFAITE :
Ce projet de construction sur mesure, proposé par Maisons de Manon (Groupe Hexaom), synonyme de qualité et de professionnalisme, vous propose :
Surface et Agencement : Une maison à étage parfaitement optimisée sur 250 M² de terrain.
4 Chambres, idéale pour une famille.
Garage Intégré : Pour stationner votre véhicule en toute sécurité et créer un espace de rangement précieux.
Performance et Économie : Une construction RE2020 garantissant un confort thermique optimal en été comme en hiver, et des charges énergétiques minimales.
L'ATOUT MAJEUR : VOTRE ESPACE EXTÉRIEUR ZEN
Malgré la centralité, votre futur foyer bénéficie d'un extérieur conçu pour la détente :
Petit Jardin Privatif facile à entretenir.
Possibilité de Piscine : Un bassin de moins de - de 10m² (souvent exempté de lourdes formalités) pour profiter des journées ensoleillées et créer une véritable oasis de fraîcheur.
Le Meilleur des Deux Mondes : La Ville Sans les Contraintes de l'Appartement.
Ne vous contentez plus d'un appartement ancien et énergivore. Optez pour le confort, le prestige et la sérénité d'une maison neuve, réalisée par un constructeur de confiance, pour un prix souvent comparable.
Il s'agit d'une opportunité très rare à Hyères. Contactez sans attendre l'équipe Maisons de Manon pour explorer les plans et concrétiser ce projet de vie exceptionnel.
Annonce proposée
Logement susceptibles de vous intéresser
Nous vous proposons de découvrir aussi cette sélection de logements situés à moins de 10km de Hyères et qui seraient susceptibles de vous intéresser.
Hyères
TERRAINproche des commoditésplat et viabiliséemprise au sol de 201m² , possibilité de plain piedPrix : 285000 €.Sur ce terrain de 414 m² à HYERES, VILLAS PRISME vous propose de réaliser votre projet de construction de maison individuelle.Avec VILLAS PRISME, vous pouvez personnaliser votre projet de maison sur mesure :- Plan et distribution- Système de chauffage au choix- Prestations et équipements selon vos souhaits : carrelages, faïence, menuiseries, salles de bains…- Mode constructif et matériaux selon les normes en vigueur Demandez une étude gratuite et personnalisée de votre projet de construction sur ce terrain à HYERES ! Prix hors frais de notaire. Terrain sélectionné et vu pour vous sous réserve de disponibilité et au prix indiqué par notre partenaire foncier. Non mandaté pour la vente du terrain. Visuels non contractuels.Cette annonce a été créée et diffusée avec le logiciel VITAHOME.
Hyères
TERRAIN ET MAISONA HYERES sur un terrain de 414 m², VILLAS PRISME vous propose de réaliser votre projet de construction de maison individuelle d'une surface de 95 m² habitables avec 3 chambres.Avec VILLAS PRISME, vous pouvez personnaliser votre projet de maison sur mesure :- Plan et distribution- Système de chauffage au choix- Prestations et équipements selon vos souhaits : carrelages, faïence, menuiseries, salles de bains…- Mode constructif et matériaux selon les normes en vigueur Informations du terrain : plat et viabilisé, proche de toutes les commoditésemprise au sol de 201m² , possibilité de plain piedDemandez une étude gratuite et personnalisée de votre projet de construction !Contactez Odile CHARLANNES au (Numéro supprimé) (Villas Prisme – Agence de La Valette).Prix avec assurance dommages-ouvrage comprise, hors VRD, terrain viabilisé, frais de notaire non compris, frais divers non compris. Terrain sélectionné et vu pour vous sous réserve de disponibilité et au prix indiqué par notre partenaire foncier. Non mandaté pour la vente du terrain. Visuels non contractuels.Cette annonce a été créée et diffusée avec le logiciel VITAHOME.
Hyères
TERRAINHyères Les Palmiers, proche centre ville, idéalement situé, nous vous proposons ce superbe terrain plat de 255m2 pouvant recevoir une maison de plain pieds ou à étage, viabilisé, au prix de 225 000 euros.Proximité du centre ville, des écoles, des commerces, des axes routiers et des centres médicaux, font de cet emplacement privilégié un compromis idéal pour votre future maison.Renseignements auprès de Patrice ANDREANI Maisons de Manon La Crau (Numéro supprimé).Annonce proposée par un Agent Commercial Partenaire.
Hyères
TERRAIN ET MAISON✨ Votre Future Maison RE2020 : Luxe, Confort et Centre-Ville à Hyères !Projet Exclusif Maisons de Manon (Groupe Hexaom) | Terrain + Maison 4 Ch. + Piscine PossibleImaginez : vivre dans une maison neuve, répondant aux dernières normes d’économie d’énergie (RE2020), avec un extérieur privatif, et tout cela, au coeur du nouveau centre-ville de Hyères. Ce rêve est désormais à portée de main !UN EMPLACEMENT IDEAL ET PRATIQUE :Centre-ville dynamique, quartier en plein essor, offrant une vie sans voiture.Toutes les commodités (écoles, commerces, transports) accessibles immédiatement à pied.LA MAISON PARFAITE :Ce projet de construction sur mesure, proposé par Maisons de Manon (Groupe Hexaom), synonyme de qualité et de professionnalisme, vous propose :Surface et Agencement : Une maison à étage parfaitement optimisée sur 250 M² de terrain.4 Chambres, idéale pour une famille.Garage Intégré : Pour stationner votre véhicule en toute sécurité et créer un espace de rangement précieux.Performance et Économie : Une construction RE2020 garantissant un confort thermique optimal en été comme en hiver, et des charges énergétiques minimales.L’ATOUT MAJEUR : VOTRE ESPACE EXTÉRIEUR ZENMalgré la centralité, votre futur foyer bénéficie d’un extérieur conçu pour la détente :Petit Jardin Privatif facile à entretenir.Possibilité de Piscine : Un bassin de moins de – de 10m² (souvent exempté de lourdes formalités) pour profiter des journées ensoleillées et créer une véritable oasis de fraîcheur.Le Meilleur des Deux Mondes : La Ville Sans les Contraintes de l’Appartement.Ne vous contentez plus d’un appartement ancien et énergivore. Optez pour le confort, le prestige et la sérénité d’une maison neuve, réalisée par un constructeur de confiance, pour un prix souvent comparable.Il s’agit d’une opportunité très rare à Hyères. Contactez sans attendre l’équipe Maisons de Manon pour explorer les plans et concrétiser ce projet de vie exceptionnel.Annonce proposée
Hyères
TERRAIN🏡 Terrain + Construction neuve à Giens – À moins de 100m de la mer 🌊Nous vous proposons un projet rare :Terrain avec permis de construire déjà obtenuMaison neuve aux normes RE2020Situation exceptionnelle, à deux pas de la merUn cadre idéal pour :Résidence secondaireRetraite au soleilInvestissement patrimonial rentableTélétravail dans un environnement unique#MaisonsDeManon #ConstructionNeuve #RE2020 #Giens #PresquileDeGiens #Var #Immobilier #Investissement #ResidenceSecondaire #Retraite #Teletravail #Mer #Bateau #AeroportHyèresÀ proximité immédiate : la mer, les plages, le port, l’aéroport de Hyères et toutes commodités.Construction sécurisée avec Maisons de Manon – Groupe Hexaom (n°1 national).Annonce proposée par un Agent Commercial Partenaire.
Hyères
TERRAIN ET MAISON📜 Le Grimoire des Opportunités Rares Révèle un Secret ! 🗝️Vous cherchez la perle rare, celle que l’on ne trouve que les soirs de pleine lune ? Arrêtez votre quête : nous avons exhumé une parcelle magique sur l’envoûtante Presqu’île de Giens.Loin des potions et des sortilèges bon marché, nous vous proposons un plan infaillible pour faire apparaître une Bastide majestueuse de 135 m². Une demeure conçue pour s’ancrer avec respect et harmonie dans ce paysage si précieux, qu’il semble gardé par les esprits bienveillants de la Méditerranée.Cette maison n’a rien d’une masure abandonnée ! Ses prestations sont ensorcelantes de luxe et rappellent les plus nobles châteaux provençaux, tout en bénéficiant de technologies si modernes qu’elles feraient passer la baguette d’un sorcier pour un simple bout de bois.Orientée pour capter chaque rayon du soleil des vivants, elle offre des volumes généreux et lumineux, des finitions d’une qualité spectrale (dans le bon sens du terme !) et une connexion si parfaite avec la nature environnante que vous vous demanderez si ce n’est pas un rêve.Attention : Cette opportunité est aussi éphémère qu’un fantôme au petit matin. Ne laissez pas cette chance de construire votre sanctuaire de Giens s’envoler ! 👻Annonce proposée par un Agent Commercial Partenaire.
Hyères
TERRAIN🏡 L’Opportunité Unique d’une Maison Neuve au Coeur de Hyères !Terrain RARE | Quartier Nouveau | Toutes Commodités à PiedOubliez la promiscuité et les charges de copropriété d’un appartement. Saisissez l’opportunité de construire VOTRE MAISON en plein centre-ville de Hyères, pour un budget souvent équivalent !Situé dans le quartier nouveau très recherché de Hyères, cet emplacement combine dynamisme urbain et sérénité.Profitez d’un accès immédiat à toutes les commodités : commerces, écoles, transports, marché… Tout se fait à pied ! Une qualité de vie inégalable.Superficie idéale : Environ 250 m² vous offrant l’espace nécessaire pour un projet ambitieux sans les contraintes d’un grand entretien.Projet clé en main : Une étude de construction vous permet d’envisager une magnifique maison individuelle de 4 chambres avec un garage privatif. Imaginez : des volumes neufs, des finitions personnalisées, et un extérieur à votre goût.Mieux qu’un appartement : Pour un prix comparable, vous bénéficiez d’une indépendance totale, de l’absence de frais de syndic, et d’un bien conçu selon les dernières normes (RT2012/RE2020), synonyme d’économies d’énergie.C’est le moment d’investir dans votre avenir et votre qualité de vie !Ne laissez pas passer ce terrain constructible, une véritable denrée rare au coeur de Hyères. Il représente l’équilibre parfait entre la vie de ville et le confort d’une maison neuve.Contactez-nous sans tarder pour obtenir le dossier complet, les plans potentiels et concrétiser votre rêve de propriété au centre de Hyères.Agence Maisons de Manon La Crau/La Moutonne Agence Maisons de Manon La Crau/La MoutonneAnnonce proposée par un Agent Commercial Partenaire.
Carqueiranne
TERRAIN ET MAISONAnnonce proposée par un Agent Commercial Partenaire.
Hyères
TERRAINUn coin de paradis pour votre future maisonLaissez-vous séduire par l’opportunité unique de vivre sur la presqu’île de Giens. Nichée au coeur d’un environnement idyllique et préservé sur la Côte d’Azur, cette presqu’île est le lieu rêvé pour construire la maison de vos rêves.Imaginez-vous vivre dans un cadre de vie exceptionnel, où chaque jour rime avec évasion. Entre le village de Giens, les plages de sable fin de l’Almanarre et de la Badine, et les salins, la nature est omniprésente. Les passionnés de sports et de loisirs nautiques trouveront leur bonheur : kite-surf, planche à voile, paddle, plongée… Les possibilités sont infinies dans ce véritable paradis.Nous vous proposons un projet de construction de maison sur mesure, alliant confort, modernité et respect de l’environnement. Nos maisons sont conçues selon la norme RE2020, garantissant une performance énergétique optimale. En choisissant Maisons de Manon, filiale du 1er constructeur national Hexaom, vous bénéficiez de toutes les garanties et de l’expertise d’un groupe reconnu.#terrainconstructibleGiens #maisonneuveGiens #programmeneufpresquîledeGiens #construiremaisonborddemer #maisonRE2020Côted’Azur #vivreauborddeleau #terrainavecdroitaconstruire #immobilierpresquîledeGiens #maisonindividuelleborddemer #constructeurmaisonVar #projetdeconstructionborddemer #maisonavecveduemer #vivredanslesuddeLaFrance #achetermaisondevacancesGiens #construiresamaisonsurmesureChristelle Bongini (Numéro supprimé)Annonce proposée par un Agent Commercial Partenaire.
L’actualité immobilière à Hyères
27/11/2023
02/11/2023
30/10/2023
20/10/2023
16/10/2023
16/10/2023