Maison à construire à La Motte (83920)
Images
Description
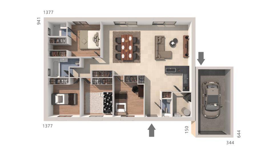
Les Maisons de Manon de Callian vous propose sur ce terrain diverses réalisations possible notamment notre nouveau modèle de 110m² de plain pieds entièrement personnalisable. Il dispose de quatre chambres dont une suite parentale avec salle d'eau, une salle de bain, deux WC, un cellier attenant à un garage accolé ainsi qu'une belle pièce orienté sud avec cuisine ouverte à partir de 575 000€TTC (Incluant: le terrain, les frais de notaire, viabilités, devis terrassier pour frais annexes, hors cuisine, hors peinture intérieur, garage et terrasse en option). Vous disposerez de nombreuses prestations de qualités, carrelage grand format, WC suspendu, chauffage réversible, domotique...et d'un réel accompagnement tout au long du projet. Pour plus d'informations contactez votre conseiller commercial des Maisons de Manon de Callian Mr Maugras Alexandre au (Numéro supprimé)
Annonce proposée par un Agent Commercial Partenaire.
Logement susceptibles de vous intéresser
Nous vous proposons de découvrir aussi cette sélection de logements situés à moins de 10km de La Motte et qui seraient susceptibles de vous intéresser.
Figanières
TERRAINTerrain constructible à Figanières 401 m² Emplacement privilégiéVotre conseiller Julie Claudel, conseillère experte immobilier à Draguignan et alentours, vous présente un terrain rare à la vente, idéal pour un projet de maison familiale au calme, à deux pas du village.Emplacement- A 400 m du centre de Figanières- Quartier résidentiel calme et très recherché- Exposition plein sud pour un ensoleillement optimal- Village provençal authentique, à proximité de DraguignanCaractéristiques du terrain- Surface totale: 401 m²- Libre de constructeur: choisissez vos artisans en toute liberté- Sans copropriété: aucune contrainte de règlement- Viabilités en bordure: eau, électricité, tout?à?l’égoutPotentiel de construction- Construction à étage autorisée- Empreinte au sol possible: environ 80 m² hors garage- Idéal pour une maison familiale avec jardin- Bassin de rétention à prévoir: 10 m³Points forts- Opportunité rare sur le secteur- Ensoleillement toute la journée- Village vivant à l’année- Proche commodités et axes de communicationPourquoi ce terrainUn cadre de vie serein, une exposition parfaite, la liberté de concevoir votre maison, et toutes les viabilités déjà en bordure: un vrai gain de temps et de budget pour démarrer votre projet dans les meilleures conditions.PRIX : 99 000 euros honoraire inclusPour une visite et l’étude de votre projet:- Julie Claudel (Numéro supprimé)- (Email supprimé)Selon l’article L.561.5 du Code Monétaire et Financier, pour l’organisation de la visite, la présentation d’une pièce d’identité vous sera demandée.Cette présente annonce a été rédigée sous la responsabilité éditoriale de Julie CLAUDEL agissant sous le statut d’agent commercial immatriculé au RSAC 914156294 auprès de SAS PROPRIETES PRIVEES, au capital de 44 920 euros, ZAC LE CHÊNE FERRÉ – 44 ALLÉE DES CINQ CONTINENTS 44120 VERTOU; SIRET 487 624 777 00040, RCS Nantes. Carte Professionnelle Transactions sur immeubles et fonds de commerce (T) et Gestion immobilière (G) n°CPI 4401 2016 000 010 388 délivrée par la CCI Nantes – Saint Nazaire. Compte séquestre n(Numéro supprimé)67 BPA SAINT-SEBASTIEN-SUR-LOIRE (44230). Garantie GALIAN-SMABTP – 89 rue de la Boétie, 75008 Paris – n°28137 J pour 2 000 000 euros pour T et 120 000 euros pour G. Assurance responsabilité civile professionnelle par GALIAN-SMABTP n° de police 28137.JMandat réf : 419421 – Le professionnel garantit et sécurise votre projet immobilier. Julie CLAUDEL (EI) Agent Commercial – Numéro RSAC : 914156294 – .
Trans-en-Provence
TERRAINNOUVEAU Terrain à vendre sur la commune de Trans en Provence – Contact : NICOLAS ISELI – (Numéro supprimé)Lot n°6 d’un petit lotissement en cours d’aménagement- Surface de la parcelle : 754 m²- Potentiel constructible : 120m² de surface plancher- Potentiel d’emprise au sol : 264 m²- Terrain viabilisé avec raccordement au Tout-à-l’égout- Belle exposition, quartier calme et résidentielD’autre lots sont à la vente, à partir de 139000€Un cadre idéal pour concrétiser votre projet de construction avec Maisons de ManonPour plus de renseignements, une étude et un accompagnement personnalisés contactez : NICOLAS ISELI – (Numéro supprimé)
Callas
TERRAINVous découvrirez un terrain constructible de 1 742 m², situé dans le quartier paisible de Saint-Laurent à Callas, dans le Var. Ce bien vous offre une vue panoramique exceptionnelle, un atout indéniable pour la construction de votre future maison.Un permis de construire est déjà accordé pour une maison de 145 m² avec une possibilité d’extension jusqu’à 261 m², s’adaptant ainsi à vos besoins. L’étude géotechnique G1 a été réalisée et confirme l’absence de contraintes, ce qui vous permettra de débuter votre projet en toute sérénité. Ce terrain est classé en zone UCr2, rendant divers projets résidentiels compatibles.Vous apprécierez le cadre calme et verdoyant qui entoure ce terrain, idéal pour y établir votre résidence principale ou secondaire. A proximité, vous trouverez des commodités telles que des commerces, des écoles ainsi que des espaces verts qui favoriseront une qualité de vie optimale pour vous et votre famille.Pour les déplacements, plusieurs moyens de transport sont facilement accessibles. La gare la plus proche est située à seulement 15 minutes en voiture, vous permettant de rejoindre rapidement certaines villes environnantes. Le quartier est également bien desservi par les transports en commun pour une plus grande commodité.Le prix de ce bien est de 169 500 euros, avec des honoraires à la charge du vendeur. Pour plus d’informations ou pour organiser une visite, n’hésitez pas à contacter Julie Claudel, agent commercial.Cette annonce a été rédigée sous la responsabilité de Julie Claudel, agent commercial immatriculé au RSAC, garantissant la sécurité et la fiabilité de votre projet immobilier. Votre avenir commence ici, dans ce cadre idyllique et propice à vos aspirations.Prix : 169 500 euros (honoraires à la charge du vendeur)Contactez Julie CLAUDEL au (Numéro supprimé)Pour visiter et vous accompagner dans votre projet, contactez Julie CLAUDEL, au (Numéro supprimé) ou, par courriel à (Email supprimé).Selon l’article L.561.5 du Code Monétaire et Financier, pour l’organisation de la visite, la présentation d’une pièce d’identité vous sera demandée.Cette présente annonce a été rédigée sous la responsabilité éditoriale de Julie CLAUDEL agissant sous le statut d’agent commercial immatriculé au RSAC 914156294 auprès de SAS PROPRIETES PRIVEES, au capital de 44 920 euros, ZAC LE CHÊNE FERRÉ – 44 ALLÉE DES CINQ CONTINENTS 44120 VERTOU; SIRET 487 624 777 00040, RCS Nantes. Carte Professionnelle Transactions sur immeubles et fonds de commerce (T) et Gestion immobilière (G) n°CPI 4401 2016 000 010 388 délivrée par la CCI Nantes – Saint Nazaire. Compte séquestre n(Numéro supprimé)67 BPA SAINT-SEBASTIEN-SUR-LOIRE (44230). Garantie GALIAN-SMABTP – 89 rue de la Boétie, 75008 Paris – n°28137 J pour 2 000 000 euros pour T et 120 000 euros pour G. Assurance responsabilité civile professionnelle par GALIAN-SMABTP n° de police 28137.JMandat réf : 402044 – Le professionnel garantit et sécurise votre projet immobilier. Julie CLAUDEL (EI) Agent Commercial – Numéro RSAC : 914156294 – .
Draguignan
TERRAINHors lotissementDominantAu calmeRaccordable au tout à l'égout Emprise au sol de 183.60 m² au sol + 55 m² à l'étagePrix : 150000 €.Sur ce terrain de 1224 m² à DRAGUIGNAN, VILLAS PRISME vous propose de réaliser votre projet de construction de maison individuelle.Avec VILLAS PRISME, vous pouvez personnaliser votre projet de maison sur mesure :- Plan et distribution- Système de chauffage au choix- Prestations et équipements selon vos souhaits : carrelages, faïence, menuiseries, salles de bains…- Mode constructif et matériaux selon les normes en vigueur Demandez une étude gratuite et personnalisée de votre projet de construction sur ce terrain à DRAGUIGNAN ! Prix hors frais de notaire. Terrain sélectionné et vu pour vous sous réserve de disponibilité et au prix indiqué par notre partenaire foncier. Non mandaté pour la vente du terrain. Visuels non contractuels.Cette annonce a été créée et diffusée avec le logiciel VITAHOME.
Draguignan
TERRAIN ET MAISONVilla de plain pied composée de 3 chambres avec une baie vitrée de 3 met fenêtre panoramique dans la cuisine.Contactez Eric BONNEAU DESROCHES au (Numéro supprimé) (Villas Prisme – Agence de Fréjus).Prix avec assurance dommages-ouvrage comprise, hors VRD, terrain viabilisé, frais de notaire non compris, frais divers non compris. Terrain sélectionné et vu pour vous sous réserve de disponibilité et au prix indiqué par notre partenaire foncier. Non mandaté pour la vente du terrain. Visuels non contractuels.Cette annonce a été créée et diffusée avec le logiciel VITAHOME.
Draguignan
TERRAINTerrain plat d'environ 1000 m².Prix : 120000 €.Sur ce terrain de 1000 m² à DRAGUIGNAN, VILLAS PRISME vous propose de réaliser votre projet de construction de maison individuelle.Avec VILLAS PRISME, vous pouvez personnaliser votre projet de maison sur mesure :- Plan et distribution- Système de chauffage au choix- Prestations et équipements selon vos souhaits : carrelages, faïence, menuiseries, salles de bains…- Mode constructif et matériaux selon les normes en vigueur Demandez une étude gratuite et personnalisée de votre projet de construction sur ce terrain à DRAGUIGNAN ! Prix hors frais de notaire. Terrain sélectionné et vu pour vous sous réserve de disponibilité et au prix indiqué par notre partenaire foncier. Non mandaté pour la vente du terrain. Visuels non contractuels.Cette annonce a été créée et diffusée avec le logiciel VITAHOME.
Trans-en-Provence
TERRAIN ET MAISONTerrain plat de 717 m², entièrement viabilisé et au calme, offrant une emprise au sol de 100 m².Nous vous proposons un projet de construction d’une maison moderne de 100 m², idéalement conçue pour allier confort et fonctionnalité.Prix du terrain : 139 000 €Prix global terrain + maison : 359 000 €Terrain + maison en RE2020 de plain pied de 90m² = 359 000 €** Hors frais de notaireTrans-en-Provence séduit par son cadre de vie paisible, son charme provençal authentique et sa proximité avec Draguignan et les plages varoises. Un lieu idéal pour concilier qualité de vie et commodités !PCA Maisons, constructeur de maisons neuves reconnu dans le Var depuis 1987 vous accompagne dans toutes les étapes de votre projet : étude de votre budget, recherche de votre terrain constructible, gestion intégrale de votre chantier jusqu’à la livraison de votre maison.Pour plus d’informations, contactez-nous au (Numéro supprimé) ou au (Numéro supprimé)Annonce proposée par un Agent Commercial Partenaire.
Trans-en-Provence
TERRAINTerrain plat de 717 m², entièrement viabilisé et au calme, offrant une emprise au sol de 100 m².Nous vous proposons un projet de construction d’une maison moderne de 90 m², idéalement conçue pour allier confort et fonctionnalité.Prix du terrain : 139 000 €Prix global terrain + maison : 325 000 €Terrain + maison en RE2020 de plain pied de 90m² + terrassement = 325 000 €** Hors frais de notaireTrans-en-Provence séduit par son cadre de vie paisible, son charme provençal authentique et sa proximité avec Draguignan et les plages varoises. Un lieu idéal pour concilier qualité de vie et commodités !PCA Maisons, constructeur de maisons neuves reconnu dans le Var depuis 1987 vous accompagne dans toutes les étapes de votre projet : étude de votre budget, recherche de votre terrain constructible, gestion intégrale de votre chantier jusqu’à la livraison de votre maison.Pour plus d’informations, contactez nous au (Numéro supprimé) ou au (Numéro supprimé)Annonce proposée par un Agent Commercial Partenaire.
Trans-en-Provence
TERRAIN ET MAISONTerrain plat de 717 m², entièrement viabilisé et au calme, offrant une emprise au sol de 100 m².Nous vous proposons un projet de construction d’une maison moderne de 90 m², idéalement conçue pour allier confort et fonctionnalité.Prix du terrain : 139 000 €Terrain + maison en RE2020 de plain pied de 90m² + terrassement = 325 000 €** Hors frais de notaireTrans-en-Provence séduit par son cadre de vie paisible, son charme provençal authentique et sa proximité avec Draguignan et les plages varoises. Un lieu idéal pour concilier qualité de vie et commodités !PCA Maisons, constructeur de maisons neuves reconnu dans le Var depuis 1987 vous accompagne dans toutes les étapes de votre projet : étude de votre budget, recherche de votre terrain constructible, gestion intégrale de votre chantier jusqu’à la livraison de votre maison.Pour plus d’informations, contactez-nous au (Numéro supprimé) ou au (Numéro supprimé)Annonce proposée par un Agent Commercial Partenaire.
L’actualité immobilière à La Motte
27/11/2023
02/11/2023
30/10/2023
20/10/2023
16/10/2023
16/10/2023