Maison à construire à Le Cannet-des-Maures (83340)
Images
Description
Maisons France Confort vous propose en exclusivité ce magnifique projet de construction sur un terrain de 1 200 m² situé dans un secteur calme et recherché au Cannet-des-Maures, au coeur du Var.
Ce terrain entièrement clôturé, bénéficiant d'une exposition plein sud et d'une viabilité en bordure, offre un cadre idéal pour réaliser la maison de vos rêves dans un environnement verdoyant et paisible.
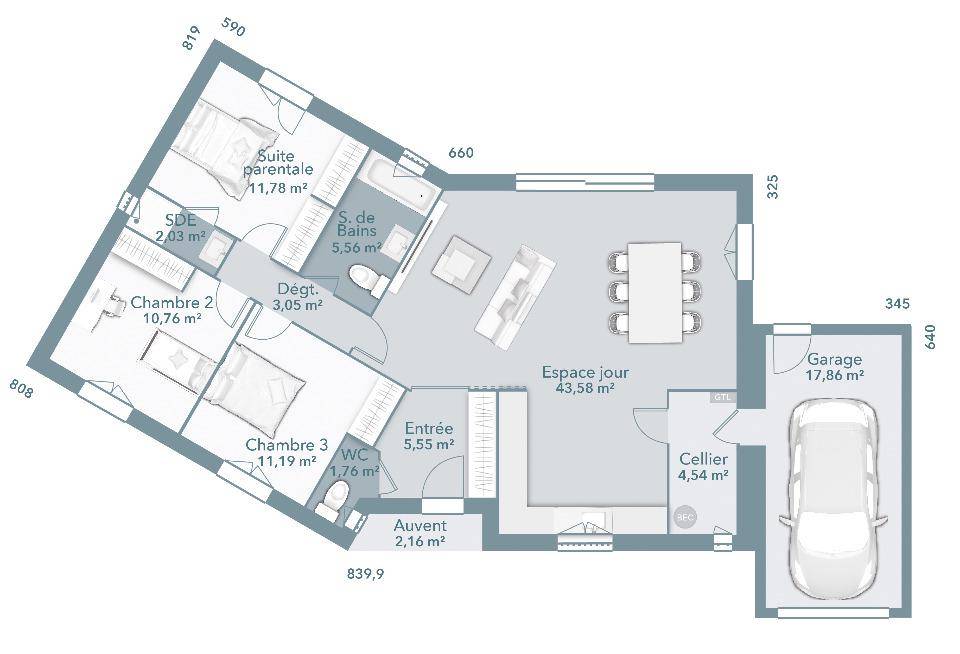
🏡 Votre future maison - 100 m² de plain-pied, moderne et confortable
Nous vous proposons un projet sur mesure avec la construction d'une maison contemporaine de plain-pied de 100 m², dessinée en forme de V ou de L pour s'intégrer parfaitement à votre terrain et maximiser la luminosité naturelle.
Cette maison se compose de :
🛏️ 3 chambres, dont une suite parentale avec dressing et salle d'eau privative
🍽️ Grande pièce de vie lumineuse ouverte sur la cuisine
🧺 Cellier fonctionnel attenant à la cuisine
🏡 Architecture moderne et optimisée pour le confort et la praticité au quotidien
✨ Prestations de qualité incluses :
Chauffage gainable pour un confort thermique optimal été comme hiver
Carrelage 60x60 dans toutes les pièces
Faïence murale complète dans les pièces d'eau
Équipements sanitaires haut de gamme
Construction conforme à la réglementation environnementale RE2020 pour une maison moderne, économe en énergie et respectueuse de l'environnement
📍 Emplacement privilégié
Situé sur la commune du Cannet-des-Maures, ce projet bénéficie d'un cadre de vie paisible, à proximité des commerces, écoles, services et axes routiers. Vous profiterez d'un environnement naturel tout en restant proche des commodités essentielles.
💰 Prix global terrain + maison : 374 268 €
(hors frais de notaire, adaptations, raccordements et taxes éventuelles)
📞 Pour plus d'informations, une étude personnalisée de votre projet ou organiser une visite, contactez :
Geoffrey Mesini - Conseiller Maisons F
Logement susceptibles de vous intéresser
Nous vous proposons de découvrir aussi cette sélection de logements situés à moins de 10km de Le Cannet-des-Maures et qui seraient susceptibles de vous intéresser.
Le Luc
TERRAIN ET MAISONVilla de type bastide de 85 m² composée de 3 chambres, une salle de bains avec douche et meuble vasque, 2wc suspendusContactez Eric BONNEAU DESROCHES au (Numéro supprimé) (Villas Prisme – Agence de Fréjus).Prix avec assurance dommages-ouvrage comprise, hors VRD, terrain viabilisé, frais de notaire non compris, frais divers non compris. Terrain sélectionné et vu pour vous sous réserve de disponibilité et au prix indiqué par notre partenaire foncier. Non mandaté pour la vente du terrain. Visuels non contractuels.Cette annonce a été créée et diffusée avec le logiciel VITAHOME.
Le Luc
TERRAINbeau terrain platPrix : 120000 €.Sur ce terrain de 300 m² à LE LUC, VILLAS PRISME vous propose de réaliser votre projet de construction de maison individuelle.Avec VILLAS PRISME, vous pouvez personnaliser votre projet de maison sur mesure :- Plan et distribution- Système de chauffage au choix- Prestations et équipements selon vos souhaits : carrelages, faïence, menuiseries, salles de bains…- Mode constructif et matériaux selon les normes en vigueur Demandez une étude gratuite et personnalisée de votre projet de construction sur ce terrain à LE LUC ! Prix hors frais de notaire. Terrain sélectionné et vu pour vous sous réserve de disponibilité et au prix indiqué par notre partenaire foncier. Non mandaté pour la vente du terrain. Visuels non contractuels.Cette annonce a été créée et diffusée avec le logiciel VITAHOME.
Gonfaron
TERRAINTerrain à bâtir de 426 m² à GONFARON – projet de construction avec Maison France Confort Rocbaron.Contactez Camille au (Numéro supprimé)Ce magnifique terrain entièrement plat, offre une surface totale de 426 m². Avec son environnement calme et sans vis-à-vis, vous profiterez d’un ensoleillement maximal grâce à son exposition plein sud. Déjà viabilisé, il offre une belle emprise au sol.Commune en plein développement, elle propose toutes les commodités essentielles : supermarchés, médecins, garderies, écoles, collèges, équipements sportifs, transports publics.Elle dispose également d’un accès facile pour rejoindre Hyères / Toulon à 40 minutes ou le Cannet des Maures / Le Luc à 20 minutes.Vous disposez également de transports publics pour vous y rendre.Avec Maison France Confort, vous faites le choix d’un constructeur reconnu pour la qualité de ses réalisations et son accompagnement clé en main.Accompagnement complet : étude de financement, démarches administratives, permis de construire, suivi de chantier.Vous faites le choix d’une construction sereine et pérenne.Contactez Camille au (Numéro supprimé) pour en discuter et échanger sur votre projet.
Gonfaron
TERRAIN ET MAISONProjet de construction de maison neuve à GONFARON avec Maison France Confort RocbaronContactez Camille au (Numéro supprimé)Sur un terrain plat de 426 m², je vous propose un exemple de projet de construction.Cet exemple offre une surface totale de 70 m² avec 3 chambres en maison de plain-pied.Un bel espace à vivre avec sa cuisine ouverte, orienté plein sud pour profiter d’un ensoleillement maximal.Projet entièrement modulable selon vos besoins : m² habitables, nombre de chambres, suite parentale, garage, domotique, performances énergétiques…Commune en plein développement, elle propose toutes les commodités essentielles : supermarchés, médecins, garderies, écoles, collèges, équipements sportifs, transports publics.Elle dispose également d’un accès facile pour rejoindre Hyères / Toulon à 40 minutes ou le Cannet des Maures / Le Luc à 20 minutes.Vous disposez également de transports publics pour vous y rendre.Avec Maison France Confort, vous faites le choix d’un constructeur reconnu pour la qualité de ses réalisations et son accompagnement clé en main.Accompagnement complet : étude de financement, démarches administratives, permis de construire, suivi de chantier.Vous faites le choix d’une construction sereine et pérenne.Contactez Camille au (Numéro supprimé) pour en discuter et échanger sur votre projet.*visuels non contractuels* prix incluant terrain + maison finie – hors frais de notaire, taxes et frais annexes éventuels
Gonfaron
TERRAIN ET MAISONProjet de construction de maison neuve à GONFARON avec Maison France Confort RocbaronContactez Camille au (Numéro supprimé)Sur un terrain plat de 426 m², je vous propose un exemple de projet de construction.Cet exemple offre une surface totale de 100 m² avec 4 chambres en maison de plain-pied.Un bel espace à vivre avec sa cuisine ouverte, orienté plein sud pour profiter d’un ensoleillement maximal.Projet entièrement modulable selon vos besoins : m² habitables, nombre de chambres, suite parentale, garage, domotique, performances énergétiques…Commune en plein développement, elle propose toutes les commodités essentielles : supermarchés, médecins, garderies, écoles, collèges, équipements sportifs, transports publics.Elle dispose également d’un accès facile pour rejoindre Hyères / Toulon à 40 minutes ou le Cannet des Maures / Le Luc à 20 minutes.Vous disposez également de transports publics pour vous y rendre.Avec Maison France Confort, vous faites le choix d’un constructeur reconnu pour la qualité de ses réalisations et son accompagnement clé en main.Accompagnement complet : étude de financement, démarches administratives, permis de construire, suivi de chantier.Vous faites le choix d’une construction sereine et pérenne.Contactez Camille au (Numéro supprimé) pour en discuter et échanger sur votre projet.*visuels non contractuels* prix incluant terrain + maison finie – hors frais de notaire, taxes et frais annexes éventuels
Gonfaron
TERRAIN ET MAISONProjet de construction de maison neuve à GONFARON avec Maison France Confort RocbaronContactez Camille au (Numéro supprimé)Sur un terrain plat de 426 m², je vous propose un exemple de projet de construction.Cet exemple offre une surface totale de 120 m² avec 4 chambres en maison à demi étage.Un bel espace à vivre avec sa cuisine ouverte, orienté plein sud pour profiter d’un ensoleillement maximal.Projet entièrement modulable selon vos besoins : m² habitables, nombre de chambres, suite parentale, garage, domotique, performances énergétiques…Commune en plein développement, elle propose toutes les commodités essentielles : supermarchés, médecins, garderies, écoles, collèges, équipements sportifs, transports publics.Elle dispose également d’un accès facile pour rejoindre Hyères / Toulon à 40 minutes ou le Cannet des Maures / Le Luc à 20 minutes.Vous disposez également de transports publics pour vous y rendre.Avec Maison France Confort, vous faites le choix d’un constructeur reconnu pour la qualité de ses réalisations et son accompagnement clé en main.Accompagnement complet : étude de financement, démarches administratives, permis de construire, suivi de chantier.Vous faites le choix d’une construction sereine et pérenne.Contactez Camille au (Numéro supprimé) pour en discuter et échanger sur votre projet.*visuels non contractuels* prix incluant terrain + maison finie – hors frais de notaire, taxes et frais annexes éventuels
Gonfaron
TERRAIN ET MAISONProjet de construction de maison neuve à GONFARON avec Maison France Confort RocbaronContactez Camille au (Numéro supprimé)Sur un terrain plat de 426 m², je vous propose un exemple de projet de construction.Cet exemple offre une surface totale de 140 m² avec 4 ou 5 chambres en maison à étage complet.Un bel espace à vivre avec sa cuisine ouverte, orienté plein sud pour profiter d’un ensoleillement maximal.Projet entièrement modulable selon vos besoins : m² habitables, nombre de chambres, suite parentale, garage, domotique, performances énergétiques…Commune en plein développement, elle propose toutes les commodités essentielles : supermarchés, médecins, garderies, écoles, collèges, équipements sportifs, transports publics.Elle dispose également d’un accès facile pour rejoindre Hyères / Toulon à 40 minutes ou le Cannet des Maures / Le Luc à 20 minutes.Vous disposez également de transports publics pour vous y rendre.Avec Maison France Confort, vous faites le choix d’un constructeur reconnu pour la qualité de ses réalisations et son accompagnement clé en main.Accompagnement complet : étude de financement, démarches administratives, permis de construire, suivi de chantier.Vous faites le choix d’une construction sereine et pérenne.Contactez Camille au (Numéro supprimé) pour en discuter et échanger sur votre projet.*visuels non contractuels* prix incluant terrain + maison finie – hors frais de notaire, taxes et frais annexes éventuels
Le Cannet-des-Maures
TERRAINLe Cannet des Maures, secteur résidentiel de La Pardiguière, beau terrain à bâtir de 666 m2, détaché d’une propriété bâtie. Le busage pour l’accès depuis le chemin public a été réalisé. CES 15%. possibilité de construire une maison à étage, et une piscine. Légèrement boisé, et plat. Viabilité à créer depuis le chemin public devant le terrain. Exposition SUDPrix de vente : 146790 euros. Commission d’agence 7290 euros ttc à la charge du vendeur (incluse dans le prix exprimé).Pour visiter et vous accompagner dans votre projet, contactez Patrick LEVY, au (Numéro supprimé) ou, par courriel à (Email supprimé).Selon l’article L.561.5 du Code Monétaire et Financier, pour l’organisation de la visite, la présentation d’une pièce d’identité vous sera demandée.Cette présente annonce a été rédigée sous la responsabilité éditoriale de Patrick LEVY agissant sous le statut d’agent commercial immatriculé au RSAC DRAGUIGNAN 326190634 auprès de SAS PROPRIETES PRIVEES, au capital de 44 920 euros, ZAC LE CHÊNE FERRÉ – 44 ALLÉE DES CINQ CONTINENTS 44120 VERTOU; SIRET 487 624 777 00040, RCS Nantes. Carte Professionnelle Transactions sur immeubles et fonds de commerce (T) et Gestion immobilière (G) n°CPI 4401 2016 000 010 388 délivrée par la CCI Nantes – Saint Nazaire. Compte séquestre n(Numéro supprimé)67 BPA SAINT-SEBASTIEN-SUR-LOIRE (44230). Garantie GALIAN – 89 rue de la Boétie, 75008 Paris – n°28137 J pour 2 000 000 euros pour T et 120 000 euros pour G. Assurance responsabilité civile professionnelle par GALIAN n° de police 28137.JMandat réf :397724- Le professionnel garantit et sécurise votre projet immobilier. Patrick LEVY (EI) Agent Commercial – Numéro RSAC : DRAGUIGNAN 326190634 – .
Les Mayons
TERRAINExclusivité, Les Mayons, dans le village, calme absolu et quartier résidentiel, superbe terrain vallonné, boisé, d’une superficie de 1200 mètres carrés. La viabilité est à raccorder à la charge de l’acquéreur. Les réseaux de tout à l’égout et d’eau potable passent dans le chemin longeant le terrain.Le terrain est situé en zone urbaine UB du PLU de la commune. Possibilité de construire 30 % et possibilité de 2 logements sur le terrain.Prix de vente de la propriété : 180000 euros HAI (commission d’agence 10000 euros TTC à la charge de l’acquéreur, soit 170000 euros hors honoraires).Pour visiter et vous accompagner dans votre projet, contactez Patrick LEVY, au (Numéro supprimé) ou, par courriel à (Email supprimé).Selon l’article L.561.5 du Code Monétaire et Financier, pour l’organisation de la visite, la présentation d’une pièce d’identité vous sera demandée.Cette présente annonce a été rédigée sous la responsabilité éditoriale de Patrick LEVY agissant sous le statut d’agent commercial immatriculé au RSAC DRAGUIGNAN 326190634 auprès de SAS PROPRIETES PRIVEES, au capital de 44 920 euros, ZAC LE CHÊNE FERRÉ – 44 ALLÉE DES CINQ CONTINENTS 44120 VERTOU; SIRET 487 624 777 00040, RCS Nantes. Carte Professionnelle Transactions sur immeubles et fonds de commerce (T) et Gestion immobilière (G) n° CPI 4401 2016 000 010 388 délivrée par la CCI Nantes – Saint Nazaire. Compte séquestre n(Numéro supprimé)67 BPA SAINT-SEBASTIEN-SUR-LOIRE (44230). Garantie GALIAN-SMABTP – 89 rue de la Boétie, 75008 Paris – n°28137 J pour 2 000 000 euros pour T et 120 000 euros pour G. Assurance responsabilité civile professionnelle par GALIAN-SMABTP n° de police 28137 JMandat réf : 420238 – Le professionnel garantit et sécurise votre projet immobilier. (5.88 % honoraires TTC à la charge de l’acquéreur.) Patrick LEVY (EI) Agent Commercial – Numéro RSAC : DRAGUIGNAN 326190634 – .Les informations sur les risques auxquels ce bien est exposé sont disponibles sur le site Géorisques : www. georisques. gouv. fr
L’actualité immobilière à Le Cannet-des-Maures
27/11/2023
02/11/2023
30/10/2023
20/10/2023
16/10/2023
16/10/2023