Maison à construire à Pierrefeu-du-Var (83390)
Images
Description
Opportunité à saisir
Maison à construire commune de Pierrefeu du Var
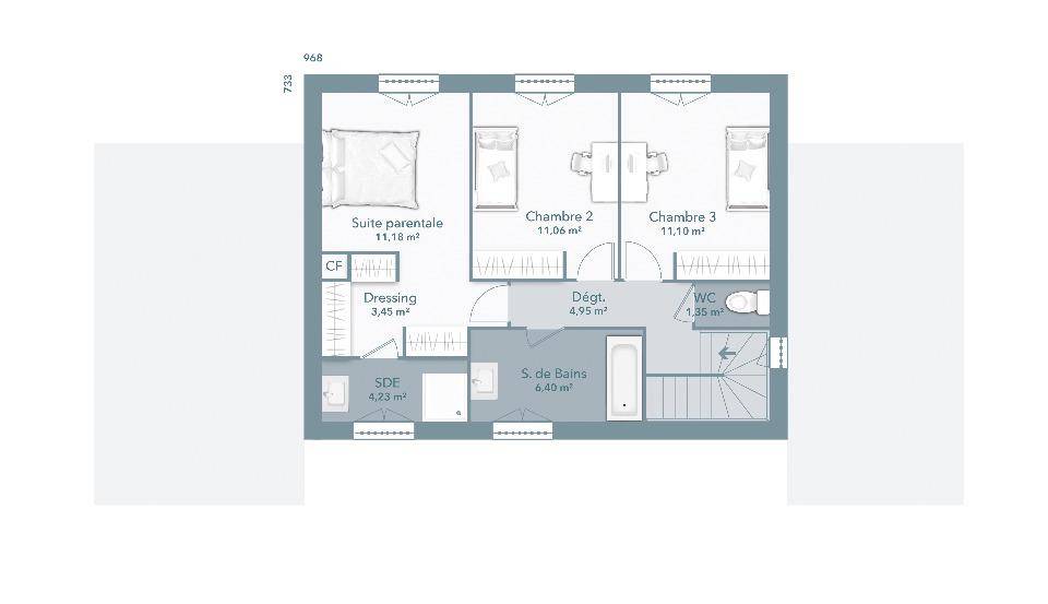
Maisons France Confort vous propose la réalisation de cette villa de type bastide de 76m² sur un terrain de 457m², offrant de beaux volumes avec une entrée avec placard, une cuisine ouverte sur pièce de vie de plus de 35m², à l'étage 3 belles chambres, une grande salle d'eau et un WC séparé.
Construction RE2020
Son prix clefs en mains de 345.000€ incluant la villa, le terrain, la provision terrassement, le cout des raccordements...
Contactez au (Numéro supprimé) pour plus de renseignements,
Maisons France Confort agence de La Farlède.
Constructeur de maisons individuelles leader en France.
Entreprise familiale fondée en 1919
Logement susceptibles de vous intéresser
Nous vous proposons de découvrir aussi cette sélection de logements situés à moins de 10km de Pierrefeu-du-Var et qui seraient susceptibles de vous intéresser.
Cuers
TERRAINVillas prisme vous propose un terrain plat entièrement viabilisés avec un PC accordé pour une villa à étage avec 3 chambres et au RDC vaste salon séjour avec des prestations de qualités et gainable à voir rapidementPrix : 180000 €.Sur ce terrain de 431 m² à CUERS, VILLAS PRISME vous propose de réaliser votre projet de construction de maison individuelle.Avec VILLAS PRISME, vous pouvez personnaliser votre projet de maison sur mesure :- Plan et distribution- Système de chauffage au choix- Prestations et équipements selon vos souhaits : carrelages, faïence, menuiseries, salles de bains…- Mode constructif et matériaux selon les normes en vigueur Demandez une étude gratuite et personnalisée de votre projet de construction sur ce terrain à CUERS ! Prix hors frais de notaire. Terrain sélectionné et vu pour vous sous réserve de disponibilité et au prix indiqué par notre partenaire foncier. Non mandaté pour la vente du terrain. Visuels non contractuels.Cette annonce a été créée et diffusée avec le logiciel VITAHOME.
Carnoules
TERRAIN ET MAISONA CARNOULES sur un terrain de 500 m², VILLAS PRISME vous propose de réaliser votre projet de construction de maison individuelle d'une surface de 88 m² habitables avec 3 chambres.Avec VILLAS PRISME, vous pouvez personnaliser votre projet de maison sur mesure :- Plan et distribution- Système de chauffage au choix- Prestations et équipements selon vos souhaits : carrelages, faïence, menuiseries, salles de bains…- Mode constructif et matériaux selon les normes en vigueur Informations du terrain : Villas Prisme vous propose un beau terrain plat exposé sud au calme avec les les viabilités en bordure dans secteur recherchéDemandez une étude gratuite et personnalisée de votre projet de construction !Contactez Rémy MALVOLTI au (Numéro supprimé) (Villas Prisme – Agence de La Valette).Prix avec assurance dommages-ouvrage comprise, hors VRD, terrain viabilisé, frais de notaire non compris, frais divers non compris. Terrain sélectionné et vu pour vous sous réserve de disponibilité et au prix indiqué par notre partenaire foncier. Non mandaté pour la vente du terrain. Visuels non contractuels.Cette annonce a été créée et diffusée avec le logiciel VITAHOME.
Cuers
TERRAIN ET MAISONA CUERS sur un terrain de 431 m², VILLAS PRISME vous propose de réaliser votre projet de construction de maison individuelle d'une surface de 85 m² habitables avec 3 chambres.Avec VILLAS PRISME, vous pouvez personnaliser votre projet de maison sur mesure :- Plan et distribution- Système de chauffage au choix- Prestations et équipements selon vos souhaits : carrelages, faïence, menuiseries, salles de bains…- Mode constructif et matériaux selon les normes en vigueur Informations du terrain : Villas prisme vous propose un terrain plat entièrement viabilisés avec un PC accordé pour une villa à étage avec 3 chambres et au RDC vaste salon séjour avec des prestations de qualités et gainable à voir rapidementDemandez une étude gratuite et personnalisée de votre projet de construction !Contactez Rémy MALVOLTI au (Numéro supprimé) (Villas Prisme – Agence de La Valette).Prix avec assurance dommages-ouvrage comprise, hors VRD, terrain viabilisé, frais de notaire non compris, frais divers non compris. Terrain sélectionné et vu pour vous sous réserve de disponibilité et au prix indiqué par notre partenaire foncier. Non mandaté pour la vente du terrain. Visuels non contractuels.Cette annonce a été créée et diffusée avec le logiciel VITAHOME.
Carnoules
TERRAINVillas Prisme vous propose un beau terrain plat exposé sud au calme avec les les viabilités en bordure dans secteur recherchéPrix : 155000 €.Sur ce terrain de 500 m² à CARNOULES, VILLAS PRISME vous propose de réaliser votre projet de construction de maison individuelle.Avec VILLAS PRISME, vous pouvez personnaliser votre projet de maison sur mesure :- Plan et distribution- Système de chauffage au choix- Prestations et équipements selon vos souhaits : carrelages, faïence, menuiseries, salles de bains…- Mode constructif et matériaux selon les normes en vigueur Demandez une étude gratuite et personnalisée de votre projet de construction sur ce terrain à CARNOULES ! Prix hors frais de notaire. Terrain sélectionné et vu pour vous sous réserve de disponibilité et au prix indiqué par notre partenaire foncier. Non mandaté pour la vente du terrain. Visuels non contractuels.Cette annonce a été créée et diffusée avec le logiciel VITAHOME.
Carnoules
TERRAIN ET MAISONCONCRETISEZ VOTRE REVE D’AVOIR VOTRE MAISON ! Contactez le (Numéro supprimé)Maisons France Confort vous propose de faire bâtir votre villa personnalisée à étage partiel sur ce terrain viabilisé de plus de 350m² sur la commune de Carnoules. A proximité de toutes les commodités, vous rejoindrez les axes autoroutiers en deux min.Commerces, gare, écoles, garderies, services, transports sur place.Cette maison de 115m2 habitables propose un bel espace de vie ouvert avec une suite parentale en rez-de-jardin ainsi que 3 chambres à l’étage.Détails des prestations et personnalisation sur rdv.Toutes nos réalisations sont conformes à la réglementation environnementale en vigueur, atout majeur pour mieux maîtriser votre facture énergétique ! N’attendez plus et contactez votre chargée de projet Samantha au (Numéro supprimé) qui vous accompagnera dans votre projet réalisé sur mesure avec faisabilité technique et financière.
Carnoules
TERRAINDEVENEZ PROPRIETAIRE ! Contactez le (Numéro supprimé)Situé à 25 minutes de l »aire Toulonnaise et de la mer. Emplacement stratégique.Votre constructeur Maisons France Confort propose, avec son partenaire foncier, de faire bâtir votre projet de vie sur ce magnifique terrain, de plus de 338 m2 en lotissement à Carnoules. Vous trouverez à 15 min le collège de Cuers et les différentes commodités sont sur la commune : supermarché, boulangerie etc. Le terrain est viabilisé et plat. Vous pourrez réaliser plus de 200m2 habitables.Détails des prestations et personnalisation de votre future maison neuve sur rendez-vous.Contactez votre chargée de projet Samantha RICAUD au (Numéro supprimé)
Carnoules
TERRAINDEVENEZ PROPRIETAIRE ! Contactez le (Numéro supprimé)Situé à 25 minutes de l’aire Toulonnaise et de la mer. Emplacement stratégique.Votre constructeur Maisons France Confort propose, avec son partenaire foncier, de faire bâtir votre projet de vie sur ce magnifique terrain, de plus de 338 m2 en lotissement à Carnoules. Vous trouverez à 15 min le collège de Cuers et les différentes commodités sont sur la commune : supermarché, boulangerie etc. Le terrain est viabilisé et plat. Vous pourrez réaliser plus de 200m2 habitables.Détails des prestations et personnalisation de votre future maison neuve sur rendez-vous.Contactez votre chargée de projet Samantha RICAUD au (Numéro supprimé)
Cuers
TERRAIN ET MAISONDERNIERE OPPORTUNITE A SAISIR ! Contactez le (Numéro supprimé)Dans l’aire Toulonnaise à Cuers, en accord avec son partenaire foncier, votre constructeur Maisons France Confort Rocbaron du groupe HEXAOM vous propose de faire bâtir votre villa à étage d’environ 90m2 sur cette parcelle de terrain d’environ 500m2. Vous trouverez un accès autoroutier en 2minutes ainsi que la zone commerciale de Solliès-Pont. Cette maison se compose d’une suite parentale en rdc avec dressing ainsi que d’un beau espace de vie ouvert, d’un cellier et d’un Wc indépendant.A l’étage vous trouverez 2 chambres donnant sur un toit terrasse ainsi qu’une salle d’eau avec WC.Vous avez la possibilité de faire évoluer cette maison en fonction de vos envies sur-mesure.Détails des prestations et personnalisation sur rdv.Budget global d’investissement : 445 000€ hors frais de notaire et taxes.N’attendez plus et contactez votre chargée de projet Samantha au (Numéro supprimé) qui vous accompagnera dans votre projet réalisé sur mesure avec faisabilité technique et financière.
Pierrefeu-du-Var
TERRAINCADRE DE VIE EXCEPTIONNEL ! Contactez le (Numéro supprimé)Situé à 25min de Hyères et de l’aire Toulonnaise à Pierrefeu-du-Var. Votre constructeur Maisons France Confort vous propose, avec son partenaire foncier, de faire bâtir votre projet de vie sur ce magnifique terrain de 457 m2 dans un quartier résidentiel. Vous trouverez l’accès autoroute à 8min, toutes les commodités sont sur la commune, boulangerie, supermarché etc. Vous aurez la possibilité de réaliser une villa à étage ou de plain-pied + annexe de plus de 150m2.Détails des prestations et personnalisation de votre future maison neuve sur rendez-vous.Contactez rapidement votre chargée de projet Samantha RICAUD au (Numéro supprimé)
L’actualité immobilière à Pierrefeu-du-Var
27/11/2023
02/11/2023
30/10/2023
20/10/2023
16/10/2023
16/10/2023