Maison à construire à Pignans (83790)
Images
Description
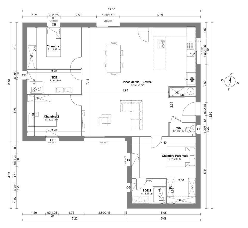
MAISONS FRANCE CONFORT La Fardèle vous propose de réaliser pour vous cette belle maison de 105 m² de plain-pied.
Maison en L en toit 4 pans de plain-pied de 105 m². Son intérieur est composé de 3 grandes chambres dont une véritable suite parentale intimiste avec sa salle d'eau privative.
Une grande pièce de vie avec cuisine ouverte de plus de 55 m² vient compléter ce bien. Système de chauffage par PAC Gainable.
Possibilité d'y accoler un garage à toit plat ou un carport. Possibilité également de faire une belle terrasse.
Pour plus d'informations, votre conseiller commercial Mikael PAILHES de l'agence Maisons France Confort La Farlède est à votre disposition pour échanger et vous accompagner dans votre projet de construction.
ESTIMATION PRIX MAISON HORS GARAGE, ADAPTATION AU SOL, VIABILITES, TAXES ET EVENTUELS AMENAGEMENTS SUPPLEMENTAIRES.
Logement susceptibles de vous intéresser
Nous vous proposons de découvrir aussi cette sélection de logements situés à moins de 10km de Pignans et qui seraient susceptibles de vous intéresser.
Pignans
TERRAIN ET MAISONA PIGNANS sur un terrain de 600 m², VILLAS PRISME vous propose de réaliser votre projet de construction de maison individuelle d'une surface de 88 m² habitables avec 3 chambres.Avec VILLAS PRISME, vous pouvez personnaliser votre projet de maison sur mesure :- Plan et distribution- Système de chauffage au choix- Prestations et équipements selon vos souhaits : carrelages, faïence, menuiseries, salles de bains…- Mode constructif et matériaux selon les normes en vigueur Informations du terrain : Villas prisme vous propose une villa de plain pied avec 3 Chambres sur un terrain plat exposé sud au calme avec les viabilités sur place a voir rapidementDemandez une étude gratuite et personnalisée de votre projet de construction !Contactez Rémy MALVOLTI au (Numéro supprimé) (Villas Prisme – Agence de La Valette).Prix avec assurance dommages-ouvrage comprise, hors VRD, terrain viabilisé, frais de notaire non compris, frais divers non compris. Terrain sélectionné et vu pour vous sous réserve de disponibilité et au prix indiqué par notre partenaire foncier. Non mandaté pour la vente du terrain. Visuels non contractuels.Cette annonce a été créée et diffusée avec le logiciel VITAHOME.
Pierrefeu-du-Var
TERRAIN ET MAISONA PIERREFEU-DU-VAR sur un terrain plat et viabilisé de 290 m², VILLAS PRISME vous propose de réaliser votre projet de construction de maison individuelle d'une surface de 85 m² habitables avec 3 chambres.Avec VILLAS PRISME, vous pouvez personnaliser votre projet de maison sur mesure :- Plan et distribution- Système de chauffage au choix- Prestations et équipements selon vos souhaits : carrelages, faïence, menuiseries, salles de bains…- Mode constructif et matériaux selon les normes en vigueur Informations du terrain : joli petit terrain plat et au calme Dans un secteur recherché viabilités et Tout à l'égout à 80 m environ, pompe de relevage a prévoirDemandez une étude gratuite et personnalisée de votre projet de construction !Contactez Odile CHARLANNES au (Numéro supprimé) (Villas Prisme – Agence de La Valette).Prix avec assurance dommages-ouvrage comprise, hors VRD, terrain viabilisé, frais de notaire non compris, frais divers non compris. Terrain sélectionné et vu pour vous sous réserve de disponibilité et au prix indiqué par notre partenaire foncier. Non mandaté pour la vente du terrain. Visuels non contractuels.Cette annonce a été créée et diffusée avec le logiciel VITAHOME.
Pierrefeu-du-Var
TERRAINTerrain plat et au calme Dans un secteur recherché viabilités et Tout à l'égout à 80 m environ, pompe de relevage a prévoirPrix : 145000 €.Sur ce terrain de 290 m² à PIERREFEU-DU-VAR, VILLAS PRISME vous propose de réaliser votre projet de construction de maison individuelle.Avec VILLAS PRISME, vous pouvez personnaliser votre projet de maison sur mesure :- Plan et distribution- Système de chauffage au choix- Prestations et équipements selon vos souhaits : carrelages, faïence, menuiseries, salles de bains…- Mode constructif et matériaux selon les normes en vigueur Demandez une étude gratuite et personnalisée de votre projet de construction sur ce terrain à PIERREFEU-DU-VAR ! Prix hors frais de notaire. Terrain sélectionné et vu pour vous sous réserve de disponibilité et au prix indiqué par notre partenaire foncier. Non mandaté pour la vente du terrain. Visuels non contractuels.Cette annonce a été créée et diffusée avec le logiciel VITAHOME.
Pignans
TERRAINVillas prisme vous propose une villa de plain pied avec 3 Chambres sur un terrain plat exposé sud au calme avec les viabilités sur place belle environnement au calme a voir rapidementPrix : 163000 €.Sur ce terrain de 967 m² à PIGNANS, VILLAS PRISME vous propose de réaliser votre projet de construction de maison individuelle.Avec VILLAS PRISME, vous pouvez personnaliser votre projet de maison sur mesure :- Plan et distribution- Système de chauffage au choix- Prestations et équipements selon vos souhaits : carrelages, faïence, menuiseries, salles de bains…- Mode constructif et matériaux selon les normes en vigueur Demandez une étude gratuite et personnalisée de votre projet de construction sur ce terrain à PIGNANS ! Prix hors frais de notaire. Terrain sélectionné et vu pour vous sous réserve de disponibilité et au prix indiqué par notre partenaire foncier. Non mandaté pour la vente du terrain. Visuels non contractuels.Cette annonce a été créée et diffusée avec le logiciel VITAHOME.
Gonfaron
TERRAINTerrain à bâtir de 426 m² à GONFARON – projet de construction avec Maison France Confort Rocbaron.Contactez Camille au (Numéro supprimé)Ce magnifique terrain entièrement plat, offre une surface totale de 426 m². Avec son environnement calme et sans vis-à-vis, vous profiterez d’un ensoleillement maximal grâce à son exposition plein sud. Déjà viabilisé, il offre une belle emprise au sol.Commune en plein développement, elle propose toutes les commodités essentielles : supermarchés, médecins, garderies, écoles, collèges, équipements sportifs, transports publics.Elle dispose également d’un accès facile pour rejoindre Hyères / Toulon à 40 minutes ou le Cannet des Maures / Le Luc à 20 minutes.Vous disposez également de transports publics pour vous y rendre.Avec Maison France Confort, vous faites le choix d’un constructeur reconnu pour la qualité de ses réalisations et son accompagnement clé en main.Accompagnement complet : étude de financement, démarches administratives, permis de construire, suivi de chantier.Vous faites le choix d’une construction sereine et pérenne.Contactez Camille au (Numéro supprimé) pour en discuter et échanger sur votre projet.
Gonfaron
TERRAIN ET MAISONProjet de construction de maison neuve à GONFARON avec Maison France Confort RocbaronContactez Camille au (Numéro supprimé)Sur un terrain plat de 426 m², je vous propose un exemple de projet de construction.Cet exemple offre une surface totale de 70 m² avec 3 chambres en maison de plain-pied.Un bel espace à vivre avec sa cuisine ouverte, orienté plein sud pour profiter d’un ensoleillement maximal.Projet entièrement modulable selon vos besoins : m² habitables, nombre de chambres, suite parentale, garage, domotique, performances énergétiques…Commune en plein développement, elle propose toutes les commodités essentielles : supermarchés, médecins, garderies, écoles, collèges, équipements sportifs, transports publics.Elle dispose également d’un accès facile pour rejoindre Hyères / Toulon à 40 minutes ou le Cannet des Maures / Le Luc à 20 minutes.Vous disposez également de transports publics pour vous y rendre.Avec Maison France Confort, vous faites le choix d’un constructeur reconnu pour la qualité de ses réalisations et son accompagnement clé en main.Accompagnement complet : étude de financement, démarches administratives, permis de construire, suivi de chantier.Vous faites le choix d’une construction sereine et pérenne.Contactez Camille au (Numéro supprimé) pour en discuter et échanger sur votre projet.*visuels non contractuels* prix incluant terrain + maison finie – hors frais de notaire, taxes et frais annexes éventuels
Gonfaron
TERRAIN ET MAISONProjet de construction de maison neuve à GONFARON avec Maison France Confort RocbaronContactez Camille au (Numéro supprimé)Sur un terrain plat de 426 m², je vous propose un exemple de projet de construction.Cet exemple offre une surface totale de 100 m² avec 4 chambres en maison de plain-pied.Un bel espace à vivre avec sa cuisine ouverte, orienté plein sud pour profiter d’un ensoleillement maximal.Projet entièrement modulable selon vos besoins : m² habitables, nombre de chambres, suite parentale, garage, domotique, performances énergétiques…Commune en plein développement, elle propose toutes les commodités essentielles : supermarchés, médecins, garderies, écoles, collèges, équipements sportifs, transports publics.Elle dispose également d’un accès facile pour rejoindre Hyères / Toulon à 40 minutes ou le Cannet des Maures / Le Luc à 20 minutes.Vous disposez également de transports publics pour vous y rendre.Avec Maison France Confort, vous faites le choix d’un constructeur reconnu pour la qualité de ses réalisations et son accompagnement clé en main.Accompagnement complet : étude de financement, démarches administratives, permis de construire, suivi de chantier.Vous faites le choix d’une construction sereine et pérenne.Contactez Camille au (Numéro supprimé) pour en discuter et échanger sur votre projet.*visuels non contractuels* prix incluant terrain + maison finie – hors frais de notaire, taxes et frais annexes éventuels
Gonfaron
TERRAIN ET MAISONProjet de construction de maison neuve à GONFARON avec Maison France Confort RocbaronContactez Camille au (Numéro supprimé)Sur un terrain plat de 426 m², je vous propose un exemple de projet de construction.Cet exemple offre une surface totale de 120 m² avec 4 chambres en maison à demi étage.Un bel espace à vivre avec sa cuisine ouverte, orienté plein sud pour profiter d’un ensoleillement maximal.Projet entièrement modulable selon vos besoins : m² habitables, nombre de chambres, suite parentale, garage, domotique, performances énergétiques…Commune en plein développement, elle propose toutes les commodités essentielles : supermarchés, médecins, garderies, écoles, collèges, équipements sportifs, transports publics.Elle dispose également d’un accès facile pour rejoindre Hyères / Toulon à 40 minutes ou le Cannet des Maures / Le Luc à 20 minutes.Vous disposez également de transports publics pour vous y rendre.Avec Maison France Confort, vous faites le choix d’un constructeur reconnu pour la qualité de ses réalisations et son accompagnement clé en main.Accompagnement complet : étude de financement, démarches administratives, permis de construire, suivi de chantier.Vous faites le choix d’une construction sereine et pérenne.Contactez Camille au (Numéro supprimé) pour en discuter et échanger sur votre projet.*visuels non contractuels* prix incluant terrain + maison finie – hors frais de notaire, taxes et frais annexes éventuels
Gonfaron
TERRAIN ET MAISONProjet de construction de maison neuve à GONFARON avec Maison France Confort RocbaronContactez Camille au (Numéro supprimé)Sur un terrain plat de 426 m², je vous propose un exemple de projet de construction.Cet exemple offre une surface totale de 140 m² avec 4 ou 5 chambres en maison à étage complet.Un bel espace à vivre avec sa cuisine ouverte, orienté plein sud pour profiter d’un ensoleillement maximal.Projet entièrement modulable selon vos besoins : m² habitables, nombre de chambres, suite parentale, garage, domotique, performances énergétiques…Commune en plein développement, elle propose toutes les commodités essentielles : supermarchés, médecins, garderies, écoles, collèges, équipements sportifs, transports publics.Elle dispose également d’un accès facile pour rejoindre Hyères / Toulon à 40 minutes ou le Cannet des Maures / Le Luc à 20 minutes.Vous disposez également de transports publics pour vous y rendre.Avec Maison France Confort, vous faites le choix d’un constructeur reconnu pour la qualité de ses réalisations et son accompagnement clé en main.Accompagnement complet : étude de financement, démarches administratives, permis de construire, suivi de chantier.Vous faites le choix d’une construction sereine et pérenne.Contactez Camille au (Numéro supprimé) pour en discuter et échanger sur votre projet.*visuels non contractuels* prix incluant terrain + maison finie – hors frais de notaire, taxes et frais annexes éventuels
L’actualité immobilière à Pignans
27/11/2023
02/11/2023
30/10/2023
20/10/2023
16/10/2023
16/10/2023