Maison à construire à Puget-sur-Argens (83480)
Images
Description
Projet de construction à Puget sur Argens
A découvrir ! Belle villa neuve sur un terrain plat de 1 055 m² situé dans un environnement calme.
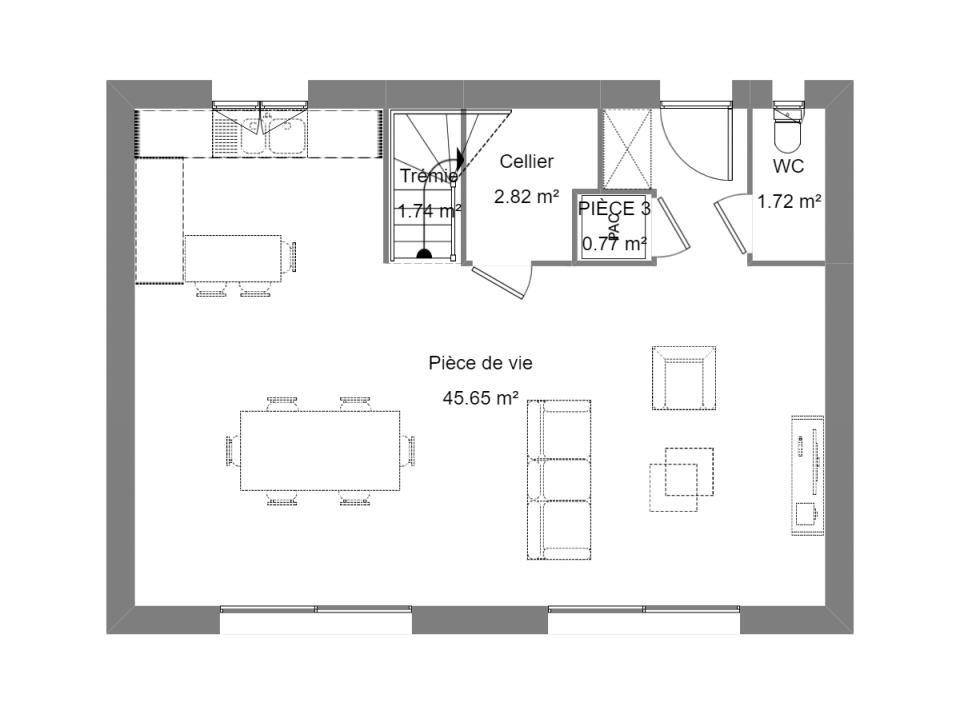
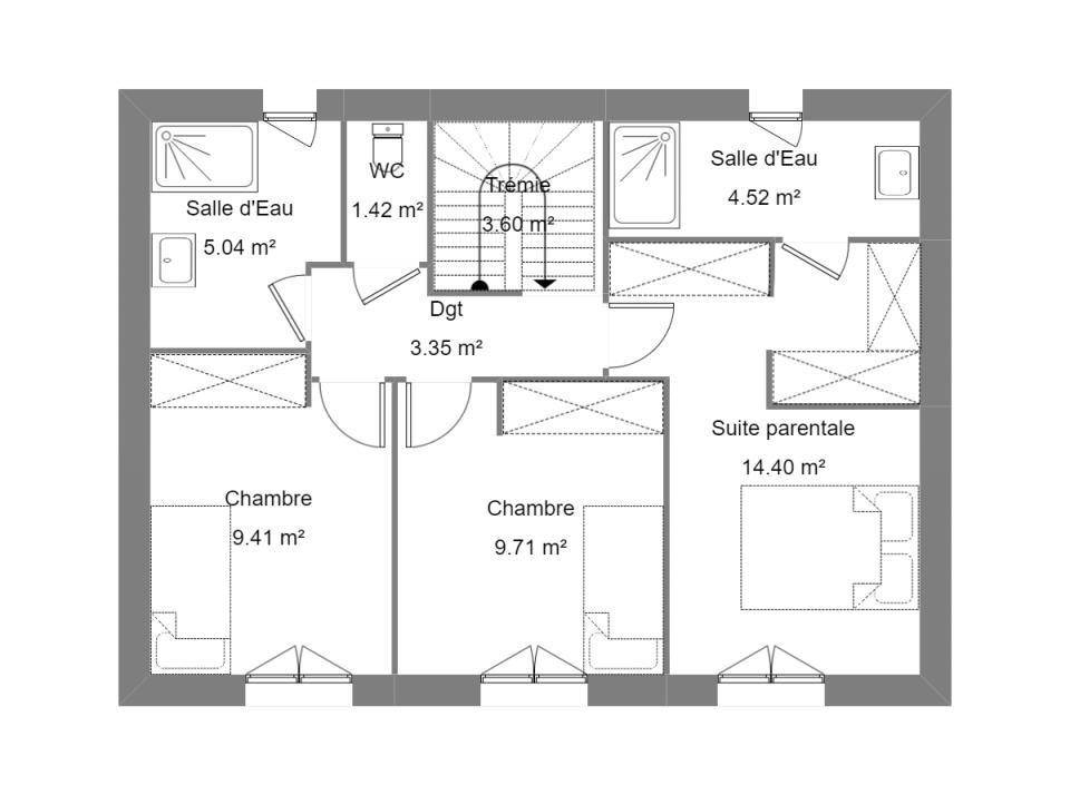
Cette villa à étage offre un bel espace de vie climatisée de 44m² avec une cuisine ouverte, un cellier, 3 grandes chambres dont une suite parentale avec sa salle d'eau privative et son dressing. Nombreux espaces de rangements.
Villa très lumineuse répondant à la norme RE2020 offrant un vrai confort de vie avec des prestations de qualité.
Possibilité de réaliser un garage en option.
L'ensemble sur un terrain plat de 1 055 m² idéalement situé dans un quartier résidentiel au calme.
Votre projet clef en mains à 444 000 euros incluant la maison, le terrain et les frais de raccordements.
Pour tous renseignements et une étude personnalisée, contactez Véronique CHAUVET au (Numéro supprimé).
Maisons France Confort, agence de Trans en Provence. Constructeur de maisons individuelles leader en France. Entreprise familiale crée en 1919.
Logement susceptibles de vous intéresser
Nous vous proposons de découvrir aussi cette sélection de logements situés à moins de 10km de Puget-sur-Argens et qui seraient susceptibles de vous intéresser.
Fréjus
TERRAINSitué à la sortie de Fréjus, ce nouveau programme propose des terrains plats et au calme, à l’écart de la route, dans un environnement verdoyant et préservé.Le lotissement, entièrement clôturé, offre un cadre de vie serein, idéal pour construire une maison contemporaine ou provençale, selon vos envies et votre mode de vie.Un emplacement privilégié :Accès autoroute A8 à 2 minutes, pour rejoindre rapidement Cannes, Nice ou ToulonCentre-ville de Fréjus à 10 minutes et plages à seulement 15 minutesGare SNCF et principaux axes à proximitéUn quotidien facilité :Crèches, écoles, commerces, supermarchés, pharmacies et services de santé accessibles en quelques minutes. Vous profitez ainsi d’un confort de vie optimal tout en restant proche de la nature.Ce programme se situe à proximité des pôles d’activités de Fréjus-Saint-Raphaël, Puget-sur-Argens et Sophia-Antipolis, un atout pour les actifs du secteur.Renseignements :Yannick POINCLOUX – Maisons de Manon, agence de Sainte-Maxime(Numéro supprimé)Avant-projet sur mesure selon vos besoins. D’autres configurations et modèles peuvent être étudiés.En collaboration avec notre partenaire foncier et sous réserve de disponibilité.Ce bien ne vous convient pas ? Nous vous accompagnons aussi dans la recherche de votre terrain.Annonce proposée par un Agent Commercial Partenaire.
Fréjus
TERRAINSitué à la sortie de Fréjus, ce nouveau programme propose des terrains plats et au calme, à l’écart de la route, dans un environnement verdoyant et préservé.Le lotissement, entièrement clôturé, offre un cadre de vie serein, idéal pour construire une maison contemporaine ou provençale, selon vos envies et votre mode de vie.Un emplacement privilégié :Accès autoroute A8 à 2 minutes, pour rejoindre rapidement Cannes, Nice ou ToulonCentre-ville de Fréjus à 10 minutes et plages à seulement 15 minutesGare SNCF et principaux axes à proximitéUn quotidien facilité :Crèches, écoles, commerces, supermarchés, pharmacies et services de santé accessibles en quelques minutes. Vous profitez ainsi d’un confort de vie optimal tout en restant proche de la nature.Ce programme se situe à proximité des pôles d’activités de Fréjus-Saint-Raphaël, Puget-sur-Argens et Sophia-Antipolis, un atout pour les actifs du secteur.Renseignements :Yannick POINCLOUX – Maisons de Manon, agence de Sainte-Maxime(Numéro supprimé)Avant-projet sur mesure selon vos besoins. D’autres configurations et modèles peuvent être étudiés.En collaboration avec notre partenaire foncier et sous réserve de disponibilité.Ce bien ne vous convient pas ? Nous vous accompagnons aussi dans la recherche de votre terrain.Annonce proposée par un Agent Commercial Partenaire.
Fréjus
TERRAINSitué à la sortie de Fréjus, ce nouveau programme propose des terrains plats et au calme, à l’écart de la route, dans un environnement verdoyant et préservé.Le lotissement, entièrement clôturé, offre un cadre de vie serein, idéal pour construire une maison contemporaine ou provençale, selon vos envies et votre mode de vie.Un emplacement privilégié :Accès autoroute A8 à 2 minutes, pour rejoindre rapidement Cannes, Nice ou ToulonCentre-ville de Fréjus à 10 minutes et plages à seulement 15 minutesGare SNCF et principaux axes à proximitéUn quotidien facilité :Crèches, écoles, commerces, supermarchés, pharmacies et services de santé accessibles en quelques minutes. Vous profitez ainsi d’un confort de vie optimal tout en restant proche de la nature.Ce programme se situe à proximité des pôles d’activités de Fréjus-Saint-Raphaël, Puget-sur-Argens et Sophia-Antipolis, un atout pour les actifs du secteur.Renseignements :Yannick POINCLOUX – Maisons de Manon, agence de Sainte-Maxime(Numéro supprimé)Avant-projet sur mesure selon vos besoins. D’autres configurations et modèles peuvent être étudiés.En collaboration avec notre partenaire foncier et sous réserve de disponibilité.Ce bien ne vous convient pas ? Nous vous accompagnons aussi dans la recherche de votre terrain.Annonce proposée par un Agent Commercial Partenaire.
Fréjus
TERRAINSitué à la sortie de Fréjus, ce nouveau programme propose des terrains plats et au calme, à l’écart de la route, dans un environnement verdoyant et préservé.Le lotissement, entièrement clôturé, offre un cadre de vie serein, idéal pour construire une maison contemporaine ou provençale, selon vos envies et votre mode de vie.Un emplacement privilégié :Accès autoroute A8 à 2 minutes, pour rejoindre rapidement Cannes, Nice ou ToulonCentre-ville de Fréjus à 10 minutes et plages à seulement 15 minutesGare SNCF et principaux axes à proximitéUn quotidien facilité :Crèches, écoles, commerces, supermarchés, pharmacies et services de santé accessibles en quelques minutes. Vous profitez ainsi d’un confort de vie optimal tout en restant proche de la nature.Ce programme se situe à proximité des pôles d’activités de Fréjus-Saint-Raphaël, Puget-sur-Argens et Sophia-Antipolis, un atout pour les actifs du secteur.Renseignements :Yannick POINCLOUX – Maisons de Manon, agence de Sainte-Maxime(Numéro supprimé)Avant-projet sur mesure selon vos besoins. D’autres configurations et modèles peuvent être étudiés.En collaboration avec notre partenaire foncier et sous réserve de disponibilité.Ce bien ne vous convient pas ? Nous vous accompagnons aussi dans la recherche de votre terrain.Annonce proposée par un Agent Commercial Partenaire.
Fréjus
TERRAINTERRAIN A BATIR sur Fréjus (83600) , plat viabilisé ,Les Maisons de Manon de Callian .contactez Fred CEFFIS au (Numéro supprimé), je vous propose de construire une villa sur mesure ,les plans et le chiffrage de votre projet sur simple appel . Annonce proposée par un Agent Commercial Partenaire.
Puget-sur-Argens
TERRAIN ET MAISONA PUGET-SUR-ARGENS sur un terrain de 611 m², VILLAS PRISME vous propose de réaliser votre projet de construction de maison individuelle d'une surface de 105 m² habitables avec 4 chambres.Avec VILLAS PRISME, vous pouvez personnaliser votre projet de maison sur mesure :- Plan et distribution- Système de chauffage au choix- Prestations et équipements selon vos souhaits : carrelages, faïence, menuiseries, salles de bains…- Mode constructif et matériaux selon les normes en vigueur Informations du terrain : Plat ViabiliséRaccordé au tout à l'égoutEmprise au sol de 152 m²Secteur très calme et recherchéDemandez une étude gratuite et personnalisée de votre projet de construction !Contactez Manon GUIRAUDOU au (Numéro supprimé) (Villas Prisme – Agence de Brignoles).Prix avec assurance dommages-ouvrage comprise, hors VRD, terrain viabilisé, frais de notaire non compris, frais divers non compris. Terrain sélectionné et vu pour vous sous réserve de disponibilité et au prix indiqué par notre partenaire foncier. Non mandaté pour la vente du terrain. Visuels non contractuels.Cette annonce a été créée et diffusée avec le logiciel VITAHOME.
Puget-sur-Argens
TERRAINPlatEntièrement viabiliséSecteur calme et résidentielTrès recherché130 m² de surface de plancherA saisir !Prix : 280000 €.Sur ce terrain de 610 m² à PUGET-SUR-ARGENS, VILLAS PRISME vous propose de réaliser votre projet de construction de maison individuelle.Avec VILLAS PRISME, vous pouvez personnaliser votre projet de maison sur mesure :- Plan et distribution- Système de chauffage au choix- Prestations et équipements selon vos souhaits : carrelages, faïence, menuiseries, salles de bains…- Mode constructif et matériaux selon les normes en vigueur Demandez une étude gratuite et personnalisée de votre projet de construction sur ce terrain à PUGET-SUR-ARGENS ! Prix hors frais de notaire. Terrain sélectionné et vu pour vous sous réserve de disponibilité et au prix indiqué par notre partenaire foncier. Non mandaté pour la vente du terrain. Visuels non contractuels.Cette annonce a été créée et diffusée avec le logiciel VITAHOME.
Puget-sur-Argens
TERRAIN ET MAISONA PUGET-SUR-ARGENS sur un terrain de 582 m², VILLAS PRISME vous propose de réaliser votre projet de construction de maison individuelle d'une surface de 92 m² habitables avec 3 chambres.Avec VILLAS PRISME, vous pouvez personnaliser votre projet de maison sur mesure :- Plan et distribution- Système de chauffage : climatisation gainable- Prestations et équipements selon vos souhaits : carrelages, faïence, menuiseries, salles de bains…- Mode constructif et matériaux selon les normes en vigueur Informations du terrain : Terrain plat, proche accès autoroute dans petit lotissement.Demandez une étude gratuite et personnalisée de votre projet de construction !Contactez Patrice JANNET au (Numéro supprimé) (Villas Prisme – Agence de Fréjus).Prix pour une maison prête à décorer avec VRD et taxes de raccordement, assurance dommages-ouvrage comprise et hors frais de notaire et aménagements extérieurs (terrasse, piscine, clôtures…) Terrain sélectionné et vu pour vous sous réserve de disponibilité et au prix indiqué par notre partenaire foncier. Non mandaté pour la vente du terrain. Visuels non contractuels.Cette annonce a été créée et diffusée avec le logiciel VITAHOME.
Puget-sur-Argens
TERRAINPuget sur Argens, très beau terrain de 454m² situé dans une dans une pinède plate à l'Ouest de Puget, quartier résidentiel. Proche des accès autoroutiers et de la ville dans un cadre verdoyant. Viabilités sur place, vu pour vous par les villas Prisme avec le concours de notre partenaire foncier sous réserve de disponibilité. CSU 10 TEL (Numéro supprimé)Prix : 190000 €.Sur ce terrain de 454 m² à PUGET-SUR-ARGENS, VILLAS PRISME vous propose de réaliser votre projet de construction de maison individuelle.Avec VILLAS PRISME, vous pouvez personnaliser votre projet de maison sur mesure :- Plan et distribution- Système de chauffage au choix- Prestations et équipements selon vos souhaits : carrelages, faïence, menuiseries, salles de bains…- Mode constructif et matériaux selon les normes en vigueur Demandez une étude gratuite et personnalisée de votre projet de construction sur ce terrain à PUGET-SUR-ARGENS ! Prix hors frais de notaire. Terrain sélectionné et vu pour vous sous réserve de disponibilité et au prix indiqué par notre partenaire foncier. Non mandaté pour la vente du terrain. Visuels non contractuels.Cette annonce a été créée et diffusée avec le logiciel VITAHOME.
L’actualité immobilière à Puget-sur-Argens
27/11/2023
02/11/2023
30/10/2023
20/10/2023
16/10/2023
16/10/2023