Maison à construire à Puget-sur-Argens (83480)
Images
Description
Natacha Espinosa de Maisons France Confort, vous propose de venir construire sur un terrain plat situé dans un quartier calme et résidentiel de Puget sur Argens, non loin de l'autoroute.
Ce terrain de 1055m² dont 787m² utile vendu viabilisé, vous permettra de créer votre villa de plain pied ou en étage.
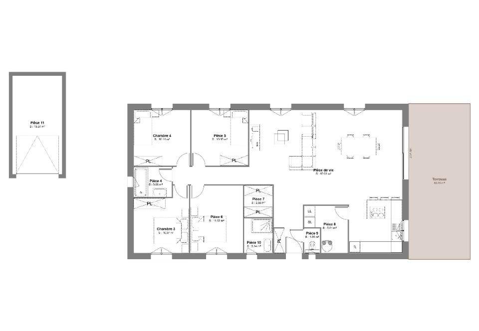
Je vous propose ici, un projet de plain pied de 120m² idéal pour une famille. Vous y trouverez trois chambres avec une salle de bain indépendante ainsi qu'une suite parentale avec son dressing et sa salle d'eau. Une grande pièce de vie ouverte sur l'extérieur vous permettra de profiter de bons moments en famille ou entre amis. Pour le côté fonctionnel, vous disposerez également d'un grand cellier attenant à la cuisine.
Un garage indépendant vient également compléter ce projet.
Vous souhaitez en savoir plus sur celui-ci ou en élaborer un plus personnel?
Contactez Natacha Espinosa de Maisons France Confort au (Numéro supprimé)
Le prix comprend: terrain, construction (voir descriptif prestations lors du rendez-vous), provision terrassement.
Le prix ne comprend pas: frais de notaire du terrain, taxes et raccordements, aménagements intérieurs (voir descriptif lors du rdv), aménagements extérieurs
Logement susceptibles de vous intéresser
Nous vous proposons de découvrir aussi cette sélection de logements situés à moins de 10km de Puget-sur-Argens et qui seraient susceptibles de vous intéresser.
Fréjus
TERRAINSitué à la sortie de Fréjus, ce nouveau programme propose des terrains plats et au calme, à l’écart de la route, dans un environnement verdoyant et préservé.Le lotissement, entièrement clôturé, offre un cadre de vie serein, idéal pour construire une maison contemporaine ou provençale, selon vos envies et votre mode de vie.Un emplacement privilégié :Accès autoroute A8 à 2 minutes, pour rejoindre rapidement Cannes, Nice ou ToulonCentre-ville de Fréjus à 10 minutes et plages à seulement 15 minutesGare SNCF et principaux axes à proximitéUn quotidien facilité :Crèches, écoles, commerces, supermarchés, pharmacies et services de santé accessibles en quelques minutes. Vous profitez ainsi d’un confort de vie optimal tout en restant proche de la nature.Ce programme se situe à proximité des pôles d’activités de Fréjus-Saint-Raphaël, Puget-sur-Argens et Sophia-Antipolis, un atout pour les actifs du secteur.Renseignements :Yannick POINCLOUX – Maisons de Manon, agence de Sainte-Maxime(Numéro supprimé)Avant-projet sur mesure selon vos besoins. D’autres configurations et modèles peuvent être étudiés.En collaboration avec notre partenaire foncier et sous réserve de disponibilité.Ce bien ne vous convient pas ? Nous vous accompagnons aussi dans la recherche de votre terrain.Annonce proposée par un Agent Commercial Partenaire.
Fréjus
TERRAINSitué à la sortie de Fréjus, ce nouveau programme propose des terrains plats et au calme, à l’écart de la route, dans un environnement verdoyant et préservé.Le lotissement, entièrement clôturé, offre un cadre de vie serein, idéal pour construire une maison contemporaine ou provençale, selon vos envies et votre mode de vie.Un emplacement privilégié :Accès autoroute A8 à 2 minutes, pour rejoindre rapidement Cannes, Nice ou ToulonCentre-ville de Fréjus à 10 minutes et plages à seulement 15 minutesGare SNCF et principaux axes à proximitéUn quotidien facilité :Crèches, écoles, commerces, supermarchés, pharmacies et services de santé accessibles en quelques minutes. Vous profitez ainsi d’un confort de vie optimal tout en restant proche de la nature.Ce programme se situe à proximité des pôles d’activités de Fréjus-Saint-Raphaël, Puget-sur-Argens et Sophia-Antipolis, un atout pour les actifs du secteur.Renseignements :Yannick POINCLOUX – Maisons de Manon, agence de Sainte-Maxime(Numéro supprimé)Avant-projet sur mesure selon vos besoins. D’autres configurations et modèles peuvent être étudiés.En collaboration avec notre partenaire foncier et sous réserve de disponibilité.Ce bien ne vous convient pas ? Nous vous accompagnons aussi dans la recherche de votre terrain.Annonce proposée par un Agent Commercial Partenaire.
Fréjus
TERRAINSitué à la sortie de Fréjus, ce nouveau programme propose des terrains plats et au calme, à l’écart de la route, dans un environnement verdoyant et préservé.Le lotissement, entièrement clôturé, offre un cadre de vie serein, idéal pour construire une maison contemporaine ou provençale, selon vos envies et votre mode de vie.Un emplacement privilégié :Accès autoroute A8 à 2 minutes, pour rejoindre rapidement Cannes, Nice ou ToulonCentre-ville de Fréjus à 10 minutes et plages à seulement 15 minutesGare SNCF et principaux axes à proximitéUn quotidien facilité :Crèches, écoles, commerces, supermarchés, pharmacies et services de santé accessibles en quelques minutes. Vous profitez ainsi d’un confort de vie optimal tout en restant proche de la nature.Ce programme se situe à proximité des pôles d’activités de Fréjus-Saint-Raphaël, Puget-sur-Argens et Sophia-Antipolis, un atout pour les actifs du secteur.Renseignements :Yannick POINCLOUX – Maisons de Manon, agence de Sainte-Maxime(Numéro supprimé)Avant-projet sur mesure selon vos besoins. D’autres configurations et modèles peuvent être étudiés.En collaboration avec notre partenaire foncier et sous réserve de disponibilité.Ce bien ne vous convient pas ? Nous vous accompagnons aussi dans la recherche de votre terrain.Annonce proposée par un Agent Commercial Partenaire.
Puget-sur-Argens
TERRAIN ET MAISONDEVENEZ PROPRIETAIRE ! Contactez le (Numéro supprimé)Maisons France Confort Rocbaron vous propose de faire bâtir votre villa personnalisée sur ce terrain de plus de 600m2 viabilisé et plat. Cette maison de 117m2 habitables propose un bel espace de vie de plus de 45m2 avec entrée indépendante, wc et cellier au rez-de-chaussée. Une suite parentale avec dressing et salle d’eau est également disponible ainsi qu’un bureau au rdc. A l’étage vous trouverez 2 chambres ainsi qu’une salle de bains avec wc indépendant. Un garage d’environ 30m² est attenant à la construction.Vous rejoindrez les axes autoroutiers en deux minutes ainsi que toutes les commodités, pratique au quotidien cet environnement est idéal pour les familles actives.Vous pourrez personnaliser selon vos envies votre maison en rencontrant Samantha, votre chargée de projet dédiée.Budget global d’investissement à partir de 605 000 € hors frais de notaire, et taxes.Toutes nos réalisations sont conformes à la réglementation environnementale en vigueur, atout majeur pour mieux maîtriser votre facture énergétique ! N’attendez plus et contactez le (Numéro supprimé).
Puget-sur-Argens
TERRAINDevenez ou redevenez propriétaire! Contactez le (Numéro supprimé)Votre constructeur de référence Maisons France Confort vous propose de faire bâtir votre villa sur ce beau terrain plat et viabilisé à Puget-sur-Argens. Vous trouverez en 2 minutes l’accès autoroutiers ainsi que toutes les commodités et écoles. De plain pied ou à étage vous pourrez réaliser jusqu’ 126m² habitables + Annexe.Détails des prestations et personnalisation de votre future maison neuve sur rendez-vous.Contactez votre chargée de projet Samantha RICAUD au (Numéro supprimé).
Fréjus
TERRAIN ET MAISONÉlégante, compacte, lumineuse : ce modèle redéfinit la maison urbaine.Pensée pour les terrains à petite façade, elle séduit par ses lignes cubiques épurées, son toit plat graphique et sa signature architecturale affirmée.À l’intérieur, l’espace s’organise avec intelligence.Une pièce de vie traversante, baignée de lumière naturelle, ouverte sur le jardin.Une suite parentale au rez-de-chaussée pour préserver l’intimité et le confort du quotidien.À l’étage, deux chambres spacieuses, une salle de bain élégante, et un espace modulable pour télétravailler, jouer ou se détendre.Chaque mètre carré est pensé, chaque volume optimisé.C’est la preuve qu’on peut allier style, fonctionnalité et bien-être, même sur un terrain urbain.Conforme à la norme RE2020, elle offre performance énergétique, qualité de vie et modernité intemporelle.Un projet de construction ou de rénovation ?Contactez Yannick POINCLOUX de votre agence Maisons de Manon Sainte-Maxime4 avenue de Lattre de Tassigny – 83120 Sainte-Maxime(Numéro supprimé)Annonce proposée par un Agent Commercial Partenaire.
Fréjus
TERRAIN ET MAISONUne architecture moderne, des lignes pures et un équilibre parfait entre esthétique et fonctionnalité.Cette maison contemporaine à toit plat s’adapte idéalement aux terrains à petite façade tout en offrant un espace de vie spacieux et lumineux, ouvert sur le jardin.Au rez-de-chaussée, une suite parentale avec salle d’eau privative apporte confort et intimité, tandis que le cellier et le garage attenant facilitent le quotidien.À l’étage, trois chambres harmonieuses, une salle de bain élégante et un espace détente modulable créent un univers à la fois fonctionnel et chaleureux.Chaque détail a été pensé pour optimiser l’espace, valoriser la lumière naturelle et offrir un confort durable, dans le respect des exigences RE2020.Une maison au design affirmé, pensée pour ceux qui recherchent l’équilibre entre modernité, confort et qualité de vie.Un projet de construction ou de rénovation ?Contactez Yannick POINCLOUXMaisons de Manon Sainte-Maxime4 avenue de Lattre de Tassigny – 83120 Sainte-MaximeTél : (Numéro supprimé)Annonce proposée par un Agent Commercial Partenaire.
Fréjus
TERRAIN ET MAISONPensée pour s’intégrer harmonieusement sur des terrains urbains, cette maison séduit par son architecture contemporaine, ses volumes équilibrés et son jeu de lumière spectaculaire.Le rez-de-chaussée offre un grand espace de vie traversant ouvert sur le jardin, baigné de lumière grâce à de larges baies vitrées et un vide sur séjour qui accentue la hauteur et la sensation d’espace.La cuisine ouverte s’intègre naturellement à la pièce de vie, tandis qu’un cellier attenant, un garage intégré et un auvent ombragé ajoutent confort et fonctionnalité au quotidien.À l’étage, trois chambres spacieuses, dont une avec dressing, sont complétées par une salle d’eau, une salle de bain et un coin bureau modulable.Une maison où la lumière devient matière, où chaque mètre carré est pensé pour offrir bien-être, confort et élégance, dans le respect des exigences RE2020.Un projet de construction ou de rénovation ?Contactez Yannick POINCLOUXMaisons de Manon Sainte-Maxime4 avenue de Lattre de Tassigny – 83120 Sainte-MaximeTél : (Numéro supprimé)Annonce proposée par un Agent Commercial Partenaire.
Fréjus
TERRAINSitué à la sortie de Fréjus, ce nouveau programme propose des terrains plats et au calme, à l’écart de la route, dans un environnement verdoyant et préservé.Le lotissement, entièrement clôturé, offre un cadre de vie serein, idéal pour construire une maison contemporaine ou provençale, selon vos envies et votre mode de vie.Un emplacement privilégié :Accès autoroute A8 à 2 minutes, pour rejoindre rapidement Cannes, Nice ou ToulonCentre-ville de Fréjus à 10 minutes et plages à seulement 15 minutesGare SNCF et principaux axes à proximitéUn quotidien facilité :Crèches, écoles, commerces, supermarchés, pharmacies et services de santé accessibles en quelques minutes. Vous profitez ainsi d’un confort de vie optimal tout en restant proche de la nature.Ce programme se situe à proximité des pôles d’activités de Fréjus-Saint-Raphaël, Puget-sur-Argens et Sophia-Antipolis, un atout pour les actifs du secteur.Renseignements :Yannick POINCLOUX – Maisons de Manon, agence de Sainte-Maxime(Numéro supprimé)Avant-projet sur mesure selon vos besoins. D’autres configurations et modèles peuvent être étudiés.En collaboration avec notre partenaire foncier et sous réserve de disponibilité.Ce bien ne vous convient pas ? Nous vous accompagnons aussi dans la recherche de votre terrain.Annonce proposée par un Agent Commercial Partenaire.
L’actualité immobilière à Puget-sur-Argens
27/11/2023
02/11/2023
30/10/2023
20/10/2023
16/10/2023
16/10/2023