Maison à construire à Saint-Maximin-la-Sainte-Baume (83470)
Images
Description
Projet de construction à Saint Maximin la sainte Baume, à 20 min de Aix, d'Aubagne et de Brignoles
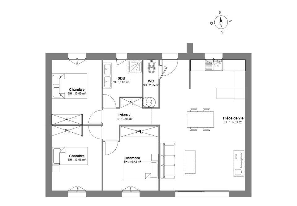
Venez construire votre maison, le modèle proposé est entièrement personnalisable, il comporte 3 chambres sur un terrain de 600m2 pour une superficie de 77m2 habitable
Il y a des établissements scolaires du primaire et du secondaire à moins de 10 minutes à pied. Il y a un accès à l'autoroute A8 à 2 km. On trouve une bibliothèque, un bassin de natation, un bowling, des boulangeries, des commerces, quatre supermarchés, trois épiceries et des boucheries-charcuteries dans les environs.
Contactez Florence INGARGIOLA au (Numéro supprimé) pour une étude personnalisée de votre projet à partir de 345000 euros hors frais de notaire, taxes et aménagements. Maisons de Manon Brignoles vous accompagne à toutes les étapes de votre projet.
Logement susceptibles de vous intéresser
Nous vous proposons de découvrir aussi cette sélection de logements situés à moins de 10km de Saint-Maximin-la-Sainte-Baume et qui seraient susceptibles de vous intéresser.
Tourves
TERRAINRARE A LA VENTE ! Contactez le (Numéro supprimé)A 40minutes d’Aix-en-Provence et d’Aubagne, 1h de Marseille, emplacement stratégique. Maisons France Confort vous propose de faire bâtir votre villa personnalisée sur ce terrain viabilisé de 505m² au calme en fond d’impasse. Vous trouverez assez rapidement la DN7 qui mène côté Est à 12km sur Brignoles puis à l’Ouest à 8km sur Saint-Maximin-la-Sainte-Baume.Commerce, écoles, garderies, services, transports sur place.Vous pourrez construire une maison allant jusqu’à 200m² habitables.Toutes nos réalisations sont conformes à la réglementation environnementale en vigueur, atout majeur pour mieux maîtriser votre facture énergétique ! N’attendez plus et contactez votre chargée de projet Samantha au (Numéro supprimé) qui vous accompagnera dans votre projet réalisé sur mesure avec faisabilité technique et financière.
Tourves
TERRAINA saisir !Beau terrain arboré de 3077 m2.Cabanon édifié d’environ 12m2, taxe foncière 97 euros.Accès facile à 5 mn du village…Zone agricole, possibilité de construction liée à la mise en place d’une exploitation agricole.Ce bien vous est proposé au prix de 89 000 euros honoraires charge vendeur.Pour visiter et vous accompagner dans votre projet, contactez Jean Charles WENDLING, au (Numéro supprimé) ou, par courriel à (Email supprimé).Selon l’article L.561.5 du Code Monétaire et Financier, pour l’organisation de la visite, la présentation d’une pièce d’identité vous sera demandée.Cette présente annonce a été rédigée sous la responsabilité éditoriale de Jean Charles WENDLING agissant sous le statut d’agent commercial immatriculé au RSAC MARSEILLE 849214101 auprès de SAS PROPRIETES PRIVEES, au capital de 44 920 euros, ZAC LE CHÊNE FERRÉ – 44 ALLÉE DES CINQ CONTINENTS 44120 VERTOU; SIRET 487 624 777 00040, RCS Nantes. Carte Professionnelle Transactions sur immeubles et fonds de commerce (T) et Gestion immobilière (G) n°CPI 4401 2016 000 010 388 délivrée par la CCI Nantes – Saint Nazaire. Compte séquestre n(Numéro supprimé)67 BPA SAINT-SEBASTIEN-SUR-LOIRE (44230). Garantie GALIAN-SMABTP – 89 rue de la Boétie, 75008 Paris – n°28137 J pour 2 000 000 euros pour T et 120 000 euros pour G. Assurance responsabilité civile professionnelle par GALIAN-SMABTP n° de police 28137.JMandat réf : 412278 – Le professionnel garantit et sécurise votre projet immobilier.ESTIMATION GRATUITE DE VOTRE BIEN SOUS 48H…. Jean Charles WENDLING (EI) Agent Commercial – Numéro RSAC : MARSEILLE 849214101 – .
Saint-Maximin-la-Sainte-Baume
TERRAINTerrain de 2 300 m² à Saint-Maximin-la-Sainte-BaumeQuartier recherché – À vendre : réalisez votre projet sur ce terrain de 2 300 m², exposé au sud à Saint-Maximin-la-Sainte-Baume (83470).Celui-ci vous offre une emprise au sol de 5% et 30% supplémentaires en étage partiel.À dix minutes : établissements scolaires ( maternelles, primaires, collèges, lycées), Autoroute A8 à 2 km. Mer Méditerranée à 36 km. Aubagne à 30 km.Il nous est proposé par notre partenaire foncier au prix de 230 000 €. Les viabilités sont en bordure, un assainissement non collectif est nécessaire. N » »hésitez pas à prendre contact avec Fatima SANCHEZ (tél : (Numéro supprimé)) pour plus de renseignements sur le terrain et étude de votre projet de construction. Faites de vos projets immobiliers une réalité avec Maisons France Confort Vidauban.
Saint-Maximin-la-Sainte-Baume
TERRAIN ET MAISONMaison à construire à Saint-Maximin-la-Sainte-BaumeMaisons France Confort vous propose, en accord avec son partenaire foncier, cette très joli maison de plus de 90m² en forme L qui sera édifiée sur un beau terrain plat de 2300m² dans un secteur convoité de Saint-Maximin-la-Sainte-Baume (83470). Son intérieur compte trois chambres, une cuisine et une salle de bains.Cette maison est située dans un quartier attractif. Il y a des écoles de tous niveaux (de la maternelle au lycée) à moins de 10 minutes à pied. L’autoroute A8 est accessible à 2 km et permet de relier les axes Alpes Maritimes – Bouches du Rhône.Le budget prévisionnel de ce projet est de 440 000 € inclus le terrain les frais de notaire, le coût de construction et les travaux annexes ( fosse septique, terrassement, tranchées de raccordement au différents réseaux..). Ce budget s’entend sous réserve d’étude de sol et de visite technique)Contactez Fatima SANCHEZ au (Numéro supprimé) pour toute information sur ce projet. Maisons France Confort Fréjus vous accompagne à toutes les étapes de votre projet et dans toutes vos démarches.
Bras
TERRAINVotre conseiller Propriété privées vous propose , sur la commune de Bras 83149 :Terrain situé route de Barjols , cadastré E 15 .D’une surface de 15720 m² , de nature de collineTerrain inconstructiblePrix 25500 euros honoraires charge vendeur inclusPour visiter et vous accompagner dans votre projet, contactez Hakim MOURADI, au (Numéro supprimé) ou, par courriel à (Email supprimé).Selon l’article L.561.5 du Code Monétaire et Financier, pour l’organisation de la visite, la présentation d’une pièce d’identité vous sera demandée.Cette présente annonce a été rédigée sous la responsabilité éditoriale de Hakim MOURADI agissant en qualité de conseiller immobilier indépendant sous portage salarial auprès de SAS PROPRIETES PRIVEES, au capital de 44 920 euros, ZAC LE CHÊNE FERRÉ – 44 ALLÉE DES CINQ CONTINENTS 44120 VERTOU; SIRET 487 624 777 00040, RCS Nantes. Carte Professionnelle Transactions sur immeubles et fonds de commerce (T) et Gestion immobilière (G) n°CPI 4401 2016 000 010 388 délivrée par la CCI Nantes – Saint Nazaire. Compte séquestre n(Numéro supprimé)67 BPA SAINT-SEBASTIEN-SUR-LOIRE (44230). Garantie GALIAN-SMABTP – 89 rue de la Boétie, 75008 Paris – n°28137 J pour 2 000 000 euros pour T et 120 000 euros pour G. Assurance responsabilité civile professionnelle par GALIAN-SMABTP n° de police 28137.JMandat réf : 412835 MRH Le professionnel et sécurise votre projet immobilier.
Saint-Maximin-la-Sainte-Baume
TERRAIN ET MAISONVotre villa contemporaine à Saint Maximin la Sainte Baume :Proposition de maison alliant confort, harmonie et authenticité.Contact : Bérengère Eudier (Numéro supprimé) à l’agence de Brignoles.Joli petit mas provençal de 60m² habitables offrant 2 chambres.Modulable selon vos envies, nous adapterons votre cocoon à la demande.Adapté au terrain de 600m², l’ensemble est présenté à partir de 310 000€.L’équipe Maisons de Manon Brignoles s’engage pour réaliser vos rêves tout en garantissant votre investissement.
Saint-Maximin-la-Sainte-Baume
TERRAIN ET MAISONVotre villa contemporaine à Saint Maximin la Sainte Baume :Proposition de maison alliant confort, harmonie et authenticité.Contact : Bérengère Eudier (Numéro supprimé) à l’agence de Brignoles.Très belle maison provençale de 140m² habitables offrant 4 chambres.Vous serez charmé par ses volumes et son style.Modulable selon vos envies, nous adapterons votre cocoon à la demande.Adapté au terrain de 800m², l’ensemble est présenté à partir de 460 000€.L’équipe Maisons de Manon Brignoles s’engage pour réaliser vos rêves tout en garantissant votre investissement.
Saint-Maximin-la-Sainte-Baume
TERRAIN ET MAISONVotre villa traditionnelle à Saint Maximin la Sainte Baume :Proposition de maison alliant confort, harmonie et authenticité.Contact : Bérengère Eudier (Numéro supprimé) à l’agence de Brignoles.Jolie maison provençale de 105m² habitables en plain-pied offrant 4 chambres.Modulable selon vos envies, nous adapterons votre cocoon à la demande.Adapté au terrain de 800m², l’ensemble est présenté à partir de 380 000€.L’équipe Maisons de Manon Brignoles s’engage pour réaliser vos rêves tout en garantissant votre investissement.
Saint-Maximin-la-Sainte-Baume
TERRAIN ET MAISONVotre villa ultra contemporaine à Saint Maximin la Sainte Baume :Proposition de maison alliant confort, harmonie et modernité.Contact : Bérengère Eudier (Numéro supprimé) à l’agence de Brignoles.Magnifique villa étudiée pour les terrains atypiques de 115m² habitables offrant 4 chambres.Modulable selon vos envies, nous adapterons votre cocoon à la demande.Adapté au terrain de 800m², l’ensemble est présenté à partir de 420 000€.L’équipe Maisons de Manon Brignoles s’engage pour réaliser vos rêves tout en garantissant votre investissement.
L’actualité immobilière à Saint-Maximin-la-Sainte-Baume
27/11/2023
02/11/2023
30/10/2023
20/10/2023
16/10/2023
16/10/2023