Maison 105 m² avec terrain à TARADEAU (83)
Images
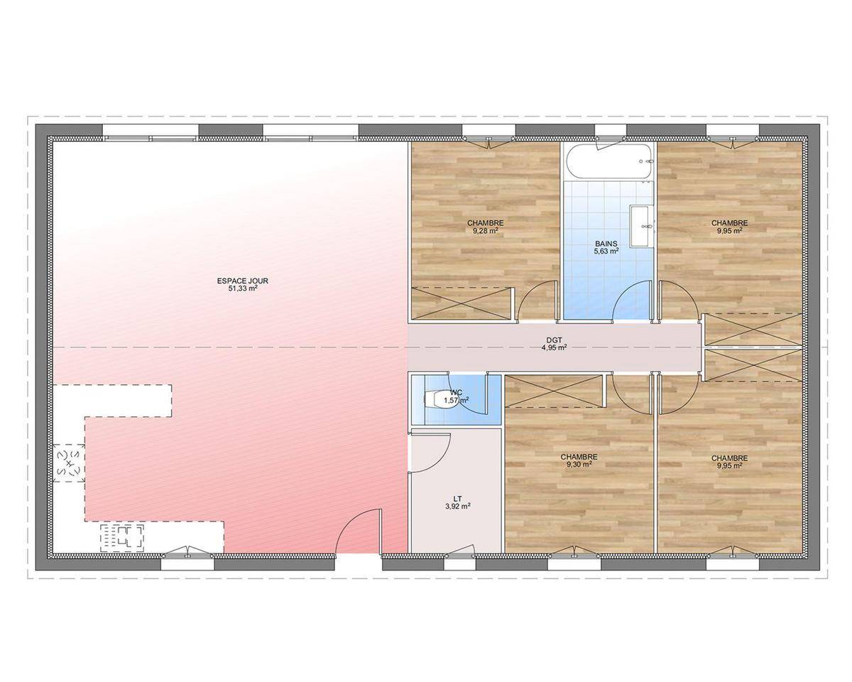
Description
A TARADEAU sur un terrain de 800 m², VILLAS PRISME vous propose de réaliser votre projet de construction de maison individuelle d'une surface de 105 m² habitables avec 4 chambres.
Avec VILLAS PRISME, vous pouvez personnaliser votre projet de maison sur mesure :
- Plan et distribution
- Système de chauffage au choix
- Prestations et équipements selon vos souhaits : carrelages, faïence, menuiseries, salles de bains...
- Mode constructif et matériaux selon les normes en vigueur
Informations du terrain : En position dominante
Entièrement viabilisé
140 m² d"emprise au sol.
Proximité du centre ville à pieds
Demandez une étude gratuite et personnalisée de votre projet de construction !
Contactez Manon GUIRAUDOU au (Numéro supprimé) (Villas Prisme - Agence de Brignoles).
Prix avec assurance dommages-ouvrage comprise, hors VRD, terrain viabilisé, frais de notaire non compris, frais divers non compris. Terrain sélectionné et vu pour vous sous réserve de disponibilité et au prix indiqué par notre partenaire foncier. Non mandaté pour la vente du terrain. Visuels non contractuels.
Cette annonce a été créée et diffusée avec le logiciel VITAHOME.
Logement susceptibles de vous intéresser
Nous vous proposons de découvrir aussi cette sélection de logements situés à moins de 10km de Taradeau et qui seraient susceptibles de vous intéresser.
Taradeau
TERRAIN ET MAISONProposition de mas provençal ultra contemporain implanté dans la campagne de Taradeau.Estimation de l’investissement terrain + Maison : 367 000€.Contactez Bérengère Eudier (Numéro supprimé) à l’agence de Brignoles, pour toute information sur ce bien. Modulables selon vos besoin, nos maisons portent toutes la signature du Sud avec leurs rangs de génoises typiques, des jeux d’enduits travaillés et d’élégantes patines. Les matériaux durables sont sélectionnés avec soin afin de préserver l’environnement.Maisons de Manon : Plus qu’une maison, un art de vivre !Nous vous accompagnons dans tous vos projets immobiliers et vos démarches tout en offrant les garanties du CCMI.
Lorgues
TERRAIN83510 – LORGUES – QUARTIER CALME et NATUREL- TERRAIN CONSTRUCTIBLE – 753.0 M² – BELLE OPPORTUNITÉ À SAISIR!efficity, l’agence qui estime votre bien en ligne, vous propose ce terrain VIABILISE constructible de 753m2, avec une surface utile de 667m2 et une surface plancher de 135m2.Il est idéalement situé Proche du centre ville et des installations sportives, dans un nouveau petit lotissement.Dans un environnement calme et paisible jonché d’oliviers, son exposition Sud Sud-Est garantit une luminosité optimale tout au long de la journée. Les informations sur les risques auxquels ce bien est exposé sont disponibles sur le site Georisque : georisques. gouv. fr Gregory Pierret – EI – est Agent Commercial mandataire en immobilier, immatriculé au Registre Spécial des Agents Commerciaux du Tribunal de Commerce de draguignan sous le n(Numéro supprimé).Siège social du mandant : effiCity, 48 avenue de Villiers – 75017 PARIS – Société par Actions Simplifiée, société au capital de 132 373,05 euros, immatriculée au RCS Paris 497 617 746 et titulaire de la Carte professionnelle CPI 7501 2015 000 002 025 – CCI Paris IDF – Caisse de Garantie : GALIAN Assurances 89 rue de la Boétie 75008 Paris
Lorgues
TERRAIN83510 – LORGUES – QUARTIER CALME et NATUREL- TERRAIN CONSTRUCTIBLE – 1814.0 M² – BELLE OPPORTUNITÉ À SAISIR!efficity, l’agence qui estime votre bien en ligne, vous propose ce terrain VIABILISE constructible de 1814m2, avec une surface utile de 1454m2 et une surface plancher de 302m2.Possibilité de construire 2 villas sur la parcelle.Il est idéalement situé Proche du centre ville et des installations sportives, dans un nouveau petit lotissement.Dans un environnement calme et paisible jonché d’oliviers, son exposition Sud Sud-Est garantit une luminosité optimale tout au long de la journée. Les informations sur les risques auxquels ce bien est exposé sont disponibles sur le site Georisque : georisques. gouv. fr Gregory Pierret – EI – est Agent Commercial mandataire en immobilier, immatriculé au Registre Spécial des Agents Commerciaux du Tribunal de Commerce de draguignan sous le n(Numéro supprimé).Siège social du mandant : effiCity, 48 avenue de Villiers – 75017 PARIS – Société par Actions Simplifiée, société au capital de 132 373,05 euros, immatriculée au RCS Paris 497 617 746 et titulaire de la Carte professionnelle CPI 7501 2015 000 002 025 – CCI Paris IDF – Caisse de Garantie : GALIAN Assurances 89 rue de la Boétie 75008 Paris
Lorgues
TERRAIN ET MAISONA LORGUES sur un terrain de 753 m², VILLAS PRISME vous propose de réaliser votre projet de construction de maison individuelle d'une surface de 80 m² habitables avec 3 chambres.Avec VILLAS PRISME, vous pouvez personnaliser votre projet de maison sur mesure :- Plan et distribution- Système de chauffage au choix- Prestations et équipements selon vos souhaits : carrelages, faïence, menuiseries, salles de bains…- Mode constructif et matériaux selon les normes en vigueur Plat Exposé plein sudViabiliséEmprise au sol de 125 m²Assainissement individuel à prévoirDemandez une étude gratuite et personnalisée de votre projet de construction !Contactez Manon GUIRAUDOU au (Numéro supprimé) (Villas Prisme – Agence de Brignoles).Prix avec assurance dommages-ouvrage comprise, hors VRD, terrain viabilisé, frais de notaire non compris, frais divers non compris. Terrain sélectionné et vu pour vous sous réserve de disponibilité et au prix indiqué par notre partenaire foncier. Non mandaté pour la vente du terrain. Visuels non contractuels.Cette annonce a été créée et diffusée avec le logiciel VITAHOME.
Lorgues
TERRAIN– Secteur château la Martinette – Amoureux de nature, ce terrain de 8429 m² situé au coeur du Var, à Lorgues, est fait pour vous !Nichée dans un environnement calme et verdoyant, cette belle parcelle en zone naturelle non constructible offre un cadre paisible, idéal pour profiter de la campagne, des balades en famille ou encore pour un projet de loisir (verger, ruches, détente?).Accessible, bien exposé et à seulement quelques minutes du centre du village, ce terrain séduit par son authenticité et son potentiel.Un véritable havre de paix pour les amoureux de la nature et du grand air.Prix : 17 000 euros commission charge vendeurPour visiter et vous accompagner dans votre projet, contactez Marion VIZIER, au (Numéro supprimé) ou, par courriel à (Email supprimé).Selon l’article L.561.5 du Code Monétaire et Financier, pour l’organisation de la visite, la présentation d’une pièce d’identité vous sera demandée.Cette présente annonce a été rédigée sous la responsabilité éditoriale de Marion VIZIER agissant en qualité de conseiller immobilier indépendant sous portage salarial auprès de SAS PROPRIETES PRIVEES, au capital de 44 920 euros, ZAC LE CHÊNE FERRÉ – 44 ALLÉE DES CINQ CONTINENTS 44120 VERTOU; SIRET 487 624 777 00040, RCS Nantes. Carte Professionnelle Transactions sur immeubles et fonds de commerce (T) et Gestion immobilière (G) n°CPI 4401 2016 000 010 388 délivrée par la CCI Nantes – Saint Nazaire. Compte séquestre n(Numéro supprimé)67 BPA SAINT-SEBASTIEN-SUR-LOIRE (44230). Garantie GALIAN-SMABTP – 89 rue de la Boétie, 75008 Paris – n°28137 J pour 2 000 000 euros pour T et 120 000 euros pour G. Assurance responsabilité civile professionnelle par GALIAN-SMABTP n° de police 28137.JMandat réf : 426581 – Le professionnel garantit et sécurise votre projet immobilier.
Trans-en-Provence
TERRAINNOUVEAU Terrain à vendre sur la commune de Trans en Provence – Contact : NICOLAS ISELI – (Numéro supprimé)Lot n°6 d’un petit lotissement en cours d’aménagement- Surface de la parcelle : 754 m²- Potentiel constructible : 120m² de surface plancher- Potentiel d’emprise au sol : 264 m²- Terrain viabilisé avec raccordement au Tout-à-l’égout- Belle exposition, quartier calme et résidentielD’autre lots sont à la vente, à partir de 139000€Un cadre idéal pour concrétiser votre projet de construction avec Maisons de ManonPour plus de renseignements, une étude et un accompagnement personnalisés contactez : NICOLAS ISELI – (Numéro supprimé)
Taradeau
TERRAINNouveau à Taradeau! Contactez moi au (Numéro supprimé)Maison France Confort vous propose ce magnifique terrain de 930 m² borné, viabilisé et piscinable. Il est idéalement situé, dans une quartier calme, résidentiel et très recherché, au coeur d’un environnement boisé et luxuriant.A moins de 10 min à pieds et 2 min en voiture de toutes les commodités, commerces, écoles, services, ce terrain vous permettra d’imaginer votre projet de construction pouvant aller jusqu’à 240 m².Pour créer votre projet sur mesure dans notre agence Maisons France Confort contactez moi au (Numéro supprimé)
Taradeau
TERRAINNouveau à Taradeau! Contactez moi au (Numéro supprimé)Maison France Confort vous propose ce magnifique terrain de 1244 m² borné, viabilisé et piscinable. Il est idéalement situé, dans une quartier calme, résidentiel et très recherché, au coeur d’un environnement boisé et luxuriant.A moins de 10 min à pieds et 2 min en voiture de toutes les commodités, commerces, écoles, services, ce terrain vous permettra d’imaginer votre projet de construction pouvant aller jusqu’à 240 m².Pour créer votre projet sur mesure dans notre agence Maisons France Confort contactez moi au (Numéro supprimé)
Taradeau
TERRAIN ET MAISONNouveau à Taradeau! Contactez moi au (Numéro supprimé)Maison France Confort vous propose ce magnifique terrain de 930 m² borné, viabilisé et piscinable. Il est idéalement situé, dans une quartier calme, résidentiel et très recherché, au coeur d’un environnement boisé et luxuriant.A moins de 10 min à pieds et 2 min en voiture de toutes les commodités, commerces, écoles, services, ce terrain vous permettra d’imaginer votre projet de construction pouvant aller jusqu’à 240 m².Nous avons pensé pour vous ce modèle type 3 de 90 m² composé d’une pièce de vie avec cuisine ouverte, un cellier, de 2 chambres, d’une salle de bain et WC séparé ainsi que d’un garage.Pour créer votre projet sur mesure avec notre agence Maisons France Confort Rocbaron contactez moi au (Numéro supprimé) Modèle non contractuel. Hors frais et charges
L’actualité immobilière à Taradeau
27/11/2023
02/11/2023
30/10/2023
20/10/2023
16/10/2023
16/10/2023