Maison neuve avec pisicne
Images
Description
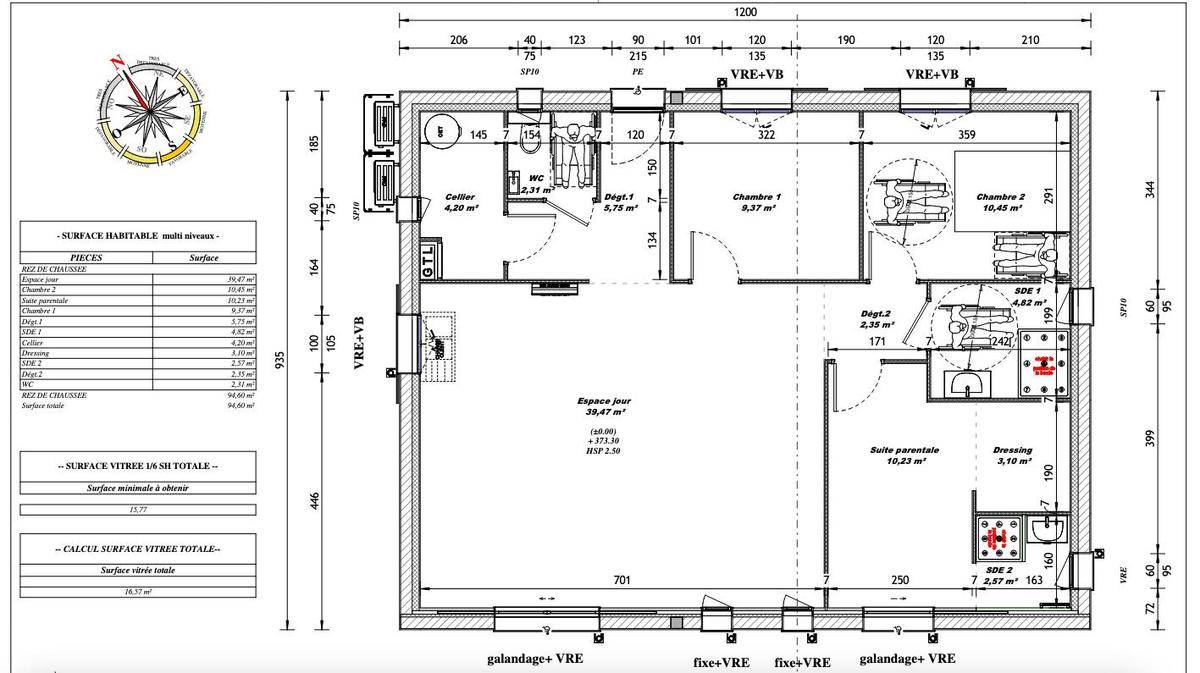
Maison neuve 95 m² 4 pièces - Piscine -Normes PMR
Une maison neuve, moderne et confortable, prête à vivre sans passer par les étapes d'un chantier, tout en vous laissant la possibilité de personnaliser certains éléments si l'achat est conclu à temps.
Cette construction répond aux normes PMR, avec des accès facilités et des circulations adaptées, le tout sur un seul niveau.
La maison se compose de :
Un bel espace de vie lumineux avec cuisine ouverte d'environ 40 m², équipé de baies à galandage pour profiter pleinement de l'extérieur.
3 chambres, dont une suite parentale avec dressing, salle d'eau et accès direct à la piscine.
Une seconde salle d'eau.
Un cellier.
Un WC indépendant.
Une piscine de 6 × 3 m.
Équipements et caractéristiques :
Blocs-portes adaptés aux normes PMR, seuils plats pour porte d'entrée et baie vitrée.
Grandes ouvertures dans chaque pièce pour optimiser lumière naturelle, ventilation et consommation énergétique.
Menuiseries PVC gris anthracite (RAL 7016).
Volets bois conformes aux prescriptions de la mairie de Tavernes.
Stores électriques à commande murale, pilotables via application (Hexaconnect ou équivalent).
Seuils et appuis de fenêtres en travertin avec finition arrondie.
Confort thermique et qualité des équipements :
Brasseurs d'air dans le séjour et deux chambres (télécommandes fournies).
Climatisation réversible dans la pièce de vie (Atlantic ou équivalent).
Panneaux rayonnants dans les chambres (Solius Digital ou équivalent).
Chauffe-eau thermodynamique 200 L.
Adoucisseur d'eau haut de gamme Laugil France.
Personnalisation possible :
Choix du carrelage et de certaines finitions intérieures selon l'avancement des travaux.
Un bien rare : une maison neuve clés en main, respectant les normes actuelles, pensée pour le confort quotidien et livrée avec toutes les garanties obligatoires (décennale, dommage-ouvrage, garantie de livraison).
Livraison prévue : à partir de juin 2026.
Logement susceptibles de vous intéresser
Nous vous proposons de découvrir aussi cette sélection de logements situés à moins de 10km de Tavernes et qui seraient susceptibles de vous intéresser.
Tavernes
TERRAINLes maisons de Manon et son partenaire foncier vous proposent un terrain de plus de 2500m2 sur la commune de Tavernes, à 10 min de Barjols et 20 min de Saint maximinA proximité du village, avec une emprise au sol de 25%, raccordements à prévoir, relié au tout à l’égoûtVous pouvez y construire une maison de plain pied ou étage selon vos enviesPossibilité de faire 2 logementsConstruction conforme à la RE2020 aux dernières normes permettant une faible consommation énergétique, en hiver mais aussi en été. Contactez Florence INGARGIOLA au (Numéro supprimé) pour toute question sur ce terrain et sur les modalités de vente. Maisons de Manon Brignoles vous accompagne dans toutes vos démarches et à toutes les étapes de votre projet.
Barjols
TERRAIN ET MAISONRARE A LA VENTE ! Contactez le (Numéro supprimé)Votre constructeur Maisons France Confort Rocbaron vous propose, avec son partenaire foncier, de faire bâtir votre projet de vie sur ce magnifique terrain, d’environ 691 m2 utiles dans un cadre campagne et paisible de Barjols. Situé à 25 minutes de Saint Maximin et de Brignoles, vous trouverez toutes les commodités sur la commune : 2 supermarchés, 3 boulangeries, collège, écoles etc. Cette maison en L propose un bel espace de vie ouvert de plus de 40m2, ainsi que 3 chambres et une salle de bains. Venez personnaliser votre maison de plain-pied d’environ 70m2 habitables comprenant 3 chambres + une salle d’eau.Budget global d’investissement : 285 000euros hors frais et taxes. Détails des prestations et personnalisation de votre future maison neuve sur rendez-vous.Contactez votre chargée de projet Samantha RICAUD au (Numéro supprimé)*Modèle non contractuel
Tavernes
TERRAIN ET MAISONA tavernes, à 20 min de saint Maximin La sainte Baume, venez construire votre maisonLe modèle proposé comporte 3 chambres et 1 salle de bainsEMPLACEMENT PRIVILÉGIÉ – VUE PANORAMIQUE – AU CALMETavernes, village de charme au coeur du Var, est réputé pour sa qualité de vie, ses marchés provençaux et sa communauté accueillante. Un cadre de vie idyllique vous attend.Contactez Florence INGARGIOLA au (Numéro supprimé) pour une étude personnalisée de votre projet à partir de 355000 euros hors frais de notaire, taxes et aménagements. Maisons de Manon Brignoles vous accompagne à toutes les étapes de votre projet.
Barjols
TERRAIN ET MAISONRARE A LA VENTE ! Contactez le (Numéro supprimé)Votre constructeur Maisons France Confort Rocbaron vous propose, avec son partenaire foncier, de faire bâtir votre projet de vie sur ce magnifique terrain, d’environ 691 m2 utiles dans un cadre campagne et paisible de Barjols. Situé à 25 minutes de Saint Maximin et de Brignoles, vous trouverez toutes les commodités sur la commune : 2 supermarchés, 3 boulangeries, collège, écoles etc. Cette maison en L propose un bel espace de vie ouvert de plus de 40m2, ainsi que 3 chambres et une salle de bains. Venez personnaliser votre maison de plain-pied d’environ 90m2 habitables + local à vélo attenant. Budget global d’investissement : 305 000euros hors frais et taxes. Détails des prestations et personnalisation de votre future maison neuve sur rendez-vous.Contactez votre chargée de projet Samantha RICAUD au (Numéro supprimé)*Modèle non contractuel
Barjols
TERRAINRARE A LA VENTE ! Contactez le (Numéro supprimé)Votre constructeur Maisons France Confort Rocbaron vous propose, avec son partenaire foncier, de faire bâtir votre projet de vie sur ce magnifique terrain, d’environ 691 m2 dans un cadre campagne et paisible de Barjols. Situé à 25 minutes de St Maximin et de Brignoles, vous y trouverez l’accès autoroutier. Toutes les commodités sont sur la commune 2 supermarchés, 3 boulangeries, écoles, collège etc. Le terrain est viabilisé et vous pourrez construire jusqu’à 138m2 au sol. Détails des prestations et personnalisation de votre future maison neuve sur rendez-vous.Contactez votre chargée de projet Samantha RICAUD au (Numéro supprimé)
Barjols
TERRAIN ET MAISONProjet de constrcution à Barjols, à 20 min de saint MaximinÀ vendre : située à 49 km de la mer Méditerranée, à Barjols (83670), nous vous proposons cette maison de 5 pièces de plain-pied de 101 m². Elle dispose de quatre chambres, d’une cuisine, une salle de bains et un garageLe terrain du bien est de 700 m².Cette maison est neuve.L’École Maternelle Pierre Perret, le Collège Joseph d’Arbaud et l’École Primaire Aristide Briand se trouvent à moins de 10 minutes à pied. L’autoroute A8 est accessible à 16 km. Il y a un tennis, un bassin de natation, des commerces, trois boulangeries, un supermarché, un bureau de poste et une boucherie-charcuterie à proximité.Contactez Florence INGARGIOLA au (Numéro supprimé) pour une étude personnalisée de votre projet à partir de 339000 euros hors frais de notaire, taxes et aménagements. Maisons de Manon Brignoles vous accompagne à toutes les étapes de votre projet
Barjols
TERRAIN ET MAISONProjet de construction à Barjols, à 20 min de saint maximinÀ vendre : localisée à 49 km de la mer Méditerranée, nous sommes ravis de vous présenter cette maison de 4 pièces de plain-pied de 77 m² à Barjols (83670).Conçue de plain-pied, elle se divise en trois chambres, une cuisine et une salle de bains. Cette maison est neuve.Le terrain du bien s’étend sur 700 m².Il y a l’École Maternelle Pierre Perret, le Collège Joseph d’Arbaud et l’École Primaire Aristide Briand à moins de 10 minutes à pied. Il y a un accès à l’autoroute A8 à 16 km. On trouve un tennis, un bassin de natation, des commerces, trois boulangeries, un supermarché, une boucherie-charcuterie et un bureau de poste à proximité.Contactez Florence INGARGIOLA au (Numéro supprimé) pour une étude personnalisée de votre projet à partir de 305000 euros hors frais de notaire et taxes. Maisons de Manon Brignoles vous accompagne à toutes les étapes de votre projet.
Barjols
TERRAINLes maisons de Manon et son partenaire foncier vous proposent un terrain à bâtir sur la commune de BARJOLS de près de 700m2 – A 25 min de Saint Maximin et BrignolesEMPLACEMENT PRIVILÉGIÉ – VUE PANORAMIQUEDans un cadre campagne à proximité de Brignoles, venez construire votre maison de plain-pied ou étage selon vos envies. Construction conforme à la RE2020 aux dernières normes permettant une faible consommation énergétique, en hiver mais aussi en été. Terrain viabilisé avec une emprise au sol de 20%A Barjols, vous aurez un accès immédiat à toutes les commodités nécessaires au confort et l’équilibre de votre vie : supermarchés, centre commercial, pôle d’activité, établissement scolaires, transports publics, pôle médical, crèches. N’hésitez pas à prendre contact avec Florence INGARGIOLA (Numéro supprimé) pour toute information sur le terrain, sur les modalités de vente et les démarches à suivre.Maisons de Manon Brignoles vous accompagne à toutes les étapes de votre projet.
Fox-Amphoux
TERRAINBarjols immobilier vous propose A Fox-Amphoux, votre future maison !Dans un tout nouveau lotissement de seulement 8 villas, découvrez un terrain LIBRE CONSTRUCTEUR plat de 420 m², entièrement viabilisé, avec tout-à-l’égout. ZONZ UBVous pouvez y construire une jolie maison R+1, jusqu’à 100 m² au sol, avec piscine et garage. Le terrain offre une configuration simple, propre, qui facilite un chantier rapide.Pour ceux qui aiment les projets clés en main, un constructeur local a déjà réalisé un plan + un devis (base 1500 euros/m²), vous permettant d’être propriétaire d’une villa neuve d’environ 100 m² pour un budget total d’environ 250 000 euros terrain + maison.Une opportunité rare dans le secteur : un cadre calme, un village recherché, et un projet accessible, moderne et maîtrisé.Fox-Amphoux vous ouvre la porte de votre future adresse.(8 terrains disponibles au total)
L’actualité immobilière à Tavernes
27/11/2023
02/11/2023
30/10/2023
20/10/2023
16/10/2023
16/10/2023