Maison à construire à Tourrettes (83440)
Images
Description
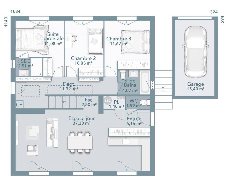
VENTE d'une maison de 4 pièces (100m²) à deux demis niveaux avec garage accolé à Tourrettes
IDÉALEMENT SITUÉE - permettant l'accès rapide aux axes principaux tout en conservant une intimité et la tranquillité d'une nature bien conservée. découvrez cette maison de 4 pièces de 100 m². Son intérieur dispose de trois chambres dont une suite parentale, d'une cuisine et de deux salles de bains.
Cette maison compte 2 demi-niveaux. Elle est neuve, elle se trouve dans un quartier recherché.
Terrain de 1545m² à TOURRETTES très bien situé permettant l'accès rapide aux axes principaux (adjacent au domaine des terres blanches).
Commune du Pays de Fayence, le secteur est pourvu de toutes les commodités (écoles, commerces, professions médicales...) mais aussi de prestations uniques avec à proximité : le domaine des terres blanches avec son terrain de golf et SPA, l'aérodrome de Fayence et le Lac de Saint Cassien.
Son prix de vente est de 485 000 €.
Contactez notre agence (DEGARDIN Guillaume) pour plus de renseignements sur le bien. Maisons France Confort Fréjus vous accompagne dans toutes vos démarches et dans tous vos projets immobiliers.
Terrain proposé par un partenaire foncier selon disponibilité et autorisation de publicité. Hors droit d'enregistrement et frais de notaire.
Logement susceptibles de vous intéresser
Nous vous proposons de découvrir aussi cette sélection de logements situés à moins de 10km de Tourrettes et qui seraient susceptibles de vous intéresser.
Callian
TERRAINIdéal pour entreposer et stocker, une opportunité rare en plein centre-ville, au sein d’une petite copropriété (en création) et à proximité d’un centre Hippique !!Ce terrain entièrement clos de 190 m² offre un emplacement stratégique et polyvalent, parfait pour toute activité nécessitant un espace de stockage ou de stationnement sécurisé.Les dimensions sont de 12,5m de large environ par 15 m de long environ et la partie couverte de 2m de long par 2 m de large environ avec au moins 3 m de haut.Le bien dispose d’un double accès en acier, dont :- Un portail motorisé pour un confort d’utilisation,- Un portail manuel pour un second accès pratique,- Accès totalement sécurisé et manœuvrable pour tout type de véhicule.Atouts majeurs :- Terrain entièrement clôturé assurant une parfaite sécurité,- Préau de grande hauteur, permettant le stationnement deux camions bennes, utilitaires ou engins professionnels,- Espace idéal pour le stockage de matériel, de véhicules ou d’équipements,- Accès facile et terrain plat, parfait pour une utilisation quotidienne.Situation idéale :En plein centre-ville, à proximité immédiate des commerces et services et à seulement 18 minutes de l’accès autoroute A8, garantissant une excellente accessibilité pour les déplacements professionnels.Idéal pour :Artisans, entrepreneurs, transporteurs, ou toute activité nécessitant un espace clos, sécurisé et fonctionnel, facilement accessible.Bien rare sur le secteur – à visiter sans tarder !Cette annonce référence 308392 vous est présentée par votre agent commercial BSK Immobilier ADELINE LE CRAVIER (EI) immatriculé au RSAC de TOULON (83000) sous le numéro 44197434200053.Prix du bien : 60 000,00 €Les honoraires d’agence sont à la charge du vendeur.A propos de la copropriété :Pas de procédure en cours.Nombre de lots : 1Charges prévisionnelles annuelles : 0,00 €Les informations sur les risques auxquels ce bien est exposé sont disponibles sur le site Géorisques : www.georisques.gouv.fr
Callian
TERRAIN ET MAISONCallianMaison neuve de 80 m2 à étage, 3 chambres à l’étage, 1 salle de bains, 2 wc, séjour avec cuisine de 37 m2Prestations: Volets roulants électriques avec coffres intégrés, carrelage 60 x 60, conforme à la RE 2020Sur magnifique terrain arboré de plus de 1000 m2Situé dans un quartier résidentiel et au calmeGarage possible en sus (3,00 m x 5,90 m)Projet idéalement situé à 1 heure de Nice, 45 mn de Cannes, 35 mn de Fréjus, et seulement 15 mn à pieds de tous commercesA saisir 375.000 eurosAvec VILLAS PRISME, vous pouvez personnaliser votre projet de maison sur mesure :- Plan et distribution- Système de chauffage au choix- Prestations et équipements selon vos souhaits : carrelages, faïence, menuiseries, salles de bains…- Mode constructif et matériaux selon les normes en vigueur Magnifique terrain arboré d'une surface de 1 189 m²Entièrement viabilisé Assainissement autonome à prévoirQuartier calme et résidentiel, situé à 1 heure de Nice, 45 mn de Cannes, 35 mn de FréjusA seulement 15 mn à pieds de tous les commercesParcelle très ensoleilléeDemandez une étude gratuite et personnalisée de votre projet de construction !Contactez Manon GUIRAUDOU au (Numéro supprimé) (Villas Prisme – Agence de Brignoles).Prix avec assurance dommages-ouvrage comprise, hors VRD, terrain viabilisé, frais de notaire non compris, frais divers non compris. Terrain sélectionné et vu pour vous sous réserve de disponibilité et au prix indiqué par notre partenaire foncier. Non mandaté pour la vente du terrain. Visuels non contractuels.Cette annonce a été créée et diffusée avec le logiciel VITAHOME.
Callian
TERRAIN ET MAISONA CALLIAN sur un terrain de 1189 m², VILLAS PRISME vous propose de réaliser votre projet de construction de maison individuelle d'une surface de 110 m² habitables avec 3 chambres.Avec VILLAS PRISME, vous pouvez personnaliser votre projet de maison sur mesure :- Plan et distribution- Système de chauffage au choix- Prestations et équipements selon vos souhaits : carrelages, faïence, menuiseries, salles de bains…- Mode constructif et matériaux selon les normes en vigueur Magnifique terrain arboré d'une surface de 1 189 m²Entièrement viabilisé Assainissement autonome à prévoirQuartier calme et résidentiel, situé à 1 heure de Nice, 45 mn de Cannes, 35 mn de FréjusA seulement 15 mn à pieds de tous les commercesParcelle très ensoleilléeDemandez une étude gratuite et personnalisée de votre projet de construction !Contactez Manon GUIRAUDOU au (Numéro supprimé) (Villas Prisme – Agence de Brignoles).Prix avec assurance dommages-ouvrage comprise, hors VRD, terrain viabilisé, frais de notaire non compris, frais divers non compris. Terrain sélectionné et vu pour vous sous réserve de disponibilité et au prix indiqué par notre partenaire foncier. Non mandaté pour la vente du terrain. Visuels non contractuels.Cette annonce a été créée et diffusée avec le logiciel VITAHOME.
Montauroux
TERRAINMagnifique terrain plat au calme absolu dans un secteur très recherché.Belle exposition et belle vue dégagée.Permis accepté pour une villa de 110 m2 avec 3 chambres dont une suite parentale et une belle pièce à vivre.Maison RE 2020 donc faible consommation énergétique. ( prévoir aux alentours de 425 000 € pour le projet terrain et maison ) A visiter sans tarder.N’hésitez pas à contacter Michael LAROUX pour plus de renseignements ou pour une éventuelle visite.Annonce proposée par un Agent Commercial Partenaire.
Montauroux
TERRAIN ET MAISONProjet de construction pour une villa de 110 m2 avec 3 chambres dont une suite parentale et une belle pièce à vivre. Permis de construire accepté.Magnifique terrain plat au calme absolu dans un secteur très recherché.Belle exposition et belle vue dégagée.Maison RE 2020 donc faible consommation énergétique. ( prévoir aux alentours de 425 000 € pour le projet terrain et maison ) A visiter sans tarder.N’hésitez pas à contacter Michael LAROUX pour plus de renseignements ou pour une éventuelle visite.Annonce proposée par un Agent Commercial Partenaire.
Callian
TERRAINTrès beau terrain à bâtir de 2300 m² à 2 minutes du village de CALLIAN dans un quartier calme.Terrain vendu avec permis de construire accepté.Environ 120 m² pour cette belle villa de 5 pièces avec piscine et garage.Possibilité d’accompagnement pour la construction.Terrain vendu viabilisé.Assainissement individuel.Constructeur libre.Accès à l’école du village à deux minutes.A voir rapidement.Cette annonce référence 307361 vous est présentée par votre agent commercial BSK Immobilier CORINNE BENITAH (EI) immatriculé au RSAC de DRAGUIGNAN (83300) sous le numéro 48182944800028.Prix du bien : 220 000,00 €Les honoraires d’agence sont à la charge du vendeur.Les informations sur les risques auxquels ce bien est exposé sont disponibles sur le site Géorisques : www.georisques.gouv.fr
Callian
TERRAINTrès beau terrain à bâtir de 1800 m² à 2 minutes du village de CALLIAN dans un quartier calme.Terrain vendu avec permis de construire accepté.Environ 120 m² pour cette belle villa de 5 pièces avec piscine et garage.Possibilité d’accompagnement pour la construction.Terrain vendu viabilisé.Assainissement individuel.Constructeur libre.Accès à l’école du village à deux minutes.A voir rapidement.Cette annonce référence 307367 vous est présentée par votre agent commercial BSK Immobilier CORINNE BENITAH (EI) immatriculé au RSAC de DRAGUIGNAN (83300) sous le numéro 48182944800028.Prix du bien : 215 000,00 €Les honoraires d’agence sont à la charge du vendeur.Les informations sur les risques auxquels ce bien est exposé sont disponibles sur le site Géorisques : www.georisques.gouv.fr
Tourrettes
TERRAIN ET MAISONVENTE d’une maison de 4 pièces (95m²) en RDC à TourrettesIDÉALEMENT SITUÉE – permettant l’accès rapide aux axes principaux tout en conservant une intimité et la tranquillité d’une nature bien conservée. découvrez cette maison de 4 pièces de 95 m². Son intérieur dispose de trois chambres dont une suite parentale au RDC, d’une cuisine et de deux salles de bains.Cette maison de plain pied est neuve, elle se trouve dans un quartier recherché. Terrain de 1545m² à TOURRETTES très bien situé permettant l’accès rapide aux axes principaux (adjacent au domaine des terres blanches).Commune du Pays de Fayence, le secteur est pourvu de toutes les commodités (écoles, commerces, professions médicales…) mais aussi de prestations uniques avec à proximité : le domaine des terres blanches avec son terrain de golf et SPA, l’aérodrome de Fayence et le Lac de Saint Cassien.Son prix de vente est de 455 000 €.Contactez notre agence (DEGARDIN Guillaume) pour plus de renseignements sur le bien. Maisons France Confort Fréjus vous accompagne dans toutes vos démarches et dans tous vos projets immobiliers.Terrain proposé par un partenaire foncier selon disponibilité et autorisation de publicité. Hors droit d’enregistrement et frais de notaire.
Tourrettes
TERRAIN ET MAISONVENTE d’une maison de 4 pièces (100m²) à deux demis niveaux avec garage accolé à TourrettesIDÉALEMENT SITUÉE – permettant l’accès rapide aux axes principaux tout en conservant une intimité et la tranquillité d’une nature bien conservée. découvrez cette maison de 4 pièces de 100 m². Son intérieur dispose de trois chambres dont une suite parentale, d’une cuisine et de deux salles de bains.Cette maison compte 2 demi-niveaux. Elle est neuve, elle se trouve dans un quartier recherché. Terrain de 1545m² à TOURRETTES très bien situé permettant l’accès rapide aux axes principaux (adjacent au domaine des terres blanches).Commune du Pays de Fayence, le secteur est pourvu de toutes les commodités (écoles, commerces, professions médicales…) mais aussi de prestations uniques avec à proximité : le domaine des terres blanches avec son terrain de golf et SPA, l’aérodrome de Fayence et le Lac de Saint Cassien.Son prix de vente est de 485 000 €.Contactez notre agence (DEGARDIN Guillaume) pour plus de renseignements sur le bien. Maisons France Confort Fréjus vous accompagne dans toutes vos démarches et dans tous vos projets immobiliers.Terrain proposé par un partenaire foncier selon disponibilité et autorisation de publicité. Hors droit d’enregistrement et frais de notaire.
L’actualité immobilière à Tourrettes
27/11/2023
02/11/2023
30/10/2023
20/10/2023
16/10/2023
16/10/2023