Maison à construire à Tourrettes (83440)
Images
Description
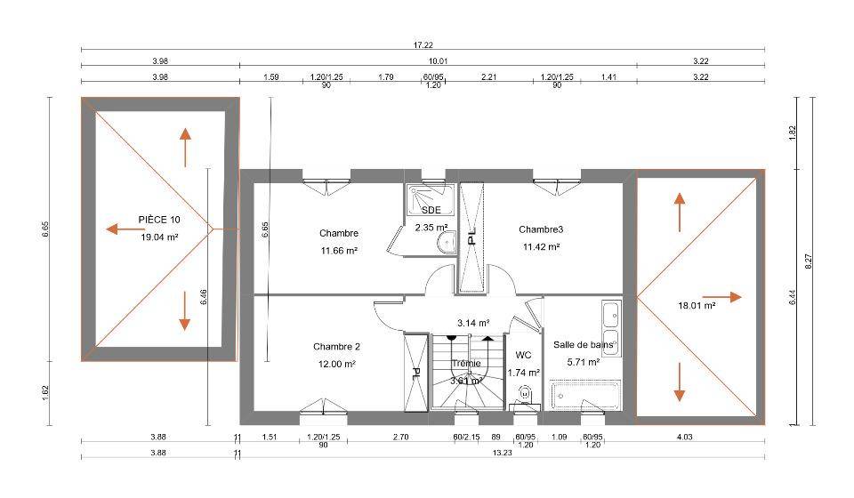
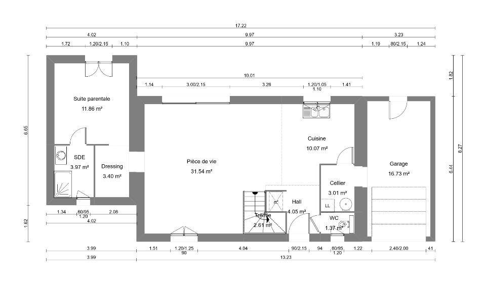
Les Maisons de Manon de Callian vous propose sur ce terrain diverses réalisations possible notamment une réalisation sur mesures de 120m² habitable à étage partiel. Il dispose de 4 chambres dont une suite parentale au rez de chaussée, trois salles d'eaux, un cellier attenant à un garage accolé ainsi qu'une belle pièce orienté sud à partir de 490 000€TTC (terrain inclus, hors frais de notaire, hors frais annexes, hors cuisine, hors peinture, garage et terrasse en option). Vous disposerez de nombreuses prestations de qualités, carrelage grand format, WC suspendu, chauffage réversible, domotique...et d'un réel accompagnement tout au long du projet. Pour plus d'informations contactez votre conseiller commercial des Maisons de Manon de Callian Mr Maugras Alexandre au (Numéro supprimé)
Annonce proposée par un Agent Commercial Partenaire.
Logement susceptibles de vous intéresser
Nous vous proposons de découvrir aussi cette sélection de logements situés à moins de 10km de Tourrettes et qui seraient susceptibles de vous intéresser.
Saint-Cézaire-sur-Siagne
TERRAINNouveau ! Co-Exclusivité, Saint Cézaire, terrain plat à batir d’environ 1095m² situé en zone UC au PLU avec un CES de 15% et 70% d’espaces verts (ES sur plan joint). Prévoir un assainissement individuel, raccordement eau, électricité en bord de route. N’hésitez pas à prendre contact pour plus d’informationsHonoraires d’agence à la charge du vendeur.Consultez nos tarifs sur le site de Immobilier Email.Annonce publiée le 12/12/2025 par (Numéro supprimé), RSAC 840647549 – agent commercial indépendant de IMMOBILIER EMAIL SAS – EI, Tribunal de Commerce de Grasse
Callian
TERRAIN ET MAISONA CALLIAN sur un terrain de 1189 m², VILLAS PRISME vous propose de réaliser votre projet de construction de maison individuelle d'une surface de 80 m² habitables avec 3 chambres.Avec VILLAS PRISME, vous pouvez personnaliser votre projet de maison sur mesure :- Plan et distribution- Système de chauffage au choix- Prestations et équipements selon vos souhaits : carrelages, faïence, menuiseries, salles de bains…- Mode constructif et matériaux selon les normes en vigueur Magnifique terrain arboré d'une surface de 1 189 m² à Callian, 1 heure de Nice, 45 mn de Cannes, 35 mn de Fréjus.Il est situé dans un quartier calme et résidentiel, à seulement 15 mn à pied de tous les commerces.Parcelle très ensoleillée, cadre campagne.Terrain viabilisé, assainissement autonome à prévoir.Demandez une étude gratuite et personnalisée de votre projet de construction !Contactez Manon GUIRAUDOU au (Numéro supprimé) (Villas Prisme – Agence de Brignoles).Prix avec assurance dommages-ouvrage comprise, hors VRD, terrain viabilisé, frais de notaire non compris, frais divers non compris. Terrain sélectionné et vu pour vous sous réserve de disponibilité et au prix indiqué par notre partenaire foncier. Non mandaté pour la vente du terrain. Visuels non contractuels.Cette annonce a été créée et diffusée avec le logiciel VITAHOME.
Callian
TERRAIN ET MAISONA CALLIAN sur un terrain de 1189 m², VILLAS PRISME vous propose de réaliser votre projet de construction de maison individuelle d'une surface de 110 m² habitables avec 3 chambres.Avec VILLAS PRISME, vous pouvez personnaliser votre projet de maison sur mesure :- Plan et distribution- Système de chauffage au choix- Prestations et équipements selon vos souhaits : carrelages, faïence, menuiseries, salles de bains…- Mode constructif et matériaux selon les normes en vigueur Magnifique terrain arboré d'une surface de 1 189 m²Entièrement viabilisé Assainissement autonome à prévoirQuartier calme et résidentiel, situé à 1 heure de Nice, 45 mn de Cannes, 35 mn de FréjusA seulement 15 mn à pieds de tous les commercesParcelle très ensoleilléeDemandez une étude gratuite et personnalisée de votre projet de construction !Contactez Manon GUIRAUDOU au (Numéro supprimé) (Villas Prisme – Agence de Brignoles).Prix avec assurance dommages-ouvrage comprise, hors VRD, terrain viabilisé, frais de notaire non compris, frais divers non compris. Terrain sélectionné et vu pour vous sous réserve de disponibilité et au prix indiqué par notre partenaire foncier. Non mandaté pour la vente du terrain. Visuels non contractuels.Cette annonce a été créée et diffusée avec le logiciel VITAHOME.
Montauroux
TERRAIN ET MAISONSuperbe projet de construction sur terrain de 1500m2. Piscine possible Le plan maison n’est pas figé dans le marbre, nous pouvons le modifier à votre convenance selon vos envies et votre budget. N’hésitez pas à me contacter au (Numéro supprimé) Noémie COUTIAUX Maison de Manon
Montauroux
TERRAINsuperbe terrain de 817m2Proche axe autoroute. Proche école maternelle, primaire et collège Tout à l’égout, viabilisé.Permis accepté et purgé de tout recours pour une maison de plus de 150m2 N’hésitez pas à me contacter au (Numéro supprimé)Noémie coutiaux
Tourrettes
TERRAIN ET MAISONLes Maisons de Manon de Callian vous propose sur ce terrain diverses réalisations possible notamment une réalisation sur mesures de 120m² habitable à étage partiel. Il dispose de 4 chambres dont une suite parentale au rez de chaussée, trois salles d’eaux, un cellier attenant à un garage accolé ainsi qu’une belle pièce orienté sud à partir de 490 000€TTC (terrain inclus, hors frais de notaire, hors frais annexes, hors cuisine, hors peinture, garage et terrasse en option). Vous disposerez de nombreuses prestations de qualités, carrelage grand format, WC suspendu, chauffage réversible, domotique…et d’un réel accompagnement tout au long du projet. Pour plus d’informations contactez votre conseiller commercial des Maisons de Manon de Callian Mr Maugras Alexandre au (Numéro supprimé)Annonce proposée par un Agent Commercial Partenaire.
Bagnols-en-Forêt
TERRAIN ET MAISONMAISON 5 PIÈCES à construire – BAGNOLS EN FORETÀ 15 km de la mer Méditerranée, Maisons France Confort Fréjus vous propose cette maison de 5 pièces de plain-pied de 100 m² et de 1 200 m² de terrain à Bagnols-en-Forêt (83600).Son intérieur est composé de quatre chambres, d’une cuisine et d’une salle de bains. La maison est construireLe budget prévisionnel de ce projet est de de 379 000 € (sous réserve d’étude de sol er de visite technique).Celui-ci inclut le coût d’acquisition du terrain, les frais de notaire, la construction et les travaux annexes ( fosse septique comprise).Contactez notre agence (SANCHEZ Fatima : (Numéro supprimé)) pour toute question sur cette maison, sur les démarches à suivre ou sur les modalités de vente. Maisons France Confort Fréjus vous accompagne dans tous vos projets de construction et à toutes les étapes de leur réalisation.
Tourrettes
TERRAINLes Maisons de Manon de Callian vous propose un nouveau terrain à bâtir de 1500m² sur le Charmant village provençal de Tourrettes situé dans le canton de Fayence à quelques minutes du lac de Saint Cassien et de l’axe autoroute A8. Terrain plat viabilisé situé dans un lotissement calme et arboré disposant de 150m² d’emprise au sol. Disponible pour un projet de construction d’une maison individuelle en partenariat avec les Maisons de Manon de Callian. Pour plus d’information contactez votre conseiller commercial Mr Maugras Alexandre au (Numéro supprimé)Annonce proposée par un Agent Commercial Partenaire.
Bagnols-en-Forêt
TERRAINBagnols-en-Forêt : terrain de 1 200 m² – 165 000 eurosMaisons France Confort vous propose, en accord avec son partenaire foncier, un très joli terrain sur la commune de Bagnols en Forêt. Donnez vie à la maison de vos rêves sur ce terrain de 1 200 m². Il est orienté plein sud. La mer méditerranée se trouve à moins de 30mn. Vous bénéficierez d »un environnement privilégié au calme absolu.Autre avantage : le terrain sera entièrement viabilisé.Pour tout renseignement complémentaire et étude de projet contactez Fatima Sanchez au (Numéro supprimé).
L’actualité immobilière à Tourrettes
27/11/2023
02/11/2023
30/10/2023
20/10/2023
16/10/2023
16/10/2023