Maison à construire à Bollène (84500)
Images
Description
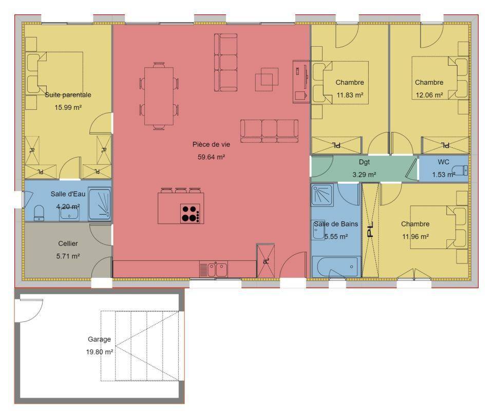
Située dans un cadre paisible, cette villa de 131 m² allie élégance et fonctionnalité !!!
À l'intérieur, vous serez accueilli par un espace de vie de 59,64m², comprenant une cuisine ouverte sur un salon et une salle à manger lumineuse. L'espace nuit se compose de 3 chambres confortables et d'une salle de bains moderne. Une suite parentale séparée de la partie nuit offre l'intimité et le confort nécessaires pour vous détendre en toute tranquillité.
Cette maison de plain-pied, conforme à la Réglementation Environnementale RE2020, vous assure un habitat écologique et économe en énergie. De plus, elle est dotée d'un garage, directement accessible depuis la maison, pour votre plus grand confort au quotidien.
Vous serez également séduit par les nombreuses options disponibles, telles que les volets roulants électriques, la centralisation et la domotique, ajoutant une touche de modernité à votre foyer.
Votre conseiller en construction Olivier PUAUX (Numéro supprimé) MAISONS FRANCE CONFORT se tient à votre disposition pour en savoir plus à propos de cette habitation, en découvrir d'autres ou bien même créer votre projet personnalisé.
Contactez-le sans plus tarder, pour donner vie à votre projet !!!
Logement susceptibles de vous intéresser
Nous vous proposons de découvrir aussi cette sélection de logements situés à moins de 10km de Bollène et qui seraient susceptibles de vous intéresser.
Bollène
TERRAIN84500 – BOLLENE – – Terrain plat et viabilisé de 367 m² – Libre constructeur — Emplacement fortEffiCity, l’agence qui estime vos biens en ligne, vous propose en exclusivité ce terrain constructible idéalement situé rue Jules Verne, dans un environnement calme et verdoyant, à proximité immédiate des commodités : écoles, commerces, transports et accès autoroute, vous pourrez ici construire la maison de famille idéale avec terrasse et garage tout en conservant du jardin et de la luminosité au coeur de Bollene. Les atouts du terrain :Libre constructeurTerrain plat, lumineux et paisibleViabilisé, prêt à bâtirPiscinableSurface plancher jusqu’à 200 m² possibleSecteur recherché et agréable à vivre Informations complémentaires :15 % de la parcelle à conserver en espace vertAccompagnement constructeur possiblePlusieurs parcelle disponible de différentes tailles sur le lotissement Une belle opportunité pour concrétiser votre projet de maison dans un cadre serein et pratique ! Pour en savoir plus ou organiser une visite, contactez nous dès maintenant ! Les informations sur les risques auxquels ce bien est exposé sont disponibles sur le site Georisque : georisques. gouv. fr Raphaël Deloche – EI – est Agent Commercial mandataire en immobilier, immatriculé au Registre Spécial des Agents Commerciaux du Tribunal de Commerce de Avignon sous le n(Numéro supprimé).Siège social du mandant : effiCity, 48 avenue de Villiers – 75017 PARIS – Société par Actions Simplifiée, société au capital de 132 373,05 euros, immatriculée au RCS Paris 497 617 746 et titulaire de la Carte professionnelle CPI 7501 2015 000 002 025 – CCI Paris IDF – Caisse de Garantie : GALIAN Assurances 89 rue de la Boétie 75008 Paris
Pierrelatte
TERRAIN ET MAISONDécouvrez le modèle Étage GA 4 Ch Design, une maison moderne de 98 m² conçue pour répondre aux besoins actuels des familles : espaces optimisés, luminosité et confort au quotidien.Au rez-de-chaussée, profitez d’une grande pièce de vie traversante de 33 m², baignée de lumière, où la cuisine ouverte s’intègre harmonieusement au séjour.Une chambre de plain-pied apporte une véritable polyvalence d’usage : idéale pour recevoir ou aménager un espace de travail.Un cellier de 4,83 m², donnant accès direct au garage, vient compléter l’ensemble, offrant un espace de rangement pratique et fonctionnel.À l’étage, l’espace nuit se compose de trois chambres spacieuses et d’une salle de bains équipée d’une baignoire et d’une douche, pour un confort adapté à toute la famille.Grâce à la nouvelle gamme Open, vous bénéficiez de finitions personnalisables et de packs évolutifs, afin d’adapter votre maison à vos envies et à vos besoins.Côté confort, rien n’a été laissé au hasard : volets roulants électriques, centralisation des fermetures, domotique intégrée… autant d’équipements modernes pensés pour simplifier votre quotidien et renforcer votre confort.Fonctionnelle, lumineuse et résolument moderne, cette maison offre un cadre de vie idéal pour accueillir votre famille et concrétiser votre projet de vie.Contactez dès maintenant Olivier PUAUX, votre conseiller MAISONS FRANCE CONFORT, au (Numéro supprimé), pour en savoir plus ou imaginer ensemble votre future maison.
Suze-la-Rousse
TERRAIN ET MAISONMaison de 3 pièces (60 m²) en vente à Suze-la-RousseEMPLACEMENT PRIVILÉGIÉ – MAISON 3 PIÈCES NEUVEÀ vendre : à quelques kilomètres de Montélimar, notre agence Maisons France Confort Montélimar est ravie de vous proposer, bénéficiant d’un emplacement d’exception dans Suze-la-Rousse (26790), cette maison de 3 pièces de plain-pied de 60 m² et de 344 m² de terrain.Son intérieur est composé de deux chambres, d’une cuisine et d’une salle de bains. La maison est neuve.La maison se situe dans un quartier attractif. Trois établissements scolaires se trouvent à moins de 10 minutes à pied, tout comme dont le Collège Do Mistrau et l’École Primaire Suze la Rousse. L’autoroute A7 est accessible à 8 km. Il y a une bibliothèque, un tennis, deux boulangeries, trois commerces, trois épiceries, deux boucheries-charcuteries et un bureau de poste à quelques minutes du logement. Ne manquez pas le marché Place du Champ de Mars chaque vendredi matin.Son prix de vente est de 193 900 €.Contactez notre agence (florian DUBOIS : (Numéro supprimé)) pour toute information sur la maison ou sur les modalités de vente. Concrétisez vos projets immobiliers avec Maisons France Confort Montélimar.
Suze-la-Rousse
TERRAIN ET MAISONMaison de 3 pièces (60 m²) en vente à Suze-la-RousseEMPLACEMENT PRIVILÉGIÉ – MAISON 3 PIÈCES NEUVEÀ vendre : à quelques kilomètres de Montélimar, notre agence Maisons France Confort Montélimar est ravie de vous proposer, bénéficiant d’un emplacement d’exception dans Suze-la-Rousse (26790), cette maison de 3 pièces de plain-pied de 60 m² et de 344 m² de terrain.Son intérieur est composé de deux chambres, d’une cuisine et d’une salle de bains. La maison est neuve.La maison se situe dans un quartier attractif. Trois établissements scolaires se trouvent à moins de 10 minutes à pied, tout comme dont le Collège Do Mistrau et l’École Primaire Suze la Rousse. L’autoroute A7 est accessible à 8 km. Il y a une bibliothèque, un tennis, deux boulangeries, trois commerces, trois épiceries, deux boucheries-charcuteries et un bureau de poste à quelques minutes du logement. Ne manquez pas le marché Place du Champ de Mars chaque vendredi matin.Son prix de vente est de 193 900 €.Contactez notre agence (florian DUBOIS : (Numéro supprimé)) pour toute information sur la maison ou sur les modalités de vente. Concrétisez vos projets immobiliers avec Maisons France Confort Montélimar.
Suze-la-Rousse
TERRAIN ET MAISONSuze-la-Rousse : maison de 5 pièces (93 m²) en venteEMPLACEMENT PRIVILÉGIÉ – MAISON 5 PIÈCES NEUVEÀ vendre : à deux pas de Montélimar, découvrez cette maison de 5 pièces de 93 m² et de 344 m² de terrain bénéficiant d’un emplacement d’exception dans Suze-la-Rousse (26790).C’est une maison de 2 niveaux. Elle dispose de trois chambres, d’une cuisine et d’une salle de bains. Cette maison est neuve.Le bien se trouve dans un secteur prisé. Il y a trois établissements scolaires à moins de 10 minutes à pied et dont le Collège Do Mistrau et l’École Primaire Suze la Rousse. L’autoroute A7 est accessible à 8 km. On trouve une bibliothèque, un tennis, deux boulangeries, trois commerces, deux boucheries-charcuteries, trois épiceries et un bureau de poste dans les environs. Le marché Place du Champ de Mars anime les environs tous les vendredis matin.Son prix de vente est de 282 656 €.Contactez florian DUBOIS ((Numéro supprimé)) pour obtenir de plus amples renseignements sur la maison, sur les modalités de vente ou sur les démarches à suivre.
Suze-la-Rousse
TERRAIN ET MAISONMaison de 5 pièces (83 m²) à vendre à Suze-la-RousseEMPLACEMENT PRIVILÉGIÉ – MAISON 5 PIÈCES NEUVEÀ vendre : à 29 km de Montélimar, bénéficiant d’un emplacement privilégié dans Suze-la-Rousse (26790), ayez le coup de coeur pour cette maison de 5 pièces de plain-pied de 83 m².Conçue de plain-pied, elle offre trois chambres, une cuisine et une salle de bains. La maison est neuve.Le terrain de la propriété est de 344 m².Cette maison se trouve dans un quartier attractif. Il y a trois établissements scolaires à moins de 10 minutes à pied et, comme le Collège Do Mistrau ou l’École Primaire Suze la Rousse. On trouve un accès à l’autoroute A7 à 8 km. On trouve une bibliothèque, un tennis, deux boulangeries, trois commerces, deux boucheries-charcuteries, trois épiceries et un bureau de poste à quelques minutes. Enfin, le marché Place du Champ de Mars anime les environs tous les vendredis matin.Elle est à vendre pour la somme de 213 677 €.Prenez contact avec florian DUBOIS ((Numéro supprimé)) pour toute information sur la propriété et sur les démarches à suivre.
Suze-la-Rousse
TERRAIN ET MAISONDécouvrez cette maison contemporaine pensée pour le confort familial et la performance énergétique. Cette maison de plain-pied développe une surface habitable de 85 m² parfaitement optimisée. Dès l’entrée, vous serez séduit par un vaste espace de vie, baigné de lumière naturelle grâce à ses larges ouvertures. L’agencement fluide intègre une cuisine ouverte sur le séjour, idéale pour partager des moments conviviaux en famille ou entre amis.Vous trouverez également un garage pour stationnement sécurisé et un espace de rangement supplémentaire.L’espace nuit est intelligemment séparé et distribue trois chambres confortables, toutes équipées d’un espace de rangement. Une salle de bains moderne avec baignoire, un WC indépendant ainsi qu’un dégagement avec placards viennent compléter la partie nuit, assurant une fonctionnalité optimale au quotidien. Un cellier attenant à la cuisine permet d’organiser facilement vos rangements.La maison est conçue selon les dernières normes environnementales RE2020, et bénéficie d’une excellente isolation thermique et phonique. Grâce à l’installation de panneaux solaires et à sa classification en DPE A, elle garantit de très faibles consommations énergétiques. Un choix idéal pour les familles recherchant une maison moderne, économique et respectueuse de l’environnement.Contactez-nous au (Numéro supprimé).Frais de notaire non compris.Cette annonce a été créée et diffusée avec le logiciel VITAHOME.
Suze-la-Rousse
TERRAIN ET MAISONOffrez à votre famille une maison neuve à haute performance énergétique, classée DPE A. Pensée pour conjuguer bien-être et économies au quotidien, elle vous séduira par son espace de vie lumineux de 40 m², parfait pour partager de beaux moments en famille ou entre amis.La suite parentale au rez-de-chaussée bénéficie d’une salle d’eau privative et d’un dressing, pour un confort optimal jour après jour. L’entrée soignée, avec WC indépendant et garage intégré, apporte une fonctionnalité bienvenue.À l’étage, deux grandes chambres avec rangements complètent l’espace nuit, accompagnées d’une salle de bain et de WC séparés.Isolation performante, finitions de qualité et agencement intelligent.Contactez-nous au (Numéro supprimé).Frais de notaire non compris.Cette annonce a été créée et diffusée avec le logiciel VITAHOME.
Pierrelatte
TERRAINMAISONS FRANCE CONFORT, vous propose avec son partenaire foncier un terrain sur la commune de PIERRELATTE. Cette jolie parcelle de 586 m² pour 94 900€, est située à proximité des commodités, ce qui vous assure un grand confort de vie. Dans un environnement calme et agréable pour votre projet de vie, réalisez votre rêve grâce à la maison qui vous ressemble.Vous pouvez contacter votre conseiller construction Olivier PUAUX ((Numéro supprimé)) pour en savoir plus ou vous faire accompagner dans votre recherche de logement.
L’actualité immobilière à Bollène
27/11/2023
02/11/2023
30/10/2023
20/10/2023
16/10/2023
16/10/2023