Maison à construire à Cabrières-d'Avignon (84220)
Images
Description
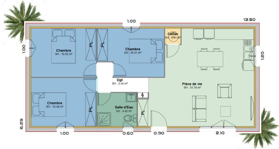
Cabrières-d'Avignon : maison F4 (71 m²) à vendre
Quartier recherché - À vendre à Cabrières-d'Avignon (84220) : maison neuve 4 pièces de 71 m² sur un terrain de 300 m². Conçue de plain-pied, elle comporte trois chambres, une cuisine et une salle de bains.
À dix minutes : gare (L'Isle-sur-la-Sorgue-Fontaine-de-Vaucluse), École Primaire le Grand Geas, bibliothèque, épicerie, boucherie-charcuterie et bureau de poste. Accès autoroute A7 et nationale N129 à 19 km. Mer Méditerranée à 40 km. Avignon à 26 km.
Cette maison de 4 pièces est proposée à l'achat pour 250 000 €.HORS FRAIS DE NOTAIRE
Contactez Pierre GIMENEZ (tél : (Numéro supprimé)) (Numéro supprimé) pour toute question sur la maison ou sur les modalités de vente. Azur & Constructions Martigues vous accompagne dans tous vos projets immobiliers et dans toutes vos démarches.
Logement susceptibles de vous intéresser
Nous vous proposons de découvrir aussi cette sélection de logements situés à moins de 10km de Cabrières-d'Avignon et qui seraient susceptibles de vous intéresser.
L'Isle-sur-la-Sorgue
TERRAINDaniel au (Numéro supprimé) L’Isle-sur-la-Sorgue (84800), Azur et Constructions vous réserve un terrain de 311 m² exposé sud, viabilisé, proche école et commerces Faites construire la maison qui vous ressemble et bénéficiez de toutes les garanties du Contrat de Construction. Prix : à partir de 114 000 € (hors frais de notaire)Vu avec notre partenaire foncier« Concept clé en main et rencontrant depuis plus de 30 ans un franc succès, la formule terrain + maison fait partie de L’ADN de la société Azur et Constructions. Spécialiste de la construction de maisons individuelles fondé en 1994 à Martigues, l’entreprise familiale met à la disposition de toute sa clientèle un large choix d’annonces immobilières de terrain + modèle de maison, de plain-pied, à étage, avec ou sans garage, de style contemporain ou plus traditionnel. uvrant sur une grande partie du territoire de la région Provence-Alpes-Côte d’Azur, la société couvre le département du Vaucluse, des Hautes-Alpes, des Alpes-de-Haute-Provence, des Bouches-du-Rhône et du Gard, département de la région voisine.Pour découvrir l’ensemble des annonces de terrain + maison proposées par l’entreprise immobilière, la clientèle de la société Azur et Constructions peut consulter le catalogue disponible en ligne, via le site internet de l’entreprise. Ils ont ainsi la possibilité d’effectuer des recherches en précisant la commune, avec possibilité de s’en éloigner de plus ou moins 5 kilomètres minimum et jusqu’à 100 kilomètres. La société de construction immobilière propose également à ses clients de venir lui rendre visite dans l’une de ses 4 agences situées respectivement à Manosque, à Martigues, à Salon de Provence et à Plan de Campagne sur la commune de Cabriès. Les collaborateurs de chaque agence se feront un plaisir de vous présenter en détail les annonces de terrain + maison disponibles et de répondre à toutes vos questions. »
L'Isle-sur-la-Sorgue
TERRAIN ET MAISONMaison de 5 pièces (76 m²) à vendre à L’Isle-sur-la-SorgueEmplacement privilégié – Maison neuve 5 pièces en vente à L’Isle-sur-la-Sorgue (84800) avec 2 niveaux, une surface de 76 m² et de 341 m² de terrain. Elle comporte trois chambres, une cuisine et une salle de bains.Proche gare (L’Isle-sur-la-Sorgue-Fontaine-de-Vaucluse), écoles, crèche, commerces, boulangeries, supermarché, boucheries-charcuteries et bureau de poste. Accès autoroute A7 et nationale N129 à 12 km. Mer Méditerranée à 40 km.Cette maison de 5 pièces est à vendre pour la somme de 289 900 €.N’hésitez pas à prendre contact avec Daniel DEROCH (tél : (Numéro supprimé)) pour toute question sur la maison, sur les démarches à suivre ou sur les modalités de vente. Azur & Constructions Salon-de-Provence est là pour vous accompagner à toutes les étapes de l’achat.
L'Isle-sur-la-Sorgue
TERRAIN ET MAISONconfortable et parfaitement adapté au quotidien. Dès l’entrée, un porche couvert mène à une grande pièce de vie lumineuse avec cuisine ouverte, idéale pour les moments en famille ou entre amis.Côté nuit, trois chambres avec rangements intégrés, une salle de bains et des WC séparés complètent l’ensemble. Un cellier et un garage intégré apportent praticité et confort supplémentaire.Classée DPE A, cette maison bénéficie d'une excellente performance énergétique, vous assurant confort thermique toute l’année et économies au quotidien.Un bien fonctionnel, moderne et économe, à découvrir rapidement.AnnonceContactez-nous au (Numéro supprimé).Frais de notaire non compris.Cette annonce a été créée et diffusée avec le logiciel VITAHOME.
L'Isle-sur-la-Sorgue
TERRAIN ET MAISONDécouvrez cette maison à étage de 137 m²Rez-de-chaussée :• Suite parentale avec salle d'eau et dressing privatifs, offrant intimité et confort.• Grand espace de vie ouvert et lumineux.• Cuisine moderne avec cellier attenant.• Garage intégré avec accès direct à la maison.À l'étage :• Un couloir avec vide sur séjour, apportant luminosité et sensation d’espace.• Trois chambres avec rangements intégrés.• Salle de bain fonctionnelle, idéale pour toute la famille.Points forts :• Chauffage gainable pour un confort thermique.• DPE A, garantissant une consommation réduite.• Panneaux solaires pour une production d’énergie verte.• Matériaux de qualité, assurant durabilité et confort toute l’année.Située dans un quartier calme et proche des commodités.Contactez-nous au (Numéro supprimé).Frais de notaire non compris.Cette annonce a été créée et diffusée avec le logiciel VITAHOME.
L'Isle-sur-la-Sorgue
TERRAIN ET MAISONDans un cadre résidentiel recherché, découvrez cette maison neuve de 158 m² au design résolument moderne. Pensée pour offrir un confort optimal au quotidien, elle conjugue esthétisme, performance énergétique et équipements haut de gamme.Conforme à la norme RE 2020, cette maison est équipée de panneaux solaires, d’un chauffage gainable performant et bénéficie d’un DPE A, vous garantissant une consommation énergétique maîtrisée.Son agencement harmonieux met à l’honneur les volumes, avec une belle pièce de vie traversante, une suite parentale indépendante, un coin nuit pour les enfants et un bureau, idéal pour le télétravail.Parfaite pour une famille à la recherche d’espace, de lumière et d’économies d’énergie.Contactez-nous au (Numéro supprimé).Frais de notaire non compris.Cette annonce a été créée et diffusée avec le logiciel VITAHOME.
L'Isle-sur-la-Sorgue
TERRAIN ET MAISONMaison moderne et éco-performante, avec une performance énergétique DPE A.Caractéristiques principales :Rez-de-chaussée :- Espace de vie lumineux de 40 m²,- Suite parentale avec salle d’eau et dressing,- Hall d’entrée avec WC indépendant,- Garage.Étage :- Deux chambres spacieuses avec espace rangement,- Salle de bain et WC indépendant,- Villas alliant confort, modernité et faible consommation énergétique.Contactez-nous au (Numéro supprimé).Frais de notaire non compris.Cette annonce a été créée et diffusée avec le logiciel VITAHOME.
Robion
TERRAIN ET MAISONMaison neuve de plain-pied – 3 chambres – DPE ACette maison de plain-pied à l'architecture régionale et en classe énergétique A saura vous séduire par son agencement fonctionnel et ses prestations de qualité. Elle se compose de trois chambres, d’une salle de bain et d’une vaste pièce de vie lumineuse avec une cuisine ouverte, parfaite pour partager des moments conviviaux.Équipé d’un chauffage gainable, cette maison assure un confort thermique optimal en toutes saisons.Le garage attenant offre un espace pratique pour stationner votre véhicule.Proche des commodités, cette maison allie modernité et efficacité énergétique. Une opportunité à ne pas manquer !Contactez-nous au (Numéro supprimé).Frais de notaire non compris.Cette annonce a été créée et diffusée avec le logiciel VITAHOME.
Robion
TERRAIN ET MAISONDès l’arrivée, un porche d’entrée couvert apporte du caractère et un accueil abrité. L’intérieur propose une organisation optimisée, pensée pour le quotidien.Caractéristiques du bien :- Surface habitable d’environ 110 m²- Terrain clos et paysagéEspace de vie :- Grande pièce à vivre lumineuse avec cuisine ouverte, salon et salle à manger- Accès direct à la terrasse et au jardin- Cellier attenant à la cuisine- Garage intégréEspace nuit :- Trois chambres, toutes équipées d'espaces rangements- Salle de bains familialeConfort et prestations :- Porche d’entrée abrité- Baies vitrées pour un maximum de lumière- Maison bien isolée, conforme aux dernières normes énergétiques- Chauffage gainable performant, consommation maîtriséeÀ proximité :- Écoles, commerces et transports accessibles rapidement- Quartier calme, idéal pour une vie de familleUn bien rare, clé en main, à découvrir sans tarder.Contactez-nous au (Numéro supprimé).Frais de notaire non compris.Cette annonce a été créée et diffusée avec le logiciel VITAHOME.
Gordes
TERRAINRE/MAX — Terrain constructible avec vue panoramique sur le Luberon et les AlpillesÀ la vente un terrain constructible exceptionnel situé à proximité immédiate du village de Gordes en position dominante. Ce site rare bénéficie d’un environnement privilégié offrant de superbes vues dégagées sur le Luberon et les Alpilles.D’une superficie de 1 714 m² la parcelle en oliveraie et en légère pente vers le sud est agrémentée de restanques et bénéficie d’une orientation sud-ouest idéale.Le bien est vendu avec un permis d’aménager obtenu et purgé ainsi qu’un permis de construire validé pour la réalisation d’une maison de 248 m² de surface utile et d’une piscine de 11 × 4 m.Les réseaux sont en bordure du terrain.Informations urbanistiques :Terrain classé en zone UC, en prolongement direct du villageEmprise au sol maximale : 514 m²Libre choix du constructeurSol à dominante rocheuseUn site d’exception pour un projet de vie ou une résidence secondaire au cœur du Luberon.Honoraires à la charge du vendeur.Les informations sur les risque auxquels ce bien est exposé sont disponibles sur le site Géorisques : www.georisques.gouv.fr Les informations sur les risques auxquels ce bien est exposé sont disponibles sur le site Géorisques : www.georisques.gouv.frPrix honoraires inclus : 820.000 € HAIHonoraires charges vendeurs.Agent commercial (EI) : Victor LALLEMENT – RSAC 809 493 547Mandat n° 412 – Agence RCS 794 099 325Carte professionnelle n° CPI 1310 2017 000 022 515
L’actualité immobilière à Cabrières-d'Avignon
27/11/2023
02/11/2023
30/10/2023
20/10/2023
16/10/2023
16/10/2023