Maison à construire à Caumont-sur-Durance (84510)
Images
Description
Maison de 6 pièces (130 m²) en vente à Caumont-sur-Durance
IDÉALEMENT SITUÉE - MAISON 6 PIÈCES NEUVE
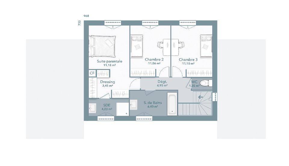
En vente : située à 38 km de la côte méditerranéenne et à 12 km d'Avignon, nous sommes heureux de vous présenter, idéalement située dans Caumont-sur-Durance (84510), cette maison de 6 pièces de 130 m² et de 440 m² de terrain. Elle comporte quatre chambres, une cuisine et trois salles de bains.
Il s'agit d'une maison de 2 niveaux. Elle est neuve.
Cette maison se trouve dans un quartier recherché. L'École Primaire Fernand Perrin et l'École Maternelle Pauline Kergomard sont implantées à moins de 10 minutes à pied. Côté transports en commun, il y a sept gares à moins de 10 minutes en voiture. L'autoroute A7 et la nationale N129 sont accessibles à moins de 3 km. On trouve un tennis, une bibliothèque, trois commerces, deux boulangeries, une épicerie, une poissonnerie et un bureau de poste à quelques minutes à peine.
Son prix de vente est de 399 000 €.
N'hésitez pas à prendre contact avec Julien FANTOZZI ((Numéro supprimé)) pour tout renseignement sur la maison.
Logement susceptibles de vous intéresser
Nous vous proposons de découvrir aussi cette sélection de logements situés à moins de 10km de Caumont-sur-Durance et qui seraient susceptibles de vous intéresser.
L'Isle-sur-la-Sorgue
TERRAIN ET MAISONconfortable et parfaitement adapté au quotidien. Dès l’entrée, un porche couvert mène à une grande pièce de vie lumineuse avec cuisine ouverte, idéale pour les moments en famille ou entre amis.Côté nuit, trois chambres avec rangements intégrés, une salle de bains et des WC séparés complètent l’ensemble. Un cellier et un garage intégré apportent praticité et confort supplémentaire.Classée DPE A, cette maison bénéficie d'une excellente performance énergétique, vous assurant confort thermique toute l’année et économies au quotidien.Un bien fonctionnel, moderne et économe, à découvrir rapidement.AnnonceContactez-nous au (Numéro supprimé).Frais de notaire non compris.Cette annonce a été créée et diffusée avec le logiciel VITAHOME.
L'Isle-sur-la-Sorgue
TERRAIN ET MAISONDécouvrez cette maison à étage de 137 m²Rez-de-chaussée :• Suite parentale avec salle d'eau et dressing privatifs, offrant intimité et confort.• Grand espace de vie ouvert et lumineux.• Cuisine moderne avec cellier attenant.• Garage intégré avec accès direct à la maison.À l'étage :• Un couloir avec vide sur séjour, apportant luminosité et sensation d’espace.• Trois chambres avec rangements intégrés.• Salle de bain fonctionnelle, idéale pour toute la famille.Points forts :• Chauffage gainable pour un confort thermique.• DPE A, garantissant une consommation réduite.• Panneaux solaires pour une production d’énergie verte.• Matériaux de qualité, assurant durabilité et confort toute l’année.Située dans un quartier calme et proche des commodités.Contactez-nous au (Numéro supprimé).Frais de notaire non compris.Cette annonce a été créée et diffusée avec le logiciel VITAHOME.
L'Isle-sur-la-Sorgue
TERRAIN ET MAISONDans un cadre résidentiel recherché, découvrez cette maison neuve de 158 m² au design résolument moderne. Pensée pour offrir un confort optimal au quotidien, elle conjugue esthétisme, performance énergétique et équipements haut de gamme.Conforme à la norme RE 2020, cette maison est équipée de panneaux solaires, d’un chauffage gainable performant et bénéficie d’un DPE A, vous garantissant une consommation énergétique maîtrisée.Son agencement harmonieux met à l’honneur les volumes, avec une belle pièce de vie traversante, une suite parentale indépendante, un coin nuit pour les enfants et un bureau, idéal pour le télétravail.Parfaite pour une famille à la recherche d’espace, de lumière et d’économies d’énergie.Contactez-nous au (Numéro supprimé).Frais de notaire non compris.Cette annonce a été créée et diffusée avec le logiciel VITAHOME.
L'Isle-sur-la-Sorgue
TERRAIN ET MAISONMaison moderne et éco-performante, avec une performance énergétique DPE A.Caractéristiques principales :Rez-de-chaussée :- Espace de vie lumineux de 40 m²,- Suite parentale avec salle d’eau et dressing,- Hall d’entrée avec WC indépendant,- Garage.Étage :- Deux chambres spacieuses avec espace rangement,- Salle de bain et WC indépendant,- Villas alliant confort, modernité et faible consommation énergétique.Contactez-nous au (Numéro supprimé).Frais de notaire non compris.Cette annonce a été créée et diffusée avec le logiciel VITAHOME.
Velleron
TERRAIN ET MAISONDans quartiers prisés, découvrez cette maison traditionnelle de 125 m² habitables, implantée sur une belle parcelle arborée.Dès l’entrée, vous serez charmé par le vaste espace de vie lumineux de 60 m², intégrant une cuisine américaine ouverte sur un séjour chaleureux, idéal pour recevoir. Un cellier attenant donne directement accès au garage, pour un quotidien facilité.Réparties sur 2 niveaux, les 4 chambres offrent un confort optimal, accompagnées de 3 salles de bains et 2 dressings spacieux, parfaits pour toute la famille.À l’extérieur, profitez d’un jardin intimiste sans vis-à-vis et d’une grande terrasse plein sud, pour des moments de détente en toute quiétude.Un bien rare sur le secteur, proche de toutes les commodités et des écoles.Contactez-nous au (Numéro supprimé).Frais de notaire non compris.Cette annonce a été créée et diffusée avec le logiciel VITAHOME.
Noves
TERRAINA VENDRE – Commune de NOVES – Marie Line et Emmanuel vous présentent un TERRAIN A BATIR. Parcelle de 679 m², emprise au sol de 30% – Libre constructeur. A visiter rapidement!Pour visiter et vous accompagner dans votre projet, contactez Marie Line URVOY, au (Numéro supprimé) ou au (Numéro supprimé)Selon l’article L.561.5 du Code Monétaire et Financier, pour l’organisation de la visite, la présentation d’une pièce d’identité vous sera demandée.Prix de vente de: 151000 euros honoraires inclus – 140 000 euros honoraires exclus – honoraires de 11000 euros à la charge des acquéreurs.Cette présente annonce a été rédigée sous la responsabilité éditoriale de Marie Line URVOY agissant sous le statut d’agent commercial immatriculé au RSAC TARASCON 434 911 863 auprès de SAS PROPRIETES PRIVEES, au capital de 44 920 euros, ZAC LE CHÊNE FERRÉ – 44 ALLÉE DES CINQ CONTINENTS 44120 VERTOU; SIRET 487 624 777 00040, RCS Nantes. Carte Professionnelle Transactions sur immeubles et fonds de commerce (T) et Gestion immobilière (G) n° CPI 4401 2016 000 010 388 délivrée par la CCI Nantes – Saint Nazaire. Compte séquestre n(Numéro supprimé)67 BPA SAINT-SEBASTIEN-SUR-LOIRE (44230). Garantie GALIAN-SMABTP – 89 rue de la Boétie, 75008 Paris – n°28137 J pour 2 000 000 euros pour T et 120 000 euros pour G. Assurance responsabilité civile professionnelle par GALIAN-SMABTP n° de police 28137.JMandat réf : 421487. – Le professionnel garantit et sécurise votre projet immobilier. (7.86 % honoraires TTC à la charge de l’acquéreur.) Marie Line URVOY (EI) Agent Commercial – Numéro RSAC : TARASCON 434 911 863 – .
Châteaurenard
TERRAINMaison France Confort et ses partenaires fonciers : vous proposent ce projet de construction sur la commune de Châteaurenard, dans un environnement calme et résidentiel, avec une vue totalement dégagée. Idéalement situé entre Avignon, Arles et Salon-de-Provence, à seulement 20 minutes de la gare TGV, ce terrain de 360 m² , saura vous séduire par son cadre et sa proximité avec les commodités du centre.Exemple de réalisation : TERRAIN + MAISONMaison de 3 chambresBelle pièce de vie de 35 m² Prix : 288 000 € (hors frais de notaire et taxes)Ce projet est totalement personnalisable selon vos envies : plan, agencement, prestations…Nous vous accompagnons du premier rendez-vous jusqu’à la remise des clés, dans le cadre d’un contrat de construction de maisons individuelles (CCMI) offrant toutes les garanties légales.Profitez des dernières opportunités sur ce secteur recherché.Toute notre équipe vous accueille à notre agence de Salon-de-Provence et reste à votre écoute au (Numéro supprimé) ou (Numéro supprimé) pour concrétiser votre projet.Maison France Confort – Votre partenaire de confiance pour construire sereinement.
Châteaurenard
TERRAIN ET MAISONMaison France Confort et ses partenaires fonciers : vous proposent ce projet de construction sur la commune de Châteaurenard, dans un environnement calme et résidentiel, avec une vue totalement dégagée. Idéalement situé entre Avignon, Arles et Salon-de-Provence, à seulement 20 minutes de la gare TGV, ce terrain de 350 m² , saura vous séduire par son cadre et sa proximité avec les commodités du centre.Exemple de réalisation : TERRAIN + MAISONMaison de 3 chambresBelle pièce de vie de 35 m² Prix : 288 000 € (hors frais de notaire et taxes)Ce projet est totalement personnalisable selon vos envies : plan, agencement, prestations…Nous vous accompagnons du premier rendez-vous jusqu’à la remise des clés, dans le cadre d’un contrat de construction de maisons individuelles (CCMI) offrant toutes les garanties légales.Profitez des dernières opportunités sur ce secteur recherché.Toute notre équipe vous accueille à notre agence de Salon-de-Provence et reste à votre écoute au (Numéro supprimé) ou (Numéro supprimé) pour concrétiser votre projet.Maison France Confort – Votre partenaire de confiance pour construire sereinement.
Châteaurenard
TERRAIN ET MAISONMaison France Confort et ses partenaires fonciers : vous proposent ce projet de construction sur la commune de Châteaurenard, dans un environnement calme et résidentiel, avec une vue totalement dégagée. Idéalement situé entre Avignon, Arles et Salon-de-Provence, à seulement 20 minutes de la gare TGV, ce terrain de 360 m² , saura vous séduire par son cadre et sa proximité avec les commodités du centre.Exemple de réalisation : TERRAIN + MAISONMaison de 3 chambresBelle pièce de vie de 35 m² Garage 18M² Prix : 349 500 € (hors frais de notaire et taxes)Ce projet est totalement personnalisable selon vos envies : plan, agencement, prestations…Nous vous accompagnons du premier rendez-vous jusqu’à la remise des clés, dans le cadre d’un contrat de construction de maisons individuelles (CCMI) offrant toutes les garanties légales.Profitez des dernières opportunités sur ce secteur recherché.Toute notre équipe vous accueille à notre agence de Salon-de-Provence et reste à votre écoute au (Numéro supprimé) ou (Numéro supprimé) pour concrétiser votre projet.Maison France Confort – Votre partenaire de confiance pour construire sereinement.
L’actualité immobilière à Caumont-sur-Durance
27/11/2023
02/11/2023
30/10/2023
20/10/2023
16/10/2023
16/10/2023