Maison à construire à Caumont-sur-Durance (84510)
Images
Description
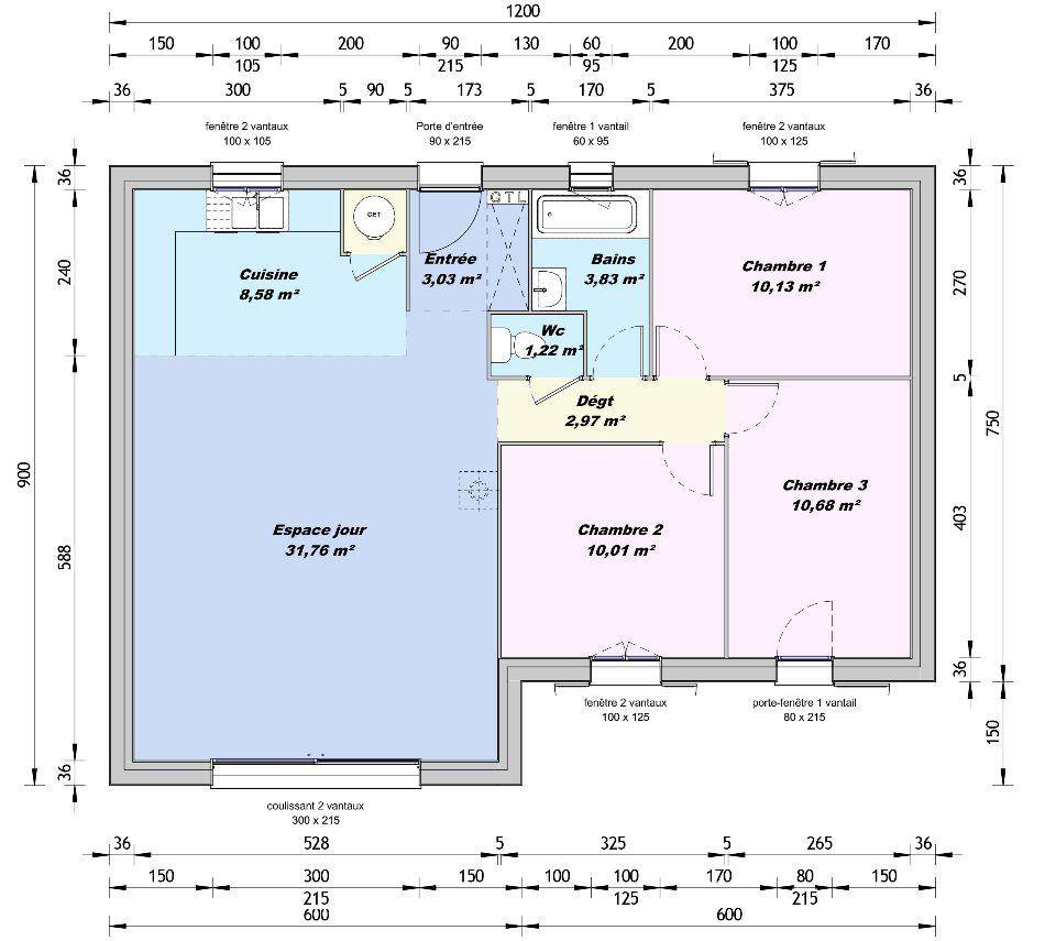
VENTE d'une maison F4 (83 m²) à Caumont-sur-Durance
PROCHE D'AVIGNON - MAISON 4 PIÈCES NEUVE
En vente : située à 38 km de la côte méditerranéenne et à deux pas d'Avignon, nous vous proposons cette maison de 4 pièces de plain-pied de 83 m² et de 480 m² de terrain à Caumont-sur-Durance (84510). Elle comporte trois chambres, une cuisine et une salle de bains.
Cette maison est neuve.
On trouve l'École Primaire Fernand Perrin et l'École Maternelle Pauline Kergomard à moins de 10 minutes à pied. Niveau transports en commun, il y a sept gares à moins de 10 minutes en voiture. L'autoroute A7 et la nationale N129 sont accessibles à moins de 3 km. On trouve un tennis, une bibliothèque, trois commerces, deux boulangeries, un bureau de poste, une poissonnerie et une épicerie à proximité de la maison.
Son prix de vente est de 280 000 €.
Contactez notre agence (LAMTALSI Driss) pour plus d'informations sur la propriété. Maisons France Confort Le Pontet est là pour vous accompagner dans tous vos projets immobiliers. Contacter Mr Lamtalsi au (Numéro supprimé)
Logement susceptibles de vous intéresser
Nous vous proposons de découvrir aussi cette sélection de logements situés à moins de 10km de Caumont-sur-Durance et qui seraient susceptibles de vous intéresser.
L'Isle-sur-la-Sorgue
TERRAIN ET MAISONCaractéristiques principales :- Surface habitable : 158 m²- Conforme à la norme RE 2020- Panneaux solaires installés pour réduire votre facture énergétique- Chauffage gainable pour un confort thermique homogène- DPE A : haute performance énergétique- Suite parentale indépendante- Bureau séparé, idéal pour le télétravail- Bel espace de vie lumineuxQuartier résidentiel, cadre paisible et agréableContactez-nous au (Numéro supprimé).Frais de notaire non compris.Cette annonce a été créée et diffusée avec le logiciel VITAHOME.
Velleron
TERRAIN ET MAISONMaison de 4 pièces (78 m²) à vendre à VelleronCENTRE-VILLE – MAISON 4 PIÈCES NEUVEEn vente à 45 km de la côte méditerranéenne et à quelques kilomètres d’Avignon, laissez vous charmer par cette maison de 4 pièces de 78 m² à Velleron (84740), en centre-ville.Cette maison comporte 2 niveaux. Elle propose trois chambres, une cuisine et une salle de bains. La maison est neuve.Le terrain de la propriété est de 377 m².L’École Primaire Primaire se trouve à moins de 10 minutes à pied. Niveau transports, il y a huit gares à moins de 10 minutes en voiture. L’autoroute A7 et les nationales N129 et N7 sont accessibles à moins de 20 km. On trouve un tennis, trois commerces, une boulangerie, un bureau de poste et une épicerie dans les environs.Il est proposé à l’achat pour 279 000 €.Contactez Julien FANTOZZI ((Numéro supprimé)) pour toute information sur la maison ou sur les démarches à suivre.
Velleron
TERRAIN ET MAISONVENTE : maison F5 (98 m²) à VelleronCENTRE-VILLE – MAISON 5 PIÈCES NEUVEEn vente : située à 45 km de la mer Méditerranée et à quelques kilomètres d’Avignon, dans le centre-ville de Velleron (84740), nous vous présentons cette maison de 5 pièces de 98 m². Elle dispose de quatre chambres, d’une cuisine et d’une salle de bains.Le terrain du bien est de 377 m².C’est une maison de 2 niveaux. Elle est neuve.L’École Primaire Primaire se trouve à moins de 10 minutes à pied. Niveau transports en commun, il y a huit gares à moins de 10 minutes en voiture. L’autoroute A7 et les nationales N129 et N7 sont accessibles à moins de 20 km. On trouve un tennis, trois commerces, une boulangerie, une épicerie et un bureau de poste à quelques minutes de la maison.Son prix de vente est de 289 000 €.N’hésitez pas à prendre contact avec notre agence (Julien FANTOZZI : (Numéro supprimé)) pour toute information sur la maison ou sur les démarches à suivre.
Velleron
TERRAINVENTE : terrain de 377 m² à VelleronCENTRE-VILLE – VUE DÉGAGÉEÀ vendre à 45 km de la mer Méditerranée et à quelques kilomètres d’Avignon à Velleron (84740), terrain de 377 m². Réalisez-y votre projet immobilier. Ce terrain, avec vue dégagée, bénéficie d’une exposition sud. En centre-ville, ce terrain est proche des écoles et des commerces. Il y a l’École Primaire Primaire à moins de 10 minutes à pied. Côté transports, on trouve huit gares à moins de 10 minutes en voiture. L’autoroute A7 et les nationales N129 et N7 sont accessibles à moins de 20 km. Il y a un tennis, trois commerces, une boulangerie, une épicerie et un bureau de poste à proximité du bien.Son prix de vente est de 125 000 €. Contactez Julien FANTOZZI ((Numéro supprimé)) pour plus d’informations sur ce terrain. Maisons France Confort Le Pontet vous accompagne dans tous vos projets immobiliers et dans toutes vos démarches.
Velleron
TERRAIN ET MAISONMaison de 4 pièces (83 m²) à vendre à VelleronCENTRE-VILLE – MAISON 4 PIÈCES NEUVEÀ vendre : à 45 km de la côte méditerranéenne et à deux pas d’Avignon, laissez vous charmer par cette maison de 4 pièces de plain-pied de 83 m² à Velleron (84740), en centre-ville.Conçue de plain-pied, elle compte trois chambres, une cuisine et une salle de bains. La maison est neuve.Le terrain du bien s’étend sur 377 m².Il y a l’École Primaire Primaire à moins de 10 minutes à pied. Côté transports en commun, on trouve huit gares à moins de 10 minutes en voiture. L’autoroute A7 et les nationales N129 et N7 sont accessibles à moins de 20 km. Il y a un tennis, trois commerces, une boulangerie, une épicerie et un bureau de poste dans les environs.Elle est à vendre pour la somme de 269 000 €.Contactez Julien FANTOZZI (tél : (Numéro supprimé)) pour toute question sur la maison, sur les démarches à suivre ou sur les modalités de vente. Maisons France Confort Le Pontet est là pour vous accompagner dans tous vos projets immobiliers.
Jonquerettes
TERRAINFiche N°Id-TCT174855 : JONQUERETTES Fiche BC174855 : Jonquerettes, Terrain – – Equipements annexes : – chauffage : Aucun – Plus d’informations disponibles sur demande… – Mentions légales : Proposé à la vente à 218000 Euros (honoraires à la charge du vendeur) – Reseau Immo-Diffusion Sorgues – Pour plus d’informations, contactez notre secrétariat au (Numéro supprimé) (Appel gratuit ou prix d’une communication locale) – Les informations sur les risques auxquels ce bien est exposé sont disponibles sur le site Géorisques : www.georisques.gouv.fr
Le Thor
TERRAIN ET MAISONA LE THOR sur un terrain de 672 m², VILLAS PRISME vous propose de réaliser votre projet de construction de maison individuelle d'une surface de 95 m² habitables avec 3 chambres. Garage et terrasse en option.Avec VILLAS PRISME, vous pouvez personnaliser votre projet de maison sur mesure :- Plan et distribution- Système de chauffage au choix- Prestations et équipements selon vos souhaits : carrelages, faïence, menuiseries, salles de bains…- Mode constructif et matériaux selon les normes en vigueur Informations du terrain : plat, proche commodités ! PC accordé.Demandez une étude gratuite et personnalisée de votre projet de construction !Contactez Franck BIENVENOT au (Numéro supprimé) (Villas Prisme – Show-room de Vitrolles).Prix avec assurance dommages-ouvrage comprise, hors VRD, terrain viabilisé, frais de notaire non compris, frais divers non compris. Terrain sélectionné et vu pour vous sous réserve de disponibilité et au prix indiqué par notre partenaire foncier. Non mandaté pour la vente du terrain. Visuels non contractuels.Cette annonce a été créée et diffusée avec le logiciel VITAHOME.
Saint-Saturnin-lès-Avignon
TERRAIN ET MAISONOffrez-vous une maison pensée pour votre qualité de vie :- Un grand espace de vie lumineux,- 4 chambres confortables avec espace rangement,- Une salle de bains moderne et WC séparé,- Un dégagement avec placards intégrés,- Un cellier attenant à la cuisine,- Des équipements performants : panneaux solaires, excellente isolation, DPE A.Idéale pour une famille souhaitant allier modernité et responsabilité écologique.Contactez-nous au (Numéro supprimé).Frais de notaire non compris.Cette annonce a été créée et diffusée avec le logiciel VITAHOME.
Saint-Saturnin-lès-Avignon
TERRAIN ET MAISONMaison neuve à faible consommation énergétique – DPE A !Cette maison à étage de 120 m² offre un espace de vie fonctionnel. Au rez-de-chaussée, une grande pièce de vie avec cuisine ouverte et un cellier attenant à la cuisine.À l’étage, vous trouverez 3 chambre spacieuse, ainsi qu’une suite parentale avec salle d'eau privative, offrant confort et intimité. Une seconde salle de bain complète cet étage, idéale pour les membres de la famille ou les invités.Située dans un quartier proche des commodités, cette maison sera parfaite pour ceux qui recherchent un cadre de vie agréable.Contactez-nous au (Numéro supprimé).Frais de notaire non compris.Cette annonce a été créée et diffusée avec le logiciel VITAHOME.
L’actualité immobilière à Caumont-sur-Durance
27/11/2023
02/11/2023
30/10/2023
20/10/2023
16/10/2023
16/10/2023