Maison à construire à L'Isle-sur-la-Sorgue (84800)
Images
Description
Maison de 6 pièces (130 m²) à vendre à L'Isle-sur-la-Sorgue
IDÉALEMENT SITUÉE - MAISON 6 PIÈCES NEUVE
À vendre : située à 40 km de la côte méditerranéenne, laissez vous charmer par cette maison de 6 pièces de 130 m² idéalement située dans L'Isle-sur-la-Sorgue (84800).
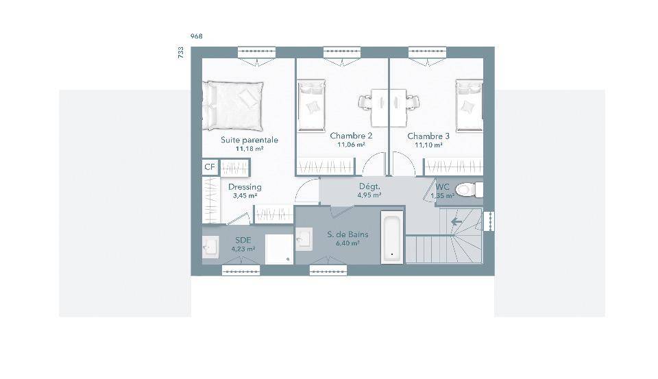
Il s'agit d'une maison de 2 niveaux. Elle offre quatre chambres, une cuisine et trois salles de bains. Cette maison est neuve.
Le terrain du bien s'étend sur 435 m².
Cette maison se situe dans un quartier convoité. On trouve des établissements scolaires primaires à moins de 10 minutes à pied, tout comme une structure d'accueil pour les enfants en bas âge. Niveau transports, il y a la gare L'Isle-sur-la-Sorgue-Fontaine-de-Vaucluse à proximité. L'autoroute A7 et la nationale N129 sont accessibles à moins de 12 km. On trouve des commerces, des boulangeries, un supermarché, un bureau de poste et trois boucheries-charcuteries à quelques minutes à peine.
Son prix de vente est de 440 000 €.
Contactez Julien FANTOZZI ((Numéro supprimé)) pour plus de renseignements sur la propriété. Maisons France Confort Le Pontet est là pour vous accompagner dans tous vos projets immobiliers.
Logement susceptibles de vous intéresser
Nous vous proposons de découvrir aussi cette sélection de logements situés à moins de 10km de L'Isle-sur-la-Sorgue et qui seraient susceptibles de vous intéresser.
L'Isle-sur-la-Sorgue
TERRAINDaniel au (Numéro supprimé) L’Isle-sur-la-Sorgue (84800), Azur et Constructions vous réserve un terrain de 311 m² exposé sud, viabilisé, proche école et commerces Faites construire la maison qui vous ressemble et bénéficiez de toutes les garanties du Contrat de Construction. Prix : à partir de 114 000 € (hors frais de notaire)Vu avec notre partenaire foncier« Concept clé en main et rencontrant depuis plus de 30 ans un franc succès, la formule terrain + maison fait partie de L’ADN de la société Azur et Constructions. Spécialiste de la construction de maisons individuelles fondé en 1994 à Martigues, l’entreprise familiale met à la disposition de toute sa clientèle un large choix d’annonces immobilières de terrain + modèle de maison, de plain-pied, à étage, avec ou sans garage, de style contemporain ou plus traditionnel. uvrant sur une grande partie du territoire de la région Provence-Alpes-Côte d’Azur, la société couvre le département du Vaucluse, des Hautes-Alpes, des Alpes-de-Haute-Provence, des Bouches-du-Rhône et du Gard, département de la région voisine.Pour découvrir l’ensemble des annonces de terrain + maison proposées par l’entreprise immobilière, la clientèle de la société Azur et Constructions peut consulter le catalogue disponible en ligne, via le site internet de l’entreprise. Ils ont ainsi la possibilité d’effectuer des recherches en précisant la commune, avec possibilité de s’en éloigner de plus ou moins 5 kilomètres minimum et jusqu’à 100 kilomètres. La société de construction immobilière propose également à ses clients de venir lui rendre visite dans l’une de ses 4 agences situées respectivement à Manosque, à Martigues, à Salon de Provence et à Plan de Campagne sur la commune de Cabriès. Les collaborateurs de chaque agence se feront un plaisir de vous présenter en détail les annonces de terrain + maison disponibles et de répondre à toutes vos questions. »
L'Isle-sur-la-Sorgue
TERRAIN ET MAISONMaison de 5 pièces (76 m²) à vendre à L’Isle-sur-la-SorgueEmplacement privilégié – Maison neuve 5 pièces en vente à L’Isle-sur-la-Sorgue (84800) avec 2 niveaux, une surface de 76 m² et de 341 m² de terrain. Elle comporte trois chambres, une cuisine et une salle de bains.Proche gare (L’Isle-sur-la-Sorgue-Fontaine-de-Vaucluse), écoles, crèche, commerces, boulangeries, supermarché, boucheries-charcuteries et bureau de poste. Accès autoroute A7 et nationale N129 à 12 km. Mer Méditerranée à 40 km.Cette maison de 5 pièces est à vendre pour la somme de 289 900 €.N’hésitez pas à prendre contact avec Daniel DEROCH (tél : (Numéro supprimé)) pour toute question sur la maison, sur les démarches à suivre ou sur les modalités de vente. Azur & Constructions Salon-de-Provence est là pour vous accompagner à toutes les étapes de l’achat.
L'Isle-sur-la-Sorgue
TERRAIN ET MAISONconfortable et parfaitement adapté au quotidien. Dès l’entrée, un porche couvert mène à une grande pièce de vie lumineuse avec cuisine ouverte, idéale pour les moments en famille ou entre amis.Côté nuit, trois chambres avec rangements intégrés, une salle de bains et des WC séparés complètent l’ensemble. Un cellier et un garage intégré apportent praticité et confort supplémentaire.Classée DPE A, cette maison bénéficie d'une excellente performance énergétique, vous assurant confort thermique toute l’année et économies au quotidien.Un bien fonctionnel, moderne et économe, à découvrir rapidement.AnnonceContactez-nous au (Numéro supprimé).Frais de notaire non compris.Cette annonce a été créée et diffusée avec le logiciel VITAHOME.
L'Isle-sur-la-Sorgue
TERRAIN ET MAISONDécouvrez cette maison à étage de 137 m²Rez-de-chaussée :• Suite parentale avec salle d'eau et dressing privatifs, offrant intimité et confort.• Grand espace de vie ouvert et lumineux.• Cuisine moderne avec cellier attenant.• Garage intégré avec accès direct à la maison.À l'étage :• Un couloir avec vide sur séjour, apportant luminosité et sensation d’espace.• Trois chambres avec rangements intégrés.• Salle de bain fonctionnelle, idéale pour toute la famille.Points forts :• Chauffage gainable pour un confort thermique.• DPE A, garantissant une consommation réduite.• Panneaux solaires pour une production d’énergie verte.• Matériaux de qualité, assurant durabilité et confort toute l’année.Située dans un quartier calme et proche des commodités.Contactez-nous au (Numéro supprimé).Frais de notaire non compris.Cette annonce a été créée et diffusée avec le logiciel VITAHOME.
Pernes-les-Fontaines
TERRAIN ET MAISONDans un quartier recherché, maison moderne de 125 m² habitable en DPE A.La propriété dispose d'un joli jardin arboré et d’une grande terrasse exposé sud. La maison s'étend sur 2 niveaux. Le rez-de-chaussée s'ouvre sur un hall d'entrée et un bel espace de vie de 60 m2 qui offre cuisine américaine, salon/séjour, cellier avec accès au garage.L'espace nuit offre 4chambres réparties sur 2 étages, 3 salles de bains, 2 grands dressings.Bien rare, sans vis-à-vis, qui offre un confort absolu, à deux pas des commerces et écoles. Un véritable coup de cœur.Contactez-nous au (Numéro supprimé).Frais de notaire non compris.Cette annonce a été créée et diffusée avec le logiciel VITAHOME.
L'Isle-sur-la-Sorgue
TERRAIN ET MAISONDans un cadre résidentiel recherché, découvrez cette maison neuve de 158 m² au design résolument moderne. Pensée pour offrir un confort optimal au quotidien, elle conjugue esthétisme, performance énergétique et équipements haut de gamme.Conforme à la norme RE 2020, cette maison est équipée de panneaux solaires, d’un chauffage gainable performant et bénéficie d’un DPE A, vous garantissant une consommation énergétique maîtrisée.Son agencement harmonieux met à l’honneur les volumes, avec une belle pièce de vie traversante, une suite parentale indépendante, un coin nuit pour les enfants et un bureau, idéal pour le télétravail.Parfaite pour une famille à la recherche d’espace, de lumière et d’économies d’énergie.Contactez-nous au (Numéro supprimé).Frais de notaire non compris.Cette annonce a été créée et diffusée avec le logiciel VITAHOME.
Pernes-les-Fontaines
TERRAIN ET MAISONLaissez-vous séduire par cette maison contemporaine à demi-étage, pensée pour conjuguer design, fonctionnalité et confort de vie au quotidien.Dès l’entrée, un hall accueillant vous plonge dans une atmosphère chaleureuse et moderne. L’espace se prolonge sur un vaste séjour lumineux, ouvert sur le jardin grâce à trois grandes baies vitrées qui inondent la pièce de lumière naturelle. La cuisine ouverte, parfaitement intégrée, crée un espace de vie fluide et convivial de plus de 50 m².Au rez-de-chaussée, vous bénéficiez d’un véritable espace nuit parental, avec une belle suite composée d’une chambre spacieuse, d’un dressing et d’une salle d’eau privative. Un espace intime, isolé du reste de la maison, idéal pour les parents en quête de calme.Le demi-niveau supérieur accueille deux chambres confortables, toutes bien agencées, ainsi qu’une salle de bain familiale avec baignoire et douche selon vos envies.Contactez-nous au (Numéro supprimé).Frais de notaire non compris.Cette annonce a été créée et diffusée avec le logiciel VITAHOME.
Pernes-les-Fontaines
TERRAIN ET MAISONConçue pour offrir une qualité de vie optimale, elle propose un bel espace de vie baigné de lumière, idéal pour les moments en famille ou entre amis. La suite parentale, située au rez-de-chaussée, dispose de sa propre salle d’eau ainsi que d’un dressing, pour une intimité préservée et un quotidien facilité. Un hall d’entrée accueillant avec WC indépendant et un garage intégré complètent le niveau principal.À l’étage, deux grandes chambres avec rangements viennent prolonger l’espace nuit, accompagnées d’une salle de bain et de WC séparés. L’ensemble offre un agencement fonctionnel, pensé pour le confort de toute la famille.Économe en énergie, bien isolée et équipée de prestations de qualité, cette maison réunit tous les atouts d’une construction contemporaine tournée vers l’avenir.Contactez-nous au (Numéro supprimé).Frais de notaire non compris.Cette annonce a été créée et diffusée avec le logiciel VITAHOME.
L'Isle-sur-la-Sorgue
TERRAIN ET MAISONMaison moderne et éco-performante, avec une performance énergétique DPE A.Caractéristiques principales :Rez-de-chaussée :- Espace de vie lumineux de 40 m²,- Suite parentale avec salle d’eau et dressing,- Hall d’entrée avec WC indépendant,- Garage.Étage :- Deux chambres spacieuses avec espace rangement,- Salle de bain et WC indépendant,- Villas alliant confort, modernité et faible consommation énergétique.Contactez-nous au (Numéro supprimé).Frais de notaire non compris.Cette annonce a été créée et diffusée avec le logiciel VITAHOME.
L’actualité immobilière à L'Isle-sur-la-Sorgue
27/11/2023
02/11/2023
30/10/2023
20/10/2023
16/10/2023
16/10/2023